首页:上海普陀区(中鹰·黑森林)售楼处电话-2026楼盘详情-房价-户型-配套-普陀区(中鹰·黑森林)售楼处地址-2026楼盘详情-房价-户型→
扫描到手机,新闻随时看
扫一扫,用手机看文章
更加方便分享给朋友
收官楼王发售
约250-581.07㎡科技住宅
单价12.5万/平方起
✅一生只搬一家,上海的世外桃源
✅拥有12万原生态森林
✅始终走在低碳住宅的前沿
✅领先世界卫生组织定义的健康科技住宅
六恒环保健康科技住宅100%绿化率
中鹰·黑森林预约热线☎:400-8080-420✅✅
中鹰·黑森林预约热线☎:400-8080-420✅✅
开发商:上海中鹰置业有限公司
物业公司:上海中鹰黑森林物业有限公司
占地面积:约9.5万㎡
建筑面积:约27万㎡
产权年限:70年
楼栋数:16幢(本次销售房源分布在二、三期高层住宅)
总户数:1264(本次保留房源20套左右)
得房率:本次销售房源得房率为76-80%
总车位配比:1:1.2
绿化率:40%
均价:16w/㎡
能源费:15.8元/㎡/月【含中央能源费(毛细管冷暖系统、新风系统、地源热泵),中央净水、热水系统(热水免费供应),物业费等】
梯户比:2T2H
交付标准:高定奢装
交房时间:现房交付
生活配套:
中鹰·黑森林预约热线☎:400-8080-420✅✅
商业:乐购,家乐福,巴黎春天,虎城嘉年,华等商业中心
银行:工商银行,建设银行,光大银行,交通银行
医院:万里中医院,天佑医院,同济大学附属医院.
教育配套:
童的梦双语幼儿园、晋元高级中学附属小学、初中,晋元高级中学.
交通配套:
交通状况:5分钟上内环,3分钟上中环
轨道交通:7号线(新村路站),11号线(上海西站)
二、主推房:
10023房250平南北通透4014万
中鹰·黑森林预约热线☎:400-8080-420✅✅2⃣️中区楼层:中区的视野越过树梢,千米无遮挡,采光和通风效果特别好,客厅直面中央景观绿地,视野开阔媲美纽约中央公园;
3⃣️主卧面宽8.5米,全落地窗观视野无遮挡观自然水域视野开中鹰黑森林项目
三、户型图和楼栋位置:
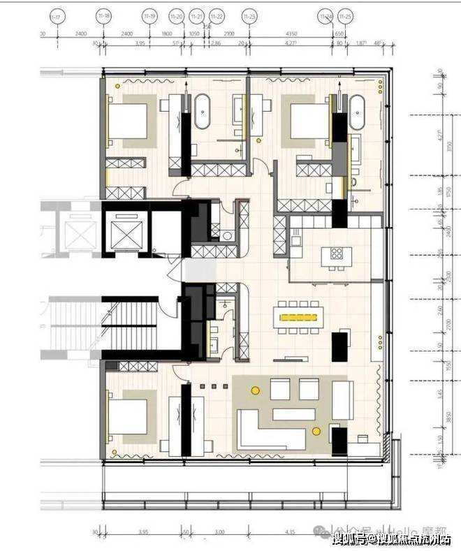
250平3房户型图
中鹰·黑森林预约热线☎:400-8080-420✅✅
312平3房户型图:
中鹰·黑森林预约热线☎:400-8080-420✅✅
实拍视野南向:
中鹰·黑森林预约热线☎:400-8080-420✅✅
实拍视野北向:
中鹰·黑森林预约热线☎:400-8080-420✅✅
四、室内视频(18层样板间带露台)
中鹰·黑森林预约热线☎:400-8080-420✅✅
中鹰·黑森林预约热线☎:400-8080-420✅✅
中鹰·黑森林预约热线☎:400-8080-420✅✅
中鹰·黑森林预约热线☎:400-8080-420✅✅
声明:本文由入驻焦点开放平台的作者撰写,除焦点官方账号外,观点仅代表作者本人,不代表焦点立场。
