西派云间售楼处(上海松江2025年中铁建西派云间)西派云间首页网站-户型配套-小区环境-上海房天下
扫描到手机,新闻随时看
扫一扫,用手机看文章
更加方便分享给朋友
西派云间
售楼处电话:400-1010-064☎
案场预约制 看房需提前来电预约登记
请务必致电与销售确认时间,避免空跑,感谢您的支持
中国铁建是全球最具实力、规模的特大型综合建设集团之一。2024年《财富》“世界500强企业”排名 第43位 ,连续 19年 跻身世界500强。
而中国铁建地产隶属世界500强企业— — 中国铁建股份有限公司,是国资委批准的16家以房地产为主业的央企之一。
西派云间
售楼处电话:400-1010-064☎
案场预约制 看房需提前来电预约登记
请务必致电与销售确认时间,避免空跑,感谢您的支持
截至2024年11月30日,在 48 个 国内城市和海外布局277个项目,实现了京津冀、长三角、珠三角等主要城市群的全面布局。
而“西派系” 是中国铁建地产TO P1 的产品系,可想其含金量。
更是连续 6年 蝉联 “中国房地产产品品牌价值 TOP10” 。
大家可以想想,这样一家在全国甚至全球都极有影响力的房企,其TOP级的西派系就是一块金字招牌,代表着整个企业最高水准。
这也意味着中国铁建西派云间的产品力,对标的将是市区的高端豪宅。
具体的产品细节未透露太多,已知的信息跟大家分享几点:
第一,纯粹的改善居住圈层。
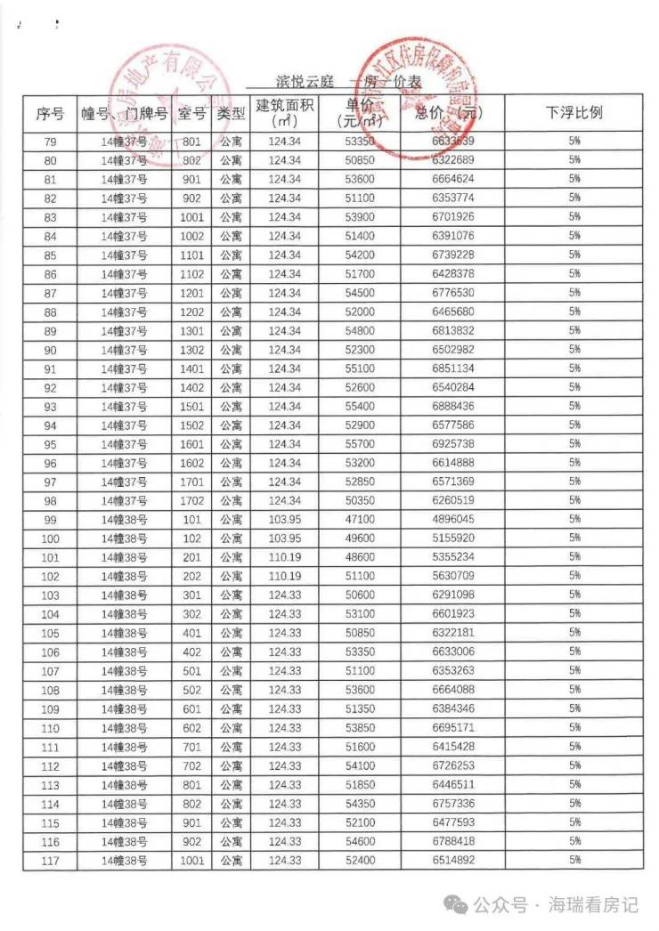
项目总共有两种产品,建面约125㎡-188㎡小高层、建面约153㎡-158㎡4层叠墅。
您知道这样的社区有多稀缺吗?
近10年,松江新城建面约120㎡以下的小户型供应占比超70%,几乎所有的小区都有百平米的小户型产品。
起步面 积段就是建面约125㎡以上的纯粹改善型小区,整个松江新城乃至整个上海西南片区,只有西派云间一盘。
与以小户型为主, 主力吸引刚需客户的项目相比,纯粹改善型的社区才能给业主更好的居住体验,才能给孩子更好的居住环境,才能给家里老人更宜居的居住氛围。
这是社区定位上的不同,也是未来居住氛围上的不同。
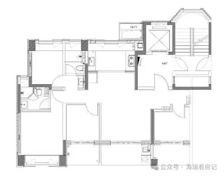
第二,惊喜户型独家爆料。
关于户型设计,目前还没有准确的户型图流出,但据小胖看房了解:
建面约125㎡4房设计,并且是多阳台、一梯一户的设计,私密性、实用性、附赠空间拉满。
更有建面约188㎡终极改善4房产品,这是松江新城未曾有过的尺度感。
还有西派在上海首次呈现西派墅作品,值得期待!
第三,颠覆性的产品力。
中国铁建以远超市面标准的投入,于产品设计、选材营造等环节倾注心力,打造了一个匹配新城核芯地位的品质标杆。
整个项目有几个颠覆性的设计,跟大家分享下:
约2000㎡ 奢装会所。
部分顶豪会所,感受一下,西派云间的会所真的是下足了血本。
并且,整个会所从规格、颜值、用料都相当值得期待。
西派云间
售楼处电话:400-1010-064☎
案场预约制 看房需提前来电预约登记
请务必致电与销售确认时间,避免空跑,感谢您的支持
松江首个社区水幕瀑布。
最近在顶豪市场出现了利用高低落差来打造社区景观的项目,例如徐汇滨江约19.5万/㎡的绿城项目;大宁预计要卖16万/㎡的中建项目。
这是顶豪的标配,是上海最前端的设计理念。而这,却出现在了西派云间的社区内。
这水幕瀑布景观,让不少千万级的豪宅都望尘莫及。
中央车站。
项目颠覆了传统地库的冰冷印象,打造酒店式中央车站。
以「中央车站」概念打造枢纽式空间,连通会所与庭院,实现高效通行与私密守护的平衡。让地下空间也成为「可社交的星级场所」。
总结一下,从西派海上,到西派云间,从张江到G60科创走廊。这是中国铁建地产战略目光的前瞻性延伸,是深度融入国家战略、拥抱未来科创增长极的必然选择。
而在这个完美的置业热土之上,中国铁建地产匠造了颠覆性的产品力,拔升了整个上海外环的人居高度。
这可能是目前上海外环,最高水准的新房,不容错过!
我们实在一点说,外部配套中大家更看重的无非就是交通、商业、教育以及绿化公园。而这 些配套, 中国铁建西派云间的表现真的堪比市区。
我们先来看步行范围内的配套:

西派云间
售楼处电话:400-1010-064☎
案场预约制 看房需提前来电预约登记
请务必致电与销售确认时间,避免空跑,感谢您的支持
中国铁建·西派云间距离松江万达仅约850米,旁边还有 五龙商业广场 、 三迪曼哈顿 、 富悦财富中心 、 凯悦酒店 、 中展马利来 等众多商业资源。
目前已有的商业规模就已达约60万方, 亲子、购物、聚餐、看电影...日常需求统统能在步行范围内得到满足,这个成熟度真的堪比


西派云间
售楼处电话:400-1010-064☎
案场预约制 看房需提前来电预约登记
请务必致电与销售确认时间,避免空跑,感谢您的支持
教育上,项目约100米外一路之隔就是12年一贯制的上外云间学校。
软实力上,这所学校当初的建设 总投资约8亿元 ,是松江迄今为止投资总量更大、设计标准更高、设施配套更全的学校。
硬实力上,上外系的学校在松江几乎都是梯队内的标杆学校,实力之强有目共睹。

除此之外,南侧不远处还有 赫贤双语学校补充了国际教育需求。(教育以官方宣布为准)
生态上:项目步行范围内就有一座五龙湖公园,约 16公顷的广阔面积,与约5.9公里的绿道长度相得益彰。
湖畔风光旖旎 ,很适合早上晨练,晚饭后散步,居住环境优美。

交通:从项目出发,经T2电车直达9号线松江大学城站。
上车后,业主6站七宝、9站漕河泾,并且能轻松畅达徐家汇、打浦桥等浦西区域。
除此之外,1站就能换乘即将通车的12号线西延伸段,即可畅达莘庄、徐汇滨江、南京西路。

西派云间
售楼处电话:400-1010-064☎
案场预约制 看房需提前来电预约登记
请务必致电与销售确认时间,避免空跑,感谢您的支持
除了轨交外,最值得一提的是项目的自驾:距离项目直线约900米的沪松快速路,预计2028年通车。

目前上海整个外环最高规格的壹号作品
中国铁建西派云间!
将推出建面约125㎡-188㎡小高层
建面约153㎡-158㎡4层叠墅
目前两大主力产品细节曝光:
建面约125㎡4房2卫
建面约148㎡4房2卫
西派云间
售楼处电话:400-1010-064☎
案场预约制 看房需提前来电预约登记
请务必致电与销售确认时间,避免空跑,感谢您的支持
西派云间
售楼处电话:400-1010-064☎
案场预约制 看房需提前来电预约登记
请务必致电与销售确认时间,避免空跑,感谢您的支持
西派云间
售楼处电话:400-1010-064☎
案场预约制 看房需提前来电预约登记
请务必致电与销售确认时间,避免空跑,感谢您的支持
声明:本文由入驻焦点开放平台的作者撰写,除焦点官方账号外,观点仅代表作者本人,不代表焦点立场。
