同济蟠龙里2025年官方网站最新房价-上海(同济蟠龙里)楼盘详情-同济蟠龙里-户型配套
扫描到手机,新闻随时看
扫一扫,用手机看文章
更加方便分享给朋友
青浦区爆款新盘『同济蟠龙里』预约热线☎:400-8855-420✅✅热销揭秘!均价6.5万/㎡起,双地铁+国际配套,2025年必抢人居范本!


项目基础信息
区域板块
青浦徐泾板块
开发商
上海同青置业有限公司
占地面积
约1.6万㎡
建筑面积
约4.87万㎡
容积率
约2.0
绿化率
35%
车位配比
约1:1.27
可售总户数
282套
均价
约6.5万/平
总价
约585-1007万
在售面积
约100-145平
总楼高
14-16层
层高
约3米
交房时间
预计2026年5月交付
物业公司
上海同科物业服务有限公司
物业费
4.1元/㎡
装修标准
装修交付(新风+空调+地暖)
【同济·蟠龙里】预约热线☎:400-8855-420✅✅总建筑面积50760.36㎡,容积率2.0,绿化率35%,由4幢14-16F小高层住宅围合而成。
建筑:【同济·蟠龙里】预约热线☎:400-8855-420✅✅现代风格建筑,追求立面造型的整体性,符合虹桥商务区整体城市风貌于细节之间呈现精心雕琢。
【同济·蟠龙里】预约热线☎:400-8855-420✅✅
入口:气势磅礴入口,将艺术、文化与生活完美融合,尊迎归家居者入境。
【同济·蟠龙里】预约热线☎:400-8855-420✅✅
景观:六大景观特色,风光铺满归境,予以生活以诗意,予以人居以艺境 。
【同济·蟠龙里】预约热线☎:400-8855-420✅✅
架空层:更侧重实用功能与建筑美学有机结合,打造更多交流空间。
【同济·蟠龙里】预约热线☎:400-8855-420✅✅
低能耗:24小时新风系统、355毫米大于普通建筑的外墙厚度、高性能外窗,降低50%建筑能耗。
项目推售详情
目前,【同济·蟠龙里】预约热线☎:400-8855-420✅✅推出建面100-145㎡3-4房,均价65000元/㎡,正在热销!售楼处&样板房已开放,线上预约接待!

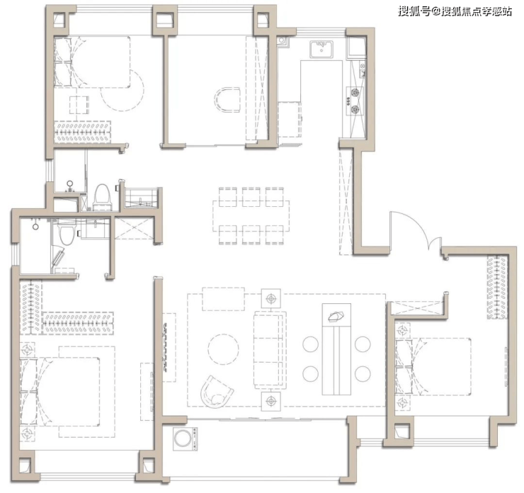
建面约100㎡3房2厅2卫▼【同济·蟠龙里】预约热线☎:400-8855-420✅✅

户型特色:【同济·蟠龙里】预约热线☎:400-8855-420✅✅
1、全明户型 南北通透 采光通风俱佳
2、三开间朝南 室内阳光连连
3、观景浪漫盈然 南向观景双开间阳台 拥揽四季人生景致
4、主卧大飘窗 包揽社区美景 起卧间朝夕相伴
5、独立玄关设置 实用美观 彰显尊贵气质

户型特色:【同济·蟠龙里】预约热线☎:400-8855-420✅✅
1、全明户型 格局方正 每一寸空间都利用妥帖
2、约6.1米大宽厅 全景面宽 休憩娱乐从容有度
3、多重附赠空间 舒适飘窗 小天地大视野
4、主人私享空间 套房设计 最大化生活享受
5、两梯两户设计 减少等待 出行更从容
项目区位配套
【同济·蟠龙里】预约热线☎:400-8855-420✅✅项目坐落虹桥主城核心、地铁17号线蟠龙路站旁的天赋区位,坐拥虹桥主城高品质的国际配套。

交通配套方面:【同济·蟠龙里】预约热线☎:400-8855-420✅✅项目毗邻虹桥枢纽,距离17号线蟠龙路站直线约800米,出行十分便利。
崧泽高架西延伸已通车,自驾出行更加快捷。地铁17号线西延伸段将无缝连接苏州地铁10号线并直通嘉善。未来不仅能一站直达国家会展中心、两站虹桥交通枢纽,更能拥享长三角一小时生活圈。

【同济·蟠龙里】预约热线☎:400-8855-420✅✅
商业配套方面:蟠龙古镇商业于今年开业,已成为新晋网红打卡点之一。除此之外,更有虹桥天地和龙湖虹桥天街这些中大型的商业中心,有电影院、泡汤、餐饮娱乐、购物服饰、艺术中心等等。日常购物还可以去COSTCO和山姆会员店。生活配套无比丰富!

教育资源方面:【同济·蟠龙里】预约热线☎:400-8855-420✅✅区域内不仅有英、美、德、法、韩等国际学校(针对外籍人士),还有一所16年一贯制的民办学校青浦世界外国语学校;公立学校则有上海世外教育附属徐和路幼儿园、徐泾幼儿园(上海市一级幼儿园)、徐泾小学(全国示范学校)、徐泾中学等(注:以上为周边现有教育配套,最终对口以交付后划分为准)。

医疗资源方面:【同济·蟠龙里】预约热线☎:400-8855-420✅✅开车可便捷到达华山医院西院、德达医院,还有远大健康城以及新虹桥国际医学中心。

生态资源方面:【同济·蟠龙里】预约热线☎:400-8855-420✅✅周边有三大公园环伺,徐泾港公园廊道、安踏体育主题公园以及蟠龙公园。

声明:本文由入驻焦点开放平台的作者撰写,除焦点官方账号外,观点仅代表作者本人,不代表焦点立场。
