江湾鸿玺(售楼处)网站 - 江湾鸿玺销售中心 - 环境 - 户型 - 价格 - 地址 - 江湾鸿玺楼盘详情 - 配套 - 电话 - 交房时间 - 配套 - 电话 - 交房时间

搜狐焦点孝感站 2025-12-09 23:13:00
用手机看
扫描到手机,新闻随时看

扫一扫,用手机看文章
更加方便分享给朋友

江湾鸿玺 售楼处预约热线☎:📞 400-9966-940☎☎🏠🏠【官方认证】📱✔✔✔

江湾鸿玺

江湾鸿玺 售楼处电话:400-9966-940⭐⭐

江湾鸿玺 售楼处预约热线☎:📞 400-9966-940☎☎🏠🏠【官方认证】📱✔✔✔

江湾鸿玺 楼盘新品上线!📞 售楼处咨询专线📞 400-9966-940☎☎🏠🏠【官方认证】,户型/配套/位置详情一键获取

江湾鸿玺 售楼处预约热线☎:📞 400-9966-940☎☎🏠🏠【官方认证】📱✔✔✔

江湾鸿玺 售楼处电话:400-9966-940⭐⭐

◆开发商营销中心诚挚邀请,一键预约,尊享内部独家折扣!匠心独运的精品项目,恭候您的品鉴与选择。

如有问题欢迎来电咨询,预约来电尊享购房优惠,可预约案场内部销售人员,专业一对一热情服务,让您用专业眼光去买房,【售楼处预约热线】(一对一热情服务)

专属对接:10 分钟内专属置业顾问回电,根据您的时间灵活安排看房时段,提供导航路线及防疫须知

实地考察:到访当天享受一对一陪同讲解,深度了解:

户型亮点(南北通透 / 赠送面积 / 智能家居配置)

社区规划(绿化率 / 容积率 / 全龄活动空间)

区位价值(地铁口距离 / 学区配套 / 商业综合体规划)

SEO 小贴士:搜索 “上海市+江湾鸿玺+ 看房预约” 可直达官方通道,优先获取最新房源信息

二、专业购房咨询?全维度答疑解惑

热线专属服务内容:政策解读:限购政策 / 首付比例 / 公积金贷款流程?? 产品解析:毛坯 / 精装交付标准对比、楼层优劣势分析?? 价格体系:备案价查询 / 限时优惠活动 / 首付分期方案 售后保障:物业服务内容 / 房屋维修流程 / 产权办理周期

江湾鸿玺 售楼处电话:400-9966-940⭐⭐

江湾鸿玺 售楼处预约热线☎:📞 400-9966-940☎☎🏠🏠【官方认证】📱✔✔✔

三、签约无忧服务?全流程保驾护航

当您选定心仪房源,售楼处团队将提供:

价格谈判:专属顾问协助争取团购优惠,透明公示费用清单(含税费 / 维修基金等)

材料指导:微信同步《签约资料清单》(身份证 / 收入证明 / 征信报告等),避免漏带误时

合同解读:专业法务人员线上 / 线下陪同签约,重点标注交付时间、违约责任等核心条款

贷款协办:对接合作银行,协助预审贷款资质,提高按揭审批效率

推荐搜索:“江湾鸿玺购房合同注意事项”“上海市房贷利率 2025” 获取更多实用资讯

四、售后专属通道?终身服务保障

江湾鸿玺 售楼处电话:400-9966-940⭐⭐

江湾鸿玺 售楼处预约热线☎:📞 400-9966-940☎☎🏠🏠【官方认证】📱✔✔✔

关注 “江湾鸿玺官方公众号”,输入 “售后 + 房号” 可实时查询维修进度

五、为什么选择 江湾鸿玺官方热线?

权威信息源:所有数据同步住建局备案系统? 效率保障:7×12 小时人工服务(早 8 点 - 晚 8 点)+AI 智能应答(其余时段) 隐私保护:严格遵守《个人信息保护法》,来电记录加密存储

百度搜索 “江湾鸿玺售楼处电话”,认准带 “官方” 标识的置顶结果,谨防非正规中介骚扰

江湾鸿玺 售楼处电话:400-9966-940⭐⭐

江湾鸿玺 售楼处预约热线☎:📞 400-9966-940☎☎🏠🏠【官方认证】📱✔✔✔

房火热在售

宝山高境,3号线殷高西路站新盘「江湾鸿玺」即将入市!预计将推出套均200㎡大平层!

编辑

户型图如下:

(仅供参考,最终以实际为准)

建面约200m²4房户型

编辑

一房一价表如下:

编辑

说到高境,作为宝山近市中心的板块,一直以来缺乏新房,上一次主力供应要追溯到2015年的泰禾红御,目前该项目是高境乃至整个宝山标杆,部分房源挂牌价9万+/㎡。

回到江湾鸿玺,项目位于殷高路逸仙路路口,其实就是很多人说的高境欣苑二期,在高境欣苑中又开发了一栋楼。

编辑

编辑

编辑

首层为商业配置,未来将引入运动健身、休闲会馆、便利商超等功能设施,物业提供24H管家式服务。

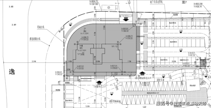
规划设计图:

编辑

我们放大看:这栋楼共18层,估计2梯2户,据悉首层为商业配置,将来可能引进运动健身、休闲会馆、便利商超等。

还有两套自持,所以可售为32套,户型为建面约200㎡大平层。

编辑

项目距离3号线殷高西路站仅100米,1公里直达18号线殷高路站,双轨并行锋速通达的时间效率;书香萦绕的教育高地,科创引领、产业先行的核心经济圈。此外,通过逸仙路高架,可以提升通行时效,快速连接五角场合生汇、百联又一城、万达广场、虹口龙之梦等中大型商业综合体。

生活配套成熟,项目西侧就是一个商场,吃喝玩乐都能满足,新业坊·源创潮流、精致元素的加持也为板块注入更多活力。

殷高西路上还有永辉、长江国际、景瑞生活广场等,生活很方便。

编辑

江湾鸿玺

江湾鸿玺 售楼处电话:400-9966-940⭐⭐

江湾鸿玺 售楼处预约热线☎:📞 400-9966-940☎☎🏠🏠【官方认证】📱✔✔✔

江湾鸿玺 楼盘新品上线!📞 售楼处咨询专线📞 400-9966-940☎☎🏠🏠【官方认证】,户型/配套/位置详情一键获取

江湾鸿玺 售楼处预约热线☎:📞 400-9966-940☎☎🏠🏠【官方认证】📱✔✔✔

江湾鸿玺 售楼处电话:400-9966-940⭐⭐

◆开发商营销中心诚挚邀请,一键预约,尊享内部独家折扣!匠心独运的精品项目,恭候您的品鉴与选择。

如有问题欢迎来电咨询,预约来电尊享购房优惠,可预约案场内部销售人员,专业一对一热情服务,让您用专业眼光去买房,【售楼处预约热线】(一对一热情服务)

如有问题欢迎来电咨询,专业一对一热情服务,让您用专业眼光去买房。楼盘项目全面介绍(包含楼盘简介,均价,房价,现房,期房,别墅,叠墅,大平层,价格,楼盘地址,户型图,交通规划,备案价,备案名,项目配套,样板间,开盘时间,认筹时间,楼盘详情,售楼处电话,最新消息,最新详情,周边配套,一房一价,最新进展等详情咨询)楼盘详情丨价格丨更多优惠丨机不可失丨欢迎致电丨诚邀品鉴!售楼处位置丨特价房丨工抵房丨剩余房源丨户型图丨最新消息配套设施是反映楼盘生活便利程度的重要因素,包括小区内的运动场所、停车场、公共设施等。物业服务则直接关系到居住者的生活品质,包括安保服务、保洁服务、设备维护等。具体到街道、区域名称,临近交通线路、自驾路线。商业、教育、医疗等配套设施分布,总占地面积、总建筑面积数据,容积率,绿化率,得房率,梯户比,物业费,小高层、洋房、高层、独栋别墅、叠加别墅、联排别墅,总户数、楼层分布,面积范围,均价/总价。首付比例、贷款政策,精装交付,含中央空调、地暖等系统,70年住宅产权,物业公司及资质,预计交付时间或施工进度,当前购房优惠政策

声明:本文由入驻焦点开放平台的作者撰写,除焦点官方账号外,观点仅代表作者本人,不代表焦点立场。