众禾嘉苑(售楼处)首页网站-众禾嘉苑营销中心-众禾嘉苑欢迎您-楼盘详情-最新价格-户型图-容积率
扫描到手机,新闻随时看
扫一扫,用手机看文章
更加方便分享给朋友
众禾嘉苑预约热线☎:400-8080-420✅✅
众禾嘉苑预约热线☎:400-8080-420✅✅
嘉定复华园区嘉闵线地铁口
嘉戬公路站旁全新住宅
加推建面约94-122㎡3房
均价43866元/㎡总价约340万起
无需积分可直接认购
众禾嘉苑预约热线☎:400-8080-420✅✅
样板房开放中
项目线上预约看房
请务必报名后静待销售电话确认,确认后再行前往现场!仅预约客户可进入销售现场,感谢您的理解和支持!
项目基础信息
「众禾嘉苑」即2022年二批次土拍地块嘉定区马陆镇嘉定新城JDC10502单元(复华园区)02-01地块,项目由大众以12.4亿元总价竞得,楼板价22364元/㎡,溢价率9.09%。房地联动价4.37万/㎡。

众禾嘉苑预约热线☎:400-8080-420✅✅
区位示意图
根据设计方案显示,两块地共计规划8栋14-18F高层住宅,规划住宅套数570套。
众禾嘉苑预约热线☎:400-8080-420✅✅
众禾嘉苑预约热线☎:400-8080-420✅✅
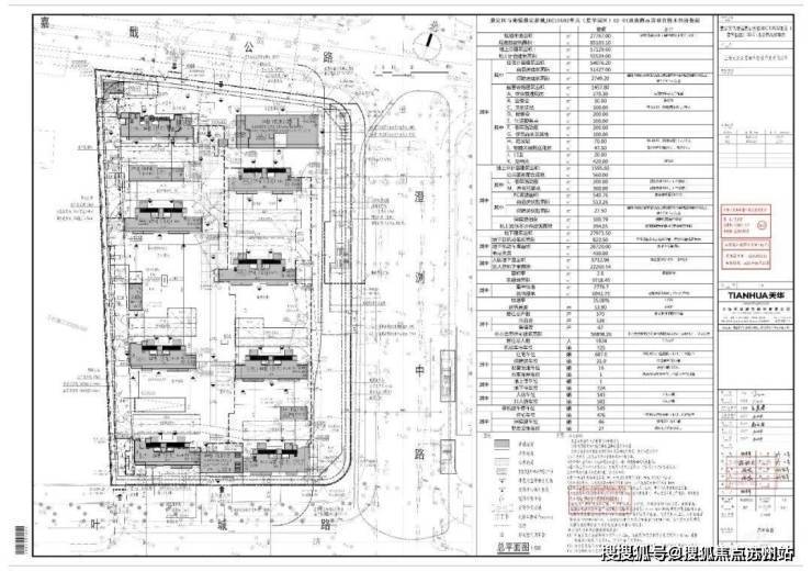
本项目拟建2层配套设施2栋,14层住宅楼1栋,17层住宅楼1栋,18层住宅楼6栋。总建筑总建面85103.1㎡,其中计容建筑面积55534㎡,容积率2.0;共570户。
众禾嘉苑预约热线☎:400-8080-420✅✅
总平面图
众禾嘉苑预约热线☎:400-8080-420✅✅
技术经济指标图

众禾嘉苑预约热线☎:400-8080-420✅✅
效果图
去年11月23日上午,大众房产嘉定复华园区商品房项目开工仪式在工地现场隆重举行。
众禾嘉苑预约热线☎:400-8080-420✅✅
众禾嘉苑预约热线☎:400-8080-420✅✅
众禾嘉苑项目由8幢14-18层的小高层及1幢2层的邻里中心组成,规划商品房528户,规划车位725个,共有地下二层车位,采用全人车分流的设计。

众禾嘉苑预约热线☎:400-8080-420✅✅
众禾嘉苑预约热线☎:400-8080-420✅✅
众禾嘉苑采用围合式布局设计,社区四至形成有效的社区边界,创造最大约59米楼间距,户户推窗见景。

众禾嘉苑预约热线☎:400-8080-420✅✅
众禾嘉苑采用经典的中轴对称设计手法,社区内以中央景观轴+中央景观花园为核心,规划“一轴、一心、一环、五园”的景观布局,打造了美学会客厅,阳光大草坪,下沉式书吧、环形跑道和五个楼幢景观花园等多个主题景观组团,打造社区人性化、景观功能化、配套全龄化的全维度生态住宅。

众禾嘉苑预约热线☎:400-8080-420✅✅
众禾嘉苑充分延续江南民居的传统,采用五进式归家礼序,在社区主入口打造星级酒店感归家体验,整个社区通过“入口礼仪门厅→迎宾文化空间→中央景观花园→漂浮会客厅→景观入户大堂/地下大堂”的五进式院落归家空间,使业主归家路充满仪式感。

众禾嘉苑预约热线☎:400-8080-420✅✅
众禾嘉苑主力建面约94-122㎡精装3房,户型以LDKB一体化特色设计,不仅通风、采光俱佳,还更加明亮开放,动线更加合理。
值得一提的是,项目在装修方面臻选国内外知名家装品牌,打造出价格超配的全系精装配置。
众禾嘉苑预约热线☎:400-8080-420✅✅
项目推售详情
最新消息:嘉定复华园区嘉闵线地铁口嘉戬公路站旁全新住宅【众禾嘉苑】推出528套全部房源,建面约94—122㎡精装3房,均价43866元/㎡,已经开盘,可直接认购。
众禾嘉苑预约热线☎:400-8080-420✅✅
最新户型图如下:

众禾嘉苑预约热线☎:400-8080-420✅✅
众禾嘉苑预约热线☎:400-8080-420✅✅
众禾嘉苑预约热线☎:400-8080-420✅✅
众禾嘉苑预约热线☎:400-8080-420✅✅

众禾嘉苑预约热线☎:400-8080-420✅✅
建面约103㎡3房2厅2卫样板间▼
项目周边配套
商业方面:项目大约400米处就可到达嘉乐·东润广场,约1公里处还有百联嘉定购物中心,满足居民日常生活需求。

众禾嘉苑预约热线☎:400-8080-420✅✅
学校方面:项目周边大约1公里范围内有嘉定区新成路小学、嘉定区成佳学校,基础教育有保障。
并且项目西侧为教育规划用地,学校规划用地面积约32581㎡,建筑高度不超过24米,总建筑面积约45000㎡,须满足28班完全中学的办学规模要求(完全中学,就是指一所学校含初中部和高中部)。
底图源于上海购房通
众禾嘉苑预约热线☎:400-8080-420✅✅

众禾嘉苑预约热线☎:400-8080-420✅✅
其他配套:项目地块周边小区众多,生活氛围较好,距离嘉定体育中心400米,迎园医院等配套。
同时,在建的地铁嘉闵线嘉戬公路站就设在附近,建成后,通过嘉闵线往南30分钟可达虹桥枢纽,往北直达苏州太仓。
众禾嘉苑一房一价表
「众禾嘉苑」
声明:本文由入驻焦点开放平台的作者撰写,除焦点官方账号外,观点仅代表作者本人,不代表焦点立场。
