信达信安里售楼中心首页网站(上海静安)信达信安里户型配套-2025年最新楼盘测评
扫描到手机,新闻随时看
扫一扫,用手机看文章
更加方便分享给朋友
老静安内环内曹家渡板块「✅✅信达信安里售楼处电话:400 - 1010 - 064✅✅」建面约280-525㎡别墅「✅✅信达信安里售楼处电话:400 - 1010 - 064✅✅」
「✅✅信达信安里售楼处电话:400 - 1010 - 064✅✅」
2022年6月,静安区人民政府官宣了曹家渡社区C050301单元4-3b地块的出让公告。

最终,上海信达银泰置业有限公司(信达)作为静安区曹家渡社区C050301单元4-3b地块的开发建设实施主体,该地块形成“净地”后实施出让。信达拿地的价格在21.08亿元,折合楼板价约为81484元/㎡,叠加税费、保障房之后,综合楼板成本还要更高。
信达曹家渡项目(曹家渡社区C050301单元4-3b地块)设计方案公示!同时曝光了户型图,拟建16幢住宅!包括15栋2层住宅,1栋7-18层住宅(包含保障房)及配套用房。建面约30-66㎡一房,约442-520㎡别墅待入市!

「✅✅信达信安里售楼处电话:400 - 1010 - 064✅✅」同时,还涉及历史风貌保护建筑。根据规划建设要求,地块内肌理保护范围占比不小于51.5%,肌理保护范围的用地面积不少于5332平方米,其具体边界和占地规模以建设项目规划管理阶段审定的方案为准。

「✅✅信达信安里售楼处电话:400 - 1010 - 064✅✅」项目由一栋18层高层建筑,十五栋低层石库门风貌的建筑以及一栋配套用房组成,地下为地下三层。




「✅✅信达信安里售楼处电话:400 - 1010 - 064✅✅」
户型图:(仅供参考,以开发商正式公示为准)

「✅✅信达信安里售楼处电话:400 - 1010 - 064✅✅」
建面约100m²2房2厅1卫

「✅✅信达信安里售楼处电话:400 - 1010 - 064✅✅」这个项目的户型图不管是高层还是低层大面积别墅都是特别的多,好了,然后让我们来看看部分阔绰空间别墅产品的网传户型图,先上2号楼:
2号楼别墅东边套



「✅✅信达信安里售楼处电话:400 - 1010 - 064✅✅」小区的2号楼别墅为双拼,东边套为地上1-2层外加阁楼。建造风格应该也是新里弄的石库门样式了,看看下面的剖面图就知道了:
2号楼别墅剖面图


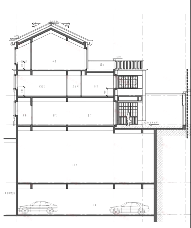
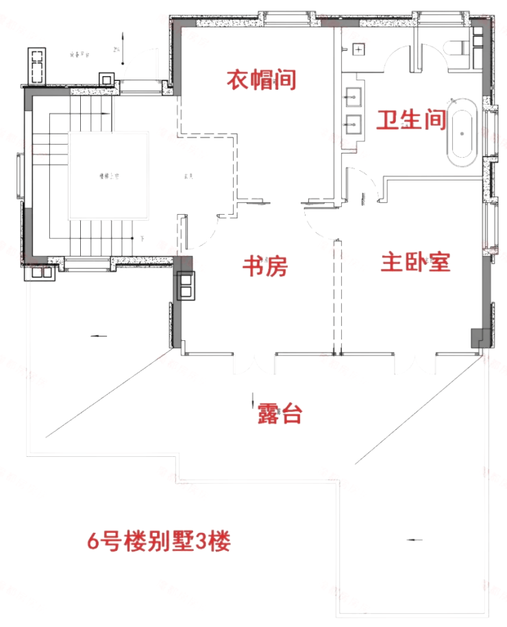
然后来看看6号楼别墅产品:
6号楼别墅



「✅✅信达信安里售楼处电话:400 - 1010 - 064✅✅」「✅✅信达信安里售楼处电话:400 - 1010 - 064✅✅」
6号楼比较特别,是相对比较独立的类独栋了,标准地上3层,看看它的立剖面图:

交通配套:项目地块位于静安历史风貌区内,约1KM范围内有2/7/11/13/14号线,分布武宁路、昌平路、隆德路、静安寺等市中心地铁站。
商业配套:项目周边有静安嘉里中心、恒隆广场、兴业太古汇、芮欧百货、张园、环球世界大厦、889广场等奢华地标林立。
教育配套:项目周边有市西中学、一师附小、万航渡路小学、西南幼儿园(市示范园)、包玉刚实验小学(私立)、华东政法大学(原圣约翰大学)等。
医疗配套:项目周边有:华山医院、上海市儿童医院、第一妇幼保健院、华东医院。
「✅✅信达信安里售楼处电话:400 - 1010 - 064✅✅」
声明:本文由入驻焦点开放平台的作者撰写,除焦点官方账号外,观点仅代表作者本人,不代表焦点立场。
