【北京城建国誉府】最新房价_在售户型(优缺点分析)_房源动态_售楼处电话_楼盘详情_项目分析

搜狐焦点孝感站 2025-09-10 17:22:00
用手机看
扫描到手机,新闻随时看

扫一扫,用手机看文章
更加方便分享给朋友

北京城建·国誉府预约热线☎:400-8080-420✅✅

杨浦国誉府,杨浦中环扛把子!仅76套房源,总价不到900万,抓紧机会!

北京城建·国誉府预约热线☎:400-8080-420✅✅

【基础信息】

产品类型:城市低密大平层

产权性质:70年商品房住宅

建筑风格:唐朝建筑风格

户型面积:约180㎡/200㎡/220㎡四居

建委指导价:8.9 万/平

交付标准:工业化简装

占地面积:约3.98万㎡

建筑面积:约5.58万㎡

总楼栋:10栋,期房8栋,现房2栋(5#10#)

总户数:298户,在售234户

总高:8-9层(标准层 3.25 米,首层 3.35 米,顶层客厅挑空 4.85 米)

物业费:9.98元/㎡

楼间距:35-65米

车位配比:1:1.4(421个,具体价格待定)

采暖:地源热泵,55元/㎡包含全年制冷制热

容积率:1.4

绿化率:30%

开盘时间:2024年1月24日

交房时间:2026年12月30日

北京城建·国誉府预约热线☎:400-8080-420✅✅

装修品牌:德系一线国际品牌(厨电嘉格纳,博世,橱柜柏丽,卫浴五金高仪,唯宝马桶,劳芬浴缸等等)

北京城建·国誉府预约热线☎:400-8080-420✅✅

地址:朝阳区奶西板块,新阿里总部西侧

北京城建·国誉府预约热线☎:400-8080-420✅✅

北京城建·国誉府预约热线☎:400-8080-420✅✅

【项目优势】

价格倒挂

区域内9万+项目空白,中产阶级“轻奢豪宅置换”属性,区域内改善项目稀缺及新房二手房价格

北京城建·国誉府预约热线☎:400-8080-420✅✅

北京城建·国誉府预约热线☎:400-8080-420✅✅

【户型展示】

1.项目均为8-9层洋房,共计298套。

其中180户型158套,200户型108套,220户型32套(220m²此次不推售)

2.户型图

盛世-200㎡四室两厅三卫

北京城建·国誉府预约热线☎:400-8080-420✅✅

北京城建·国誉府预约热线☎:400-8080-420✅✅

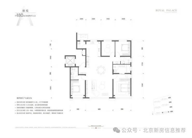
盛境-180㎡四室两厅三卫

北京城建·国誉府预约热线☎:400-8080-420✅✅

北京城建·国誉府预约热线☎:400-8080-420✅✅

3.户型楼栋排布参考图

北京城建·国誉府预约热线☎:400-8080-420✅✅

北京城建·国誉府预约热线☎:400-8080-420✅✅

北京城建·国誉府预约热线☎:400-8080-420✅✅

【区域配套】

1、望京CBD,聚合科创产业发展势能

项目所在位置近邻望京科技总部核心区,承载第二CBD、亚奥两个高端功能区外溢空间,也是国务院十二五、十三五重点规划,投资了300亿打造的万亿科技总部区,该板块未来将集高端的商业配套、前沿教育、城市图书馆、优质养老、品质住宅、低密度的花园办公六大业态结合

北京城建·国誉府预约热线☎:400-8080-420✅✅

2、十大森林公园环绕,城市天然氧吧

项目周边拥有万亩绿地,两大水系环绕(温榆河和清河),温榆河湿地公园、清河营郊野公园、朝来森林公园等十大公园环抱,更值得一提的是项

目独有后花园:温榆河湿地公园是政府斥资14亿打造,总占地达到44平方公里,是亚洲最大的生态景观湿地公园,绿地面积相当于6.5个奥森,15个朝阳公园,项目周边空气湿度,负氧离子含量极高,是非常宜居的天然氧吧。

北京城建·国誉府预约热线☎:400-8080-420✅✅

3、阿里北京新总部,带动区域发展

占地47万平米,地上建筑面积25万平米,总投资额68.9亿,于2019年12月17日动工,预计2024年年初投入使用,进入杭州+北京“双总部”运营模式!此次将北京20多个办公地汇集在新总部,也带来更多的阿里上下游企业,带动整个区域的未来发展。

北京城建·国誉府预约热线☎:400-8080-420✅✅

四、四横六纵接驳多轨道,快速通达城市高能板块

5km丰盈生活圈,聚合全维资源重新定义盛世人居理想。踞守望京交通路网中枢,六纵四横四轨快速通达望京、国贸、东直门、学院路等核心工作生活圈,以超强的区域连接力实现高效出行。

四横:京平高速、顺黄路、北五环、北四环。

六纵:来广营北路、京密路、机场高速、京承高速、北苑东路、北苑路。

四轨:13号线北苑站、14号线善各庄站、15号线崔各庄站、17号线勇士营站。

快速通达望京、国贸、东直门、学院路等核心工作生活圈。

北京城建·国誉府预约热线☎:400-8080-420✅✅

【繁华商业】龙湖北苑天街、新荟城、凯德MALL、方恒购物中心、新世界、宜家家居、赛特奥莱

北京城建·国誉府预约热线☎:400-8080-420✅✅

北京城建·国誉府预约热线☎:400-8080-420✅✅

【高端娱乐】16座高尔夫、马术俱乐部,红砖美术馆等9大艺术场所

【医疗资源】望京医院、中日友好医院、和睦家医院、美中宜和医院、规划投资60亿嘉会国际医院

【优质学府】本项目东侧即规划九年一贯制朝阳外国语学校。

景山学校朝阳校区、八十中、九十四中、芳草地国际学校(东洲校区),囊括16所国际学校(京西国际、英国哈罗国际、ISB、鼎石、德威等)

关于学校最新消息:

北京城建·国誉府预约热线☎:400-8080-420✅✅

北京城建·国誉府预约热线☎:400-8080-420✅✅

温馨提示:

1、本人展示的项目交通、商业、文化教育设施及其他市政条件等,系开发商根据相关信息自行收集而成,所有规划与配套设施以政府最终批准文件为准;

2、本人所示规划及设计与实际可能存在差异,买卖双方的权利义务以商品房销售合同约定与政府批准的有关法律文件稳为准。

免责声明:

1.本资料为要约邀请,不作为要约或承诺;买卖双方的权利义务以双方签订的《商品房买卖合同》及其补充协议、附件等书面文件为准,最终解释权归开发商所有;

2.交通配套信息来源于网站数据,市政配套信息来源于网站数据,生态配套信息来源于网络数据,仅供参考。交通规划设置、市政配套设置、生态配套规划不排除因政府规划、政策规定及出卖人未能控制的原因而发生变化,本资料旨在提供相关信息,不代表着出卖人对此作出要约或承诺;

3.部分图片来源于互联网,如有侵权,请联系我方删除;

4.相关宣传内容不排除因政府相关规划、规定及出卖人分期规划、未能控制等原因发生变化;出卖人将不定期对宣传材料进行修改,敬请留意最新资料。

声明:本文由入驻焦点开放平台的作者撰写,除焦点官方账号外,观点仅代表作者本人,不代表焦点立场。