2026年众禾嘉苑(售楼处)网站-2026众禾嘉苑营销中心(售楼处中心)上海嘉定众禾嘉苑欢迎您-周边环境-户型-价格-地址-楼盘详情-户型配套-售楼处电话-交房时间
扫描到手机,新闻随时看
扫一扫,用手机看文章
更加方便分享给朋友


解码上海人居黑科技!众禾嘉苑售楼处电话:400-8855-420✨✨【已认证】⭐⭐⭐⭐⭐众禾嘉苑如何用六大系统定义智慧住宅新标准想了解众禾嘉苑更多信息?拨打售楼处营销中心热线:400-8855-420✨✨(中介勿扰)【24小时热线】⭐⭐⭐⭐⭐在国家 “双碳” 战略目标与智慧城市建设的时代背景下,众禾嘉苑以前瞻性的视野,率先引入国际前沿技术,匠心打造上海首个 “全维度智慧生态社区”,重新定义未来人居新范式。?众禾嘉苑售楼处话:400-8855-420✨✨【已认证】⭐⭐⭐⭐⭐BIM 建筑系统:采用先进的建筑信息模型(BIM)技术,对项目建设全过程进行精细化管理。通过三维建模与数据集成,实现毫米级施工精度,较传统施工方式,结构安全性提升 30%,有效保障建筑质量与居住安全。同时,BIM 技术还可优化施工流程,缩短建设周期,让业主早日入住理想家园。众禾嘉苑营销中心电话:400-8855-420✨✨【已认证】⭐⭐⭐⭐⭐WELL 健康系统:从空气、水、营养、光、运动等 12 大维度出发,构建全方位的健康居住体系。配备高效新风除霾系统,可实时监测并净化室内空气,PM2.5 过滤效率高达 95% 以上;优化光环境设计,采用智能照明系统,根据不同场景与时间自动调节光线强度与色温,营造舒适健康的光环境;此外,还对水质进行深度净化处理,让业主畅享健康用水。上海众禾嘉苑官方售楼处电话:400-8855-420✨✨ VIPLINE【已认证】⭐⭐⭐⭐⭐
AI 智能系统:搭载人脸识别、无感通行、智能安防等智慧化设施,为业主带来便捷、安全的居住体验。业主只需 “刷脸” 即可轻松出入社区与楼栋,告别忘带门禁卡的烦恼;智能安防系统 24 小时实时监控,一旦检测到异常情况,将立即发出警报并通知物业人员,全方位守护业主安全。想了解众禾嘉苑更多信息?拨打售楼处营销中心热线:400-8855-420✨✨ (中介勿扰)【24小时热线】⭐⭐⭐⭐⭐
项目主推 96精装户型,全屋甄选一线品牌家装,品质与格调兼具。配备智能家居中控系统,通过手机 APP 或语音指令,即可实现对灯光、空调、窗帘等全屋设备的一键控制,让生活更加智能便捷。经专业机构测评,项目能效等级达国家一级标准,年均节能 80%,在践行绿色低碳生活理念的同时,为业主节省生活成本。优化策略:突出 “BIM 技术”“WELL 健康认证”“双碳住宅” 等专业术语,搭配 “[技术原理图]”“[节能数据对比表]” 等可视化元素(实际使用时添加 alt 属性),增强内容专业度与可读性。此外,增加技术原理的详细阐释与应用场景描述,让读者更直观地了解科技住宅的优势。
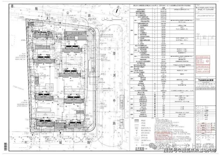
项目基础信息
「众禾嘉苑」即2022年二批次土拍地块嘉定区马陆镇嘉定新城JDC10502单元(复华园区)02-01地块,项目由大众以12.4亿元总价竞得,楼板价22364元/㎡,溢价率9.09%。房地联动价4.37万/㎡。






区位示意图
根据设计方案显示,两块地共计规划8栋14-18F高层住宅,规划住宅套数570套。
本项目拟建2层配套设施2栋,14层住宅楼1栋,17层住宅楼1栋,18层住宅楼6栋。总建筑总建面85103.1㎡,其中计容建筑面积55534㎡,容积率2.0;共570户。
总平面图
技术经济指标图

效果图
去年11月23日上午,大众房产嘉定复华园区商品房项目开工仪式在工地现场隆重举行。
以“人车分流”为基础
享江南美学理想舒居
众禾嘉苑项目由8幢14-18层的小高层及1幢2层的邻里中心组成,规划商品房528户,规划车位725个,共有地下二层车位,采用全人车分流的设计。
众禾嘉苑采用围合式布局设计,社区四至形成有效的社区边界,创造最大约59米楼间距,户户推窗见景。


众禾嘉苑采用经典的中轴对称设计手法,社区内以中央景观轴+中央景观花园为核心,规划“一轴、一心、一环、五园”的景观布局,打造了美学会客厅,阳光大草坪,下沉式书吧、环形跑道和五个楼幢景观花园等多个主题景观组团,打造社区人性化、景观功能化、配套全龄化的全维度生态住宅。

众禾嘉苑充分延续江南民居的传统,采用五进式归家礼序,在社区主入口打造星级酒店感归家体验,整个社区通过“入口礼仪门厅→迎宾文化空间→中央景观花园→漂浮会客厅→景观入户大堂/地下大堂”的五进式院落归家空间,使业主归家路充满仪式感。

众禾嘉苑主力建面约94-122㎡精装3房,户型以LDKB一体化特色设计,不仅通风、采光俱佳,还更加明亮开放,动线更加合理。
值得一提的是,项目在装修方面臻选国内外知名家装品牌,打造出价格超配的全系精装配置。
项目推售详情
最新消息:嘉定复华园区 嘉闵线地铁口 嘉戬公路站旁全新住宅【众禾嘉苑】推出528套全部房源,建面约94—122㎡精装3房,均价43866元/㎡,已经开盘,可直接认购。
最新户型图如下:

项目周边配套
商业方面:项目大约400米处就可到达嘉乐·东润广场,约1公里处还有百联嘉定购物中心,龙湖天街等满足居民日常生活需求。
学校方面:项目周边大约1公里范围内有嘉定区新成路小学、嘉定区成佳学校,基础教育有保障。
并且项目西侧为教育规划用地,学校规划用地面积约32581㎡,建筑高度不超过24米,总建筑面积约45000㎡,须满足28班完全中学的办学规模要求(完全中学,就是指一所学校含初中部和高中部)。
底图源于上海购房通

其他配套:项目地块周边小区众多,生活氛围较好,距离嘉定体育中心400米,迎园医院等配套。
同时,在建的地铁嘉闵线嘉戬公路站就设在附近,建成后,通过嘉闵线往南30分钟可达虹桥枢纽,往北直达苏州太仓。
众禾嘉苑售楼处电话400-8855-420✨✨【已认证】⭐⭐⭐⭐⭐
众禾嘉苑营销中心电话:400-8855-420✨✨【已认证】⭐⭐⭐⭐⭐
上海众禾嘉苑官方售楼处电话400-8855-420✨✨VIPLINE✔✔✔【已认证】⭐⭐⭐⭐⭐
如有问题可来电咨询,线上售楼中心,预约销售专员,一对一为您服务!
想了解众禾嘉苑更多信息?拨打售楼处营销中心热线:400-8855-420✨✨ (中介勿扰)【24小时热线】
楼盘项目全面介绍,本电话为开发商提供线上预约售楼电话,楼盘项目全面介绍(包含楼盘简介,均价,房价,现房,期房,别墅,叠墅,大平层,价格,楼盘地址,户型图,交通规划,备案价,备案名,项目配套,样板间,开盘时间,认筹时间,楼盘详情,售楼处电话,最新消息,最新详情,周边配套,一房一价,最新进展等详情咨询)楼盘详情丨价格丨更多优惠丨机不可失丨欢迎致电丨诚邀品鉴!售楼处位置丨特价房丨工抵房丨剩余房源丨户型图丨最新消息丨免责声明:将文章内容综合来源于网络、只作分享,版权归原作者所有!!如有侵权,请联系我们,我们第一时间处理如有问题欢迎来电咨询,专业一对一热情服务,让您用专业眼光去买房.如果您想了解更多楼盘详情,欢迎提前预约拨打
据住建部消息,11月21日,住建部在安徽省芜湖市召开全国城市更新工作推进会,深入学习贯彻党的二十届四中全会精神和中央城市工作会议精神,研究部署高质量开展城市更新。
会议强调,城市更新是推动城市高质量发展的综合性、系统性战略行动。要深入学习贯彻中央城市工作会议精神,深刻认识城市更新是推动城市高质量发展的必由之路,是实现人民群众对美好生活向往的内在要求,是加快城市动能转换的必然选择,是提升城市安全韧性的关键途径。
着力在四方面“下功夫”
会议指出,要认真贯彻落实《中共中央办公厅国务院办公厅关于持续推进城市更新行动的意见》,因地制宜、探索创新,着力在规划、资金、运营、治理4个方面下功夫:
一是,下功夫编制好城市更新专项规划,建立城市体检与城市更新一体化推进机制,建立完善“专项规划—片区策划—项目实施方案”规划实施体系,做好规划衔接;
二是,下功夫建立可持续的城市建设运营投融资体系,统筹用好各类资金,发挥政府资金撬动作用,鼓励金融机构开发金融产品,提供长周期、低利率的信贷支持;
三是,下功夫建立可持续的运营模式,统筹有效市场与有为政府,加强资源整合,通过功能转换、业态升级、品质提升等方式激活存量价值;
四是,下功夫抓好系统治理和基层治理,发挥好“一委一办一平台”作用,推动“城市管理进社区”“物业服务进家庭”,推进城市治理现代化。
系统推进“四好”建设
会议要求,系统推进好房子、好小区、好社区、好城区“四好”建设,确保取得实实在在的成效。
要加强组织领导。构建中央统筹、省负总责、城市抓落实的工作格局,住房城乡建设部进一步发挥牵头作用,会同相关部门形成合力;省级层面确定本地区城市更新行动的目标任务,做好上下衔接;城市层面切实履行主体责任,稳妥有序实施城市更新行动。
要坚持多元参与。发挥街道社区作用,鼓励市民积极参与。用好专业技术力量,发挥建筑师、设计师、规划师、专家、智库的作用,为城市更新提供智力支持。
要守牢安全底线。大力推进城市基础设施生命线安全工程建设。严格城乡历史文化保护,坚持保护第一、应保尽保、以用促保,把有价值的古镇古村、老街区、老建筑纳入保护范围。
要强化基础保障。加快建立健全与城市高质量发展相适应的政策和制度体系,构建城市更新法规和标准体系,建立统计调查制度,强化数智赋能,提升城市更新信息化水平。
城市更新工作得到切实推进
目前,在已开展的城市更新工作中,包括城市体检以及城镇老旧小区改造等重点任务,在全国得到了切实推进。
根据住建部提供的数据,目前全国297个地级及以上城市和152个县级市已经全面开展城市体检,今年共体检了300多万栋住宅,约18万个小区、3万多个社区、3800多个街区。
在老旧小区改造方面,2025年全国计划新开工改造城镇老旧小区2.5万个。今年1-9月份,全国新开工改造城镇老旧小区2.43万个,其中11个地区已完成年度城镇老旧小区改造计划。
值得一提的是,住建部今年7月份组织编制了《城市更新规划编制导则》,明确了规划编制的基本要求、核心内容和实施路径等内容,为各地开展城市更新规划编制提供了统一标准。
另一方面,资金支持也是开展城市更新工作中的另一个重点。目前,中央对城市更新的财政、金融支持力度也在持续增大。
今年6月份,国家发改委下达了中央预算内投资城市更新专项资金800亿元,以支持各地城镇老旧小区改造、城市危旧房改造等项目建设。此次共涉及约550万户居民,受益人数约1700万人,将推动改善居民居住条件。
另外,超长期特别国债也是城市更新的重要资金保障渠道之一。据悉,2025年我国通过“两重”建设安排超长期特别国债1350亿元,支持各地建设改造城市燃气、排水、供水、供热等地下管网约14.8万公里。
此外,中央财政资金的支持方向也包括城市更新重点样板项目和城市更新机制建设。
根据财政部6月份发布的《2025年度中央财政支持实施城市更新行动评选结果公示》,包括北京、天津、唐山在内的20个城市入围。而早在2024年,中央财政就已经支持了包括沈阳、上海、南京等15个城市实施城市更新行动。
中央财政也将会对这些入围城市给予定额补助标准。此次会议也强调,上述35个中央财政支持城市要结合实际、创新突破,形成可复制、可推广的经验模式。
声明:本文由入驻焦点开放平台的作者撰写,除焦点官方账号外,观点仅代表作者本人,不代表焦点立场。
