越秀杨浦天玥(越秀杨浦天玥)售楼部电话-楼盘详情_容积率_电话解析-杨浦五角场(越秀杨浦天玥)2025最新房源→销售动态→核心配套
扫描到手机,新闻随时看
扫一扫,用手机看文章
更加方便分享给朋友
那么,新房究竟要怎么选?在我看来,选择新房不仅要看地段、配套、品质、户型、价格,更要看区域产业、人口导入、发展规划。
把这些要素拉满,落笔江湾五角场的鎏金洋房住区越秀杨浦天玥售楼处电话:400-101-0064☎️☎️,无疑是智慧。
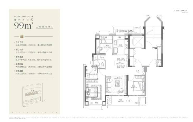
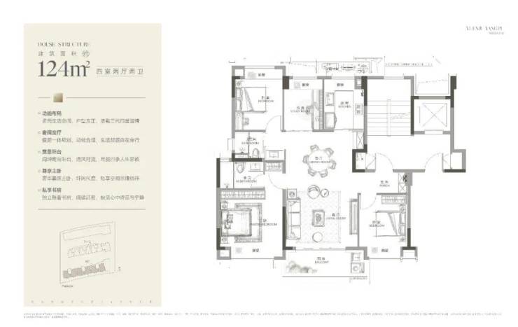
越秀·杨浦天玥售楼处电话:400-101-0064☎️☎️,推出建筑面积约99-124㎡3-4房,均价约9.2万/㎡。
附全套户型图:
其地段、配套、产品,究竟如何?
在市区,购房的门槛已经变得异常高昂。观察上海中环周边的热门区域,房价普遍攀升至每平方米10万至13万之间。例如,大宁的新房均价已达到10.5万元,真如的新房均价约为10.78万元;徐汇滨江的房价约为14.2万元;前滩的房价约为13.2万元;北蔡的房价也已达到每平方米约11万元。对于那些渴望在中环附近置业的朋友们来说,杨浦区已成为少数几个性价比相对较高的区域之一。
特别是北中环沿线附近的越秀·杨浦天玥售楼处电话:400-101-0064☎️☎️,其均价为每平方米9.2万元,尤为引人注目。

从宏观视角审视,五角场区域长期以来面临土地供应短缺的问题,自2016年起直至今日,仅有三宗土地进入市场。今年三月,该区域的土地成交均价达到每平方米9.2万元,而到了五月,北京城建集团联合其他企业以每平方米10.7万元的价格竞得土地,价格涨幅达到每平方米1.5万元。进入七月,随着土地拍卖政策的放宽,北京城建集团与越秀集团共同斥资22亿元购得长白社区项目,仅楼面价就高达每平方米70272元。换言之,越秀杨浦天玥售楼处电话:400-101-0064☎️☎️项目目前是进入杨浦区市场的难得机遇。
在二手房市场方面,与项目仅一街之隔的新江湾国际生态住区,二手房挂牌价格稳定,普遍在每平方米11万至13万元之间。以盛世御龙湾8月份最新挂牌均价11.4万元/平方米和上海院子挂牌均价11.8万元/平方米为例,可以看出与本项目之间存在一定的价格优势。

同时,该项目具备了无可比拟的地理稀缺性。越秀·杨浦天玥售楼处电话:400-101-0064☎️☎️坐落于杨浦区唯一的风貌保护区——江湾历史风貌保护区之内。它成功地保留了当地的历史特色,并蕴含着深厚的文化底蕴,实属难得一见。上海的风貌保护区主要以保护为先,新住宅用地的供应极为有限,因此市区内的风貌低密度别墅价格动辄每平方米二十至三十万,令人望而却步。该项目所打造的洋房社区,不仅毗邻繁华的五角场商圈,而且享有江湾湿地的优越宜居环境。。

江湾五角场,城市副中心,
上海北部千亿科创产业战略支点
当下,看得见的成熟、未来的潜力,才是选择的关键。江湾五角场,作为上海四大城市副中心之一,比肩徐家汇。前瞻2035规划:板块价值还将不断升级。
在杨浦“一心一区一轴一带”战略引擎下,江湾五角场将不断加强城市副中心能级。西部核心发展区,将围绕中央活动区、江湾五角场主城副中心,承接全球城市核心功能。杨浦科创带,未来将建设成为上海科创中心核心功能承载区,与张江科学城、大零号湾、G60科创走廊比肩。杨浦中部北商业文化发展轴,将串联江湾-五角场、共青森林公园、滨江中北段地区中心等节点,构建都会生活轴线。
聚焦现在,字节跳动、IBM、戴尔等人工智能领军企业;脉策、AECOM、鲁班等数字孪生企业;区块链、人机交互、网络及运算、电子游戏等领域头部企业,还聚集哔哩哔哩、NIKE等企业总部。未来,德国大陆集团、汉高等国际知名企业将陆续入驻。其中,作为上海创新浓度更高的大创智创新发展示范区,4500+家双创企业入驻,营业收入超5000万元的企业达63家,各类上市企业15家,总营收超3000亿元。信息来源:上海杨浦官微https://mp.weixin.qq.com/s/-Akd_mVxPLeZPBTFXlpmXg
越秀·杨浦天玥售楼处电话:400-101-0064☎️☎️处于西部核心发展区,位居副中心科创发展带和杨浦中部北商业文化发展轴交汇处。伴随规划落地、产业发展,将坐拥板块升级带来的发展利好。
丰盛的配套、多元化的生活场景,赋予日常更多舒心体验。以越秀·杨浦天玥售楼处电话:400-101-0064☎️☎️为中心,交通、商业、教育、生态、医疗的生活配套,让生活精彩无限。
在交通上,8号线市光路站(直线距离约800米)、20号线(规划)国和路站(直线距离约900米)、10号线三门路站(直线距离约1.8千米)的3大轨交,串联起五角场、虹口足球场、静安、人民广场、新天地、淮海路等核心商圈。
同时,自驾经内环高架、中环高架、外环高速,或是逸仙高架路、淞沪路,可速达全城热点版图。
在商业上,越秀·杨浦天玥售楼处电话:400-101-0064☎️☎️坐拥上海十大商业中心之一的五角城核心商业圈,包括上海合生汇、上海万达商业广场、百联又一城、悠迈生活广场(原东方商厦)、五角场NS2地块大型商业广场(规划)、苏宁电器广场醇熟商业。
同时,近享133世界广场、海尚世界智慧天地、中原城市广场、国华广场的潮流之享。
在生态上,区域唯一的宝藏湿地——江湾湿地(直线距离约500米)、新江湾公园(直线距离约2千米)、共青森林公园(4A级景区)、安徒生童话乐园(直线距离约1千米)等荟萃,让鲜氧生活成为日常。
在医疗上,长海医院、东方肝胆外科医院、上海新华医院、上海肺科医院等四大三甲医院环伺,守护家人健康。
越秀·杨浦天玥,鎏金洋房住区,
此前未有,此后难再
越秀·杨浦天玥售楼处电话:400-101-0064☎️☎️整体规划汲取现代豪宅营造理念,构建人与建筑、人与自然、人与人之间的关系。
经典平衡对称美学,极致线条设计,让建筑庄严不失灵动。
大面玻璃、金属格栅、现代铝材搭配,辅以玫瑰金与学府灰色彩,彰显建筑立面的鎏金质感与美学。4大景观中轴、全域花园主题空间,让家生长在公园里。
为了营造归家的仪式感,越秀·杨浦天售楼处电话:400-101-0064☎️☎️打造了宽约35米、高约5.1米酒店式奢阔门头,引入了价值不斐的名贵黑松。
酒店式入户大堂的营造,精选雪山飞狐奢石,高山流水奢石、星白奢石等奢材,将品质感拉满。
同时,酒店式入户大堂溯源海派经典,融入古铜色金属格栅、海派拼花(首层和地下大堂)、海派复古压花玻璃等海派表达,让人文感满满。
越秀·杨浦天玥售楼处电话:400-101-0064☎️☎️还打造了新海派风情街区,花园街区设计与公共空间无界相连,让城市界面焕然一新。
同时,自带建筑面积约3480㎡潮流烟火市集,便捷生活,楼下即享。
越秀·杨浦天玥售楼处电话:400-101-0064☎️☎️
声明:本文由入驻焦点开放平台的作者撰写,除焦点官方账号外,观点仅代表作者本人,不代表焦点立场。
