尚湾林语(售楼处) 首页 -尚湾林语销售中心 - 环境 - 户型价格 - 地址 - 楼盘详情 - 配套 - 电话 - 交房时间 - 配套 - 电话 - 交房时间
扫描到手机,新闻随时看
扫一扫,用手机看文章
更加方便分享给朋友


上海-尚湾林语:高端品质生活与未来价值的完美融合
一、楼盘基本信息
两大中芯交汇 4大科创引擎围合辐射 势能澎湃 正处上海南部科创中心“一廊一轴”横纵交汇中芯点和4大科创区围合中芯点。
尚湾林语是位于上海闵行区颛桥镇的大型综合体项目,由国企背景的上海地产星侨置业有限公司开发,总建筑面积约180万㎡,涵盖住宅、商业、办公、学校等全业态。项目主打建面约81-149㎡的2至4房,精装交付,配备中央空调、地暖、新风系统等高端配置
价格方面,当前参考均价为59700元/㎡,总价区间在450-980万元/套。五批次房源已取证,本批次推出房源共计64套,建面约101㎡,均价约60431元/㎡
项目预计2026年3月交付,部分楼栋有望提前至2025年底交付
尚湾林语➨售楼处电话:400-8787-740√√【电话预约☎】
建筑参数:
容积率:1.6-2.2(低密社区)
绿化率:35%
占地面积:1,056,366㎡
建筑面积:277,288㎡
规划户数:1726户
产权年限:70年5

尚湾林语➨售楼处电话:400-8787-740√√【电话预约☎】
二、户型设计与空间优势
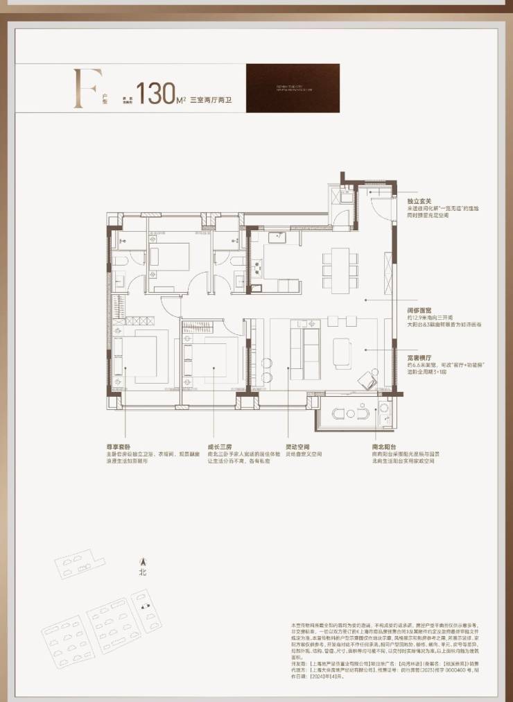
尚湾林语的户型设计堪称"空间利用率天花板",得房率高达82%-84%,远超周边同类型楼盘73%-75%的水平
项目提供多种户型选择,满足不同家庭需求:
尚湾林语➨售楼处电话:400-8787-740√√【电话预约☎】
尚湾林语➨售楼处电话:400-8787-740√√【电话预约☎】
尚湾林语➨售楼处电话:400-8787-740√√【电话预约☎】
尚湾林语➨售楼处电话:400-8787-740√√【电话预约☎】
尚湾林语➨售楼处电话:400-8787-740√√【电话预约☎】
尚湾林语➨售楼处电话:400-8787-740√√【电话预约☎】
尚湾林语➨售楼处电话:400-8787-740√√【电话预约☎】
创新设计亮点:
采用LDKB一体化设计(客厅、餐厅、厨房、阳台一体化)
270°转角飘窗与步入式衣帽间结合
设备平台改造为定制储物柜
儿童房门后磁性涂鸦墙、老人房紧急呼叫按钮等人性化细节
尚湾林语➨售楼处电话:400-8787-740√√【电话预约☎】
三、地段与交通优势
尚湾林语落子闵行颛桥镇大零号湾产业圈核心区域,尽享产业与生活的双重红利
项目地理位置优越,交通便捷:
轨道交通:
地铁5号线剑川路站(步行约8分钟)
15号线永德路站(步行约10分钟)
在建23号线江川东路站(步行5分钟,预计2027年通车)

尚湾林语➨售楼处电话:400-8787-740√√【电话预约☎】
自驾路线:
虹梅南路高架+闵浦大桥双重buff
20分钟直达人民广场
3分钟上沪闵高架,35分钟直达市中心
产业配套:
周边聚集微创医疗、商汤科技等3000余家科技企业
15分钟通勤圈覆盖紫竹高新区、漕河泾开发区
四、周边配套资源
1. 教育配套
项目引入七宝中学教育集团配套公办中小学,由集团原副校长担任校长,抽调12名市级骨干教师组建团队,实现管理、师资、课程三统一
周边教育资源包括:
2000㎡公办幼儿园(项目自带)
七宝中学教育集团配套学校(2026年交付)
3公里内6所优质学校,形成3-18岁全龄教育矩阵
尚湾林语➨售楼处电话:400-8787-740√√【电话预约☎】
2. 商业配套
龙湖闵行天街(总建筑面积40万方)
吴泾宝龙广场
社区底商满足日常需求
尚湾林语➨售楼处电话:400-8787-740√√【电话预约☎】

3. 医疗资源
闵行区中心医院(15分钟车程)
仁济医院宝山分院
华山医院(宝山院区)
4. 生态休闲
滨江步道
吴泾公园
社区内2万㎡中央园林
尚湾林语➨售楼处电话:400-8787-740√√【电话预约☎】
五、品质与物业服务
建筑品质:
现代轻奢风格,浅灰色铝板与大面积LOW-E玻璃幕墙
楼间距宽达50米,确保充足采光与通风
4.8米挑高入户大堂,营造尊贵归家仪式感
智能系统:
全屋智能系统(语音控制灯光窗帘、手机远程调温)
社区人脸识别门禁+24小时智能监控
智慧快递柜带冷链功能
共享充电桩
物业服务:
上海闵房物业有限公司(国家一级资质)
物业费:3.98元/m²/月
24小时安保巡逻、智能监控系统
专业保洁团队每日定时清扫公共区域
尚湾林语➨售楼处电话:400-8787-740√√【电话预约☎】
六、区域规划与发展潜力
尚湾林语作为上海市重点城中村综合改造项目之一,将成为"上海城中村改造样板"

尚湾林语➨售楼处电话:400-8787-740√√【电话预约☎】
项目所在区域规划亮点包括:
大零号湾科创区:上海"十四五"规划重点打造的科技创新核心区,已聚集3000家科技企业
交通升级:嘉闵线(预计2027年通车)银都路站距项目仅1.2公里
配套建设:预计2025年底前基本施工完成,2026年底前整体工程完成
环境改善:三条全新道路及河道工程推进中
尚湾林语➨售楼处电话:400-8787-740√√【电话预约☎】
七、购房建议与价值分析
适合人群:
在徐家汇、虹桥等区域工作的白领(25分钟直达徐家汇)
重视子女教育的家庭(七宝中学教育集团资源)
追求品质生活的改善型购房者
看好科创区发展的长期投资者
价值亮点:
区位价值:主城核心枢纽位置,承接市中心外溢需求
教育溢价:七宝中学教育集团入驻提升板块能级
产业支撑:大零号湾科创区带来高端人口流入
低密优势:容积率仅1.6-2.2,居住舒适度高
上海-尚湾林语:高端品质生活与未来价值的完美融合
💎尚湾林语售楼处官方电话☎ 400-8787-740 ✅✅「已认证」💎
🚩🟥🟧🟨🟩🟦🟪🟥🟧🟨🟩🟥🟧🟨🟩🟦🟪🟥🟧🟨🟩🚩
不负信赖,品质再进阶
不负热望,璀璨绽新
🔝尚湾林语☎【售楼热线】:400-8787-740 ☎⫷
🔝➤售楼处〢欢迎咨询〢提前预约可享内部底价〢➤
🔝售楼处直销热线|中介勿扰|欢迎致电咨询
🔝温馨提示:为了节约您的等待时间,看房请提前致电售楼处预约!!!
🔝⑉⑉⑉ıllı⑉🔻售楼处(周一至周日 9:00--20:00)一对一咨询🔻看房需要提前电话预约,避免可能案场无人接待!提前预约可享内部优惠〢匠心钜制-恭迎您的品鉴⑉ıllı⑉⑉🔝尚湾林语☎官方售楼处电话: 400-8787-740 ✅✅「已认证」💎
声明:本文由入驻焦点开放平台的作者撰写,除焦点官方账号外,观点仅代表作者本人,不代表焦点立场。
