江湾鸿玺售楼处│江湾鸿玺(营销中心) 官网 - 2025 销售中心 (售楼处)- 楼盘欢迎您 - 价格 / 户型 / 地址 / 环境 / 配套 / 交房时间 / 电话
扫描到手机,新闻随时看
扫一扫,用手机看文章
更加方便分享给朋友
— ⑉ıl⑉〢✨🏠江湾鸿玺售楼处电话☎:400-8787-740
🏡江湾鸿玺营销中心电话:400-8787-740←【预约热线】
◆⭐开发商营销中心诚挚邀请,一键预约,尊享内部独家折扣!匠心独运的精品项目,恭候您的品鉴与选择。



01
超硬核区域
江湾,是上海的四大古镇之一,蕴含着深厚的历史底蕴。自南宋初年,江湾镇便已屹立于此,见证了无数历史变迁。从千年古镇“铜江湾”到生态智慧之城“新江湾城”,江湾迈入1.0时代,华丽转型为区域内教育和生态环境的佼佼者。
一脉江湾,溯流北上,结合政府推进南北转型发展,加快高新技术产业的发展,提升区域的经济实力和科技创新能力的要求,江湾2.0时代赋新登场,将全力打造上海科创中心主阵地。

江湾鸿玺售楼处电话:400-8787-740
江湾鸿玺营销中心热线400-8787-740(官方预约看房热线)
实景图
「江湾鸿玺」地处江湾西大门,位于四区交汇处,地理位置优越。东有新江湾城,南有上海市四大城市副中心——五角场。

江湾鸿玺售楼处电话:400-8787-740
江湾鸿玺营销中心热线400-8787-740(官方预约看房热线)
位置示意图
项目距离3号线殷高西路站仅100米,1公里直达18号线殷高路站,双轨并行锋速通达的时间效率;书香萦绕的教育高地,科创引领、产业先行的核心经济圈。
复旦大学实景图
此外,通过逸仙路高架,可以提升通行时效,快速连接五角场合生汇、百联又一城、万达广场、虹口龙之梦等中大型商业综合体。
实景图
距离项目150米处的新业坊·源创是上海市级文化创意产业园区,定位为文创+科创小镇,5万平方商业体量,涵盖超想力亲子乐园、金融休闲及各类中西餐饮业态,已有盒马生鲜、啤酒阿姨、影赏市集咖啡店、华为展厅、上海国际影城等60多家品牌入驻。
02
超硬核产品
仅32席平墅宽邸
真正的奢宅,从来都不会批量生产。江湾鸿玺敢享江湾,不曾想。只此一栋,2T2布局,仅32席平墅宽邸,只为32位懂生活、懂品位的人士打造。
项目首层为商业配置,未来将引进运动健身、休闲会馆、便利商超等高档生活功能设施。
作为品质生活的守护者,物业提供24H专属服务,着眼于客户的全方位需求,我们守护的不仅是建筑,更是家的温馨与安全。

过程稿仅供参考
为匹配32席尊享居家场景,在户型设计之初,设计团队怀抱初心奔赴澳门,实地考察当地最新酒店户型设计理念,合理规划约200㎡功能布局,将客厅打造成近约40㎡方厅,旨为菁英圈层社交。
在装修风格上,对标高端知名项目,墙面、地面和背景板多处采用轻奢石材和高品质瓷砖,同时引入大金、唯宝、汉斯格雅、科勒、方太等国内外知名品牌。




过程稿仅供参考
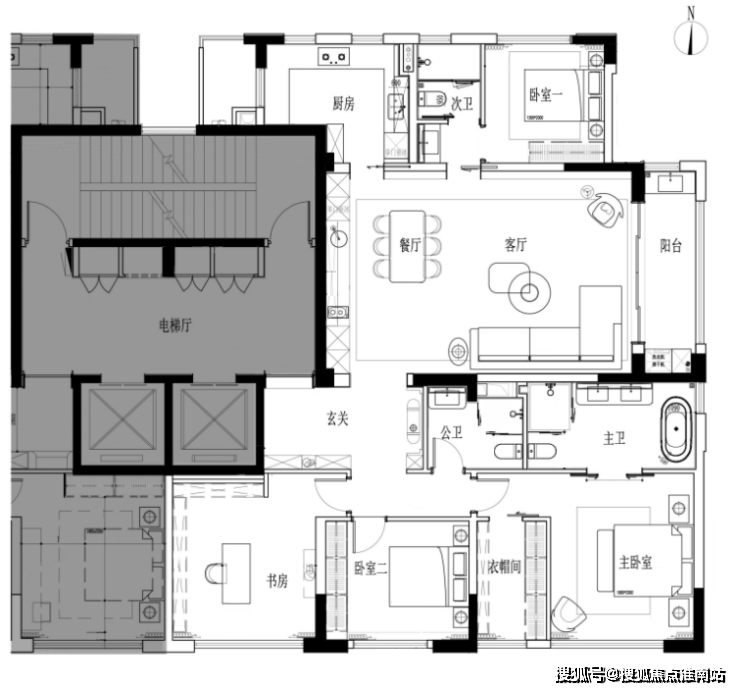
户型图首次曝光
(过程稿仅供参考,以开发商发布为准)
建面约200㎡四房两厅三卫

周边新江湾次新房价格10-11万
预计本案价格会有惊喜
来源:贝壳app
2025新盘「江湾鸿玺」
将推约200㎡平墅宽邸
预计二季度入市
看房请提前致电预约,可享受内部渠道优惠!联系销售人员获取最新一房一价表,官方售楼处最新优惠底价!开发商官方销售人员将详细介绍每个户型的独特设计和优势,带您参观样板间,感受精装修的品质和温馨氛围。您还可以了解周边配套设施,包括高端购物中心、优质学校和便捷交通网络,让您的居住体验更加完美。
声明:本文由入驻焦点开放平台的作者撰写,除焦点官方账号外,观点仅代表作者本人,不代表焦点立场。
