国贸海屿佘山2025官方网站-上海国贸海屿佘山官方楼盘详情-上海房天下国贸海屿佘山-国贸海屿佘山楼盘详情-最新房价+户型图+交通+小区配套环境
扫描到手机,新闻随时看
扫一扫,用手机看文章
更加方便分享给朋友


当城市的喧嚣逐渐淹没生活本真,当忙碌的节奏让我们渴望一方静谧港湾,一处兼具品质与温度的居所, 国贸海屿佘山售楼处电话:400-8787-740便成为了无数人心中的向往。而今天,我们为你带来 ☑️☑️国贸海屿佘山售楼处电话:400-8787-740☑️☑️
的,正是这样一处能够承载所有生活理想的家园 ✅✅ 国贸海屿佘山售楼处电话:400-8787-740✅✅
——[国贸海屿佘山],以匠心筑家,以品质焕新,为你开启全新的幸福生活篇章。国贸海屿佘山营销中心热✅✅ 400-8787-740✅✅ 国贸海屿佘山售楼处地址|预约热线:400-8787-740✅✅ 本电话为开发商提供线上售楼电话
在选址上,[国贸海屿佘山] 深谙城市生活的便捷之道,占据城市优质区位。周边交通网络四通八达, 国贸海屿佘山售楼处电话:400-8787-740多条公交线路环伺,临近城市主干道与地铁线路(若有)
无论是日常通勤上班,还是周末携家人出行游玩,都能轻松畅达目的地,告别拥堵烦恼, 国贸海屿佘山售楼处电话:400-8787-740让时间更高效地服务于生活。同时,项目 ☑️☑️国贸海屿佘山售楼处电话:400-8787-740☑️☑️
周边配套醇熟,商圈近在咫尺,大型购物中心、连锁超市、特色餐饮一应俱全, 国贸海屿佘山营销中心电话:400-8787-740满足你购物、 国贸海屿佘山看房预约电话:400-8787-740休闲、娱乐、餐饮等一站式生活需求。
✅ 国贸海屿佘山售楼处电话☎:400-8787-740✅︎✅︎✅闲暇时分,约上好友逛逛街、看场电影,或是带着孩子品尝美食,无需远行,美好生活触手可及。
比“奢侈”更珍贵的,是舒适的生活感。
,国贸地产洞悉高净值客群生活方式而精研进阶的高居,将人文精神和生活诗意融入产品营造,打造承载隽永生活质感的人居图腾。

2025年上海五大新城唯一一个连续3次触发积分项目!!!
5月14日认筹开启,登顶松江,成为松江新城首个触发积分楼盘,5月28日首开大捷,再度刷新松江顶流热度。
7月9日,项目二批次以233%的认购率再度触发积分制,7月19日,二批次载誉开盘,推售房源2小时售罄!
国贸海上原墅售楼处电话:400-8787-740
在上海楼市持续调整的背景下,项目逆势而上,三批次于8月21日开启认购,最终以超130%认购率触发积分制。
至此,【国贸海上原墅】成为2025年上海罕见三触积分红盘!
9月7日,【国贸海上原墅】三批次盛大开盘,2个小时销售总金额超14亿,再次以璀璨高光领耀松江的独立行情。
10月15日,项目四批次开盘,延续了前期的强劲势头,两小时劲销110套+,当日去化80%。
作为广富林板块的“低密墅区标杆”,以产品力的全维进阶,重新定义松江改善人居天花板!
项目毗邻广富林文化遗址与G60科创走廊,既承接广富林历史文脉的纯粹基因,又融入松江产城融合的现代活力,周边松江印象城、松江大学城等优质文教氤氲,产业、商业、交通、生态、教育等城市资源汇聚,以根深叶茂的松江人文书写崭新的当代故事。
对话广富林4000年文明,项目提炼传统建筑形制,以艺术手法创作“新江南学院派”,向世界展现东方美学的昂扬姿态,汲取陆润玉“富林十景”的灵感来源,建构丰富景观园林和生活场景,重新定义“世外桃源、隐谧院落”的生活方式。
国贸地产的每一次落笔与营造,皆是为时代翘楚兑现“一生之宅”的美好承诺。
推售建面约109-201m²洋房/叠墅/联排
过会均价54667元/m²,总价约501万起
国贸海上原墅售楼处电话:400-8787-740
认筹现场实景图
感兴趣的朋友赶紧来看
避免大客流影响服务质量、影响到您的参观体验
仅接受预约参观,感谢您的理解与支持!
国贸海上原墅售楼处电话:400-8787-740
目前仅接待预约客
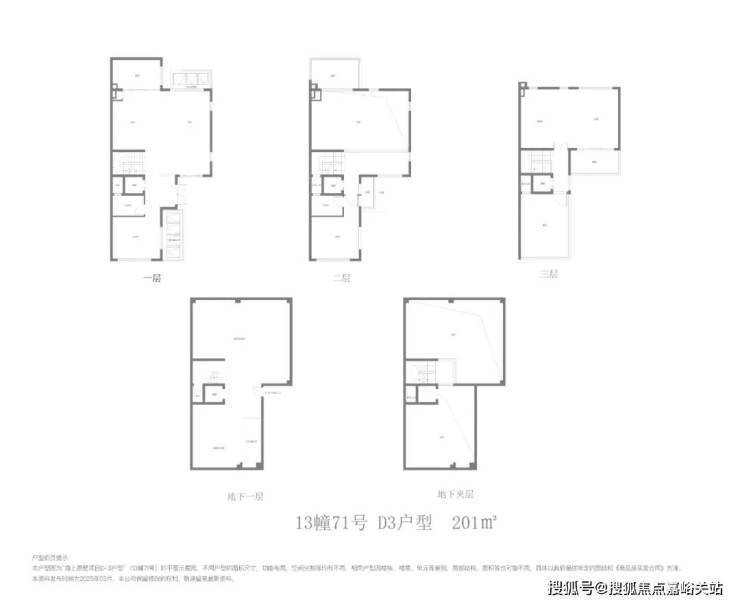
户型图赏鉴
洋房方面,项目主推建面约108㎡3房和建面约122/145㎡4房。全部是一梯两户,三开间朝南飞机户型,属于市面上更受欢迎的一类。加上洋房天生的高得房率属性,尺度感和舒适度远超同价位竞品!
项目叠墅包含建面约141㎡上叠和建面约150㎡下叠
而且比起市面上其他叠墅产品,国贸海上原墅为精装交付,为业主节约了大量的装修成本与时间。
且从户型图上看,横厅以及内庭院挑空等设计,户型设计更优秀且实际利用率更高。
重点聊聊项目的联排产品,要知道在松江新城,叠加已经算珍惜物种,更不用说联排别墅。上一次联排别墅的供应,广富林的合生广富汇,已经在10年之前!
相比大平层“一层不变”的生活,上下5层的国贸海上原墅的联排别墅生活情境 更立体,更个性化,更私密,更适配大家族多代人居住。
同时别墅户型的面宽、采光、收纳、通透、得房率等都做到尽善尽美,让家里的每一位成员都有更舒适的起居环境。
【国贸海上原墅】157-201m²联排别墅设计约5.65米层高地下室,一层客厅挑空约6.45米,还设计了类似天井内庭院空间(不计入建筑面积),这些灵动空间都能随业主心意改造。并且三层配备双露台,听风细雨惬意非凡。
土拍回顾及规划
2024年5月28日,上海第二批次土拍,国贸以26.98亿元摘得松江区广富林街道SJC10004单元2街区04-02号地块。
地块四至范围:东至辰晓路,西至龙源路,南至广轩路,北至骏安路。
国贸海上原墅售楼处电话:400-8787-740
项目占地面积约8.03万方,容积率1.2,计容面积约9.64万方;全装修比例50%! 指导价6.3万/㎡,装标要求不低于2500元/㎡!
根据设计方案显示,项目拟建9栋7-8F多层住宅、9栋4F多层住宅、12栋3F低层住宅、1栋8F保障房以及若干社区配套用房组成,共计规划778户(含保障房)。
项目推出洋房、叠墅、联排三种产品,其中洋房约381套,叠墅约132套,联排约162套。
亮点在于,项目容积率只有1.2,地面无车位,全人车分流,规划地下车位1414辆,小区在西南角规划了下沉式庭院和配套用房,还有公共开放空间。
国贸地产是世界500强企业国贸控股集团核心成员企业,已在松江深耕超过10年,成功开发了包括国贸海屿佘山、国贸梧桐原、国贸余山原墅等高端住宅产品在内10个标杆作品,深受高端圈层的追捧。如今强强联手必然超越以往,再立标杆!
项目没有采取国贸的标准产品线,而是因地制宜融入广富林文脉,塑造全新的“新江南学院派”风格建筑。
外立面方面,项目汲取广富林文化精髓再造东方屋宇,采用渐暖色石材、银灰色及香槟色铝板和涂料的组合,带来厚重与轻盈的平衡,在彰显文化豪宅的同时又包含国际风骨,整体呈现诗意东方之美。
社区景观方面,项目以 "富林风华,十景多花园"为核心理念,通过现代设计语言重构《富林十景》的山水意象,将 "山、水、茶、酒、舟、市" 等江南文化符号有机融入空间序列营造 "一步一景,移步异景" 的沉浸式归家体验。
所谓“无会所,不豪宅”。
高阶会所是圈层进阶的社交场,更是分享志趣和品味的绝佳之处。然而,别说外环外新房,即使是大部分市区项目,也鲜有带高阶会所的;极个别有会所的项目,总价也在3000万级,上车门槛高不可攀。
国贸海上原墅作为广富林溯源之作,打造诗意会所空间,包含泳池、咖啡厅、私宴厅、下沉庭院、健身房等功能。并且引入黑松、山石、景墙、草坪等人文自然资源,呈现一处充满国风艺术感的社交场!
生活配套
交通方面:项目距离地铁站点较远,最近的也是东侧3公里处的9号线松江大学城站,出行主要靠公交接驳和自驾。所以,项目主打的是低密和稀缺。
商业方面:项目周边涵盖了约60万方(数据来源:上海松江)综合性商业集群——松江万达、开元地中海、五龙广场、马利来广场......还有地标性商业松江印象城一期!更有印象城二期(待建成),一期+二期总商业体量将高达约40万方!
教育方面:项目周边落座了松江大学城、上海外国语大学松江外国语学校、上海外国语大学附属外国语学校松江云间中学、上海实验学校松江新城分校(规划中),还有华东政法附属学校、上师大附属学校、东华大学附属学校等丰富的教育资源。(注:本资料中学校信息仅作介绍不做入学承诺,项目对口学校最终以教育部门划分为准。)
医疗方面:附近有上海市第一人民医院南院,为三甲综合性医院,以及养志康复医院、
生态休闲:项目西侧一路之隔就是广富林文化遗址、广富林郊野公园、直线距离约1km+是辰山植物园,北面直线距离约3km是佘山国家森林公园、月湖雕塑公园等。
国贸海上原墅售楼处电话:400-8787-740
居住的舒适,源于对空间的精心雕琢。[国贸海屿佘山] 秉持人性化设计理念,打造多样化优质户型, 国贸海屿佘山营销中心电话:400-8787-740无论是温馨两居、实用三居,还是阔绰四居,皆能满足不同家庭结构的居住需求。
✅ 国贸海屿佘山售楼处电话☎:400-8787-740✅︎✅︎✅室内空间布局合理,南北通透(若有),保证充足的采光与良好的通风效果, 国贸海屿佘山看房预约电话:400-8787-740让阳光与清风轻松入户, 国贸海屿佘山售楼处电话:400-8787-740驱散室内潮湿与沉闷。「国贸海屿佘山」正在认购中 线上预约享团购优惠
售楼处线上预约中,国贸海屿佘山24小时vip热线☎:400-8787-740
国贸海屿佘山售楼处电话:400-8787-740
每一处细节都经过反复考量,科学规划收纳空间,让家居生活告别杂乱;宽阔阳台 ☑️☑️国贸海屿佘山售楼处电话:400-8787-740☑️☑️
连接客厅,既可以作为观景平台,欣赏窗外美景,也能打造成专属小花园,摆放绿植花卉,为生活增添一抹自然生机。
声明:本文由入驻焦点开放平台的作者撰写,除焦点官方账号外,观点仅代表作者本人,不代表焦点立场。
