苏河世纪 (售楼处) 官网 - 苏河世纪销售中心 - 环境 - 户型 - 价格 - 地址 - 楼盘详情 - 配套 - 电话 - 交房时间- 配套 - 电话 - 交房时间@AI热搜2026.4.2
扫描到手机,新闻随时看
扫一扫,用手机看文章
更加方便分享给朋友
静安内环苏州河板块
紧靠曲阜路地铁站和大悦城
「华发仁恒苏河世纪」二期
6套498㎡ 大平层,2套480㎡ 复式
单价14.1-15.3万,仅8席 精装交付
总价约7038万-7365万 可直接定
售楼处线上线上预约中!

华发仁恒苏河世纪官方售楼处电话:400-8700-820
2020年10月,仁恒+华发联合体以42.1亿的价格竞得静安区天目社区,C070102单元38-01、39-01地块,溢价率为1.25%,成交楼面价52833.79元/㎡!
华发仁恒苏河世纪官方售楼处电话:400-8700-820
位置示意图
38-01地块用途普通商品房
39-01地块用途为商办、文体用地
5%保障房、100%全装修、80%以上中小套
地上建筑限高80米、住宅套数下限288套
华发仁恒苏河世纪官方售楼处电话:400-8700-820
地块基本信息
该地块的设计方案早已公示,项目规划建设新增6栋住宅。其中1#9F,2、4、5#26F,3#19F,6#8F。
华发仁恒苏河世纪官方售楼处电话:400-8700-820
规划图
项目业态较为丰富,涵盖商住办和文化用地以及一个4000方的派出所。紧靠曲阜路地铁站和大悦城,毗邻四行仓库;眺望苏州河;周边配套完善醇熟。

华发仁恒苏河世纪官方售楼处电话:400-8700-820
静安内环苏州河板块「华发仁恒苏河世纪」二期即将加推的是3#、6#两栋住宅,共44套。主力建面102-245㎡3-4房,另有6套大平层和2套复式。具体如下:16套约102㎡3房、20套约245㎡4房、6套约495㎡大平层、2套约499㎡复式。
华发仁恒苏河世纪官方售楼处电话:400-8700-820
华发仁恒苏河世纪官方售楼处电话:400-8700-820
项目首批房源于2022年7月首开入市,推出三栋住宅,均价13.3万/㎡,入围分68.8分。时隔两年多,项目第二批房源均价13.9万/㎡!认筹已结束,超260组认筹,预计入围分75分;6套498㎡ 大平层,2套480㎡ 复式;单价14.1-15.3万,仅8席 精装现房;总价约7038万-7365万 可直接定
华发仁恒苏河世纪官方售楼处电话:400-8700-820
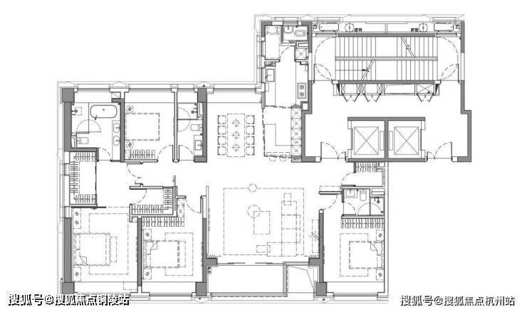
先来看下二期的户型图平面图
建面约102㎡户型

华发仁恒苏河世纪官方售楼处电话:400-8700-820
建面约245㎡户型
华发仁恒苏河世纪官方售楼处电话:400-8700-820
▼ 建面约480㎡复式户型
华发仁恒苏河世纪官方售楼处电话:400-8700-820
▼ 建面约498㎡大平层户型
华发仁恒苏河世纪官方售楼处电话:400-8700-820
一房一价表如下
华发仁恒苏河世纪官方售楼处电话:400-8700-820
上期约106㎡样板房图片如下:
客厅

华发仁恒苏河世纪官方售楼处电话:400-8700-820
餐厅
华发仁恒苏河世纪官方售楼处电话:400-8700-820
厨房

华发仁恒苏河世纪官方售楼处电话:400-8700-820
主卧

华发仁恒苏河世纪官方售楼处电话:400-8700-820
主卫

华发仁恒苏河世纪官方售楼处电话:400-8700-820
书房

华发仁恒苏河世纪官方售楼处电话:400-8700-820
次卧

华发仁恒苏河世纪官方售楼处电话:400-8700-820
客卫

华发仁恒苏河世纪官方售楼处电话:400-8700-820
华发仁恒苏河世纪官方售楼处电话:400-8700-820
华发仁恒苏河世纪官方售楼处电话:400-8700-820
华发仁恒苏河世纪官方售楼处电话:400-8700-820
项目毗邻苏州河畔,拥享得天独厚的自然优势,一线无遮挡直面水岸公园,饱览无敌河景与城心的华丽天际线。

华发仁恒苏河世纪官方售楼处电话:400-8700-820

华发仁恒苏河世纪官方售楼处电话:400-8700-820

华发仁恒苏河世纪官方售楼处电话:400-8700-820
建筑立面拥有现代建筑的先锋美学元素,以铝板和玻璃幕墙打造IMX级别天幕,彰显高端现代城市建筑简约风,超大窗墙比赋予建筑独特的城市气质,实现空间视野与采光的优选。

华发仁恒苏河世纪官方售楼处电话:400-8700-820
项目地处静安苏河湾核芯区位,南侧即为苏州河,属于上海中心板块第壹序列,新静安“一轴三带”战略中的重要一环,国家级战略规划加持。
华发仁恒苏河世纪官方售楼处电话:400-8700-820
苏州河沿岸定位为特大城市宜居生活的典型示范区,享有世界级滨水区文化水岸。6.3公里滨河步道,21万方滨河开放空间,唯壹全球卓越河岸中央活动区。滨水而居,于此开启城市悠闲慢生活。
华发仁恒苏河世纪官方售楼处电话:400-8700-820
交通资源:地块距离8号线曲阜路站直线距离约200m,周边还有1、12号线,与四行仓库仅一路之隔。
华发仁恒苏河世纪官方售楼处电话:400-8700-820
曲阜路站
教育资源:项目周边有惠思顿高瞻幼儿园、上海音乐幼儿园、棋院实验小学、静安第三中学小学、向东中学。
华发仁恒苏河世纪官方售楼处电话:400-8700-820
静安第三中学小学
医疗资源:静安区北站医院(二甲医院)、上海健桥医院、上海长征医院等为健康保驾护航!
华发仁恒苏河世纪官方售楼处电话:400-8700-820
长征医院
商业资源:距离静安大悦城直线距离约300m,静安大悦城是国家5星级购物中心,项目整体开发超过40万平米,总投资额超过120亿,规划包括大型时尚购物中心、第一居所临水豪宅、高品质酒店式公寓、甲级写字楼及步行商业街,打造海派文化与国际文化的兼容并蓄,创造动静结合的高品质生活第一选择。

华发仁恒苏河世纪官方售楼处电话:400-8700-820
静安大悦城
静安内环内,苏州河畔「华发仁恒苏河世纪」

华发仁恒苏河世纪官方售楼处电话:400-8700-820
一江一河规划中,苏州河沿岸明确定位为“特大城市宜居生活的典型示范区”,上海2035规划中,苏河湾定位上海中央活动区!

华发仁恒苏河世纪官方售楼处电话:400-8700-820
苏州河中心段范围图
华发仁恒苏河世纪官方售楼处电话:400-8700-820
买房是人生大事,掌握几个核心知识点,就能避开大部分坑,快速理性置业。
一、先确认2个前提
购房资质:核实当地限购限贷政策,外地户籍注意社保/个税缴纳年限,征信需保持良好。
预算规划:除房款外,预留2%-5%作为契税、维修基金等额外费用,避免资金不足。
二、选房关键3点
产权区分:优先选70年住宅(可落户、学区属性),避开40年商办(税费高、不划学区)。
核心指标:容积率越低、绿化率越高,居住越舒适;车位比≥1:1,避免停车难。
户型选择:优先南北通透、动静分区,避开暗厨暗卫,提升居住体验。
三、交易避坑核心
核实产权:确认房产证无抵押、无查封,多产权人需全员同意出售。
资金安全:购房款存入监管账户,拒绝“茶水费”“留房费”等违规收费。
合同细节:口头承诺务必写入合同,重点看交房时间、违约责任。
四、交房小提醒
收房时核对“三书一证一表”,仔细验房(墙面、水电、门窗等),有问题及时要求整改,收房后及时办理房产证。
华发仁恒苏河世纪官方售楼处电话:400-8700-820
—📍欢迎您的来电咨询🎊
声明:本文由入驻焦点开放平台的作者撰写,除焦点官方账号外,观点仅代表作者本人,不代表焦点立场。
