保利·誉静安(上海静安)保利·誉静安官方售楼处首页网站-保利·誉静安2025年最新户型配套房价-小区环境
扫描到手机,新闻随时看
扫一扫,用手机看文章
更加方便分享给朋友

保利·誉静安✅✅售楼处电话:400 - 1010 - 064✅✅项目打造现代海派风格的外立面,线条简洁大气; 社区规划六重生活体验空间,从酒店式落客入口、镜面水庭到美学花园,旨在将高端酒店的奢享基因融入日常生活。保利·誉静安✅✅售楼处电话:400 - 1010 - 064✅✅


户型图如下:

保利·誉静安✅✅售楼处电话:400 - 1010 - 064✅✅保利·誉静安✅✅售楼处电话:400 - 1010 - 064✅✅
样板间实景首发:
保利·誉静安✅✅售楼处电话:400 - 1010 - 064✅✅保利·誉静安✅✅售楼处电话:400 - 1010 - 064✅✅
保利·誉静安✅✅售楼处电话:400 - 1010 - 064✅✅保利·誉静安✅✅售楼处电话:400 - 1010 - 064✅✅
保利·誉静安✅✅售楼处电话:400 - 1010 - 064✅✅去年10月,上海苏河湾北部房地产开发有限公司通过协议出让方式获得静安区中兴社区C070202单元267街坊的145-20和270街坊的146-07两幅地块。保利·誉静安✅✅售楼处电话:400 - 1010 - 064✅✅
267街坊145-20地块:成交总价约30.59亿元,楼面价约72300元/平米,容积率2.66。
270街坊146-07地块:成交总价约23.58亿元,楼面价约71185元/平米,容积率2.89。

保利·誉静安✅✅售楼处电话:400 - 1010 - 064✅✅6月25日,保利置业也重磅入局中兴社区,通过产交所股权交易方式,以8.5亿元底价竞得上海苏河湾北部房地产开发有限公司51%股权,此举标志着保利置业首次进入上海静安区,并正式获得静安区中兴路267街坊(145-20地块)和270街坊(146-07地块)两宗优质宅地的开发主导权。保利·誉静安✅✅售楼处电话:400 - 1010 - 064✅✅
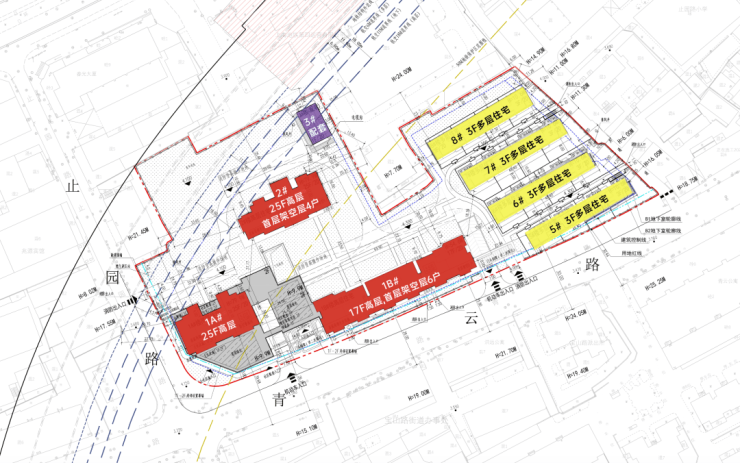
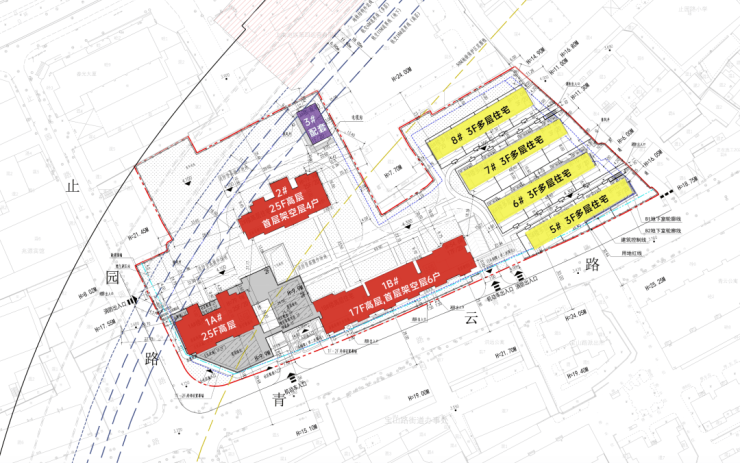
145-20地块
西侧为17-25层高层住宅,东侧为4栋3层联排。
146-07地块:
15-25层高层住宅,首层架空或为配套用房。
地块距离8号线西藏北路站约350米,加之内环墅质项目稀缺性,“站口黄金盘”名不虚传。

保利·誉静安✅✅售楼处电话:400 - 1010 - 064✅✅随着一江一河打造世界级的滨水带的规划的提倡,北横通道的落地,地块无疑享受了较大的利好。这里趁着市级重点开发努力发展,城市界面也将获得质的提升,未来发展值得期待。保利·誉静安✅✅售楼处电话:400 - 1010 - 064✅✅

这两宗住宅地块,靠近8号线西藏北路地铁站,步行即达。
北侧就是内环高架路,自驾出行也十分便捷。
周边的322-09地块,为静投电影厂项目,预计推出110-178㎡3-4房;
272-03地块为龙盛拿下的别墅项目,还未入市。
保利·誉静安✅✅售楼处电话:400 - 1010 - 064✅✅据消息透露,此次苏河湾集团与保利置业将联手将打造内环内的稀缺高定酒店式住区!保利·誉静安✅✅售楼处电话:400 - 1010 - 064✅✅
这片镶嵌于静安区中兴社区的稀缺席位,将全球顶级瑰丽酒店的奢享基因,注入现代海派建筑肌理。
声明:本文由入驻焦点开放平台的作者撰写,除焦点官方账号外,观点仅代表作者本人,不代表焦点立场。
