峰度天下 (售楼处) 首页 - 峰度天下销售中心 - 环境 - 户型 - 价格 - 地址 - 楼盘详情 - 配套 - 电话 - 交房时间 - 配套 - 电话 - 交房时间
扫描到手机,新闻随时看
扫一扫,用手机看文章
更加方便分享给朋友





项目区域:虹桥商务区-前湾
开发商:上海松芝房地产开发有限公司
面积区间:745㎡-817㎡独栋
价格区间:4300万起
布局:地上三层(4.5米层高)+地下一层(6.2米层高)+900㎡花园
占地:2亩左右
物业公司:自持物业
物业费:13.2元/m²
车位:地面2个+地下8个
房龄年限:2019年竣工
土地年限:
尖端产业:数字经济,生物医药,文创电竞三大产业布局;
🔆国际医学中心:新虹桥国际医学中心,有1个医技中心+7家高端医院,共8家医院;
🔆国际学校:上海国际学校最密集的板块,有美,英,韩,新加坡等7所国际学校;
🔆三大超级商业:全国首个开市客(运营中);上海第二家印象城Mega(在建中);全球首个双电竞场馆超级合生汇(在建中);
🔆立体交通:
①虹桥交通枢纽,机场,高铁站,多条地铁轨道聚集(13号、示范区线、2号、10号、17号线和规划的25号线、25号支线),公交,出租等立体交通路网;
②“三横两纵”交通路网,三横:京沪高速,北翟高架,崧泽高架;两纵:嘉闵高架,沈海高速;畅达全城,长三角一小时生活圈;
③13号线西延伸段(在建中,预计2026年底通车)季乐路站距离仅500米,示范区线(在建中2027年通车)前湾公园站(芳乐路站)距离1000米;
④直达巴士,早晚高峰期直达虹桥地铁站。
2014年-2054年
交付标准:毛坯交付
交付时间:现房,款清交付
周边配套:季乐路地铁口500米,印象城300米,前湾公园700米;
水电燃气:通燃气,水:6.7元/吨 ,电:0.98元/度
属性:适用于居家自住、商业经营、行政公馆、私人会所等;
房型介绍
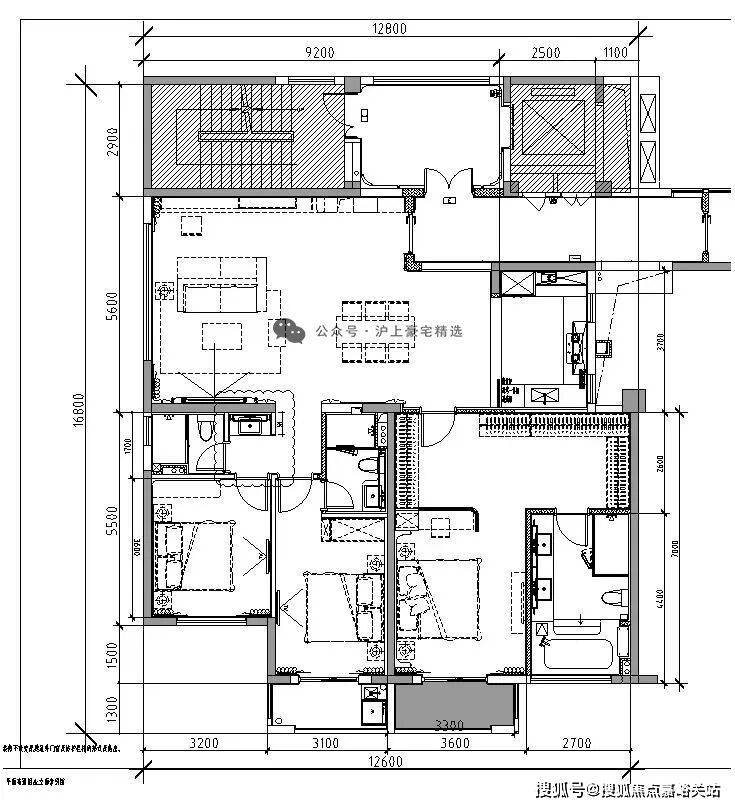
165㎡户型丨三房两厅三卫
▲ 户型图
虹桥商务区:上海主城区,新的城市副中心
集交通枢纽,国家会展,国际商务于一体的国家级战略,上海2035规划中,划入主城区,成为上海新的城市副中心;
▲ 建筑外立面
南虹桥核心前湾板块,苏州河入沪第一湾,打造成面向世界的“会客厅”,规划总面积1200万㎡,相当于4个前滩,潜力无限。
▲ 入户大堂
南虹桥核心前湾板块,苏州河入沪第一湾,打造成面向世界的“会客厅”,规划总面积1200万㎡,相当于4个前滩,潜力无限。
▲ 卫生间
176㎡户型丨三房两厅三卫
▲ 户型图
230㎡户型丨四房三厅三卫+保姆房
▲ 户型图
如有问题欢迎来电咨询,专业一对一热情服务,让您用专业眼光去买房。楼盘项目全面介绍(包含楼盘简介,均价,房价,现房,期房,别墅,叠墅,大平层,价格,楼盘地址,户型图,交通规划,备案价,备案名,项目配套,样板间,开盘时间,认筹时间,楼盘详情,售楼处电话,最新消息,最新详情,周边配套,一房一价,最新进展等详情咨询)楼盘详情丨价格丨更多优惠丨机不可失丨欢迎致电丨诚邀品鉴!售楼处位置丨特价房丨工抵房丨剩余房源丨户型图丨最新消息配套设施是反映楼盘生活便利程度的重要因素,包括小区内的运动场所、停车场、公共设施等。物业服务则直接关系到居住者的生活品质,包括安保服务、保洁服务、设备维护等。具体到街道、区域名称,临近交通线路、自驾路线。商业、教育、医疗等配套设施分布,总占地面积、总建筑面积数据,容积率,绿化率,得房率,梯户比,物业费,小高层、洋房、高层、独栋别墅、叠加别墅、联排别墅,总户数、楼层分布,面积范围,均价/总价。首付比例、贷款政策,精装交付,含中央空调、地暖等系统,70年住宅产权,物业公司及资质,预计交付时间或施工进度,当前购房优惠政策
声明:本文由入驻焦点开放平台的作者撰写,除焦点官方账号外,观点仅代表作者本人,不代表焦点立场。
