大华星屿(售楼处) 官网 - 上海大华星屿销售中心 - 环境 - 户型 - 价格 - 地址 - 楼盘详情 - 配套 - 电话 - 交房时间
扫描到手机,新闻随时看
扫一扫,用手机看文章
更加方便分享给朋友
大华星屿,是大华集团匠心筑造的精品住宅项目,为城市菁英量身定制理想居所。
它占据优越地段,周边交通十分便捷,多条公交线路与地铁近在咫尺,轻松畅达城市各处。商业配套成熟,周边商场、超市、便利店等一应俱全,满足日常生活所需。
项目建筑风格时尚现代,简约而不失大气。社区内部,景观设计独具特色,绿植、水景巧妙搭配,营造出舒适宜人的居住氛围。户型设计精致实用,空间利用率高,无论是单身贵族还是小太阳家庭都能找到合适之选。
此外,大华专业物业提供贴心服务,保障业主生活品质。大华星屿,以其出色的地段、优质的产品和贴心的服务,成为城市中一道亮丽的居住风景线。

大华星屿售楼处电话☎️☎️☎️:400-8800-430 工作日9:00-21:00,周末无休(售楼处最新电话)
大华星屿官方预约看房热线电话☎️☎️☎️:400-8800-430(可直接咨询房源动态、活动详情)
大华星屿开发商售楼部热线☎️☎️☎️:400-8800-430(开发商直连,解答项目规划、购房政策等)
外环顶流板块南翔的时代之城,自从2024年6月以来累计销售超1600套,是上海住宅套数销冠。
但最近隔壁大华星屿面世,前所未有的危机感骤然来袭,更好位置+更高实得率+价格屠夫大华,这一次南翔的竞争格局彻底变了!
大华星屿位于嘉定南翔的云翔中央生活区,是陈翔公路轴线上最后一块宅地,西侧紧贴着时代之城,东侧是自然水系景观。

这几年南翔西社区发展速度很快,大华星屿被山姆会员店、南翔印象城MEGA、复旦系学校包围,目前居住氛围已经非常成熟,更关键的是,住宅新规后的产品迭代,让后发制人的大华星屿,有了超越时代之城的十足底气。


产品方面,大华星屿容积率2.0,规划了8栋6层叠墅,4栋17层高层,一共432套房源,高层层高达到3.05米至3.1米。
外立面采用铝板和玻璃幕墙为主,没有做会所规划,不过说实话去隔壁时代之城也行,毕竟郊区会所的最终宿命都是社区健身房。
这次大华发力的重点是样板间,你可以说大华做豪宅是痴人说梦,但他们搞郊区产品还是有一套的,抓住了空间感的核心需求。
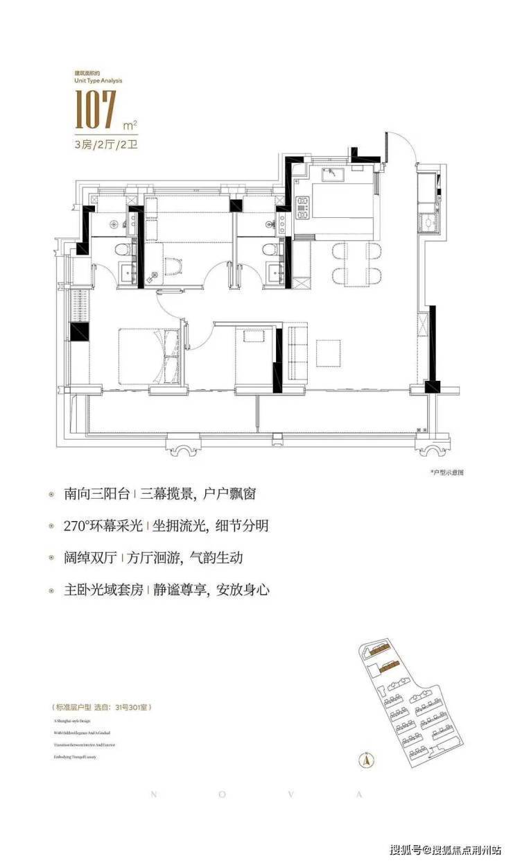
107平3房2卫,开发商号称实得率接近100%,做出了这个面积段罕见的5米面宽、9米纵深的客餐厅。

U型动线厨房可以完全打开,两个南向次卧都把阳台包进了室内,全部可以放下标准双人床。



主卧还是一个罕见的落地窗设计,直接把飘窗给干没了,这让隔壁时代之城陷入尴尬。

123平4房2卫,采用类一梯一户设计,非常少见的4开间朝南+4房南北通透户型。
亮点是拓展面积超过17平,规划了独立八百库储藏室,主卧自带独立衣帽间区域,样板间去掉了一个房间做大横厅,整体空间感可能媲美板块150平左右二手房。


交付标准方面,大华一向主打实用主义,厨房配置西门子灶具油烟机洗碗机,进门玄关柜预留了洗衣机家政空间。


大华星屿售楼处电话☎️☎️☎️:400-8800-430 工作日9:00-21:00,周末无休(售楼处最新电话)
大华星屿官方预约看房热线电话☎️☎️☎️:400-8800-430(可直接咨询房源动态、活动详情)
大华星屿开发商售楼部热线☎️☎️☎️:400-8800-430(开发商直连,解答项目规划、购房政策等)
声明:本文由入驻焦点开放平台的作者撰写,除焦点官方账号外,观点仅代表作者本人,不代表焦点立场。
