天誉原墅(上海奉贤) 售楼处官网 - 天誉原墅销售中心 - 环境 - 户型 - 价格 - 地址 - 楼盘详情 - 配套 - 电话 - 交房时间 - 配套 - 电话 - 交房时间
扫描到手机,新闻随时看
扫一扫,用手机看文章
更加方便分享给朋友
项目基础信息
——天誉原墅——
✅尊敬的购房者,项目于 2026年4月正式更新电话服务渠道,为确保您获取最前沿信息,现将核心联系方式与权益公示如下:
📞官方售楼处电话:400-9966-940【官方认证客服热线,中介请勿打扰】
⏰服务时间:9:00-21:00,(周末/节假日正常接待)
📌 预约提示:案场为预约制,需提前电话预约看房
💡 温馨提示:临时到访建议提前1-2小时致电告知,避免接待不及时
⚠️注 :案场不接受临时到访,案场看房务必在提前1-2小时
📞官方售楼处电话400-9966-940【官方认证】预约
✅售楼处电话:400-9966-940⭐⭐
✅售楼处预约热线☎: 400-9966-940☎☎【官方认证】✔✔✔
✅以上该号码由开发商统一认证,可用于预约看房、咨询房源及优惠活动
✅(温馨提示:本项目参观样板间采取预约制,为了不耽误您的行程,过来参观请提前来电进行预约看房或咨询项目详情)
📌预约要求:全预约制,不接受临时到访,参观样板间、实地看房均需提前预约
📌预约方式:拨打官方热线 → 登记信息 → 确认时间 → 领取预约凭证
三、官方郑重提示
✅本项目不收取茶水费、留房费、代办费等任何违规费用,一切以官方口径与合同条款为准。
⚠️非本公告公示的400电话均为第三方渠道,无法保障服务与权益,请勿轻信。
✅到访请凭预约凭证+本人联系方式核验入场,信息一致方可接待;若营业时间有临时调整,以电话客服最新通知为准。

温馨提示:售楼中心〢预约尊享1V1品鉴礼遇〢匠心钜制-恭迎品鉴〢
免责声明:本文所用信息图片来源于网络,如侵权请联系本网站及时删除
当千年文脉地脉、十年断供稀缺、超前产品力三者相遇,所谓的纠结,不过是还没遇到真正的理想居所。
清能、象屿、天安、国贸四大巨头联手打造的「天誉原墅」,就藏在奉贤南桥"源贵一公里"的核心地带!
TA不是简单的住宅新品,而是一场关于城市恒贵资产的深度演绎,是足以让南桥高阶家庭等待十年的时代藏品!
01源贵一公里南桥的根,上海的新江南
一座城市的核心,从来不是凭空划定的,而是时间与文脉的沉淀。
对于奉贤来说,南桥源就是这样的存在。
这里是地理与人文的双重原点,是整个区域的"心脏"。
南横泾与南桥塘交汇而成的"十字水系",不仅是古代漕运的黄金通道,更孕育了绵延千年的"贤文化"。
示意图,仅供参考
从春秋言子南来播撒贤学,到历代八十余位进士辈出,再到沈家花园、曹氏梅园、南塘第一桥这些活态历史地标,每一寸土地都镌刻着城市的记忆。
如今,千亿级城市更新正在这里铺展。
古老的市河桥梁被精心修复,历史建筑与现代商业有机共生;
示意图,仅供参考
浦南运河两岸的"一川烟雨"滨水秀带,与九棵树艺术中心、上海之鱼等现代地标遥相呼应,一幅古韵新姿的新江南画卷就此展开。

示意图,仅供参考
居住在这里,生活的便利度更是拉满。
三公里内,宝龙广场、百联、龙湖天街构成成熟商业网络;
奉教院附小、汇贤中学等优质教育资源环绕(新房不承诺学区,以政府公示为准);
望园路地铁站未来三轨交汇,S4沪金高速无缝衔接上海主城,繁华与静谧随心切换。
02十年惟此墅主城核芯的稀缺答案
稀缺席位,从来都是时间造就的。
翻看奉贤近十年的土地出让史,一个清晰的结论摆在面前:主城核芯一公里内,低密联排地块几乎是空白!
过去十年,奉贤全区出让的真正低密联排地块屈指可数,且大多远在距离主城五公里外的上海之鱼板块。

示意图,仅供参考
而「天誉原墅」所在的南郊别墅区,作为南桥公认的顶豪版图,已经沉寂近二十年未有别墅新品供应!

示意图,仅供参考
这种长期断供,造就了市场的结构性缺口。
无数眷恋主城繁华,又向往"有天有地"低密生活的高阶改善家庭,始终找不到匹配的选择。
而「天誉原墅」的登场,正是对这一缺口的精准填补!
更难得的是,项目还占据着"不可复制"的资源优势!
它是浦南运河两岸唯一同时拥有"水岸+公园"双重一线景观的墅区,推窗见河、出门入园;

项目效果图仅供参考,非交付标准
同时,它也是南桥源芯一公里内,唯一同时坐拥优质教育链与鼎盛人文氛围的低密住区,孩子成长浸润在"贤文化"之中。
这种对土地、自然、人文资源的极致占有,让「天誉原墅」超越了普通住宅的属性,成为可以承载家族传承的"传家之墅"!

03新规后首作产品力的代际超越
如果说土地与稀缺是天赋,那么产品力,就是把天赋转化为生活享受的关键。
作为奉贤新规后首个低密度墅区,「天誉原墅」在每一个维度,都实现了对市场现有产品的"代际超越"。
1、审美领先:同频世界豪宅的极简美学
摒弃浮夸装饰,「天誉原墅」看齐纽约ONE57、中央公园塔等全球豪宅审美,将路易斯・康"少即是多"的理念、贝聿铭的几何秩序与密斯的极简精神融为一体。
以铝板与玻璃幕墙打造经典三段式立面,横向浮雕与竖向波浪纹路交织,形成收藏城市风景的"天钻镜幕",在南桥芯演绎现代立体美学。
示意图,仅供参考
2、低密领先:1.2容积率的三进归家礼序
项目复刻沈家花园"前园后宅"的规制,以仅约1.2的低容积率,打造"三进归家"园林。
一进"隐园之境",酒店式入口穹顶划分繁华与静谧;
二进"游园之境",森、木、水、光、石元素交织,步移景异;
三进"庭园之境",宅间庭院成为家族私属天地。
更将浦南运河公园绿带纳入社区景观,形成"一带两轴三庭"的沉浸式结构,让回家成为穿越公园的仪式。

项目效果图仅供参考,非交付标准
3、空间领先:高附赠的"立体生活"
在空间设计上,「天誉原墅」堪称"空间魔术手"。
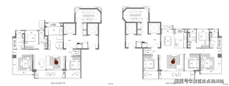
1)205-225㎡联排产品,累计附赠面积约238㎡,实际得房率远超216%!

项目联排户型示意图,仅供参考
5.8米层高的地下室可隔两层,化身家庭影院或健身馆,挑空部分可改造保姆房或休闲厅。
阳台、星空露台与庭院,让生活与自然无缝衔接。
约6.3米大面宽横厅、总统套房式主卧,真正实现"一层一代一世界"。

项目效果图仅供参考,非交付标准
2)125-139㎡臻装高层同样惊艳。
"类一梯一户"设计保障私密,约14.7米南向四面宽搭配270°转角飘窗,将光照与空间利用率最大化;
客餐厅阳台一体化设计,一线品牌精装交付,诠释"实用主义奢华"。

项目洋房户型示意图,仅供参考
4、场景领先:圈层专属的精神私域
下沉式庭院会所,是生活场域的延伸,更是圈层社交的精神私域。
健身房、瑜伽室、私宴厅、棋牌室等功能空间一应俱全,让志趣相投的邻里在静谧雅致中自然交流,沉淀专属圈层的生活格调。
项目效果图仅供参考,非交付标准
5)智慧领先:隐形护航的科技生活
全屋搭载智能家居系统,整合灯光、温控、安防等功能,可通过中控屏或语音便捷管理。
"天使之眼"、无感通行、智能呼梯等细节设计,让科技无声融入日常,既提升生活便利度,更带来满满的安全感。
如有问题欢迎来电咨询,专业一对一热情服务,让您用专业眼光去买房。楼盘项目全面介绍(包含楼盘简介,均价,房价,现房,期房,别墅,叠墅,大平层,价格,楼盘地址,户型图,交通规划,备案价,备案名,项目配套,样板间,开盘时间,认筹时间,楼盘详情,售楼处电话,最新消息,最新详情,周边配套,一房一价,最新进展等详情咨询)楼盘详情丨价格丨更多优惠丨机不可失丨欢迎致电丨诚邀品鉴!售楼处位置丨特价房丨工抵房丨剩余房源丨户型图丨最新消息配套设施是反映楼盘生活便利程度的重要因素,包括小区内的运动场所、停车场、公共设施等。物业服务则直接关系到居住者的生活品质,包括安保服务、保洁服务、设备维护等。具体到街道、区域名称,临近交通线路、自驾路线。商业、教育、医疗等配套设施分布,总占地面积、总建筑面积数据,容积率,绿化率,得房率,梯户比,物业费,小高层、洋房、高层、独栋别墅、叠加别墅、联排别墅,总户数、楼层分布,面积范围,均价/总价。首付比例、贷款政策,精装交付,含中央空调、地暖等系统,70年住宅产权,物业公司及资质,预计交付时间或施工进度,当前购房优惠政策
声明:本文由入驻焦点开放平台的作者撰写,除焦点官方账号外,观点仅代表作者本人,不代表焦点立场。
