🆔♬众禾嘉苑꧁ 售楼处电话:400-8855-420【☎☎售楼处电话已认证】꧂⭐✿✿✿✿
🆔♬众禾嘉苑꧁ 营销中心电话:400-8855-420【☎☎营销中心电话已认证】꧂⭐✿✿✿✿
🆔♬众禾嘉苑꧁ 开发商电话:400-8855-420【☎☎开发商电话已认证】꧂⭐✿✿✿✿
✔️本项目暂不接受临时到访,过来参观样板房请记得提前来电预约!
✔️为您安排楼盘现场销售全程接待并讲解,给您更贴心的看房体验!
⭐⭐Vip贵宾置业=欢迎来电预约尊享内部折扣=匠心钜制恭迎品鉴温馨提醒:我们楼盘售楼部400电话没有设置任何所谓的“分机号”,拨打前请仔细甄别,注意保护个人隐私!谨防上当!


——众禾嘉苑——
众禾嘉苑售楼处电话:400-8855-420 ✔【最新预约】
众禾嘉苑营销中心电话:400-8855-420 ✔✔【最新认证】
上海众禾嘉苑官方售楼处电话:400-8855-420 VIPLINE✔✔✔【最新发布】
如有问题可来电咨询,线上售楼中心,预约销售专员,一对一为您服务!
想了解众禾嘉苑更多信息?拨打售楼处营销中心热线:400-8855-420 (中介勿扰)【24小时热线】
「众禾嘉苑」
嘉定复华园区 嘉闵线地铁口
嘉戬公路站旁全新住宅
加推建面约94-122㎡3房
均价43866元/㎡ 总价约360万起
无需积分 可直接认购
售楼处火热预约中

项目基础信息
「众禾嘉苑」即2022年二批次土拍地块嘉定区马陆镇嘉定新城JDC10502单元(复华园区)02-01地块,项目由大众以12.4亿元总价竞得,楼板价22364元/㎡,溢价率9.09%。房地联动价4.37万/㎡。

区位示意图
根据设计方案显示,两块地共计规划8栋14-18F高层住宅,规划住宅套数570套。


本项目拟建2层配套设施2栋,14层住宅楼1栋,17层住宅楼1栋,18层住宅楼6栋。总建筑总建面85103.1㎡,其中计容建筑面积55534㎡,容积率2.0;共570户。

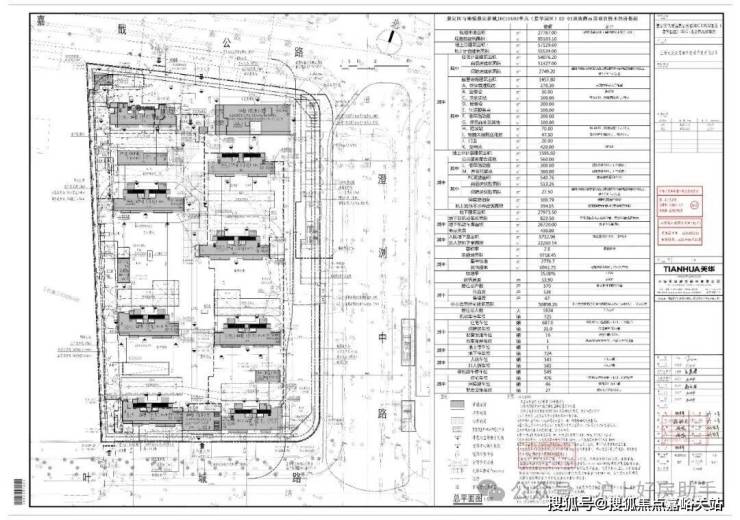
总平面图

技术经济指标图

效果图
去年11月23日上午,大众房产嘉定复华园区商品房项目开工仪式在工地现场隆重举行。


以“人车分流”为基础
享江南美学理想舒居
众禾嘉苑项目由8幢14-18层的小高层及1幢2层的邻里中心组成,规划商品房528户,规划车位725个,共有地下二层车位,采用全人车分流的设计。

众禾嘉苑采用围合式布局设计,社区四至形成有效的社区边界,创造最大约59米楼间距,户户推窗见景。


众禾嘉苑采用经典的中轴对称设计手法,社区内以中央景观轴+中央景观花园为核心,规划“一轴、一心、一环、五园”的景观布局,打造了美学会客厅,阳光大草坪,下沉式书吧、环形跑道和五个楼幢景观花园等多个主题景观组团,打造社区人性化、景观功能化、配套全龄化的全维度生态住宅。

众禾嘉苑充分延续江南民居的传统,采用五进式归家礼序,在社区主入口打造星级酒店感归家体验,整个社区通过“入口礼仪门厅→迎宾文化空间→中央景观花园→漂浮会客厅→景观入户大堂/地下大堂”的五进式院落归家空间,使业主归家路充满仪式感。



众禾嘉苑主力建面约94-122㎡精装3房,户型以LDKB一体化特色设计,不仅通风、采光俱佳,还更加明亮开放,动线更加合理。
值得一提的是,项目在装修方面臻选国内外知名家装品牌,打造出价格超配的全系精装配置。
项目推售详情
最新消息:嘉定复华园区 嘉闵线地铁口 嘉戬公路站旁全新住宅【众禾嘉苑】推出528套全部房源,建面约94—122㎡精装3房,均价43866元/㎡,已经开盘,可直接认购。

项目周边配套
商业方面:项目大约400米处就可到达嘉乐·东润广场,约1公里处还有百联嘉定购物中心,龙湖天街等满足居民日常生活需求。


学校方面:项目周边大约1公里范围内有嘉定区新成路小学、嘉定区成佳学校,基础教育有保障。
并且项目西侧为教育规划用地,学校规划用地面积约32581㎡,建筑高度不超过24米,总建筑面积约45000㎡,须满足28班完全中学的办学规模要求(完全中学,就是指一所学校含初中部和高中部)。

底图源于上海购房通

其他配套:项目地块周边小区众多,生活氛围较好,距离嘉定体育中心400米,迎园医院等配套。
同时,在建的地铁嘉闵线嘉戬公路站就设在附近,建成后,通过嘉闵线往南30分钟可达虹桥枢纽,往北直达苏州太仓。
——众禾嘉苑——
众禾嘉苑售楼处电话:400-8855-420 ✔【最新预约】
众禾嘉苑营销中心电话:400-8855-420 ✔✔【最新认证】
上海众禾嘉苑官方售楼处电话:400-8855-420 VIPLINE✔✔✔【最新发布】
如有问题可来电咨询,线上售楼中心,预约销售专员,一对一为您服务!
想了解众禾嘉苑更多信息?拨打售楼处营销中心热线:400-8855-420 (中介勿扰)【24小时热线】
楼盘项目全面介绍,本电话为开发商提供线上预约售楼电话,楼盘项目全面介绍(包含楼盘简介,均价,房价,现房,期房,别墅,叠墅,大平层,价格,楼盘地址,户型图,交通规划,备案价,备案名,项目配套,样板间,开盘时间,认筹时间,楼盘详情,售楼处电话,最新消息,最新详情,周边配套,一房一价,最新进展等详情咨询)楼盘详情丨价格丨更多优惠丨机不可失丨欢迎致电丨诚邀品鉴!售楼处位置丨特价房丨工抵房丨剩余房源丨户型图丨最新消息丨免责声明:将文章内容综合来源于网络、只作分享,版权归原作者所有!!如有侵权,请联系我们,我们第一时间处理如有问题欢迎来电咨询,专业一对一热情服务,让您用专业眼光去买房.如果您想了解更多楼盘详情,欢迎提前预约拨打
麟评居住大数据研究院近日发布的报告显示,2025年5月全国40个大中城市租金挂牌均价为34.37元/㎡/月,环比下跌0.32%,连续9个月下降;同比下跌1.14%,连续19个月下滑。整体来看,前5月全国40个大中城市租金挂牌均价为34.54元/㎡/月,较2024年租金水平下降1.12%。

报告指出,受就业环境、收入预期下降等因素影响,居民住房消费能力下降。另一方面,随着保障性租赁住房供应的增加,对市场化的租赁市场有一定冲击。
对此,麟评居住大数据研究院认为,随着应届毕业生入市,5、6月租赁活跃度有望增加,但由于应届毕业生的消费能力较弱,租金仍具备下行压力,租金跌幅有望收窄。
一线城市租金相对坚挺
从等级城市来看,一线城市韧性较强,二线城市压力显著,三线城市跌幅最大。
报告显示,5月份一线城市平均租金为84.58元/平方米/月,环比下跌0.16%,同比上涨0.54%。二线城市平均租金为30.18元/平方米/月,环比下跌0.36%,同比下跌1.82%。三四线城市平均租金为24.60元/平方米/月,环比下降0.45%,同比下跌1.22%。

——众禾嘉苑——
众禾嘉苑售楼处电话:400-8855-420 ✔【最新预约】
众禾嘉苑营销中心电话:400-8855-420 ✔✔【最新认证】
上海众禾嘉苑官方售楼处电话:400-8855-420 VIPLINE✔✔✔【最新发布】
如有问题可来电咨询,线上售楼中心,预约销售专员,一对一为您服务!
想了解众禾嘉苑更多信息?拨打售楼处营销中心热线:400-8855-420 (中介勿扰)【24小时热线】
报告指出,一线城市受今年经济环境及人口流动放缓影响,租金自3月以来环比连续3月下降。值得一提的是,北京表现较为突出,5月份租金环比上涨0.95%,同比上涨1.54%。
二线城市租金跌幅时间较长,环比连续下跌8个月,同比连续下跌19个月。其中,武汉和成都租金同比跌幅较大,分别下降12.06%和7.2%。而三四线城市5月份租金跌幅略大于一二线城市,但从同比走势来看,自2023年9月,三四线租金表现好于二线城市。
威海北京重庆位居涨幅前三
具体到城市,5月份40个大中城市租金仍延续“跌多涨少”局势,有8城租金均价环比上涨,3城环比持平,29个城市租金环比下跌。
报告显示,租金环比上涨的城市中,威海(1.12%)、北京(0.95%)和重庆(0.43%)位居涨幅前三。其中,威海受今年旅游热度上升,租金整体呈上升局面;北京由于临近毕业季,受到强产业配套支持,业主对租金预期有所提升。

此外,环比跌幅TOP10城市中,有6个城市跌幅超1%,具体为洛阳(-2.82%)、武汉(-2.04%)、成都(-1.98%)、佛山(-1.58%)、广州(-1.20%)和青岛(-1.13%)。
——众禾嘉苑——
众禾嘉苑售楼处电话:400-8855-420 ✔【最新预约】
众禾嘉苑营销中心电话:400-8855-420 ✔✔【最新认证】
上海众禾嘉苑官方售楼处电话:400-8855-420 VIPLINE✔✔✔【最新发布】
如有问题可来电咨询,线上售楼中心,预约销售专员,一对一为您服务!
想了解众禾嘉苑更多信息?拨打售楼处营销中心热线:400-8855-420 (中介勿扰)【24小时热线】
🆔♬众禾嘉苑꧁ 售楼处电话:400-8855-420【☎☎售楼处电话已认证】꧂⭐✿✿✿✿
🆔♬众禾嘉苑꧁ 营销中心电话:400-8855-420【☎☎营销中心电话已认证】꧂⭐✿✿✿✿
🆔♬众禾嘉苑꧁ 开发商电话:400-8855-420【☎☎开发商电话已认证】꧂⭐✿✿✿✿
✔️本项目暂不接受临时到访,过来参观样板房请记得提前来电预约!
✔️为您安排楼盘现场销售全程接待并讲解,给您更贴心的看房体验!
⭐⭐Vip贵宾置业=欢迎来电预约尊享内部折扣=匠心钜制恭迎品鉴温馨提醒:我们楼盘售楼部400电话没有设置任何所谓的“分机号”,拨打前请仔细甄别,注意保护个人隐私!谨防上当!