新湖天潼198售楼处2025官网首页网站|天潼198售楼处电话|在售户型|小区配套|最新价格|周边详情|容积率|楼盘详情
扫描到手机,新闻随时看
扫一扫,用手机看文章
更加方便分享给朋友



上海天潼198售楼处电话☎:400-8855-420✿✿【线上预约看房】天潼198售楼处电话/地址:400-8855-420✿✿售楼处线上火热预约中!主推建面约209-641㎡高层(均价17.8万/㎡)及502-907㎡合院别墅(1.8亿起),近10/12号线天潼路站,北外滩核心+外滩步行可达+黄浦江苏州河交汇+低密风貌住宅。
══上海虹口区「天潼198」══
天潼198售楼处电话:400-8855-420✿✿
营销中心电话:400-8855-420✿✿【官方售楼中心已认证√√】
温馨提示:如有问题欢迎来电咨询,专业一对一热情服务,让您用专业眼光去买房,附线上官方预约通道【享】内部专属优惠折扣!
上海天潼198售楼处电话☎:400-8855-420✿✿【线上预约看房】
【虹口封面】「天潼里」约320-1200㎡风貌大宅全球首发!总价5100万起,一江一河间的传世大宅!附官方预约通道!
「天潼198」
北外滩核心钻石地段
包含高层、多层、叠墅、合院别墅
建面约320-641㎡风貌大平层
总价约:5100万~1.3亿
约850-1200㎡风貌合院别墅(天潼里)
总价约1.5亿-2亿+(验资看房)
样板房提前一天预约
上海天潼198售楼处电话☎:400-8855-420✿✿【线上预约看房】
最新消息!虹口北外滩核芯段【天潼里】将推出平层、洋房、叠墅、合院产品,共计124户,预计2027年交付!作为外滩正核板块唯一在售新房——苏州河黄浦江原点,项目距外白渡桥约200米,步行约5分钟至外滩万国建筑群;与陆家嘴三件套隔江对望,坐享丰盈配套!据悉,项目推出约320-641㎡洋房大平层,总价约5400万起!另外还有约850-1200㎡风貌合院别墅,总价1.5亿起!项目目前正在认购中!样板间线上提前预约!
天潼198设计效果图
洋房面积段约230-400m²,物业费每月21-22元/m²
小高层面积段约200-570m²,物业费每月20元/m²
风貌里弄住宅面积约110-890m²,物业费每月26元/m²
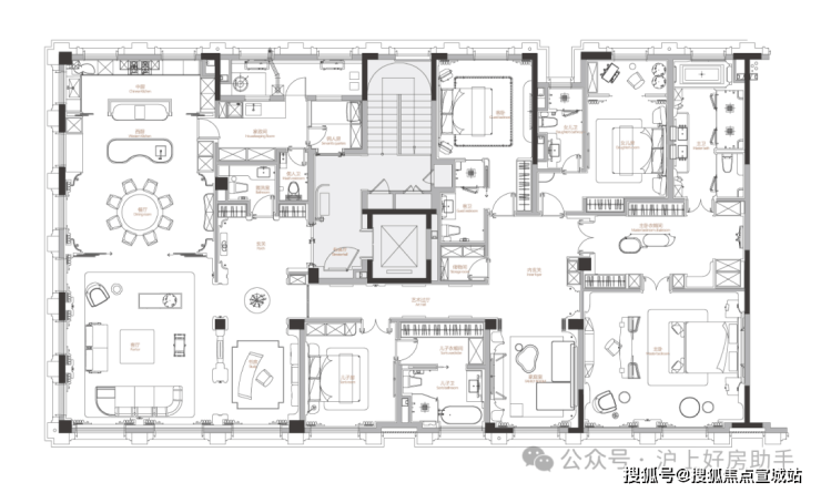
最新户型图独家首发:
建面408㎡大平层南向面宽26.8米,得房率89%

上海天潼198售楼处电话☎:400-8855-420✿✿【线上预约看房】
奢阔尺度·四开间朝南
南北通透,四开间朝南,LDK一体厅连双南向阳台,采光视野俱佳。
尊贵私域·动静分区
双南向套房,主卧配衣帽间与双台盆卫浴。玄关宽境,家政独立,动线清晰。
双厨配置·中西皆宜
北向中西双厨,动线顺畅,备餐待客从容。
四室六卫·主客分明
四房六卫,双公卫设计,私密与接待兼顾。
两梯一户·尊崇归家
专梯入户,分刷卡系统,归家私密安全。
上海天潼198售楼处电话☎:400-8855-420✿✿【线上预约看房】
四房三厅·南北通透
全景开间,通风采光极佳;独立电梯入户,动线清晰,私密有序。
主卧套房·私享阳台
宽阔主卧配衣帽间、五件套卫浴及南向阳台,私域舒适。
横厅一体·极佳视野
东向横厅连西厨、餐厅、客厅,面宽大,视野开阔。
上海天潼198售楼处电话☎:400-8855-420✿✿【线上预约看房】
五房三厅·多代宜居
南北通透,五开间布局,三套房保障私密共处。
双电梯入户·安静私密
专梯直达,动线清晰,归家更尊崇。
主卧套房·生活办公兼顾
配书房、衣帽间与五件套卫浴,动静分明。
全景客厅·南北通透
大面宽+L型窗采光通风佳,北侧露台拓展生活。
中心庭院·光景入室
引自然光入内,日常更有温度。
独立家政·动线合理
收纳、清洁、备餐分区明确,高效实用。
上海天潼198售楼处电话☎:400-8855-420✿✿【线上预约看房】
奢阔五室·中轴对称
南北通透,五开间朝南,中轴格局,270°环幕采光尽揽风景。
双梯入户·私密尊崇
双梯分流,十字玄关,礼序归家。
三厅分区·动线清晰
客餐分厅连庭院,中西双厨+独立家政,生活有序。
主卧套房·功能齐全
带书房、衣帽间、五件套卫浴,独立静享。
双庭多卫·实用有度
南向客厅灵动分区,双采光庭院引光入室,多卫设计便捷舒适。
上海天潼198售楼处电话☎:400-8855-420✿✿【线上预约看房】
上海天潼198售楼处电话☎:400-8855-420✿✿【线上预约看房】
上海天潼198售楼处电话☎:400-8855-420✿✿【线上预约看房】

上海天潼198售楼处电话☎:400-8855-420✿✿【线上预约看房】
天潼198合院效果图


天潼198合院效果图

上海天潼198售楼处电话☎:400-8855-420✿✿【线上预约看房】

天潼198效果图
小高层效果
四层叠拼效果|天潼路吴淞路口
上海天潼198售楼处电话☎:400-8855-420✿✿【线上预约看房】
四层叠拼效果|天潼路沿街立面
七层叠拼效果|吴淞路武昌路
合院效果|支弄透视
合院效果|支弄透视
合院效果|支弄透视
上海天潼198售楼处电话☎:400-8855-420✿✿【线上预约看房】
合院效果|支弄透视
新湖·天潼198位于北外滩核心区,在星荟中心东侧,豪景苑南侧。设计方案公示,住宅部分由洋房与叠加组成,规划有8幢4层里弄住宅(叠墅产品),1幢7层洋房,1幢9层小高层,还有底商和酒店。首开约209-641㎡洋房住宅59套,总价3400万-1.3亿左右!合院别墅20套左右地上四层地下两层花园100平左右地上面积520-800地下面积300-500平总价1.8亿-2.6亿左右!看房需提前一天预约!需要验资!户型图现场鉴赏!
上海天潼198售楼处电话☎:400-8855-420✿✿【线上预约看房】
上海天潼198售楼处电话☎:400-8855-420✿✿【线上预约看房】
新湖天潼198地块是豪景出让给新湖,并由商业属性改为住宅,对面就是外滩豪景苑。根据公示的项目规划设计方案显示,项目规划有8幢4层里弄住宅,1幢7层洋房,1幢9层小高层,还有底商和酒店。


上海天潼198售楼处电话☎:400-8855-420✿✿【线上预约看房】
新湖·天潼198就是虹口区北外滩街道HK231-01地块,位于乍浦路天潼路,距上海外白渡桥200多米,具体位置是东至吴淞路,南至天潼路,西至乍浦路,北至武昌路。
上海天潼198售楼处电话☎:400-8855-420✿✿【线上预约看房】
虹口区北外滩街道HK231-01地块建设用地范围:东至吴淞路,南至天潼路,西至乍浦路,北至武昌路;
规划用地性质:二类住宅组团用地、商业服务业用地建筑工程
性质:住宅;商业;
用地面积:18950.6㎡
总建筑面积:113000㎡
项目目前正在建设中,新湖将保留项目所在区域的地标和文化标志建筑,包括西本愿寺、景林庐等文保建筑,目前项目售楼处开放中。
上海天潼198售楼处电话☎:400-8855-420✿✿【线上预约看房】
附现场实拍图:
周边实景如下:
上海天潼198售楼处电话☎:400-8855-420✿✿【线上预约看房】
上海天潼198售楼处电话☎:400-8855-420✿✿【线上预约看房】
上海天潼198售楼处电话☎:400-8855-420✿✿【线上预约看房】
新湖·天潼198位于北外滩核心区,在星荟中心东侧,豪景苑南侧。设计方案公示,住宅部分由洋房与叠加组成,规划有8幢4层里弄住宅(叠墅产品),1幢7层洋房,1幢9层小高层,还有底商和酒店。
上海天潼198售楼处电话☎:400-8855-420✿✿【线上预约看房】
如位置图所示,新湖·外滩元和豪景苑位置邻近,几乎享受同样的周边配套。
交通方面:附近有地铁2号线、10号线和12号线,出行十分便捷。
教育方面:1公里左右,有7所幼儿园、5所小学、5所中学,教育资源丰富,文化氛围浓厚。
上海天潼198售楼处电话☎:400-8855-420✿✿【线上预约看房】
医疗方面:3公里左右,有7所三甲医院,为住户的健康生活保驾护航。
上海天潼198售楼处电话☎:400-8855-420✿✿【线上预约看房】
生活方面:2公里左右,有9座公园,完全可以满足老人的社交及娱乐需要。
上海天潼198售楼处电话☎:400-8855-420✿✿【线上预约看房】
该项目还可以步行至外滩,享受外滩的夜晚美景和顶级配套。
上海天潼198售楼处电话☎:400-8855-420✿✿【线上预约看房】
声明:本文由入驻焦点开放平台的作者撰写,除焦点官方账号外,观点仅代表作者本人,不代表焦点立场。
