中粮北外滩壹号 (售楼处) 电话 - 中粮北外滩壹号销售中心 - 环境 - 户型 - 价格 - 地址 - 楼盘详情 - 配套 - 电话 - 交房时间 - 配套 - 电话 - 楼盘欢迎您
扫描到手机,新闻随时看
扫一扫,用手机看文章
更加方便分享给朋友


中粮大悦城上海第五座壹号系,✅✅中粮北外滩壹号售楼处电话:400-8787-740✅✅“世界S湾壹号作品”——【中粮·北外滩壹号】开盘热卖中!

✅✅中粮北外滩壹号售楼处电话:400-8787-740✅✅
推售建面约185-228㎡天际大平层
过会均价143868元/m²✅✅中粮北外滩壹号售楼处电话:400-8787-740✅✅
最低单价11.75万起,总价约2188万
顶层地段+顶层社区+稀缺天际大平层价值,✅✅中粮北外滩壹号售楼处电话:400-8787-740✅✅错过再无!
准1梯1户设计,私享电梯厅独立入户,经典飞机户型,✅✅中粮北外滩壹号售楼处电话:400-8787-740✅✅三开间朝南,南北通透,动静分区,通风采光俱佳。
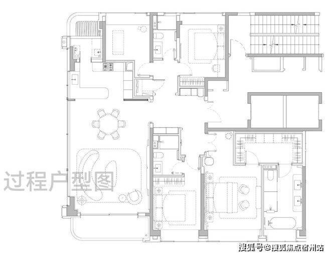
户型图赏鉴
✅✅中粮北外滩壹号售楼处电话:400-8787-740✅✅
185㎡四房奢阔大宅✅✅中粮北外滩壹号售楼处电话:400-8787-740✅✅
✅✅中粮北外滩壹号售楼处电话:400-8787-740✅✅
独立玄关做足私密性和仪式感;LDKB一体化设计的客餐厅面积达到约55㎡,✅✅中粮北外滩壹号售楼处电话:400-8787-740✅✅方正大气。
主卧套房尺度豪奢,可供业主配置步入式衣帽间,✅✅中粮北外滩壹号售楼处电话:400-8787-740✅✅卫生间做到双台盆+大浴缸+独立淋浴的顶配,尊崇感十足!
✅✅中粮北外滩壹号售楼处电话:400-8787-740✅✅
228㎡四房天际大宅
准1梯1户设计,私享电梯厅独立入户,户型尺度进一步升级,✅✅中粮北外滩壹号售楼处电话:400-8787-740✅✅当今顶豪新盘中极为稀缺的四开间朝南。
边厅面积超过50㎡,✅✅中粮北外滩壹号售楼处电话:400-8787-740✅✅给一家人提供了阔绰的交流空间;约270°环幕景观设计,带来极好的采光,并且高区可以直面陆家嘴城市天际线+黄浦江景观,视野相当震撼!
主卧大套房设计带超大主卫和衣帽间,面积约50㎡✅✅中粮北外滩壹号售楼处电话:400-8787-740✅✅,尺度感与市面上近300㎡的顶豪拉平。
室内设计由中国现代室内设计领域的领军人物——梁志天亲自打造✅✅中粮北外滩壹号售楼处电话:400-8787-740✅✅
在材质选用上,延续了壹号系的高端标准,✅✅中粮北外滩壹号售楼处电话:400-8787-740✅✅大量运用奢石、高难度弧形工艺以及国内外顶尖品牌。
如宝格丽大理石打造的西厨岛台、铂浪高的净水三合一水龙头和一体式大水槽、霍尼韦尔的前置过滤器、✅✅中粮北外滩壹号售楼处电话:400-8787-740✅✅全屋软水以及末端净水器系统、来自意大利法罗力燃气热水器、德国唯宝卫浴、当代龙头及花洒......还有全屋华为智能家居系统配置。这一套组合,是真正意义上的顶豪序列配置!
✅✅中粮北外滩壹号售楼处电话:400-8787-740✅✅
✅✅中粮北外滩壹号售楼处电话:400-8787-740✅✅
土拍回顾及规划
✅✅中粮北外滩壹号售楼处电话:400-8787-740✅✅
2023年9月5日,大悦城控股上海大区公司通过上海联交所成功竞得上海市虹口区北外滩116街坊地块(即中粮北外滩壹号)。地块位于北外滩红线内✅✅中粮北外滩壹号售楼处电话:400-8787-740✅✅,靠近大连路地铁站,与外滩、陆家嘴共同构成上海“黄金三角”。
项目四至范围:✅✅中粮北外滩壹号售楼处电话:400-8787-740✅✅东至保定路、hk367-02、hk367-05地块,南至昆明路,西至 hk367-03、hk367-04 地块,北至唐山路。
项目总用地面积约23849.2平方米,✅✅中粮北外滩壹号售楼处电话:400-8787-740✅✅容积率1.95,总计容建面4.65万㎡,是上海市中心罕见的无商办、无15%自持住宅、无5%保障房的纯住宅项目。
整体由一栋24F高层住宅和风貌别墅组成。高层共90套、产品面积段约180-228m²,风貌别墅共118套,产品面积段约130-350m²,✅✅中粮北外滩壹号售楼处电话:400-8787-740✅✅其中主力建面约203-205-230m²(占比约83%)
建筑立面✅✅中粮北外滩壹号售楼处电话:400-8787-740✅✅高层主体以仿红砖陶板+古铜色铝板+白色石材+玻璃幕墙的高标准结合,来完成建筑的美学表达。
✅✅中粮北外滩壹号售楼处电话:400-8787-740✅✅
风貌别墅则复刻海派石库门的韵味,但不同于大多数风貌别墅的格栅小花窗设计,「中粮·北外滩壹号」大幅增加窗墙比,✅✅中粮北外滩壹号售楼处电话:400-8787-740✅✅赋予相对沉闷里的里弄建筑,更通透、更明亮的特质!
公区方面,从归家社区大堂、大堂序厅、✅✅中粮北外滩壹号售楼处电话:400-8787-740✅✅以及入户单元大堂一路看过来,体现出一套脉络完整,层层递进的海派顶奢设计语言。
✅✅中粮北外滩壹号售楼处电话:400-8787-740✅✅
✅✅中粮北外滩壹号售楼处电话:400-8787-740✅✅
✅✅中粮北外滩壹号售楼处电话:400-8787-740✅✅
虽然项目仅有208户,仍然通过深挖三层,满配了高达约1800㎡的私享顶奢会所。按户均占有会所资源计来算,✅✅中粮北外滩壹号售楼处电话:400-8787-740✅✅这在当今顶豪圈是顶尖的水平。
会所由全球顶奢酒店设计领域的标杆——CCD香港郑中设计事务所执笔。目前看到的效果图,体现出一股醇正的老钱世家风,✅✅中粮北外滩壹号售楼处电话:400-8787-740✅✅设计品位远超市场同类豪宅。
社交宴会区内,私宴、茶室与专属酒吧一应俱全,✅✅中粮北外滩壹号售楼处电话:400-8787-740✅✅满足业主商务应酬到亲友小聚的各种场景需求。
瑜伽健身区,大幅落地窗引入自然光线,天花的格栅造型,✅✅中粮北外滩壹号售楼处电话:400-8787-740✅✅地面的复古拼花木地板,都透出浓厚的海派风情。
恒温泳池更是融入超级垂直花园庭院体系✅✅中粮北外滩壹号售楼处电话:400-8787-740✅✅,直接在泳池中做出美轮美奂的景观。
雅集共聚区内,除了常规的阅读,棋牌等功能外,✅✅中粮北外滩壹号售楼处电话:400-8787-740✅✅甚至设有一个舞蹈录音室,配置之高,沪上少见。
因为这是中粮大悦城的壹号系,珠玉在前,✅✅中粮北外滩壹号售楼处电话:400-8787-740✅✅小编完全不担心会所未来兑现的效果,甚至已经很期待看到未来会所开放展示的那一刻。
景观方面,设计了「八大主题场景」,✅✅中粮北外滩壹号售楼处电话:400-8787-740✅✅从百年梧桐下的静谧巷道,到充满未来感的艺术庭院,共同构成一个鲜活立体的生活剧场。
生活配套
交通方面:项目周围环绕三条地铁,✅✅中粮北外滩壹号售楼处电话:400-8787-740✅✅步行约360米到4、12号线大连路站,步行约560米到12、19号线(在建)提篮桥站。
地铁出行到人广和陆家嘴都只需要4站。未来,✅✅中粮北外滩壹号售楼处电话:400-8787-740✅✅随着在建的南北大动脉19号线贯通,可以直达世博、前滩等多个核心滨江段。
✅✅中粮北外滩壹号售楼处电话:400-8787-740✅✅
自驾上,项目往北约300米就是北横通道,往南车行约1公里,就是新建路隧道和大连路隧道直达浦东。从项目到陆家嘴、北外滩和外滩都在10分钟左右。
✅✅中粮北外滩壹号售楼处电话:400-8787-740✅✅
商业方面:项目出门就是高浓度的国际生活主场,步行可达北外滩来福士(约600米)、瑞虹天地太阳宫(约350米)、白玉兰广场(约1公里),✅✅中粮北外滩壹号售楼处电话:400-8787-740✅✅未来还将会兴建全球最火的时尚奢侈品商场之一的SKP。
半径3km内,还可以同时覆盖外滩、陆家嘴、苏河湾等“黄金三角”的繁华商业!✅✅中粮北外滩壹号售楼处电话:400-8787-740✅✅
教育方面:周边学府众多,优质教育资源密集。✅✅中粮北外滩壹号售楼处电话:400-8787-740✅✅北侧的长青学校是老牌的九年一贯制公办重点,南侧的上海中学国际部是知名民办名校,距离新华初级中学
(常年四校八大预录人数上百),新复兴初级中学,这两所虹口的顶尖民办学校也都在直线3KM内(新房不承诺对口学校,具体以实际为准)。
✅✅中粮北外滩壹号售楼处电话:400-8787-740✅✅
医疗方面:周边有复旦大学红房子妇产科医院,守护着每一个家庭的人生重要时刻。、以及三甲新华医院、上海市第一人民医院为健康生活保驾护航。
✅✅中粮北外滩壹号售楼处电话:400-8787-740✅✅
生态休闲:周边有22公顷无车漫步区、3.5万平方米航海公园与中央绿地相融,✅✅中粮北外滩壹号售楼处电话:400-8787-740✅✅3.4公里滨江休闲岸线
✅✅中粮北外滩壹号售楼处电话:400-8787-740✅✅
声明:本文由入驻焦点开放平台的作者撰写,除焦点官方账号外,观点仅代表作者本人,不代表焦点立场。
