海玥黄浦源(海玥黄浦源)2025年海玥黄浦源最新房价|海玥黄浦源交通地铁|户型配套|小区环境
扫描到手机,新闻随时看
扫一扫,用手机看文章
更加方便分享给朋友
【海玥黄浦源】售楼处电话:400-1010-064☎️☎️✅✅
案场预约制 看房需提前来电预约登记
温馨提示:点击上方号码可直接拨打电话
请务必致电与销售确认时间,仅预约客户可进入销售现场,感谢您的支持
虹口瑞虹新城地块以楼面价11.75万/㎡、溢价率38.2%成交,刷新上海“双高双竞”政策下的总价记录。
该地块由金茂与庆隆联合体竞得,未来可售单价或达16万-17万/㎡,这也将是未来虹口内环价格最贵的高层新房项目!
即便虹口新房价格未来走高,但在地段能级与配套成熟度上,与黄浦存在差距。这般价格与地段价值的鲜明反差,使得黄浦区均价14.5万/㎡【海玥黄浦源】在性价比维度脱颖而出,成为追求品质生活与资产保值增值购房者的不二之选,在楼市的天平上,清晰展现出其更胜一筹的优势。

最新消息,黄浦人民广场板块的【海玥黄浦源】清盘倒计时,沿苏州河的303㎡小高层住宅,及建面约198-281㎡的一江一河观景房源。
现少量建面约198-237-277-281-303-408㎡高层
过会均价145600/m²,总价约2500万起
本期推送的是2#和8#楼房楼房源
其中2#为超高层,北向可观小区绿化和苏河景观,高区可瞰三件套盛景,8#为正面苏州河的小高层。
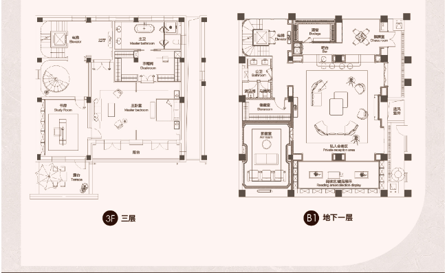
户型图赏鉴


【海玥黄浦源】售楼处电话:400-1010-064☎️☎️✅✅
案场预约制 看房需提前来电预约登记
温馨提示:点击上方号码可直接拨打电话
请务必致电与销售确认时间,仅预约客户可进入销售现场,感谢您的支持

【海玥黄浦源】售楼处电话:400-1010-064☎️☎️✅✅
案场预约制 看房需提前来电预约登记
温馨提示:点击上方号码可直接拨打电话
请务必致电与销售确认时间,仅预约客户可进入销售现场,感谢您的支持
建面约408㎡户型

以建面约277㎡为例
①、三套房设计:
其中南向双套房,主卧整体面宽达到约6米,在放置大床之后,床尾还能放置收纳柜。
南向的主卫在顶豪市场不多见,并配双台盆+淋浴+浴缸+马桶豪华四件套。
北向次卧离卫生间很近,相当于一个套房。所以,三个套房设计将私密性拉满。
样板间实拍图

②、超大社交空间、三厅联通:
该户型中轴线串联起阳台、客厅、岛台、餐厅、家庭厅,一线贯穿,南北通透。
顶豪社交空间格局,普遍只有餐厅、客厅和阳台,该户型在南侧配置了一个家庭厅着实巧妙,可以是业主的茶室,也可以是女主人的手工室,当然也可作为X空间,随家庭结构和需求随心定制,书房、学习区、游戏区,女王化妆间等皆可。
总之,这一定是家庭的欢乐场。
样板间实拍图

【海玥黄浦源】售楼处电话:400-1010-064☎️☎️✅✅
案场预约制 看房需提前来电预约登记
温馨提示:点击上方号码可直接拨打电话
请务必致电与销售确认时间,仅预约客户可进入销售现场,感谢您的支持
餐厅位置非常宽裕,8人桌随便摆,大家庭聚餐其乐融融。
中间的西厨岛台是点睛之笔,既起到联动南北的作用,比如你在此料理可同时与客厅、餐厅的家人互相交谈,同时这中间一间隔,又让客厅、餐厅相互独立。
当然,如果你平时喜欢开party,这个岛台是再好不过的中心点,因为它就是整个户型的中心,连接了所有业主的生活。
样板间实拍图

客厅拥有双向采光和通风,配侧向内开内倒窗。
样板间实拍图

此外,该户型还有独立的家政间,增加收纳及衣物清洗,并设计在南侧利用率较高的卧室动线上。
③、极致视野,拥千亿盛景。
该户型只有极致景观楼层才有,南向景观面达约13.5米,无遮挡,南向两个卧室均有很好的视线通达性。
北向阳台、北次卧更拥浦西几乎唯一的无遮挡高区极致景观视野,览陆家嘴、苏州河盛景。
样板间实拍图

部分风貌别墅户型图



【海玥黄浦源】售楼处电话:400-1010-064☎️☎️✅✅
案场预约制 看房需提前来电预约登记
温馨提示:点击上方号码可直接拨打电话
请务必致电与销售确认时间,仅预约客户可进入销售现场,感谢您的支持

地块回顾及规划
海玥黄浦源地处黄浦静安交汇处,南临人民广场,北临苏州河,地理位置得天厚。地铁1号线新闸路站、13号线自然博物馆站、黄河路美食街、南京东路步行街、游艇码头、雕塑公园等都近在咫尺,是上海建工倾力打造的市中心品质小区。

海玥黄浦源即为新昌城二期,整个项目是新昌路001、006、007街坊三个地块组成,分两期开发,项目一期(6#)就是【上海滩新昌城】,内环内有名的品质住宅小区,已经交付多年!
项目由南北两幅地块组成:就是上述的001、007街坊,即称1#地块和7#地块,其中,
1#地块四至范围:东至新桥路,南至新闸路,西至成都北路,北至成都北路1012弄。
7#地块四至范围:东至新昌路,南至北京西路,西至成都北路,北至山海关路。
绝对的黄金地段,其中1号地块临苏州河,离1号线新闸路站也很近。
7号地块离人民广场直线距离只有约500米
【海玥黄浦源】售楼处电话:400-1010-064☎️☎️✅✅
案场预约制 看房需提前来电预约登记
温馨提示:点击上方号码可直接拨打电话
请务必致电与销售确认时间,仅预约客户可进入销售现场,感谢您的支持
1#地块:分为南北两块:南块,东至新桥路,南至新闸路,西至成都北路,北至成都北路1012弄;北块,东至新桥路,南至新桥路51弄,西至九子公园,北至南苏州路。未来主力产品为超高层住宅。
根据规划方案显示,1#地块总用地面积:26438㎡;总建筑面积:20165㎡,其中地上建筑面积:146743.8㎡,地下建筑面积:54912.2㎡。
项目只有四幢住宅,其中,1#南地块包含3栋(1-3号楼)、1#北地块仅1栋(4号楼)
1#楼49层,总高165米;
2#楼44层,总高142.8米;
3#楼45层,总高145.65米;
4#楼16层(目前已售罄),总高53.70米。

约165米超高层,刷新黄浦天际线,更由外而内,尽显超高品质!
地段天赋甚高,其实在这样的市场下海玥黄浦源真的不用太努力。
但这是一家对品质精益求精的开发商,从高度、外立面、社区到户型都精益求精。
海玥黄浦源由世界500强上海建工集团打造,其建筑品质,建筑规划在国内都是首屈一指。
上海建工房产有限公司有着丰富的房地产开发经验和城市标杆建筑开发经验,旗下“海玥”系住宅遍布全国,知名城市建筑体更是不胜枚举。
相信在如此强有力的开发背景下,海玥黄浦源必定会展现出卓越的品质。
项目效果图

1、约165米超高层,傲立黄浦之巅!既是身份象征,又有瞰遍市中心的视野!
地标,尤其是地标天际线,既成就了一座城市的繁华,也是人们对世界级城市直观的形象印记。
海玥黄浦源一号地块由1幢高层和3幢超高层组成,最高的1号楼建成后将高达约165米,这个高度既刷新了黄浦天际线,更超过了汤臣一品、华侨城苏河湾等超高层住宅。
从建筑高度、项目调性上,海玥黄浦源已剑指上海尖端豪宅!
项目效果图

从全上海看,不管地段、形象还是恢弘性,几乎没有能超越海玥黄浦源的,堪称全国新地标、楼王!
这一地标属性,也为项目增添了一份收藏价值,以及油然而生自豪的身份感!
而登高之后,你就能明显感受到超高层住宅的景观优势。
华灯初上,外滩恢弘夜景、陆家嘴三件套闪耀的璀璨灯光、“恒梅泰”商圈摩天大楼灯光流转变幻,脚下街角巷陌霓虹闪烁,你所能想到的关于上海的亮眼景色,都被一一收入眼底。
2、外立面不计成本,采用大面积铝板!
从效果图看,海玥黄浦源通过古铜色、深灰色+铝板、镜面铝板的完美搭配,再镶嵌竖向线条和立面层次,体现出威仪肃穆的高级感。
项目效果图

这样的高级感,背后是高昂的成本。因为铝板的费用非常高昂!你可以认为,这是品质房企给购房者带来的颜值红利。
而且,同样的铝板外立面,也是分三六九等。一些号称铝板外立面的楼盘,往往一般只是南立面采用,因为投入实在太大。
而项目外立面采用大面积铝板,并且铝板为大块整装铝板,而非小块拼接铝板。造价和其呈现出的品质工艺和视觉感觉在同区域里傲视群雄。
值得一提,项目建筑设计与外滩万国建筑博览群的建筑风格一脉相承,为ARTDECO风格,三段式立面,塑造出有立体感的韵律天际线!
项目效果图

3、项目内部围合起近3000㎡的开放式绿地!
一般市中心项目不会有太集中的中心景观,因为寸土寸金,地太值钱了。
而这一次在海玥黄浦源,因地制宜进行“一星四叶”的建筑排布,围合出了市中心罕见的3000㎡集中景观。
并借鉴海派大都会园林的的摩登、精致、艺术、惬意之精髓,以水为径、以形为礼、以园为厅,打造情景交融的塔尖圈层社区场景。
项目示意图,仅供参考

另外,在社区景观轴线的布局方面,海玥黄浦源非常注重空间序列和对位关系,营造出强烈的仪式感。
值得一提,1号地块还紧邻九子公园、苏州河景观步道等,这样就形成了内外双绿地的格局,为高净值人士营造了市中心难得“出则显、入则藏”的居住氛围,可一键从繁华快生活切换到诗意慢生活。
4、挑高入户大堂!
海玥黄浦源在超高层中配置了挑高入户大堂,充分将空间的尺寸发挥到极致。
通过智慧化管理电梯梯控设计,也充分考虑了业主的居住安全性和尊贵感,精雕细琢入户仪仗,用心铺排归家之礼。
项目效果图

5、多元化高端配套!
小区沿新闸路界面两边将延展高端商业配套,这样小区外面既有商业,又有绿地、浓厚的人文建筑,未来这里新旧结合,洋气与烟火气融合交织。

【海玥黄浦源】售楼处电话:400-1010-064☎️☎️✅✅
案场预约制 看房需提前来电预约登记
温馨提示:点击上方号码可直接拨打电话
请务必致电与销售确认时间,仅预约客户可进入销售现场,感谢您的支持
再看7#地块。根据规划,项目总用地面积46089㎡、总建筑面积178560㎡ 、其中,地上建筑面积60275㎡,地下建筑面积118285㎡。
和1#地块相比,7号地块的容积率只有约1.3,限高12米。地上规划大多为2-3层。
地下空间建设层数不大于三层,地下一层建设范围不大于4.35万平方米。
7号地块产品为建面约22-660㎡风貌别墅。
而且7号地块有非常多的优秀历史建筑,比如浦行别墅、陇西里、新余里、裕洪里、承德坊、道达里等。
深居城心,人文底蕴深厚的别墅,直接把期待值拉满啊!
项目效果图如下:



【海玥黄浦源】售楼处电话:400-1010-064☎️☎️✅✅
案场预约制 看房需提前来电预约登记
温馨提示:点击上方号码可直接拨打电话
请务必致电与销售确认时间,仅预约客户可进入销售现场,感谢您的支持

生活配套
至于配套方面,项目是城市核心位置,去哪里都方便,所以这里就简单跟小伙伴们说下
交通方面:项目紧邻地铁1号线、13号线及南北高架,公共出行或自驾都十分便捷。
实景图
商业方面:项目周边有人民广场、南京东路、南京西路等高端集中商圈。
教育方面:项目周边有上海市黄浦区曹光彪小学、上海市格致初级中学等知名院校。
生态休闲:静安雕塑公园就在附近。
医疗方面:周边有上海市长征医院、上海市静安区北站医院、上海市静安区中心医院等。
【海玥黄浦源】售楼处电话:400-1010-064☎️☎️✅✅
案场预约制 看房需提前来电预约登记
温馨提示:点击上方号码可直接拨打电话
请务必致电与销售确认时间,仅预约客户可进入销售现场,感谢您的支持
声明:本文由入驻焦点开放平台的作者撰写,除焦点官方账号外,观点仅代表作者本人,不代表焦点立场。
