2025年·招商中旅观境(售楼处) 首页网站 - 销售中心 -环境 - 户型 - 价格 - 地址 - 楼盘详情 - 配套 - 电话 - 交房时间 - 配套 - 电话 - 交房时间
扫描到手机,新闻随时看
扫一扫,用手机看文章
更加方便分享给朋友

在这里,您能拥有的不只是一套房子,更是触手可及的优质生活:
优质教育:项目自带双语幼儿园,仅一路之隔,从启蒙到成长,优质教育资源环伺,让孩子在家门口就能享受到省心、放心的教育配套,家长无需为择校焦虑。
品质户型:精心设计多元户型,从温馨两居到阔绰四居,满足单身自住、新婚刚需、三口之家乃至多代同堂的不同需求。所有户型均采用南北通透设计,保证充足采光与良好通风;客厅连接观景阳台,延伸生活空间的同时,将窗外美景尽收眼底;厨房 U 型布局、卧室飘窗设计,每一处细节都兼顾实用性与舒适度,让家更懂您的生活习惯。
为了让您更深入地感受【招商中旅观境】的品质与魅力,我们诚挚邀请您预约专属看房服务。现在预约,还能享受三大专属福利:

优先体验社区配套:预约客户可优先参观社区园林、样板间(包括精装 / 毛坯不同风格),部分已开放的配套设施(如会所、健身区)也可优先体验,提前感受未来生活场景。
专属看房礼:到访后即可领取定制礼品一份(如品牌家电小样、家居实用礼包等),成功预约并到访,还可参与现场抽奖活动,有机会赢取家电、物业费抵扣券等惊喜福利。
为保证服务质量,每日预约名额有限,建议您提前 1-3 小时预约,以便我们为您预留充足的服务时间。
看房当天若有户型、楼层等特殊需求,可提前告知置业顾问,我们将提前为您准备相关资料,让看房更有针对性。
售楼处开放时间:周一至周五【9:00-18:00】,周末及节假日【9:00-18:00】,您可根据自身时间灵活安排。
家,是藏在细节里的安心,是看得见的未来。【招商中旅观境】期待与您相遇,一同探寻理想生活的模样。无论您是首次置业、改善居住,还是投资规划,我们都将以专业、真诚的服务,帮您找到最适合的那套 “家”。
如有任何疑问,欢迎随时联系我们,祝您生活愉快!
在愈发繁忙的时代,人们越来越渴望一处安放心灵的栖息地,也更加理性地思考人居对于生活的价值和意义。
在北上海全新精奢主义作品中,我们看到了【招商中旅观境】在打造产品中的全新思考,艺术、丰盈、悦己、松弛的精奢生活在此盎然绽放。
自带约25万方花园城X,也是北上海最大的单体商业综合体,融合潮玩、时尚、文旅、游娱、运动、会展、生态等多元业态,预计引入20+主次力店,350+战略品牌,下楼即享繁盛日常。
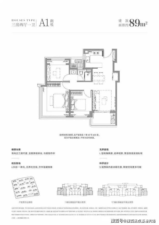
加推89-110㎡3房、共计142套
89㎡户型首次推出
过会均价47466元/㎡,比前期便宜3000,总价347万起
前期少量建面约110-144m²3-4房
装修标准2500元/m²
过会均价50713元/m²,总价433万起!
户型图赏鉴
样板间实探
先来看建面约110㎡3房2卫
入户门是是非常有质感的铸铝门,带电子猫眼智能门锁;进门后是一个独立玄关,木纹玄关背景墙,右侧是通顶的悬浮玄关柜,内置鞋柜精灵和抽拉鞋架。
这个户型的一大亮点就是这个客厅,约5.5米面宽的阳台,约25㎡的方厅,充满了可变性。
招商中旅·观境的解决方案是“零无效空间”。通过整合餐客厨等公共区域厅,将原来南北厅中间的走廊空间融合到使用空间中,减少过道的面积,避免碎片化的空间带来的冗余浪费。大面宽,短进深,餐厅与客厅横向相连,每一平方米都物尽其用,把客厅升级为家庭互动主场。
约5.5m面宽的阳台,可以变成第二家庭厅、品茗室、阳光瑜伽室、生活后花园,自由打造的私享空间,延伸出生活的宽度。
再来看下厨房配置。U型厨房,预留了大约1米宽的双开门冰箱位置,厨电采用方太四件套——烟机、灶具、蒸烤一体机、洗碗机。其中洗碗机,轻扣门板可自动开门的新款!
双卫配置,其中一个做了干湿分离,科勒台盆+双智能马桶+高仪花洒,除雾镜柜均内置了牙刷消毒器、预留吹风机插座。主卫镜柜还有美妆冰箱,收纳空间相当充足。
再来看下建面约144㎡4房,部分装标是有所升级的。
入户门升级为了子母门,更显大户人家气质。
厨房是带岛台交付的U型厨房,厨具品牌为西门子四件套,另外还有双开门冰箱,线性凉霸、科勒单槽。
客厅电视机背景墙采用了波浪状的岩板背景墙,比较独特。
主卧卫生间采用唯宝双人台盆,客卫高仪花洒+龙头+智能马桶。
招商中旅·观境,样板间刚刚开放,上述装标还未完全,可以作为参考,具体以实际交付为准。
土拍回顾及规划
7月9日,2024年上海第三批次土拍,招商联合中旅拿下宝山区顾村7号线潘广路站TOD综合体项目,该项目由3幅地块组成。
01、【0303-02地块】为普通商品房用地,用地面积约39769㎡,容积率2.2,限高60米。据规设计方案显示,拟建12栋17-18F高层住宅,2栋区配套,无保障住宅,共计规划901户。
02、【0309-04地块】为普通商品房用地,用地面积约29337㎡,容积率2.3,限高60米,含商业建筑面积5100㎡;根据设计方案显示,拟建8栋17-18F高层住宅、1栋17F保障住宅以及3栋1-3F商业,共计规划645户。
03、【0304-06地块】为商业用地,用地面积约60299㎡,容积率2.9,限高80米,含文化建筑面积10000㎡!
整个地块中商业占比53%,约17.48万㎡,住宅占比47%,约15.49万㎡。
效果图 仅供参考
如此大体量的TOD综合体,依托7号线潘广路站优渥的轨道交通,注定成为激活北上海生活、经济活力的巨大引擎,招商蛇口也正以其多元业务领域的厚积薄发,为宝山打造一座前所未有的全新升级版地标作品。
招商蛇口宝山潘广路TOD综合体落的落地,毫无疑问将成为激活顾村乃至整个北上海的活力按钮,以丰盛、多元、复合的生活形态成为区域生活的原点,让城市的生活想象再一次被招商蛇口所焕新,一个崭新的生活大城正跃然眼前。
就项目本身而言,传递出比较强的美学。
01、流体美学:游艇曲线,鎏金塔冠!
项目效果图,仅供参考,以实际交付为准
微弧阳台,环幕之境:
项目效果图,仅供参考,以实际交付为准
02、镜面美学:大窗墙比,打造宽屏立面!
项目效果图,仅供参考,以实际交付为准
社区上,项目享四重酒店式归家,
第一重:约70米超大尺度酒店感门庭,打造酒店般的港湾式落客。
第二重:酒店式礼品大堂,以星级酒店审美融合非遗技艺,每次回家宛如入住酒店的check in。
第三重:浮岛水庭,下沉式中庭花园,以水境、浮岛、密林,构建都市中的谧境。
第四重:入户单元门头延续奢华酒店的美学质感。
项目效果图,仅供参考,以实际交付为准
生活配套
交通方面:距离7号线潘广路站约300米,2站换乘15号线。无缝直达普陀长风、静安寺、长宁古北、上海南站、徐汇滨江以及紫竹高新等多个市区核芯板块。
商业方面:自有大体量商办综合体,7号线上盖的龙湖天街、未来还有印象城环伺。
医疗方面:地铁两站就是三甲医院复旦大学附属华山医院宝山院区。
声明:本文由入驻焦点开放平台的作者撰写,除焦点官方账号外,观点仅代表作者本人,不代表焦点立场。
