兰香湖贰号首页官网网站-兰香湖贰号售楼处电话-楼盘详情-交房时间-地址-兰香湖贰号最新房价户型图-小区环境-楼盘详情-交房时间-周边配套-售楼处电话
扫描到手机,新闻随时看
扫一扫,用手机看文章
更加方便分享给朋友
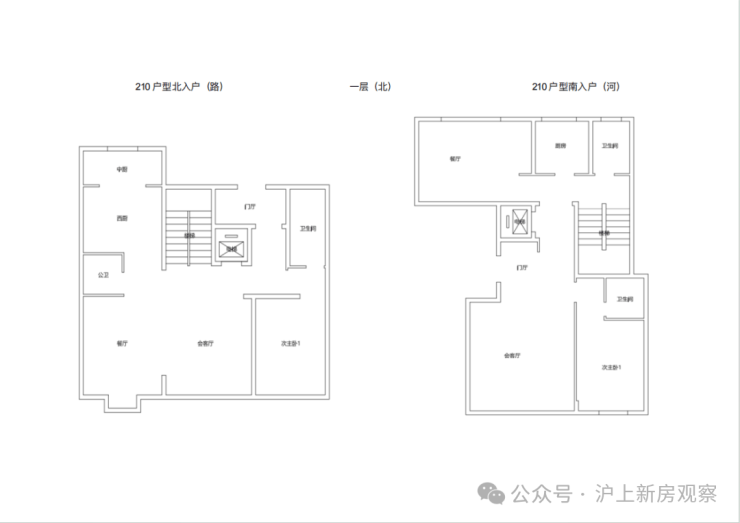
闵行滨江临湖别墅社区0.6容积率+私家湖景+一线江景「兰香湖贰号售楼处电话:400-1010-064☎️☎️✅✅《官方认证》兰香湖贰号官方售楼处电话/地址:400-1010-064☎️☎️✅✅《官方认证》」建面约210㎡法式双拼热销中,准现房,国际一线大牌精装交付,总价约2500-3000万。

兰香湖贰号售楼处电话:400-1010-064☎️☎️✅✅《官方认证》兰香湖贰号官方售楼处电话/地址:400-1010-064☎️☎️✅✅《官方认证》
根据区位图,兰香湖贰号在兰香湖壹号的南侧,位于整个兰香湖生态社区的西南方向。

兰香湖贰号售楼处电话:400-1010-064☎️☎️✅✅《官方认证》兰香湖贰号官方售楼处电话/地址:400-1010-064☎️☎️✅✅《官方认证》
项目容积率0.6,是闵行滨江第一个旗舰别墅项目,全屋精装交付均为国际一线大牌,物业为紫泰物业(上海世博会物业服务供应商;檀宫别墅物业服务)。
西区布局图↓

兰香湖贰号售楼处电话:400-1010-064☎️☎️✅✅《官方认证》兰香湖贰号官方售楼处电话/地址:400-1010-064☎️☎️✅✅《官方认证》


兰香湖贰号售楼处电话:400-1010-064☎️☎️✅✅《官方认证》兰香湖贰号官方售楼处电话/地址:400-1010-064☎️☎️✅✅《官方认证》

兰香湖贰号售楼处电话:400-1010-064☎️☎️✅✅《官方认证》兰香湖贰号官方售楼处电话/地址:400-1010-064☎️☎️✅✅《官方认证》
精装修标准
入户门:博世电子门锁
套内:诺贝尔瓷砖,德国柏丽橱柜厨卫,高仪或弗兰卡厨房龙头,美诺 (Meile)冰箱,高仪淋浴花酒,部分户型配贝蒂 (BETTTE)独立浴缸,配杜拉维特牌马桶
净水/软水系统:配置怡口前置过滤器、中央净水机及中央软水机
地暖:威能地暖系统
空调:大金冷暖中央空调及新风系统,地下室配霍尼韦尔除湿机
电梯:日立
板块配套
兰香湖从2018年9月3日正式启动建设,占地40万平方米,地处紫竹高新区的核心区域,是距离上海市中心最近的一个人工湖泊。
兰香湖贰号售楼处电话:400-1010-064☎️☎️✅✅《官方认证》兰香湖贰号官方售楼处电话/地址:400-1010-064☎️☎️✅✅《官方认证》
兰香湖贰号位于闵行区吴泾的紫竹高新技术产业开发区,紫竹园区是上海四大高科技园区中唯一以美国硅谷为蓝本设计的高新开发区,也是南上海的科技中心,汇聚了一大批世界500强和研发总部。作为国家级别的高新区,紫竹国家高新区的重任显而易见,其产业主要以信息软件、数字视听、生命科学、智能制造、航空电子、新能源与新材料为支柱的高端产业结构。
从2002年6月奠基到现在,紫竹高新园区经历了20年腾飞发展!
作为上海四大高科技园区中唯一以美国硅谷为蓝本设计的高新开发区,紫竹高新园区仅入驻企业就已达2000余家,其中不乏英特尔、微软、可口可乐等世界500强和研发总部,丝毫不输浦东张江,这里就是南上海的科技中心!
在知识产权工作的有力支撑下,紫竹高新区高质量稳健发展。2022年伊始,紫竹在全国高新区综合排名中又一次刷新纪录,10年实现“九连跳”,在全国169家国家高新区中综合总排名位列第九。
而紫竹并没有停下脚步,在沿滨江岸带,紫竹高新园区还将继续扩建!
兰香湖贰号售楼处电话:400-1010-064☎️☎️✅✅《官方认证》兰香湖贰号官方售楼处电话/地址:400-1010-064☎️☎️✅✅《官方认证》
整个兰香湖生态社区,沿着兰香湖约40万㎡的湖区,打造约3.7公里的岸线。湖边规划有众多高端配套,比如商业街、星月步道、赛艇俱乐部、兰香湖度假酒店阳光乐园。还有丰富的水上运动项目、马术俱乐部和各种体育运动场地。未来的兰香湖生态社区,就是一种健康生活的休闲样板。
兰香湖贰号售楼处电话:400-1010-064☎️☎️✅✅《官方认证》兰香湖贰号官方售楼处电话/地址:400-1010-064☎️☎️✅✅《官方认证》
未来以兰香湖为原点,将构建起一个高品质的环湖宜居社区。湖边规划有兰香湖酒店,很适合周末开车度假遛娃。吃喝玩乐可以选择商业街,带你尝遍网红美食。亦或是在工作之余漫步星月步道,领略文化艺术长廊,让疲劳的身心真正放松下来。除此之外,还规划活力公园、艺术地形公园、青少年活动中心等不同功能的区域。

兰香湖贰号售楼处电话:400-1010-064☎️☎️✅✅《官方认证》兰香湖贰号官方售楼处电话/地址:400-1010-064☎️☎️✅✅《官方认证》
作为“产城融合”的创新型产业社区,2022年8月,市政府常务会议刚刚原则同意了《推进“大零号湾”科技创新策源功能区建设方案》,其中提到:闵行“大零号湾”要与杨浦国家创新型城区、已具备辐射能力的浦东张江科学城以及在建的青浦华为基地一起,形成东、西、南、北各具特点的全市创新格局,共同支撑起建设具有全球影响力的科创中心。
而紫竹高新区正是大零号湾的重要组成部分!
《上海市闵行主城片区南部板块单元规划》重磅公示
根据规划,未来的大零号湾,将充分释放上海交通大学、华东师范大学以及周边科研院所的创新资源,借鉴硅谷、剑桥等国际经验,建设“环高校科创带”,聚焦科技成果转化和“硬科技”创业集聚示范,打造国际知名、国内一流的产城融合的世界级“科创湾区”。
配套全面升级!大紫竹的新一轮城市更新正在进行
“大零号湾”打造上海南部科创中心,少不了人才的持续涌入与成长。而最能吸引青年人才的就是:高品质的城市配套和宜居的生态环境。
根据《吴泾镇“十四五”规划》,大零号湾规划要高品质打造特色化大学商业街,着力推动社区商业提质升级,提升区域整体发展活力。
兰香湖贰号售楼处电话:400-1010-064☎️☎️✅✅《官方认证》兰香湖贰号官方售楼处电话/地址:400-1010-064☎️☎️✅✅《官方认证》
目前,紫竹高新区站双轨交上盖TOD综合体——紫竹数码广场在建中,广场总建筑面积约25.56万方,涵盖约12万方研发空间、约3700㎡小型剧场、约3000㎡精品超市、约3000㎡企业展厅。其中6栋办公楼,保持一贯高水准,迎接世界500强入驻。其余办公楼,首层与B1层改商业功能,南侧变为沿街商业,建成后将填补板块内高端商业空白。(信息来源:今日闵行)

兰香湖贰号售楼处电话:400-1010-064☎️☎️✅✅《官方认证》兰香湖贰号官方售楼处电话/地址:400-1010-064☎️☎️✅✅《官方认证》
在建轨交23号线江川东路站,规划了总建面约56万方的国家级网络视听产业基地——科技金融港。对标地区在“大零号湾”的定位,将规划以办公和商业为主,进一步完善地区公共配套和研发功能。(信息来源:今日闵行)

交通配套
随着地铁15号线的即将建成开通和未来23号线的实施,兰香湖其实是市中心出发最便捷的一大湖系资源。申嘉湖高速,沪金高速,将助力紫竹实现发展的进阶。
商业配套
兰香湖将是高新区生态、人文、科技理念的集中体现,未来将在近4公里的岸线上将会串联起商业北街、星月步道、文化艺术长廊、赛艇俱乐部、商业南街、活力公园、艺术地形公园、青少年活动中心等;周边还有吴泾宝龙广场、紫叶广场。
医疗资源
近邻复旦大学附属第五人民医院,同时它距离吴泾医院只有差不多2公里,可以说兰香湖壹号周边的医疗资源比较丰富,住在这里就不用担心医疗资源这个问题。

兰香湖贰号售楼处电话:400-1010-064☎️☎️✅✅《官方认证》兰香湖贰号官方售楼处电话/地址:400-1010-064☎️☎️✅✅《官方认证》
教育资源
华师大紫竹基础教育园区内包括华东师范大学附属紫竹幼儿园,华东师范大学附属紫竹小学、华东师范大学第二附属中学附属初级中学、华东师范大学第二附属中学(紫竹校区)、上海民办华东师大二附中紫竹双语学校(私立九年一贯制)等全龄段教育资源。(期房不承诺学区,以后期主管部门公示为准)

兰香湖贰号售楼处电话:400-1010-064☎️☎️✅✅《官方认证》兰香湖贰号官方售楼处电话/地址:400-1010-064☎️☎️✅✅《官方认证》
值得一提,围绕着兰香湖,除了兰香湖壹号、兰香湖贰号,还将有兰香湖雅苑、兰香湖3号等住宅,未来沿湖一圈皆是高端居住氛围。
沿着近4公里的岸线,更还有商业北街、游艇码头、赛艇俱乐部、商业南街、兰香湖酒店以及阳光乐园、活力公园、艺术地形公园、青少年活动中心、马术俱乐部等十多个景观节点。
兰香湖贰号售楼处电话:400-1010-064☎️☎️✅✅《官方认证》兰香湖贰号官方售楼处电话/地址:400-1010-064☎️☎️✅✅《官方认证》
声明:本文由入驻焦点开放平台的作者撰写,除焦点官方账号外,观点仅代表作者本人,不代表焦点立场。
