林屿湖畔-招商·林屿湖畔售楼处首页网站-上海松江(招商林屿湖畔)户型配套-2025最新房价曝光

搜狐焦点孝感站 2025-09-10 15:18:58
用手机看
扫描到手机,新闻随时看

扫一扫,用手机看文章
更加方便分享给朋友

招商·林屿湖畔售楼处电话:400-1010-064☎️☎️

招商·林屿湖畔售楼处电话:400-1010-064☎️☎️✅✅《官方认证》

招商·林屿湖畔官方售楼处电话/地址:400-1010-064☎️☎️✅✅《官方认证》

8月30日,今年备受瞩目的嘉定首个积分红盘——招商·林屿湖畔迎来盛大首开!仅用34分钟, 劲销9.2亿,首批次去化率100%。

首开130套建面约122、145㎡的4.0迭代湖居奢宅,以5.27万元/㎡的均价入市,一席竞藏!首批次认购4天认购比例1:1.3,触发积分;现场15秒钟便成交一套,人声鼎沸、礼炮迭起!

作为招商蛇口高端产品战略深耕上海20年后的又一力作,林屿湖畔项目凭借远香湖CAZ头排收官的珍贵宅地+招商蛇口“首席设计顾问制”高端资源经营能力+6大嘉定首见的产品亮点,林屿湖畔让嘉定5万+的产品,呈现出媲美市区10万+的场景质感。高燃的绝对实力,见证一座湖的现象级热销传奇!

上海外环的 城市自然 作品真的来了!招商林屿湖畔,一个多方位领先全市的新房项目。

我们可以先概括总结一下:

位于外环外 唯一的CA Z板 块核心区 ,大型商业、顶级教育、高端医疗、丰富生...步行范围内享受的 资源集中度堪比前滩 ;

远香湖CAZ板块内 最后一块宅地 ,一旦入市就是区域内房龄最新、产品力最强的项 目,一手掌握整个片区的定价权;

外环外仅有的建面约112㎡起纯粹高端改善型社区,双/三阳台、类一梯一户、超级收纳,卷到头的户型设计;

约87米艺术门庭、约13.7米双层归家大堂, 迭代到最新的产品力 ;

...

从地段、配套、社区用料、立面/公区审美、户型设计、宜居度甚至是投资属性, 招商林屿湖畔都称得上是遥遥领先。

嘉定2025王者地块

嘉定新城核心 一线“湖景+河景”

远香湖4.0迭代湖畔奢居产品

招商·林屿湖畔

建面约112㎡-165㎡湖居奢宅

二批次预约9月1日开启

兴趣伙伴可扫码对接销售预约咨询参观

一房一价👇

招商·林屿湖畔售楼处电话:400-1010-064☎️☎️✅✅《官方认证》

招商·林屿湖畔官方售楼处电话/地址:400-1010-064☎️☎️✅✅《官方认证》

01.

基本信息

3月3日,上海2025第二批次土拍,经过49轮竞价,招商蛇口以266030万元的总价摘得嘉定新城远香湖F03A-4地块,溢价率30%,成交楼板价约31850元/㎡。

招商蛇口高端作品,皆由各团队首席设计师整体负责。秉持构建美好生活的初衷,凝翠品牌核心产品力的理念植入每一席作品。从各维度寻找的具备全球视野 ,深谙高端人居,聚集享誉业界的数十位杰出设计师合力担当,为招商高端著品的呈现倾力而为。

林屿湖畔即是招商蛇口集团首席设计师牵头,沉淀多年高端产品打造经验,整合高端产品系同源知名设计师团队 , 甚至聘请灯光顾问的超细节设计作品。无论是材质、色彩还是造型,高度统一化设计,呈现出嘉定新城超规格的存在。

四大迭代产品力,第四代湖居迭新奢宅

作为招商蛇口在沪上的首部度假式湖居巨著,林屿湖畔雄踞嘉定新城CAZ核心,以"自然而然的贵重"为设计灵魂,融汇前沿的全球设计语汇,为当代高净值人群量身打造"重回一倍速"的湖畔度假生活方式。

四大核心产品力共同筑就4.0湖居沉浸式奢居新标杆:招商林屿湖畔,以湖居母本,成就献给城市的未来恒产,它以土地敬畏之心重构自然与奢居的关系,以人本洞察回应塔尖人群的精神诉求,以全球视野重塑“出门即繁华,归门即度假”的生活母本。

招商·林屿湖畔售楼处电话:400-1010-064☎️☎️✅✅《官方认证》

招商·林屿湖畔官方售楼处电话/地址:400-1010-064☎️☎️✅✅《官方认证》

林屿湖畔采用"首席设计师负责制",由首席设计师统筹产品经理、大师团队及专业顾问,高效整合全球顶尖设计资源。

用料上,顶豪同款的铝板+石材。无需多言,这就是目前上海立面中更好、更昂贵的用料。

审美上,飞檐设计+阔景画框。最高约0.35的超大窗墙比,超越上海常规住宅标准。

林屿湖畔的大门,全跨约87米,是全嘉定首个超长全弧形叠石工艺的艺术门庭!近人位置的建筑片墙都采用大块“沙漠风”石材切割,同源市区16w+项目康定壹拾玖米黄石材,最大程度以原石肌理还原自然氛围,庄重优雅又不失松弛感。

采用大块切割打磨圆润弧度的沙漠风石材、约10cm递减旋转叠石,内藏灯带,形成了微妙的三角形透视视角,这种充满艺术感的向心性视线设计,在知名建筑卢浮宫的三角门头上也有使用。

招商·林屿湖畔售楼处电话:400-1010-064☎️☎️✅✅《官方认证》

招商·林屿湖畔官方售楼处电话/地址:400-1010-064☎️☎️✅✅《官方认证》

总高约13.7米双层归家大堂、独立车马院以向心视觉设计,营造震撼的视觉冲击力与尊贵仪式感,显著提升归家动线的品质与社区形象,成为彰显楼盘档次的核心亮点。

同时,还有引入自然天光的阳光地库、下坡道及地下玄关,这是招商千万级顶豪的同款,是整个外环外最高颜值和规格的车库。

在社区内部景观上,招商也进行了大胆创新,别具一格的酒店度假超级公区,让人非常心动!

•立体浮岛:通过地上地下丰富动线串联下沉庭院、局部风雨连廊、戏水池、行车橱窗、垂直森系景观、嵌入式会所功能,创造一座立体视觉奇观的“漂浮的绿洲”。

•下沉峡谷:约420㎡丰富层次立体下沉庭院,区域首现悬浮水池,搭配4.3米飞瀑,塑造沉浸式度假感受。

峡谷秘境庭院:从单一景观功能,到酒店度假化超级公区

板块内领创“峡谷”意境的下沉式立体庭院,在约420平米的垂直面中,通过多层花池、叠水、软景塑造立体层次观感,遴选多种珍贵苗木,立体庭院贯通风雨连廊,给予五星级度假酒店般的空间体验。

下沉庭院四周设有不同功能空间,包括健身房、归家大堂、阳光地库光厅等,实现360度不同视角的景观体验。

精心设计十二重归家动线,从车马院迎宾车道、约87米奢阔门廊到约13.7米挑高的酒店式大堂等空间。

招商·林屿湖畔售楼处电话:400-1010-064☎️☎️✅✅《官方认证》

招商·林屿湖畔官方售楼处电话/地址:400-1010-064☎️☎️✅✅《官方认证》

约2900平米地上地下泛会所及活动空间,给予生活度假般的感受,地下层设有国际标准壁球馆、园景健身房,地上架空层为最高悬挑越7.2米的泛会所空间,以休闲下沉卡座、水吧台、休闲会客区、联动室外水池,打造酒店式度假空间等柔化社区与自然的边界。

同时,打造了休闲下沉卡座、水吧台、休闲会客区、联动室外水池,打造酒店式度假居住体验。

架空层最高建筑层高约7.2米,共计约1700㎡。

一方面,超高架空层的存在,不仅在物理意义上将部分楼栋的社区生活平面整体托举,隔绝了地面层的喧嚣与干扰。还让低区的业主也能充分的享受阳光和视野。

招商·林屿湖畔售楼处电话:400-1010-064☎️☎️✅✅《官方认证》

招商·林屿湖畔官方售楼处电话/地址:400-1010-064☎️☎️✅✅《官方认证》02、

2推售信息

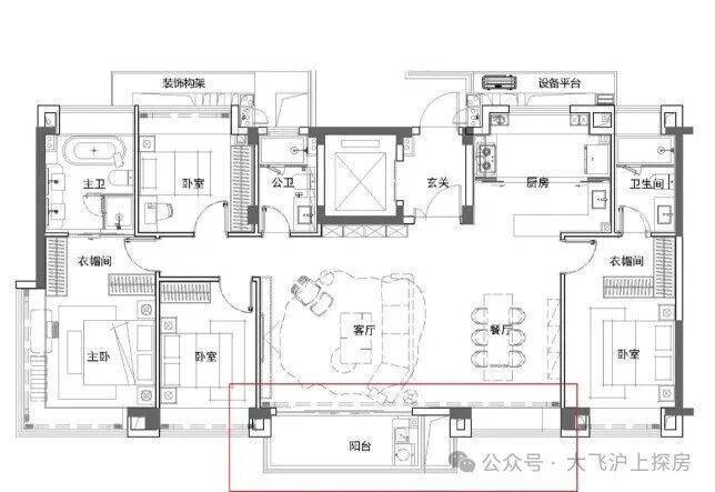
林屿湖畔首开产品,建面约 122、145㎡精装3-4房。超84%的使用率+超3.1米层高, 碾压级产品力 ,难得的梦中情房。

在空间革新上,好房子标准下,打造嘉定区域内开创性的3.1-3.15米层高,并配置多个约80公分飘窗灵活空间,带来通透奢阔的居住体验。主卧设置270°转角飘窗,带来更高舒适度与更大采光。双门厅礼仪,客餐分离升级社交款待维度,飞机户型+客厅双动线平衡通透与私密,营造出既有秩序又具仪式感的私密殿堂。

收纳设计大师打造超级收纳,建面约122与140户型全屋交付收纳量达约8.2m³与约8m³,约等于205个20寸行李箱(40L)的收纳空间,140户型预留收纳11m³,围绕 12 种场景应用,玄关、厨房、卫浴三大区域,让各类物品都有归属,生活更加从容舒适。

根据内部户型图来看,整体户型都还是比较不错的,高层全南北通,叠墅对比市面上的常规户型也有很大创新,其中大平层做到了五开间朝南,约8.6米横厅!

建面约122㎡3房2厅2卫双阳台:

进阶舒适改善户型!三口之家或三代同堂宜居!

三开间朝南设计,采光视野相当不错!

进门玄关步入式收纳空间,仪式感与实用性拉满!

厨房、餐厅、客厅及阳台一体化设计,层高迭代至约3.15米,尺度感十足!

南北双阳台配置+(边套)主卧约270°转角飘窗,居住舒适度、景观视野满分!

南次卧飘窗设计,有效延伸室内空间

北房间+阳台,实现超面积使用感!打造奢阔居住体验~

值得一提的是,约122㎡户型全屋交付收纳量达约8.2㎡!

约等于约205个20寸行李箱(40L)的收纳空间,围绕12 种场景应用,让各类物品都有归属,堪称招商收纳魔法!

玄关收纳:约1.75m³收纳空间,甚至可以收纳一辆山地自行车

厨房收纳:利用烟机管道两侧空间,收纳五谷杂粮;高柜安装天使拉篮等,让厨房实现普通户型约1.5倍的操作台空间(借用飘窗)

卫浴收纳:底部沥水层板+化妆镜、集成架、卫浴柜下翻板设计、预留扫地机位置+门板置物

建面约112㎡3房2厅2卫双南阳台:

年轻家庭舒适改善户型!三口之家或三代同堂宜居!

三开间朝南设计的全明户型,双南阳台+主卧约270°转角飘窗,层高约3.1米,空间感、采光视野都相当不错!

招商·林屿湖畔售楼处电话:400-1010-064☎️☎️✅✅《官方认证》

招商·林屿湖畔官方售楼处电话/地址:400-1010-064☎️☎️✅✅《官方认证》

建面约122㎡的3房产品,有几大亮点。

第一,类一梯一户的设计。

这种 “隐形扩容” 设计,不仅重构家庭生活秩序,更解锁了N种生活场景的可能性。

第二,全屋交付收纳量达8.2m³,约等于205个20寸行李箱的收纳空间。

整个套内除了电梯厅外,还有大量的收纳空间。

例如进门的这个独立储藏空间:

还有餐边柜空间、大量的飘窗空间、厨房的柜子等等。

招商·林屿湖畔售楼处电话:400-1010-064☎️☎️✅✅《官方认证》

招商·林屿湖畔官方售楼处电话/地址:400-1010-064☎️☎️✅✅《官方认证》

第三,约3.1米层高+边套户型4飘窗+建面约122㎡做3房,极致的尺度感。

建面约122㎡的3房本身就拥有超强的空间尺度感,再加上小高层的高得房率+多飘窗的设计,整个空间的尺度感相当惊人。

比如这个客餐厅:

这个尺度感一般也只有在约140㎡以上的大平层中能看到。

主卧豪华套房的设计+约270°的巨型飘窗,这个尺度感和实用性真的很强。

另外,由于双阳台的设计,北房间不仅能放下一张床,还有大量可以放下书桌、衣柜的空间,实用性超强。

这个户型真的是目前上海迭代到最新款的产品,真的可以想象这样一个产品对于周边本地改善客户的吸引力有多强,在未来的二手房市场会非常吃香。

建面约145㎡4房2厅2卫3阳台户型:

四开间朝南设计奢阔户型,搭配双门厅设计,半敞阳台及自由式飘窗,预计实际使用率约可达约87-91%,足以媲美约160㎡+尺度!

双南阳台+北阳台+约270°景观飘窗设计,有效延伸室内空间,空间相当奢阔!

主卧套房拥有充足衣帽收纳空间、双台盆主卫,生活仪式感满满!

餐厅设计了收纳柜空间,相当人性化!

客卫三分离设计,台盆外置更合理!

全屋交付收纳量达约8㎡约等于205个20寸行李箱(40L)的收纳空间,预留收纳约11㎡。

叠墅户型首曝:

建面约168m下叠,4房2厅3卫,共计约38套,独立入户玄关,附带地下室+花园,首层横厅+南向次卧+北向1厨1卫,二层三个卧室全朝南+北向公共休闲空间;边套户型客厅以及主卧为270°飘窗!

下图为边套户型过程稿,红框线范围内可能会对另外一个次卧的飘窗位置进行优化,优化为阳台,也就是南白两个次卧均带阳台!

建面约163m上叠,4房2厅3卫,共计约38套,上叠的户型布局其本与下叠一致,附赠南北露台,边套户型的客厅以及主卧同样也是270°飘窗!

下图为边套户型过程稿,红框线范围内可能会优化,一是客厅飘窗位置可能会优化为阳合,变为南向双阳台;是六层南白次卧飘窗位置优化为露台,两个次的露合连通!

建面约165m大平层,4房2厅3卫,共计约37套,一梯一户,五开间朝南,约8.6米横厅,双套房设计,边套户型主卧为270°转角飘窗!

下图为边套户型过程稿,红框线范围内可能会对餐厅位置飘窗进行优化,优化为阳合,使客餐厅阳台贯通!

招商·林屿湖畔售楼处电话:400-1010-064☎️☎️✅✅《官方认证》

招商·林屿湖畔官方售楼处电话/地址:400-1010-064☎️☎️✅✅《官方认证》

03、

区域版块

项目位于嘉定新城远香湖CAZ规划红线内,这是五个新城目前仅有的官宣的中央活动区,定位为嘉定新城中的综合功能中心与城市形象集中展示区,集聚国际住区、大型商业集群、摩天地标集群、科创科研企业集群、国际教育文化等功能为一体。 (规划内容来自上海嘉定微信公众号)

如果说陆家嘴-外滩是整个上海的核心资源所在,那整个嘉定新城的核心资源就在远香湖中央活动区。

远香湖中央活动区,就是整个嘉定新城的门面和“城市会客厅”。这是一个“被倾注了嘉定新城所有高端资源”的片区!

嘉定新城远香湖CAZ定位嘉定新城的综合功能中心与城市形象集中展示区,集聚国际住区、大型商业集群、摩天地标集群、科创科研企业集群、国际教育文化等功能为一体。(规划来自上海嘉定微信公众号)

整个片区总开发体量约531.4万㎡,规划公共服务建面约27.7万㎡,教育科研设计建面约71.6万㎡,商办体量约284.1万㎡。

这里将打造总部经济集群,涵盖汽车城、智能传感、瑞金创新中心精准医疗特色产业等,国北科技先进金融中心、世界500强绿地集团、海螺创业等企业总部已相继官宣落户。北侧有远香湖、保利大剧院、嘉定图书馆老三大件配套,以及地标级超高层建筑凯悦酒店。

未来,远香湖核心区还将建设文化环、未来塔、活力谷等城市“新三件套”,也在项目周边。文化环:除了现有嘉定图书馆、保利大剧院、江南书院、尚画美术馆外,围绕着远香湖未来还将打造立体儿童乐园、航模活动中心、嘉昆太路演中心等一系列高能级文化设施。

招商·林屿湖畔售楼处电话:400-1010-064☎️☎️✅✅《官方认证》

招商·林屿湖畔官方售楼处电话/地址:400-1010-064☎️☎️✅✅《官方认证》

未来塔:位于CAZ的正中央,建成约300米,将成为嘉定甚至是上海西北第一高楼,是真正的C位地标

活力谷:集商业和办公于一体的休闲创意街区。周边现有教育资源非常丰富,包括上海市实验学校嘉定新城分校(九年一贯制公办学校)、远香湖幼儿园、中福会新城幼儿园、嘉定新城实验第二小学、马陆小学、上海市育才中学等。周边大体量商业体环伺,包括西云楼、宝龙广场、万达广场、大融城、理想之地配套商业(在建)等近40万方商业。

招商·林屿湖畔售楼处电话:400-1010-064☎️☎️✅✅《官方认证》

招商·林屿湖畔官方售楼处电话/地址:400-1010-064☎️☎️✅✅《官方认证》

周边有三甲医院瑞金医院北院、嘉定区妇幼保健院、上海嘉定中医医院嘉定新院等优质医疗资源。

作为远香湖CAZ规划红线内最后一块住宅用地,招商林屿湖畔错过不再。

未来业主将于城市地标为邻,享受到的必然是与国际接轨的潮流生活!

从配套能级、步行范围内的资源浓郁、宜居程度、产品的规格等维度,招商林屿湖畔的表现都十分出众。

招商·林屿湖畔售楼处电话:400-1010-064☎️☎️✅✅《官方认证》

招商·林屿湖畔官方售楼处电话/地址:400-1010-064☎️☎️✅✅《官方认证》

声明:本文由入驻焦点开放平台的作者撰写,除焦点官方账号外,观点仅代表作者本人,不代表焦点立场。