2025上海壹号院【上海壹号院售楼处电话】上海壹号院官方网站-最新房价曝光
扫描到手机,新闻随时看
扫一扫,用手机看文章
更加方便分享给朋友

上海壹号院风貌别墅
✅✅售楼处电话:400 - 1010 - 064✅✅
首批次推出38席
房源位于01 ,02, 03 组团区域
建面约250至900平风貌院墅
项目将在十一国庆期间
首次开放两套样板间
样板间约为370㎡和590㎡的两个户型
上海壹号院✅✅售楼处电话:400 - 1010 - 064✅✅
01
项目信息
【上海壹号院✅✅售楼处电话:400 - 1010 - 064✅✅】位于中华路以东、方浜中路以南、松雪街以西、复兴东路以北,是老黄浦区508-514街坊(亚龙地块)旧城区改造项目。前期高层已售罄,接下来主推风貌别墅。

设计方案如下:


上海壹号院✅✅售楼处电话:400 - 1010 - 064✅✅
根据规划,项目总建筑面积约23万方,由6栋14-37层的高层住宅、部分改建保留的联排别墅、合院别墅以及部分配套用房组成。

上海壹号院✅✅售楼处电话:400 - 1010 - 064✅✅
方案中规划的昼锦路目前还未东延至此,未来建成后,项目内将开辟昼锦路和方浜中路之间的公共绿地以及城市开放空间,着力打造成富有海派文化底蕴的历史风貌保护和城市更新经典片区。

上海壹号院✅✅售楼处电话:400 - 1010 - 064✅✅
项目主要分两个地块,西区地块主打新建高层住宅,总计六幢,其中包含了4套保留改建的别墅产品。


上海壹号院✅✅售楼处电话:400 - 1010 - 064✅✅上海壹号院✅✅售楼处电话:400 - 1010 - 064✅✅

北区地块区域主打保留建筑,基本为2-3F的联排和合院。

上海壹号院✅✅售楼处电话:400 - 1010 - 064✅✅上海壹号院✅✅售楼处电话:400 - 1010 - 064✅✅

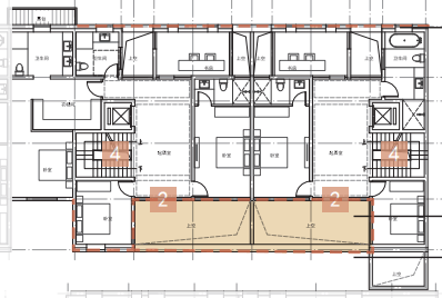
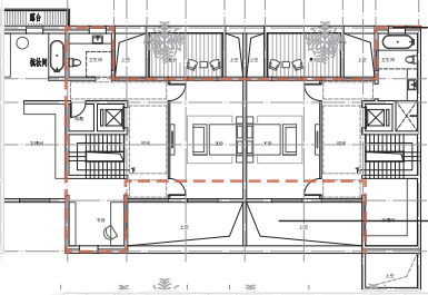
02
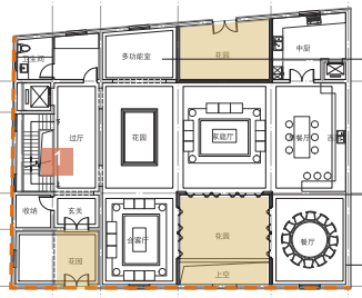
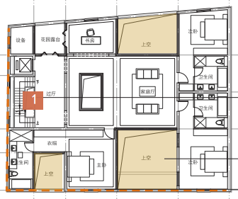
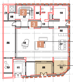
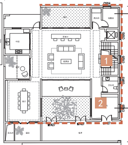
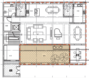
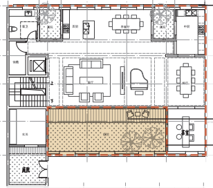
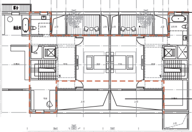
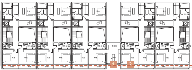
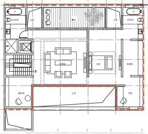
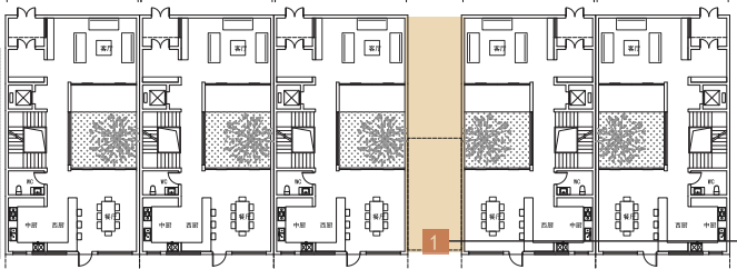
合院户型图

上海壹号院✅✅售楼处电话:400 - 1010 - 064✅✅上海壹号院✅✅售楼处电话:400 - 1010 - 064✅✅

部分保留历史建筑的户型平面图👇
上海壹号院✅✅售楼处电话:400 - 1010 - 064✅✅上海壹号院✅✅售楼处电话:400 - 1010 - 064✅✅
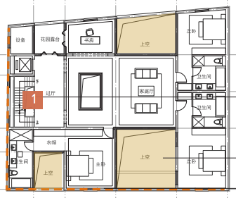
一层

上海壹号院✅✅售楼处电话:400 - 1010 - 064✅✅上海壹号院✅✅售楼处电话:400 - 1010 - 064✅✅
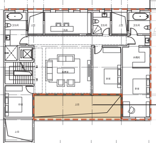
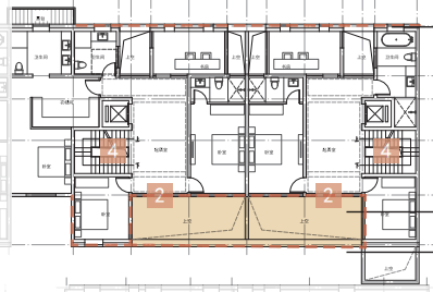
二层

一层

二层

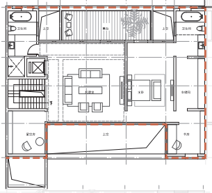
一层

二层

一层

二层

一层

二层

一层

二层

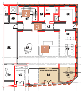
三层

一层

二层

三层

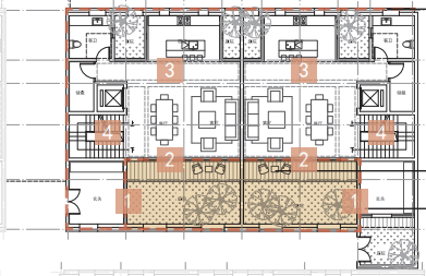
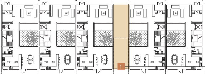
一层平面图

二层平面图

上海壹号院风貌别墅
【体量】151套风貌
【本批次】第一批次,38套,分3个组团
【类型】纯合院风貌(毛坯交付)
【面积】250平-900平(主力户型350--600)
【均价】30万+,套均过亿
【户型】每套不同,107个户型(1字型、回字形、C字形、L型、H型……)
【风格】江南园邸、现代主义、街店式、近代装饰……多类型供选择
【层高】3.9/3.6/3.6(大户型为主) 3.6/3.3/3.3(小户型为主)
【赠送】花园、阳台、双露台、大面积地下室、阁楼闷顶高度不一
【巷道】组团,支巷道3米-4.5米
【物业】融创(暂定地上19.8元,地下10元,会所额外收费)
【交房时间】预计2027年12月
上海壹号院的风貌,根据目前仅有的资料,改良了很多:
1. 分支巷道拓宽至3-4米,诸多项目还停留在1-2米;
2. 阳台和露台用格栅确保私密性和开阔性,防止对视;
3. 立体住宅,分层内嵌,采光差的首次开创房子内部做天井,确保全户型全明、每个角落有光
4. 上海风貌层高最高的产品,很多户型层高:地下6.1米,一层3.9米,二层3.6米,三层3.6米
5. 外小内大,保护大户型隐私和品质;
6. 很多户型双露台,大户型2-4个花园
7. 壹号院一贯作风,外部点状承重,设计多样性
1) 层高惊艳,上海风貌目前基本都是3.6/3.3/3.3(当然壹号院也有部分是这种层高的),壹号院风貌面积大一点很多都是3.9米的层高,3.9/3.6/3.6,这个配置目前属顶配,地下室也是挑高6.1米,整体空间感尺度不错的;
2) 天井设计,这是上海风貌的首次尝试,部分户型为了达到每一层、每个功能间有好的光线,在整个房子内部,做个采光天井,虽然没看到实地,但还是震撼到了我;
3) 巷道不错,分支巷道能做到3-4.5米,间距可以的。

上海壹号院✅✅售楼处电话:400 - 1010 - 064✅✅


上海壹号院✅✅售楼处电话:400 - 1010 - 064✅✅



上海壹号院✅✅售楼处电话:400 - 1010 - 064✅✅


上海壹号院✅✅售楼处电话:400 - 1010 - 064✅✅

上海壹号院✅✅售楼处电话:400 - 1010 - 064✅✅
声明:本文由入驻焦点开放平台的作者撰写,除焦点官方账号外,观点仅代表作者本人,不代表焦点立场。
