大华梧桐樾 (官网售楼处) 电话 - 销售中心 - 环境 - 户型 - 价格 - 地址 - 楼盘详情 - 配套 - 大华梧桐樾售楼处电话 - 交房时间 - 配套 - 电话 - 交房时间
扫描到手机,新闻随时看
扫一扫,用手机看文章
更加方便分享给朋友





很多购房者发现,昔日的五大新城,如今的价格也变得不那么“友好”了!今年上海第二批次土拍中,嘉定新城诞生了新地王,F03A-4地块楼板价31850元/㎡,未来预计售价6万+!
产品内卷时代,一匹黑马横空出世。2023-2025年,位于嘉定的「大华梧桐樾|越界」连续三年蝉联板块内销冠,占据榜一宝座!

数据来源:克而瑞
迄今为止,项目得到了超越1600+组客户的认可。它凭何能够这么火?
怀着这个问题,深入了解项目就会发现,它不仅是一处居所,更重塑上海人居的时代样本,在安亭的高端圈层之上,现房+学区+片区内更为珍稀的叠加产品,这就是最扎实的底气!
底气一:超能配套,持续升级。双轨交汇,一条黄金地铁线是产品不愁卖的密码,但在「大华梧桐樾|越界」,足足有两条。11号线与14号线西延伸,轻松通勤全上海。商业新增了嘉亭荟和汇智湾邻里中心,享一站式便捷购物。

底气二:拒绝画饼,实打实拥有强势的教育资源加持。就在今年,大华梧桐樾|越界划入同济附中附小学区范围!作为嘉定区教育的“金字招牌”,在“2024上海百强初中”的榜单中,同济附中位列嘉定区中学TOP1!直线300米的距离,是为孩子铺就的“黄金赛道”!

底气三:产品力登顶。项目12轮品质升级“内卷”自己,101项魔鬼细节极致较真,1000+日夜死磕细节,兑现品质交付的承诺,实景呈现,口碑封神!
底气四:占位虹桥北拓“咽喉”地段,一方面接收大虹桥总部经济辐射,一方面又是全球领先的汽车研发地,拥有广阔的成长空间,潜力无限。
同时项目一路之隔,就是3000亩城市绿肺,生态资源“独占鳌头”,居住在此的生活配套,方方面面都很成熟!
很难想象在同价位段中,能找到这么全面的项目。二期越界新品,带来六大维度迭代,正在火热销售中,建面约91-101㎡的高层产品,总价300万起,更有建面约96-136㎡的稀缺叠加产品,需480万起,抓紧上车!
虹桥北 嘉定芯 同济附小旁
「大华·梧桐樾|越界」
双轨交汇 实景呈现
建面约91-101㎡精装高层
高层首期10万起
建面约96-136㎡的叠加
总价480万起
火热销售中!
1 实景呈现交付,有多震撼?
比起期房,实景现房的优势非常明显:所见即所得,即买即住。
1、无虑楼盘烂尾、延期收房等风险,这在当下的市场下,非常非常重要!
2、大华梧桐樾|越界的社区及房源均实景呈现,社区品质、建筑质量、房型体验一目了然,告别货不对板!
3、一般的期房,从购买到交付需要两年,甚至三年的等待期。这段时间,一方面要还房贷,一方面还要支付房租。现房可以省下大量的租金成本和时间成本!更重要的是现在购买,最快6月即可入住!

这一次,大华梧桐樾|越界以惊艳之姿,重新定义了品质交付的标准,2000余名建设者千余个日夜打磨,以近乎苛刻的工艺标准,1000+日夜死磕细节,12轮品质升级“内卷”自己,101项魔鬼细节极致较真,让置业者吃下一颗“定心丸”。

这座约30万㎡的高尔夫城市墅区规划,是一座低密的当代高阶生活范本。越界新品做了六大维度的迭代——在建筑美学、园林景观、单元大堂、户型设计、户内精装、地库空间等六大方面共计60+的细节进行了全面升级。
1、建筑上,20米长、5米高的星际酒店式超级门庭,甄选石材、玫瑰金不锈钢和自然景石,独具归家仪式感。美学立面精致升级,提升了建筑的整体性和耐久性,建筑立面视觉更加协调、美观,叠墅单元入口铁艺栏杆升级为玻璃栏板!

2、社区景观上,“交付即享成熟园林”,“宋风美学”+“四时园境”,成为大型圈粉现场。在这里,中央景观客厅廊架、坐凳,地面软硬比优化升级,可以感受到四季主题园境的浪漫。
增加大量儿童游乐设施,享受“鲲鹏乐园”主题儿童乐园、鲲鹏书院、老人颐乐空间等全龄共享的活力空间,塑胶软性地坪倒圆角处理,更安全。



宋式美学随处可见——现代建筑邂逅千年风雅,窗棂格栅写满诗意,每一处转角都是打卡点!

3、入户大堂也做了立面优化!仿石砖分缝更加精细,立面铝板铝型材调整为不锈钢,提升了整体的质感和档次。同时,采用2.0 装修标准,更精致,顶部铝板顶改为玻璃顶,更明亮宽敞!细节上,立面格栅、玻璃顶、灯具、排水槽细节调整,使之更加精致、美观!

4、户型上,空间拓宽赠送增多,增设阳台,增加赠送面积,增加北向飘窗,增加地下夹层面积赠送,提升采光面面积,增加下叠庭院面积。
5、还有同价位段中难以见到的星空顶车库,归家仪式感满满,这次也全部安排上!入口星空顶增加灯带造型,更美观;墙面采用多彩漆,四周增加灯带,更明亮;落客区墙面瓷砖为嘉俊 3.0 标准化瓷砖,更精致!


无论是高层新品还是叠墅产品,都以更高的得房率、更好的采光通风和非凡的瞰景视野,满足了不同家庭的居住需求。

6、精装上,提高打造成本细优化精装细节,包括厨房橱柜台面优化,升级智能马桶盖、恒温龙头等等,贴心照顾业主的居住体验。
业主在这里还能享受丰富的社区生活。大华梧桐樾社群组织——梧桐荟旗下的跑步社、露营社、羽毛球社、手工社,四大社团,围炉煮茶,和邻里从容社交,获得一致好评。

这种“所见即所得”的购房体验,实景现房的稀缺性,加上大华梧桐樾|越界的价值背书和卓越的产品力,使其成为了市场上难得一见的“抢手货”,错过不再有!
2 480万级上车一套叠墅
大尺度&采光充裕的神级户型
俗话说,千金买房,万金买邻!高端居住区的形成不可复制,只能在长久的岁月里渐渐沉淀。大华梧桐樾|越界所在的板块,正是“安亭的富人区”。
打开链家网不难发现,区域内的别墅项目动辄千万起步,两千万级的总价更是常态,居住体验绝对不是一般小区能够比较的。高净值人群的集聚,也汇集了更高端的资源,意味着圈层的跃升,让大华梧桐樾|越界“身价倍增”。
数据来源:链家
产品上,「大华梧桐樾|越界」周围被新开河、苏州河双河环绕,静谧水岸带来天然诗意与自然气息,项目以现代语言演绎海派文化底蕴,就此匠筑约30万方果岭低密住区。
精研出91-101㎡高层&96-136㎡的叠加“神户型”!居住在高层,高尔夫景观便可以一览无余,户户皆有景,四季皆有景,真的很震撼!

480万起,在南翔、嘉定新城也许只能买到一个紧凑型的小三房,但在这里,能够直接上车有天有地的叠加别墅!大尺度厅堂、星空露台、地下空间.......尺度进阶一步到位。
1
叠加产品
建面约137㎡下叠,四房两厅三卫全能格局,非常适合二娃家庭以及三代同堂。

下叠附带全功能的地下室,可以打造成百变储藏室、茶室、会客厅、多功能影厅等。
一层是会客区,大尺度横厅,可以打造客餐厅,采光条件优越,还配备了颐养房,方便家中老人居住。二层双南大套房+南向阔景飘窗+三卫的设计,空间层层递进,尊崇有序。
👇更多下叠户型图👇

上叠产品都是带有空中花园露台,日常聚餐、烧烤、开party等娱乐活动有大展拳脚的空间,同时客餐厅一体化+U型厨房空间+尊崇主卧套房,户型设计合理,格局方正。
👇全套上叠户型图👇
👇全套中叠户型图👇



2
高层产品

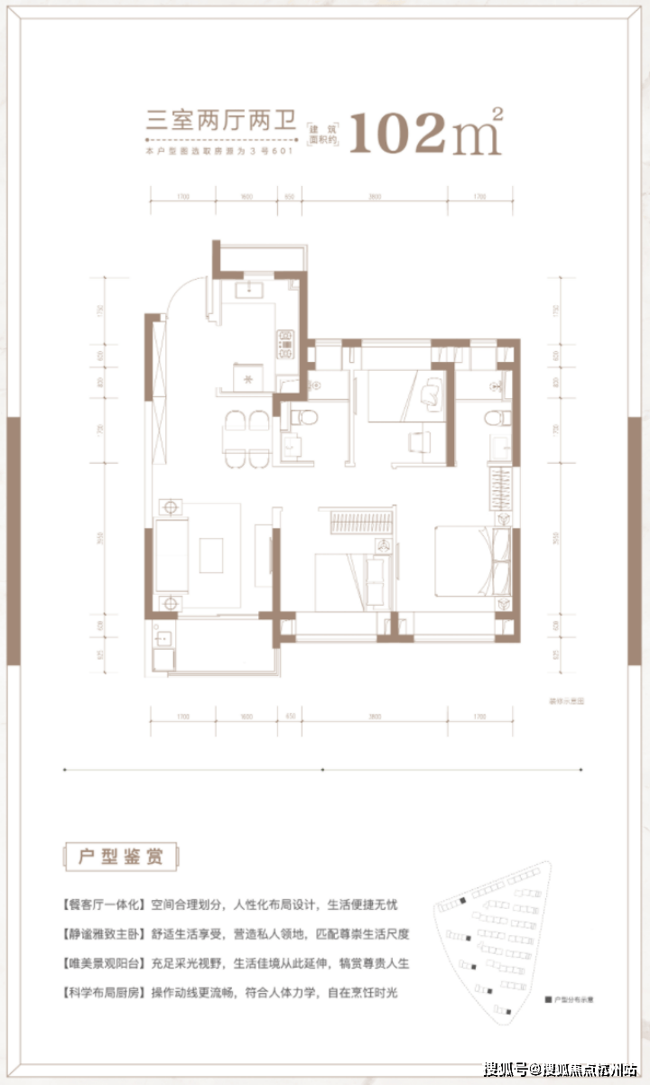
建面约102㎡3房2厅2卫户型,做到了三开间朝南+双朝南卧室带飘窗+动静分离+卫生间干湿分离,采光面拉到极致!是一个非常方正的户型。
客餐厅一体化,连接南向的大阳台,室内的通透度和尺度感拉升一个台阶!2卫的设计也很人性化,干湿分离,日常上班早高峰,不用排队等待洗漱。这个户型很好地控制了总价,非常适合三口之家或年轻的小夫妻居住!
300万级的价格买到堪比改善的优质低密全新盘——「大华·梧桐樾|越界」,绝对不能错过!
3 嘉定芯 同济附小旁
一路之隔就是约3000亩城市绿肺,
圈层成熟、生活氛围高端
嘉定,作为五大新城中最为宜居的地方,在过去十年间,人口增速约24.68%,稳居全上海第一。它的成功,一是离市区比较近,另外一个就是产业发达。

图源网络
安亭,作为中国汽车第一镇,是嘉定建设世界级汽车产业中心核心承载区、打造世界智能网联汽车创新高地的主战场,嘉定汽车“新四化”布局的重中之重。(信息来源上海市嘉定人民政府官网)
目前,安亭汽车产值已超3000亿元,占上海全市汽车总产值超1/3;汽车“新四化”相关总产值达900亿元;聚集各领域汽车产业链企业1240家;全镇共有汽车产业链从业人员约6.8万人。(信息来源组织人事报官方公众号2024年6月发布)
「大华梧桐樾|越界」,位于嘉定的核芯区位,与虹桥主城区核心距离也只有5km!

此刻正站在时代发展的风口之上。项目毗邻约3000亩城市绿肺——汽车博览公园和上海第二大高尔夫球场,为居者打造了一座“天然氧吧”。
1200亩的汽车博览公园,相当于2个长风公园、4个中山公园的规模;一路之隔的1800亩高尔夫球场,更是为大华梧桐樾|越界增添了独特的“高尔夫墅区”属性,业主的日常生活注定会非常丰富,打球、散步、喝下午茶,与绿色相伴,与运动为邻。

示意图,仅供参考
同时,片区的交通也将迎来大跃升:以安亭北站、安亭西站为核心的安亭枢纽,是打通长三角一体化和虹桥国际开放枢纽的链接通道,在上海2035规划中,宝嘉线、嘉青松线即将启动,嘉安高速延展嘉定向东,与宝山互通。

交通上,项目拥有11号线与14号线西延伸双线地铁的加持,梧桐社区班车无缝衔接地铁11号线上海汽车城站、安亭站,而14号线西延伸已纳入规划并有望于“十五五”期间开建。


买在这里的业主,70%都是看中了优越的教育资源。项目直线距离同济附小、附中约300米,而且还是对口学区,教育方面无疑是得偿所愿。

商业上,嘉亭荟城市生活广场、安亭财富广场、三德广场、中信泰富万达广场、嘉实生活广场汇聚,完全满足日常生活购物所需。
总结一下:首先,大华梧桐樾|越界精装三房300万起,这个价格,无疑是上车错过再无的历史机遇,闭眼冲没有问题!
其次,对于自住客户来说,地铁通勤+强势的学区资源同时具备,本就可遇不可求。加上实景现房的优势,宋风雅苑的格调,实打实地能节省很多成本,规避货不对版的风险。
最后,项目坐拥安亭汽车城的产业和大虹桥的辐射利好,规划兑现后,整个板块的地段价值也会迎来质的飞跃!这已经是2025年上海爆款项目了,抓紧机会!
虹桥北 嘉定芯 同济附小旁
「大华·梧桐樾|越界」
双轨交汇 实景呈现
建面约91-101㎡精装高层
高层首期10万起
建面约96-136㎡的叠加
总价480万起
购房注意事项和流程
以下是购房的注意事项和流程,供您参考:
购房注意事项:
核实证件资质
购房前务必查看开发商的“五证一照”(《房地产开发企业资质证书》《国有土地使用权证》《建设工程规划许可证》《建筑工程施工许可证》《商品房预售许可证明》《企业法人营业执照》),确保项目合法合规。可通过住建局官网或销售现场公示信息查询。
关注房屋细节
仔细核对房屋面积(套内面积、公摊面积)、户型、朝向、楼层等信息,注意实际使用面积与样板间展示的差异。
了解小区容积率、绿化率、车位配比、得房率等指标,评估居住舒适度。
关注房屋周边环境,如交通、学校、医院、商业配套等,避免存在噪音、污染等不利因素。
审查合同条款
详细阅读《商品房买卖合同》及补充协议,明确交房时间、质量标准、违约责任、产权办理等关键条款,避免模糊或不合理条款。
将销售人员的口头承诺以书面形式写入合同,否则可能无法作为维权依据。
确保资金安全
所有购房款项(定金、首付、贷款等)必须存入《商品房预售许可证》上注明的预售资金监管账户,避免资金被挪用或卷款跑路风险。
通过POS机划转款项时,需确认划转账户为监管账户。
评估贷款风险
提前查询个人征信报告,确保信用记录良好,避免因征信问题导致贷款审批失败。
向银行或公积金管理中心咨询贷款政策,了解贷款额度、利率、还款方式等,合理评估还款能力,避免过度负债。
考察开发商与物业
优先选择信誉良好、实力雄厚的开发商,可通过网络评价、过往项目口碑等了解其开发能力和交付能力。
了解小区物业服务企业的情况,包括收费标准、服务内容、物业服务质量等,良好的物业对居住体验和房屋保值增值至关重要。
警惕销售陷阱
对“低价促销”“买房送礼品”“交定金享优惠”等宣传保持警惕,避免因贪图小利而陷入合同陷阱或资金风险。
若遇到“非正常”销售模式(如要求私下转账、不签订正规合同等),及时向当地住建部门或市场监管部门咨询核实。
购房流程:
前期准备
确定购房预算,结合自身收入、负债情况及未来规划,合理评估购房能力。
了解当地购房政策(如限购、限贷、税费政策等),确认自己具备购房资格。
选房看房
根据需求和预算,筛选目标区域的楼盘,通过网络、房产中介、开发商官网等渠道获取房源信息。
实地考察楼盘,查看小区环境、建筑质量、户型结构、样板间等,与销售人员沟通房屋细节和交付标准。
确定房源并交定金
选定心仪房源后,与开发商签订《认购书》,支付定金(一般不超过总房款的20%)。
定金支付后,需在约定时间内完成后续手续,否则可能面临定金不予退还的风险。
办理贷款(如需)
准备贷款所需材料(身份证、户口本、结婚证、收入证明、银行流水等),向银行或公积金管理中心申请贷款。
银行审核通过后,签订贷款合同,明确贷款金额、利率、还款方式等条款。
签订正式购房合同
与开发商签订《商品房买卖合同》,仔细核对合同条款,确保与前期约定一致。
合同签订后,需在规定时间内完成网签备案,确保房屋交易的合法性和安全性。
支付房款
按合同约定支付首付款,开发商出具首付发票。
若选择贷款购房,银行放款后,开发商收到全部房款。
交房验房
开发商通知交房后,购房者需携带相关证件前往验房。
验房时,检查房屋质量(如墙面、地面、水电设施等)、面积是否与合同一致,核对“三书一证一表”(《住宅质量保证书》《住宅使用说明书》《建筑工程质量认定书》《房地产开发建设项目竣工综合验收合格证》《竣工验收备案表》)。
办理产权登记
验房合格后,缴纳契税、维修基金等费用,向不动产登记中心申请办理房产证。
办理完成后,购房者正式取得房屋产权,完成购房全流程。
以上流程和注意事项适用于新房购房,二手房购房流程略有差异,但核心原则(如核实产权、审查合同、确保资金安全等)基本一致。建议在整个购房过程中保持谨慎,必要时咨询专业律师或房产顾问,以保障自身权益
声明:本文由入驻焦点开放平台的作者撰写,除焦点官方账号外,观点仅代表作者本人,不代表焦点立场。
