江湾鸿玺-江湾鸿玺售楼处电话-开盘时间-江湾鸿玺房价-户型-江湾鸿玺楼盘详情-户型-价格-地址-楼盘详情-江湾鸿玺售楼处电话
扫描到手机,新闻随时看
扫一扫,用手机看文章
更加方便分享给朋友
宝山高境,3号线殷高西路站新盘「江湾鸿玺」即将入市!预计将推出套均200㎡大平层!
江湾鸿玺售楼处电话:400-101-0064☎️☎️【官网】✅✅(预约看房热线√√)
专业一对一热情服务,让您用专业眼光去买房。(来电尊享内部优惠活动)


✅✅江湾鸿玺售楼处电话:400 - 1010 - 064✅✅
建面约200m²4房户型
一房一价表如下:✅✅江湾鸿玺售楼处电话:400 - 1010 - 064✅✅
✅✅江湾鸿玺售楼处电话:400 - 1010 - 064✅✅说到高境,作为宝山近市中心的板块,一直以来缺乏新房,上一次主力供应要追溯到2015年的泰禾红御,目前该项目是高境乃至整个宝山标杆,部分房源挂牌价9万+/㎡。
✅✅江湾鸿玺售楼处电话:400 - 1010 - 064✅✅回到江湾鸿玺,项目位于殷高路逸仙路路口,其实就是很多人说的高境欣苑二期,在高境欣苑中又开发了一栋楼。✅✅江湾鸿玺售楼处电话:400 - 1010 - 064✅✅



✅✅江湾鸿玺售楼处电话:400 - 1010 - 064✅✅首层为商业配置,未来将引入运动健身、休闲会馆、便利商超等功能设施,物业提供24H管家式服务。✅✅江湾鸿玺售楼处电话:400 - 1010 - 064✅✅
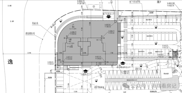
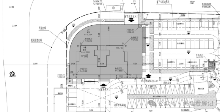
规划设计图:
✅✅江湾鸿玺售楼处电话:400 - 1010 - 064✅✅我们放大看:这栋楼共18层,估计2梯2户,据悉首层为商业配置,将来可能引进运动健身、休闲会馆、便利商超等。✅✅江湾鸿玺售楼处电话:400 - 1010 - 064✅✅
还有两套自持,所以可售为32套,户型为建面约200㎡大平层。

✅✅江湾鸿玺售楼处电话:400 - 1010 - 064✅✅项目距离3号线殷高西路站仅100米,1公里直达18号线殷高路站,双轨并行锋速通达的时间效率;书香萦绕的教育高地,科创引领、产业先行的核心经济圈。此外,通过逸仙路高架,可以提升通行时效,快速连接五角场合生汇、百联又一城、万达广场、虹口龙之梦等中大型商业综合体。✅✅江湾鸿玺售楼处电话:400 - 1010 - 064✅✅
✅✅江湾鸿玺售楼处电话:400 - 1010 - 064✅✅生活配套成熟,项目西侧就是一个商场,吃喝玩乐都能满足,新业坊·源创潮流、精致元素的加持也为板块注入更多活力。✅✅江湾鸿玺售楼处电话:400 - 1010 - 064✅✅
殷高西路上还有永辉、长江国际、景瑞生活广场等,生活很方便。
✅✅江湾鸿玺售楼处电话:400 - 1010 - 064✅✅另外,紧邻逸仙高架路+3号线,可能会有一定噪音,同时处于交通要道五岔路口,这里的车流量、人流量非常大,拥堵情况比较严重。✅✅江湾鸿玺售楼处电话:400 - 1010 - 064✅✅
声明:本文由入驻焦点开放平台的作者撰写,除焦点官方账号外,观点仅代表作者本人,不代表焦点立场。
