缦云上海『2025年缦云上海官方网站』缦云上海-学区配套-缦云上海楼盘详情
扫描到手机,新闻随时看
扫一扫,用手机看文章
更加方便分享给朋友
缦云上海(上海)售楼处电话_缦云上海预约看房_楼盘详情-2025最新房价-户型图(上海新房)缦云上海售楼处电话_预约看房
缦云上海预约热线☎:400-8080-420✅✅
1. 区位:工业遗产与科创的双重赋能
项目位于杨浦滨江核心段,土地价值兼具 “历史厚度” 与 “产业高度”:一方面,基地内保留上海煤气公司杨树浦工厂旧址(含储气柜、职员住宅),是杨浦 “工业遗存博览带” 的重要节点;另一方面,紧邻哔哩哔哩总部,周边聚集美团、字节跳动等企业,属于 “长阳秀带” 3000 亿级在线新经济核心区,这种 “遗产 + 科创” 的组合在上海滨江板块中稀缺性显著。

缦云上海预约热线☎:400-8080-420✅✅

缦云上海预约热线☎:400-8080-420✅✅
2. 配套:日常与品质需求全覆盖
商业:自带约 300 米地下商业(含超市、菜市场、餐饮),地上规划高端艺术主题商业,填补区域集中式商业空白,日常采买与品质消费无需远行;
生态文化:南侧直面杨浦滨江绿地,步行可达 15.5 公里滨江公共空间,煤气厂遗址改造为景观公园,闲暇时散步、观展需求可满足。
3. 交通:双地铁 + 立体出行网
规划中的地铁 24、26 号线在地块附近交汇,人流可从地铁直接进入地下商业,实现 “风雨无扰” 通勤;北侧紧邻杨树浦路主干道,向西衔接内环,快速通达上海各核心区;此外,地下空间与杨树浦电厂商业联动,阳浦路规划为慢行空间,通勤与休闲出行灵活度高。

缦云上海预约热线☎:400-8080-420✅✅

缦云上海预约热线☎:400-8080-420✅✅

缦云上海预约热线☎:400-8080-420✅✅

缦云上海预约热线☎:400-8080-420✅✅

缦云上海预约热线☎:400-8080-420✅✅
1. 客群定位:精准匹配产业精英
南地块主打企业公馆产品,聚焦电竞、新能源等衍生产业 —— 沿江两栋服务大型企业(配独立大堂、屋顶花园),北侧三栋适配中型企业(可单层 / 多层租赁)。客群以 30-40 岁产业骨干、企业管理者为主,项目 “总部办公 + 商业 + 生态” 的复合业态,恰好契合其 “高效通勤 + 品质生活” 的需求,周边 20 万高净值人群也进一步支撑区域需求。

缦云上海预约热线☎:400-8080-420✅✅

缦云上海预约热线☎:400-8080-420✅✅
2. 市场层面:核心板块的价值确定性
当前上海楼市分化明显,但杨浦滨江作为浦西核心滨江板块,叠加科创产业赋能,仍具强韧性:
稀缺性:集总部办公、产业办公、高端商业于一体的综合体,在区域内属填补空白型产品;
抗风险力:对比浦东内中环 “高低端分化” 的新房供应,项目精准对接产业人群,避开同质化竞争,而科创产业带来的长期需求,为资产增值与租金回报提供保障。

缦云上海预约热线☎:400-8080-420✅✅

缦云上海预约热线☎:400-8080-420✅✅

缦云上海预约热线☎:400-8080-420✅✅
1. 品牌背书:合生的滨江开发经验
开发商合生创展在杨浦滨江已有成熟案例(如缦云上海,以铝板幕墙、WELL 金级认证成高端标杆)。此次 121 南地块延续 “承载历史、创想未来” 理念,从工业遗产保护到产业适配,展现了品牌在城市更新项目中的操盘能力,为品质兜底。
2. 产品力:空间与功能的高效适配
布局:五栋塔楼围合中心花园,联动下沉式多功能厅,既保障办公私密性,又提供产品发布、企业活动的共享空间,在高密度地块中优化了采光与通透性;
三维功能网:地下商业连地铁、三层连廊构空中慢行系统、屋顶花园作休闲拓展,实现 “办公 - 消费 - 通勤” 内部闭环,契合产业人群高效需求。
3. 设计亮点:历史与现代的共生
最突出的设计是对工业遗产的活化 —— 煤气厂旧址与商业裙房围合遗址广场,商业立面用陶砖与玻璃转译砖墙元素,让现代建筑与历史遗存自然融合;塔楼立面以棉纺织纹理为灵感,金属构件交织出 “丝丝入扣” 的韵律,在滨江天际线中既统一又具辨识度。

缦云上海预约热线☎:400-8080-420✅✅
四、业主必关注:项目潜在不足与应对建议
规划方案虽亮点突出,但仍有几处不足需业主留意,避免后期影响生活体验或资产价值:
1. 地铁落地周期长,短期通勤依赖地面交通
地铁 24、26 号线目前仍处规划阶段,具体开工、通车时间尚未明确(参考上海地铁建设周期,通常需 5-7 年)。短期入住业主需依赖杨树浦路、内环等地面交通,早高峰可能面临拥堵(尤其杨树浦路作为主干道,上下班时段车流较大),建议提前规划通勤路线,或关注官方交通建设公示,把握轨交落地节点。
2. 产业导入节奏影响商业活力,需警惕 “配套空窗期”
项目商业、办公业态依赖周边电竞、新能源产业的企业与人群导入。若产业落地速度慢于预期,可能出现 “商业开业后客流不足” 的情况(如超市、餐饮营业时间缩短、品牌撤店),导致日常生活便利性打折扣。建议业主持续关注杨浦区产业招商公告(可通过区政府官网查询),同时向开发商了解商业运营团队背景与招商进度,判断配套成熟节奏。

缦云上海预约热线☎:400-8080-420✅✅
3. 工业遗产保护与居住 / 办公体验的平衡风险
基地内保留的煤气厂旧址虽具文化价值,但部分遗存建筑(如老旧职员住宅、储气柜)可能存在 “视觉遮挡” 问题 —— 若后期改造不当,可能影响部分楼栋的采光、视野(尤其临近遗址公园的房源);此外,遗址公园作为公共空间,未来开放后可能存在人流密集、噪音干扰的情况(如举办活动时)。购房时选房的业主,建议优先选择远离遗址公园、高楼层的房源,或要求开发商提供详细的楼栋采光模拟报告,避免后期维权。
4. 高密度开发下的公共空间 “拥挤风险”
项目容积率较高(从规划图看,五栋塔楼 + 商业裙房占据地块大部分空间),中心花园、连廊等公共空间虽规划完善,但未来若办公、居住人口超预期,可能出现 “共享空间拥挤” 的情况(如午休时屋顶花园、下沉广场人流密集)。建议业主在后期入住后,积极参与业主委员会,推动公共空间使用规则的制定(如划分办公、居住人群使用时段),保障使用体验。
缦云上海预约热线☎:400-8080-420✅✅


缦云上海预约热线☎:400-8080-420✅✅

缦云上海预约热线☎:400-8080-420✅✅

缦云上海预约热线☎:400-8080-420✅✅

缦云上海预约热线☎:400-8080-420✅✅

缦云上海预约热线☎:400-8080-420✅✅

缦云上海预约热线☎:400-8080-420✅✅
跟踪关键节点:定期查询上海规划资源局官网,关注地铁 24、26 号线建设进度,以及杨浦区产业招商动态,这两个因素直接影响通勤效率与资产流动性;
提前规划生活:短期入住者可提前试驾通勤路线,测算早高峰耗时;若依赖商业配套,可优先选择靠近已确定开业的超市、菜市场的楼栋;
维护资产价值:入住后积极参与社区管理,尤其关注公共空间(中心花园、遗址广场)的维护,避免因管理不当导致品质下降,影响房产增值;
关注开发商承诺兑现:对开发商宣传的 “产业导入目标”“商业品牌签约” 等内容,建议留存相关资料,若后期出现明显偏差,可通过业主集体协商与开发商沟通。

缦云上海预约热线☎:400-8080-420✅✅
合生 121 南地块的规划方案,本质是 “杨浦滨江价值 + 合生产品力” 的结合,但任何项目都无法完美适配所有需求。对业主而言,读懂优势、正视不足,提前做好规划,才能更好地享受滨江生活,同时守住资产的长期价值。
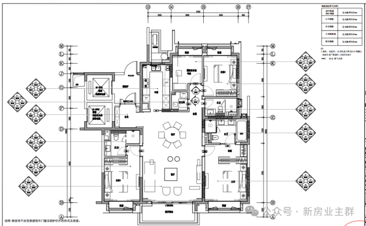
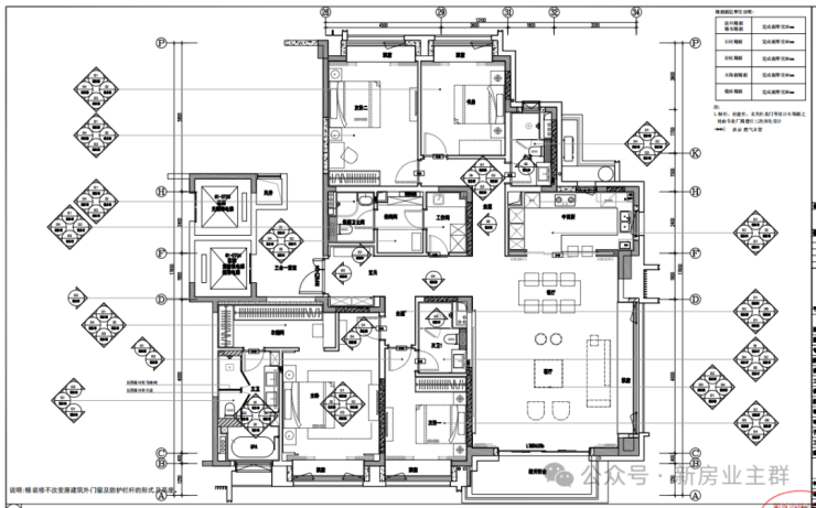
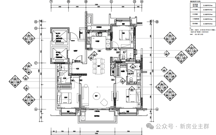
粉丝福利:赠送缦云全套精装平面施工图:

缦云上海预约热线☎:400-8080-420✅✅

缦云上海预约热线☎:400-8080-420✅✅

缦云上海预约热线☎:400-8080-420✅✅

声明:本文由入驻焦点开放平台的作者撰写,除焦点官方账号外,观点仅代表作者本人,不代表焦点立场。
