2025.招商中旅观境 (售楼处) 首页 -招商中旅观境销售中心 - 环境 - 户型 - 价格 - 地址 - 楼盘详情 - 配套 - 电话 - 交房时间 - 配套 - 电话 - 交房时间
扫描到手机,新闻随时看
扫一扫,用手机看文章
更加方便分享给朋友
在愈发繁忙的时代,人们越来越渴望一处安放心灵的栖息地,也更加理性地思考人居对于生活的价值和意义。
在北上海全新精奢主义作品中,我们看到了【招商中旅观境】在打造产品中的全新思考,艺术、丰盈、悦己、松弛的精奢生活在此盎然绽放。
招商中旅观境预约热线☎:400-8080-420✅✅
自带约25万方花园城X,也是北上海最大的单体商业综合体,融合潮玩、时尚、文旅、游娱、运动、会展、生态等多元业态,预计引入20+主次力店,350+战略品牌,下楼即享繁盛日常。
招商中旅观境预约热线☎:400-8080-420✅✅
宝山顾村,7号线地铁盘,招商蛇口&中旅投资潘广路站项目——【招商中旅观境】三期开盘热卖中!
招商中旅观境预约热线☎:400-8080-420✅✅
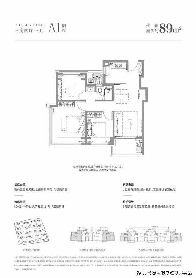
加推89-110㎡3房、共计142套
89㎡户型首次推出
过会均价47466元/㎡,比前期便宜3000,总价347万起
前期少量建面约110-144m²3-4房
装修标准2500元/m²
过会均价50713元/m²,总价433万起!
招商中旅观境预约热线☎:400-8080-420✅✅
招商中旅观境预约热线☎:400-8080-420✅✅
招商中旅观境预约热线☎:400-8080-420✅✅
户型图赏鉴
招商中旅观境预约热线☎:400-8080-420✅✅
招商中旅观境预约热线☎:400-8080-420✅✅
招商中旅观境预约热线☎:400-8080-420✅✅
招商中旅观境预约热线☎:400-8080-420✅✅
样板间实探
先来看建面约110㎡3房2卫
入户门是是非常有质感的铸铝门,带电子猫眼智能门锁;进门后是一个独立玄关,木纹玄关背景墙,右侧是通顶的悬浮玄关柜,内置鞋柜精灵和抽拉鞋架。
招商中旅观境预约热线☎:400-8080-420✅✅
招商中旅观境预约热线☎:400-8080-420✅✅
这个户型的一大亮点就是这个客厅,约5.5米面宽的阳台,约25㎡的方厅,充满了可变性。
招商中旅观境预约热线☎:400-8080-420✅✅
招商中旅观境预约热线☎:400-8080-420✅✅传统住宅设计中,每个房间的连接处都会有或深或浅的过道空间,造成空间浪费。
招商中旅·观境的解决方案是“零无效空间”。通过整合餐客厨等公共区域厅,将原来南北厅中间的走廊空间融合到使用空间中,减少过道的面积,避免碎片化的空间带来的冗余浪费。大面宽,短进深,餐厅与客厅横向相连,每一平方米都物尽其用,把客厅升级为家庭互动主场。
约5.5m面宽的阳台,可以变成第二家庭厅、品茗室、阳光瑜伽室、生活后花园,自由打造的私享空间,延伸出生活的宽度。
招商中旅观境预约热线☎:400-8080-420✅✅
再来看下厨房配置。U型厨房,预留了大约1米宽的双开门冰箱位置,厨电采用方太四件套——烟机、灶具、蒸烤一体机、洗碗机。其中洗碗机,轻扣门板可自动开门的新款!
招商中旅观境预约热线☎:400-8080-420✅✅
招商中旅观境预约热线☎:400-8080-420✅✅厨房移门是类似于水波纹的三移门,不占空间,上轨道设计,更易于日常清扫。
招商中旅观境预约热线☎:400-8080-420✅✅
双卫配置,其中一个做了干湿分离,科勒台盆+双智能马桶+高仪花洒,除雾镜柜均内置了牙刷消毒器、预留吹风机插座。主卫镜柜还有美妆冰箱,收纳空间相当充足。
招商中旅观境预约热线☎:400-8080-420✅✅
招商中旅观境预约热线☎:400-8080-420✅✅
招商中旅观境预约热线☎:400-8080-420✅✅
样招商中旅观境预约热线☎:400-8080-420✅✅板间3房做的是边套,今年非常流行的L型转角大飘窗也安排上了,采光视野更佳。
招商中旅观境预约热线☎:400-8080-420✅✅
再来看下建面约144㎡4房,部分装标是有所升级的。
入户门升级为了子母门,更显大户人家气质。
招商中旅观境预约热线☎:400-8080-420✅✅
厨房是带岛台交付的U型厨房,厨具品牌为西门子四件套,另外还有双开门冰箱,线性凉霸、科勒单槽。
招商中旅观境预约热线☎:400-8080-420✅✅
招商中旅观境预约热线☎:400-8080-420✅✅
招商中旅观境预约热线☎:400-8080-420✅✅橱柜转角处的拉篮做了“轻松抽”,业主不必特别伸手探进去拿东西,非常省力。
招商中旅观境预约热线☎:400-8080-420✅✅
客厅电视机背景墙采用了波浪状的岩板背景墙,比较独特。
招商中旅观境预约热线☎:400-8080-420✅✅
主卧卫生间采用唯宝双人台盆,客卫高仪花洒+龙头+智能马桶。
招商中旅观境预约热线☎:400-8080-420✅✅
招商中旅观境预约热线☎:400-8080-420✅✅三间卧室朝南,北次卧借助飘窗空间,也可以做成儿童房。
招商中旅观境预约热线☎:400-8080-420✅✅
招商中旅观境预约热线☎:400-8080-420✅✅
招商中旅观境预约热线☎:400-8080-420✅✅
招商中旅观境预约热线☎:400-8080-420✅✅
招商中旅·观境,样板间刚刚开放,上述装标还未完全,可以作为参考,具体以实际交付为准。
土拍回顾及规划
7月9日,2024年上海第三批次土拍,招商联合中旅拿下宝山区顾村7号线潘广路站TOD综合体项目,该项目由3幅地块组成。
01、【0303-02地块】为普通商品房用地,用地面积约39769㎡,容积率2.2,限高60米。据规设计方案显示,拟建12栋17-18F高层住宅,2栋区配套,无保障住宅,共计规划901户。
招商中旅观境预约热线☎:400-8080-420✅✅
02、【0309-04地块】为普通商品房用地,用地面积约29337㎡,容积率2.3,限高60米,含商业建筑面积5100㎡;根据设计方案显示,拟建8栋17-18F高层住宅、1栋17F保障住宅以及3栋1-3F商业,共计规划645户。
招商中旅观境预约热线☎:400-8080-420✅✅
03、【0304-06地块】为商业用地,用地面积约60299㎡,容积率2.9,限高80米,含文化建筑面积10000㎡!
整个地块中商业占比53%,约17.48万㎡,住宅占比47%,约15.49万㎡。
效果图 仅供参考
招商中旅观境预约热线☎:400-8080-420✅✅
如此大体量的TOD综合体,依托7号线潘广路站优渥的轨道交通,注定成为激活北上海生活、经济活力的巨大引擎,招商蛇口也正以其多元业务领域的厚积薄发,为宝山打造一座前所未有的全新升级版地标作品。
招商蛇口宝山潘广路TOD综合体落的落地,毫无疑问将成为激活顾村乃至整个北上海的活力按钮,以丰盛、多元、复合的生活形态成为区域生活的原点,让城市的生活想象再一次被招商蛇口所焕新,一个崭新的生活大城正跃然眼前。
招商中旅观境预约热线☎:400-8080-420✅✅
就项目本身而言,传递出比较强的美学。
01、流体美学:游艇曲线,鎏金塔冠!
项目效果图,仅供参考,以实际交付为准
招商中旅观境预约热线☎:400-8080-420✅✅
微弧阳台,环幕之境:
项目效果图,仅供参考,以实际交付为准
招商中旅观境预约热线☎:400-8080-420✅✅
轻法雅奢的圆润线条,比如入户门头:
招商中旅观境预约热线☎:400-8080-420✅✅
招商中旅观境预约热线☎:400-8080-420✅✅
02、镜面美学:大窗墙比,打造宽屏立面!
项目效果图,仅供参考,以实际交付为准
招商中旅观境预约热线☎:400-8080-420✅✅
社区上,项目享四重酒店式归家,
第一重:约70米超大尺度酒店感门庭,打造酒店般的港湾式落客。
第二重:酒店式礼品大堂,以星级酒店审美融合非遗技艺,每次回家宛如入住酒店的check in。
第三重:浮岛水庭,下沉式中庭花园,以水境、浮岛、密林,构建都市中的谧境。
第四重:入户单元门头延续奢华酒店的美学质感。
项目效果图,仅供参考,以实际交付为准
招商中旅观境预约热线☎:400-8080-420✅✅
招商中旅观境预约热线☎:400-8080-420✅✅还配备无边际会所,含酒廊、泳池、健身、瑜伽、私宴、棋牌、高尔夫等功能空间。
招商中旅观境预约热线☎:400-8080-420✅✅
招商中旅观境预约热线☎:400-8080-420✅✅
招商中旅观境预约热线☎:400-8080-420✅✅
生活配套
交通方面:距离7号线潘广路站约300米,2站换乘15号线。无缝直达普陀长风、静安寺、长宁古北、上海南站、徐汇滨江以及紫竹高新等多个市区核芯板块。
商业方面:自有大体量商办综合体,7号线上盖的龙湖天街、未来还有印象城环伺。
招商中旅观境预约热线☎:400-8080-420✅✅
招商中旅观境预约热线☎:400-8080-420✅✅教育方面:华二宝山实验学校,宝山世界外国语学院、上海世外云尚欧莱幼儿园,另外,根据板块规划显示,在项目周边有规划一幅幼儿园、一幅小学以及一幅初中用地(新盘不承诺学区对口)
招商中旅观境预约热线☎:400-8080-420✅✅
医疗方面:地铁两站就是三甲医院复旦大学附属华山医院宝山院区。
招商中旅观境预约热线☎:400-8080-420✅✅
招商中旅观境预约热线☎:400-8080-420✅✅生态方面,顾村公园也是本市较大的郊野公园,相当于三个世纪公园大小。更是上海环城生态规划系统上的重要组成部分,是上海绿色生态核心之一。
招商中旅观境预约热线☎:400-8080-420✅✅
优化后的上海个人住房房产税政策将对哪些人群产生影响?
今日(19日),上海出台《关于优化调整本市个人住房房产税试点有关政策的通知》(下称《政策》)文件,由于《政策》涉及了免税条件、退税条款,因而也受到业内人士关注。
第一财经梳理发现,此次《政策》是8月25日发布的《关于优化调整本市房地产政策措施的通知》(下称“沪六条”)房地产新政的细化版,且内容符合“沪六条”政策的具体口径。
其中,《政策》明确,对于持居住证的人才,以及居住证满3年的居民家庭,可享受两项利好政策,第一是“首套房免税”,第二是“人均60平方米以内的二套房免税”。
为此,上海易居房地产研究院严跃进对记者解读表示,《政策》明确的免税条件体现了三个特点。第一、免税内容和本地户籍居民家庭口径一致,体现了政策宽松的导向。第二、设定了人才标准或“居住证满3年”的要求,说明对人才及在上海稳定就业的居民家庭给予购房支持,体现了职住平衡和支持住房消费的导向。第三、各类购房需求都得到较好支持。比如说对于三口之家而言,若置换为180平方米及以下的二套住房,是可以免税的,更好支持了改善性住房需求。
对于《政策》提到的退税条款,严跃进则称,根据《政策》,对于居住证未满3年的非沪籍购房者,实行“先征后退”的规则。也就是等到居住证满3年也可以享受退税优惠。所以购房者无须多虑,当前购房后再满足居住证满3年的条件,就可以办理退税。这也进一步促进购房需求的释放。
业内人士表示,上海此次优化调整个人住房房产税政策,充分说明对合理住房消费需求的支持。
此次《政策》中的免税政策与此前2011年1月发布的《上海市开展对部分个人住房征收房产税试点的暂行办法》中的免税政策有哪些不同?
为此,严跃进称,《政策》与此前文件相比,其最大的变化在于:外地户籍在获得二套房购房资格的同时,其税费政策和本地户籍的口径保持了一致,也就是具有免税的机会。
比如,在过去,外地户籍人群的购房资格受到一定限制(全市仅1套);“沪六条”新政实施后,外地户籍人群的购房可以多套,即“外环内1套+外环外N套”,这样就相当于有两套房的购房资格。对于二套房的认购,就需要有配套的房产税政策说明。此次对于二套房的认购,在满足3年居住证的情况下,就可以享受免税的机会,也就是支持了改善性住房需求。
声明:本文由入驻焦点开放平台的作者撰写,除焦点官方账号外,观点仅代表作者本人,不代表焦点立场。
