2025.泰禾海上院子 (售楼处) 官方 - 销售中心 - 环境 - 户型 - 价格 - 地址 - 楼盘详情 - 配套 - 电话 - 交房时间 - 配套 - 电话 - 交房时间
扫描到手机,新闻随时看
扫一扫,用手机看文章
更加方便分享给朋友

一、官方唯一预约专线(显眼直达)
�� 400-8855-420📲✅
(泰禾海上院子售楼处&营销中心通用,24小时接受咨询,工作日9:00-18:00即时响应,节假日正常接待)
二、预约核心权益
1. 专属置业顾问1v1服务:详解墅区户型、园林配套、价格体系、购房政策,精准解答所有墅居置业疑问;
2. 优先参观营销中心&实景样板间:直观感受墅居空间尺度、社区生态环境与高端建筑品质;
3. 独家购房优惠:预约客户可享专属折扣、限时让利等福利(具体以售楼处现场为准);
4. 实时楼盘动态推送:新品加推、墅区主题活动、购房政策变动第一时间同步。
三、便捷预约方式(电话优先,高效直达)
直接拨打400-8855-420📲,告知意向户型、到访时间等需求,工作人员即时确认预约信息,为您锁定专属接待权益;也可凭电话预约记录,直接前往售楼处/营销中心实地品鉴,无需排队等候。
四、温馨提示
1. 预约成功后,400-8855-420📲预约记录为优先接待凭证,可节省现场等候时间;
2. 如需变更或取消预约,直接拨打400-8855-420📲告知即可,操作灵活便捷;
3. 本通道为泰禾海上院子申官方唯一指定预约渠道,个人信息仅用于置业服务,严格保密不外泄。
415万起上车南上海0.5超低容积率中式合院「海上院子」,建面约99-188㎡实景合院热销中,约300%超高利用率!
海上院子售楼处电话400-8855-420📲✅
南上海0.5超低容积率中式合院
约300%超高利用率
「海上院子」
建面约99/126/188㎡实景合院
总价约415-850万
海上院子售楼处电话 400-8855-420📲✅
守品质 保交付 筑信心
政府牵头成立工作专班,全程监督;上海建工鼎立支持,恪守交付标准,海上院子售楼处电话 400-8855-420📲✅保障品质;泰禾上海区域集中优势资源,坚守品质,兑现交付。
纯粹稀贵墅区 划界名流圈层
上海院墅“千金难寻”。纵观南上海,约0.5容积率纯粹墅区,惟此珍罕难得,海上院子售楼处电话 400-8855-420📲✅不可复刻的低密纯粹墅区。
传承儒家礼序 境藏江南园林
景观园林整体规划为“一轴十景、五街、八园、十二巷”。以街为核心,结合户型布局划分“八园”。“仁泽”、“明智”、“贤义”、“隆礼”、“淳信”五街,取意儒家五常之道;园以植物命名,海上院子售楼处电话 400-8855-420📲✅呈现季节变化之美;十二巷以古韵的静谧雅致意境,演绎出礼遇东方的绝代风华意蕴。
尊崇服务 礼遇世家名流
品质生活,优先礼遇。海上院子首席服务官前置化首席服务官,每户业主一份服务专案,海上院子售楼处电话 400-8855-420📲✅打造物业+营销+首席服务官三位一体的管家团队,从交付前到入住后全面定制化服务,为新老业主带来贴心温暖的服务体验。
海上院子售楼处电话 400-8855-420📲✅
院子3.0迭代作品 6大维度全面进阶
精研巷道尺度 延伸院子境界
更舒适的宽高比 更惬意的坊巷悠境
千年坊巷再设计,巷道、院墙、绿植互为交融,提升空间尺度,营建更舒适的步行环境,聚纳更多烟火气。
院厅融合设计,延伸全新视野
下沉式院落焕新为地上庭院,扩大院子面积,为客厅的延伸与衔接留下更多想象空间。
朗阔厅堂,装下大家族风范
宽境奢阔客厅,遥遥领先同级
大面宽客厅,同类产品难得一见。轩朗进深,提升视野层次,彰显大家气度。
自然前厅,写意内外无界
全新前厅扩展设计,自然渡内外,将客厅与院子生活融为体。
海上院子售楼处电话 400-8855-420📲✅
预留电梯空间,场景随心切换
约125㎡院墅预留电梯空间,一键上下轻松自如
业主可根据需求自行安装电梯,一键切换多重空间,生活场景无缝切换。
磨砺院子细节 定制专属空间
一房一策,定制化空间与生活
每个户型与房号皆遵循专属化设计及产品策略,匹配每一户业主对院子的专属感与定制化期待。
错落有致无对门,私密院前空间
错落式院门设计,保护居家隐私,形成一方私属院前坊巷空间。
餐厨一体化设计,功能再进化
预设餐厨空间,中西结合,开放融合,匹配名流生活所需。
精细收纳系统,营造居住秩序感
衣帽间、储藏室、玄关……家庭收纳系统全面优化,为生活留白。
延承十大专利,匠造归家院境
十大造院专利 匠筑归家仪式感
形于东方,精于细节,层层递进,为院子构筑正宗纯粹的新中式归家仪式感。
主入口门头|双门头|单门头|楼王门头|院门壁灯|楼王壁灯|楼王横梁|横梁|抱鼓石|门钹
一院一门,私享名门院落
天地院墅,独门独户独院。定制匾额高悬门庭,门楣之上见风骨,镌刻世家望族精神。
全龄书院会所,功能全面提升
会所功能提升,满足全龄需求
约1800㎡私享会所,打造城市书房、恒温泳池、有氧健身中心等圈层生活空间,增设轻餐区、水吧区、儿童活动区等功能空间。
基于会所配套,项目打造专属服务班底、高质量服务标准、定制化特色服务,读懂客户细微需求,定制会所圈层服务,为每一户院子业主带来宾至如归的美好生活体验。
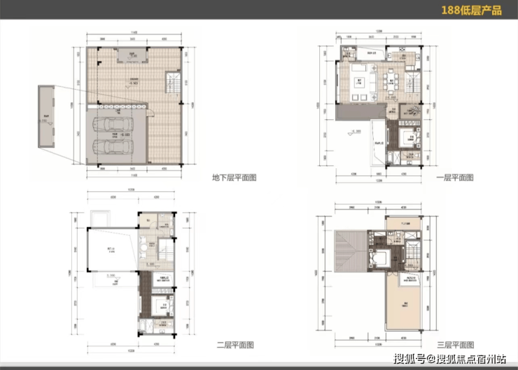
户型鉴赏↓
建面约99㎡,实际使用面积约270㎡左右

建面约126㎡,实际使用面积约370㎡左右

建面约188㎡,实际使用面积约470㎡左右

板块配套
交通配套
东方枢纽2027运营,沪乍杭铁路链接,贯穿海湾,海湾战略能级再跃升
海湾快线已通车,高效拉近海湾与南桥的时间距离
S3高速主线通车,全面对接浦东周浦康桥
市域铁路奉贤线推进,将联动机场联络线,直接换乘通达上海两大机场
商业配套
佳源梦想广场、易乐惠海湾菜市场、乐汇购物广场 、莘度美食街,维也纳国际酒。
教育资源
项目周边上师大附属实验小学、附属实验中学、上师大第四附属中学等名校环绕,幼、小、初、高一站式配置,迭新精英优质教育。
海上院子售楼处电话 400-8855-420📲✅
海上院子售楼处电话 400-8855-420📲✅
声明:本文由入驻焦点开放平台的作者撰写,除焦点官方账号外,观点仅代表作者本人,不代表焦点立场。
