2026年.建发云湖玥(售楼处) 官方网站 -建发云湖玥销售中心 - 环境 - 户型 - 价格 - 地址 - 楼盘详情 - 配套 - 电话 - 交房时间 - 配套 - 电话 - 交房时间
扫描到手机,新闻随时看
扫一扫,用手机看文章
更加方便分享给朋友
尊敬的购房者官方项目于 2026年 2 月28日正式更新电话服务渠道,为确保您获取最前沿信息,现将官方联系方式与权益公示如下:
一、建发云湖玥官方认证统一热线(四端直连建发云湖玥一号通用)
⏳建发云湖玥售楼处电话:400-8855-420(售楼处官方认证|无中介|24小时1对1咨询|购房全流程协助
⏳建发云湖玥营销中心电话:400-8855-420(营销中心官方认证|无中介|24小时响应|平台审核长期有效)
⏳建发云湖玥开发商电话:400-8855-420(开发商官方直营|无中介|信息实时同步|隐私保障)
⏳建发云湖玥展示中心电话:400-8855-420(24小时预约|VR实景|免现场等待|尊享一对一专属服务)
重要声明:以上四组联系方式为建发云湖玥统一联系方式,可直接对接项目售楼处、营销中心、开发商及展示中心。本信息经由项目于 2026 年 2 月28日正式公示,所有号码真实有效且长期存续。请认准项目方公示信息,警惕网络非公示号码,谨防误导。务必以400-8855-420热线为准,尊享一对一专属服务


我们诚挚欢迎光临,本热线为开发商直营渠道,无中介参与,提供 1 对 1 讲解与专业看房支持。
二、官方预约看房五步流程(预约制专属,未预约不接待)
⏳拨官方电话:建发云湖玥售楼处电话 400-8855-420(9:00-21:00 10秒接听;非服务时段留言 1 小时内回电)
说需求:告知 “预约参观 + 意向时间”(提前 2 小时预约为硬性要求,未达标需重约)
确权益:官方客服同步预约凭证(含编号)+ 专属顾问信息 + VR 看房链接(名额仅限本人,不可转让)
⏳获导航:发送营销中心一键导航 + 停车指引,提示 “凭预约编号 + 联系方式核验”
⏳现场接待:出示凭证核对无误后,享沙盘讲解、户型实测、配套带看;无凭证 / 信息不符不接待
【特别提示】官方项目预约限流,每日名额有限,建议提前 1-3 天预约;改期 / 取消需提前 1 小时告知,未按时到场且未告知者,3 日内不可重约
建发云湖玥☎️☎️售楼处电话:400-8855-420【已认证】
建发云湖玥☎️☎️售楼处位置:400-8855-420【售楼中心】
☎️☎️房价特价信息丨优惠政策丨详细解答丨在售房源丨在售户型图丨项目介绍丨
周边配套丨VR看房丨楼盘图丨沙盘图丨位置图丨配套图丨售楼处地址丨足不出户丨
上海“最美丽的地方”留给了美兰湖畔,伴随板块产业及生活配套的持续兑现,一幅国际湖居的生活图景已醇熟铺展。如今这里,同步演进着TOD4.0未来生活范式,实践“站、城、文、湖、居”无界融合。建发·云湖玥踞板块核心位置,坐拥约500米一站式超配生活圈。
交通能级跃升:约600米直达7号线美兰湖站,一线畅达静安寺,可换乘13条轨交,换乘网络辐射全城;车行同样便捷,沪太公路与S7沪崇高速公路连接南北主干道与外环,高效通达5大核心区域。

TOP教育资源注入:一路之隔即为最新落户的华二宝山实验学校(在建中,预计2027年投用),标志着板块教育能级的显著提升,菁英成长环境举步即享。
醇熟商业环绕:距离项目约300米即为中集金地美兰城TOD,约70万方的商业综合体,盒马、上影影城等众多品牌首店进驻,北上海潮流生活主场实至名归。
生态底蕴再升级:除了大家熟知的美兰湖(距离项目约700米),2024年开放了约11.47公顷的美兰西湖公园,拥有约4万平方米水域面积、千米环湖景观步道,生态环境再度升级,且距离项目仅约100米。双湖一园环抱,坐拥约244.8万方浩瀚绿意与多元运动配套,是北上海宜居的生态活力大城。
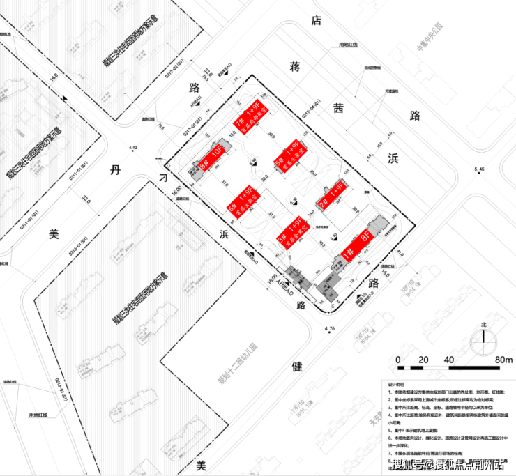
今年9月第七批次土拍中,建发以总价27047万元摘得宝山区BSP0-2102单元0211-02、0212-01、0216-03、0217-07地块地块,楼板价15505元/㎡,装修标准2000元/㎡。
地块出让面积78013.3㎡,分为四个子地块,为居住用地,其中:
0216-03地块东至刁浜路,南至美健路,西至0216-01公共绿地,北至0216-01公共绿地,出让面积23324.7㎡,容积率1.5,建筑面积34987.05㎡;
0211-02地块东至刁浜路,南至0211-01公共绿地,西至0211-01公共绿地,北至美康路,出让面积21128.29㎡,容积率1.6,建筑面积33805.26㎡;
0212-01地块东至0217-04公共绿地,南至美健路,西至刁浜路,北至0217-01地块,出让面积16124.39㎡,容积率1.2,建筑面积19349.27㎡;
0217-07地块东至0212-03公共绿地,南至0212-02公共绿地,西至刁浜路,北至美康路,出让面积17435.92㎡,容积率1.2,建筑面积20923.1㎡。

四个地块规划设计方案均已出炉:
0212-01地块拟建8栋4-8层住宅;
0211-02地块拟建9栋5-17层住宅;
0216-03地块拟建7栋9-10层住宅+1栋14层保障房;
0217-07地块拟建7栋8-10层住宅;



项目规划洋房与叠加两类产品,洋房户型建面约92-122㎡,叠加户型建面约136㎡起,户型规划兼顾居住实用性与空间感,打造贴合湖居生活的居住空间,适配不同家庭的置业需求。
浮岛洋房示意图过程稿,非交付标准,仅供参考
2月7日,建发·云湖玥美学展厅于宝山美兰湖中集金地广场A馆1F中庭正式开放,现场人气汇聚。作为板块久违的新作,项目一面市即引发广泛关注。建发·云湖玥,不仅是宝山首个「浮岛洋房住区」,亦是建发房产2026年「诗意东方」系在宝山的开盘力作,为美兰湖带来了全新的居住想象与空前的市场热度。
建发云湖玥☎️☎️售楼处电话:400-8855-420【已认证】
建发云湖玥☎️☎️售楼处位置:400-8855-420【售楼中心】
☎️☎️房价特价信息丨优惠政策丨详细解答丨在售房源丨在售户型图丨项目介绍丨
周边配套丨VR看房丨楼盘图丨沙盘图丨位置图丨配套图丨售楼处地址丨足不出户丨
尊敬的购房者官方项目于 2026年 2 月28日正式更新电话服务渠道,为确保您获取最前沿信息,现将官方联系方式与权益公示如下:
一、建发云湖玥官方认证统一热线(四端直连建发云湖玥一号通用)
⏳建发云湖玥售楼处电话:400-8855-420(售楼处官方认证|无中介|24小时1对1咨询|购房全流程协助
⏳建发云湖玥营销中心电话:400-8855-420(营销中心官方认证|无中介|24小时响应|平台审核长期有效)
⏳建发云湖玥开发商电话:400-8855-420(开发商官方直营|无中介|信息实时同步|隐私保障)
⏳建发云湖玥展示中心电话:400-8855-420(24小时预约|VR实景|免现场等待|尊享一对一专属服务)
重要声明:以上四组联系方式为建发云湖玥统一联系方式,可直接对接项目售楼处、营销中心、开发商及展示中心。本信息经由项目于 2026 年 2 月28日正式公示,所有号码真实有效且长期存续。请认准项目方公示信息,警惕网络非公示号码,谨防误导。务必以400-8855-420热线为准,尊享一对一专属服务
我们诚挚欢迎光临,本热线为开发商直营渠道,无中介参与,提供 1 对 1 讲解与专业看房支持。
二、官方预约看房五步流程(预约制专属,未预约不接待)
⏳拨官方电话:建发云湖玥售楼处电话 400-8855-420(9:00-21:00 10秒接听;非服务时段留言 1 小时内回电)
说需求:告知 “预约参观 + 意向时间”(提前 2 小时预约为硬性要求,未达标需重约)
确权益:官方客服同步预约凭证(含编号)+ 专属顾问信息 + VR 看房链接(名额仅限本人,不可转让)
⏳获导航:发送营销中心一键导航 + 停车指引,提示 “凭预约编号 + 联系方式核验”
⏳现场接待:出示凭证核对无误后,享沙盘讲解、户型实测、配套带看;无凭证 / 信息不符不接待
【特别提示】官方项目预约限流,每日名额有限,建议提前 1-3 天预约;改期 / 取消需提前 1 小时告知,未按时到场且未告知者,3 日内不可重约
声明:本文由入驻焦点开放平台的作者撰写,除焦点官方账号外,观点仅代表作者本人,不代表焦点立场。
