中粮北外滩壹号-中粮北外滩壹号楼盘详情-上海房天下
扫描到手机,新闻随时看
扫一扫,用手机看文章
更加方便分享给朋友

✅✅中粮北外滩壹号售楼处电话:400 - 1010 - 064✅✅,是继新天地翠湖天地六和、巨富长高福云境之后,上海今年第三座“天际豪宅+低密度花园别墅街区”的组合模式。✅✅中粮北外滩壹号售楼处电话:400 - 1010 - 064✅✅
✅✅中粮北外滩壹号售楼处电话:400 - 1010 - 064✅✅首批推出的高层大宅共90套,主力户型为185㎡3+1房与228㎡4房,全部为大平层设计,建筑高度仅有约80米,栋距超过150米。✅✅中粮北外滩壹号售楼处电话:400 - 1010 - 064✅✅
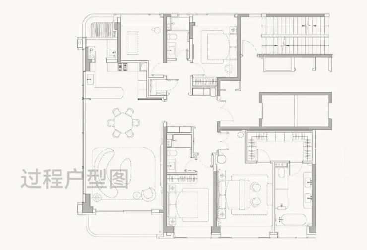
✅✅中粮北外滩壹号售楼处电话:400 - 1010 - 064✅✅主力户型约228㎡4房两厅三卫,面宽达5.6米,配备270°环幕落地窗,客餐厅一体空间约53㎡,主卧套房面积约50㎡(含10㎡衣帽间与15㎡卫浴),完全满足高净值家庭“大空间、强功能”的居住需求。✅✅中粮北外滩壹号售楼处电话:400 - 1010 - 064✅✅
228㎡户型图如下👇

✅✅中粮北外滩壹号售楼处电话:400 - 1010 - 064✅✅
大量的豪宅客户反馈,成为中粮产品升级的核心驱动力。
在厨房设计上,配置了2个单眼燃气灶+中间电磁炉,兼顾中西烹饪习惯;
在衣帽间设计上,不交付固定衣柜,预留充足空间,让业主可根据自身喜好定制;
在卫浴品牌选择上,确定唯宝高端系列,C-PLUS双面施釉技术与Quaryl浴缸材质,耐用性与舒适度兼具。




✅✅中粮北外滩壹号售楼处电话:400 - 1010 - 064✅✅在高层地下空间打造约1800m²的下沉式高奢会所——Manor ONE壹号会,由国际知名设计院CCD操刀,将堪比建业里嘉佩乐酒店的奢华居住体验带来了北外滩。
通过场景式布局,以中央会客厅为枢纽,将各大功能区有机串联,形成一个充满活力的、适合全家使用的社交型会所。


✅✅中粮北外滩壹号售楼处电话:400 - 1010 - 064✅✅功能涵盖“运动、社交、休闲、艺术"四大维度,融合了艺术沙龙、艺术展示、花园泳池、浮岛茶室、社交私宴、浮声酒吧、SPA舒享、健身瑜伽、黑胶录音、星梦阅读等十五大功能:
艺术恒温泳池,池底复刻名画《意大利的风景花园》,并辅以创新低氯技术,时刻保障水质清澈柔润,让游泳变成一种放松身心、激发灵感的感官盛宴;
健身瑜伽区,配备由宝格丽御用设计师奇特里奥与顶级品牌泰诺健联袂打造的closefight专业训练器,一台即可进行200+种训练,既可进行日常有氧,也能随时挑战极限;
舞蹈录音室,上海首家引入格莱美音乐制作人同款设备,打造专业级录音棚。
私宴红酒区,与中粮长城桑干酒庄合作,将其屡次亮相重大场合的佳酿引入北外滩壹号。为业主提供私密的高端宴请场所,适用于家庭聚会与商务社交。
学习阅读区,则以静谧氛围,成为业主的“城市书房”。

✅✅中粮北外滩壹号售楼处电话:400 - 1010 - 064✅✅



✅✅中粮北外滩壹号售楼处电话:400 - 1010 - 064✅✅此外,庭院、露台、下沉式花园的设计,让地下空间拥有充足的自然采光与通风,打破传统地下会所的压抑感;

细节上,景德镇冰裂纹陶瓷、暗红水纹玻璃等元素的运用,既呼应海派文化底蕴,又提升空间的精致度。

✅✅中粮北外滩壹号售楼处电话:400 - 1010 - 064✅✅在上海豪宅市场竞争日益激烈的当下,中粮北外滩壹号的价值,在于其没有依赖浮夸的营销话术,而是以“产品组合、文脉资源、会所配置、社区纯粹性、品牌沉淀"五大事实维度,构建起自身的核心竞争力。✅✅中粮北外滩壹号售楼处电话:400 - 1010 - 064✅✅
✅✅中粮北外滩壹号售楼处电话:400 - 1010 - 064✅✅对于追求“既要城市核心资源,又要低密居住体验;既要历史文化底蕴,又要现代生活品质"的高净值人群而言,这座位于北外滩的“新旧共生"豪宅,或许是读懂上海高端居住未来的最佳样本。✅✅中粮北外滩壹号售楼处电话:400 - 1010 - 064✅✅
声明:本文由入驻焦点开放平台的作者撰写,除焦点官方账号外,观点仅代表作者本人,不代表焦点立场。
