越秀外滩樾(售楼处)官方网站-越秀外滩樾(营销中心)-越秀外滩樾欢迎您-小区环境-户型-最新价格-地址-楼盘详情-周边配套-越秀外滩樾售楼处电话-交房时间
扫描到手机,新闻随时看
扫一扫,用手机看文章
更加方便分享给朋友


【越秀·外滩樾】
🌈越秀外滩樾开发商电话: 400-8855-420✿✿(开发商认证)
越秀外滩樾营销中心
🌈越秀外滩樾开发商电话: 400-8855-420✿✿(开发商认证)
预约看房请联系案场销售
基础信息
【项目名称】越秀·外滩樾
【开发商】上海漕越经济发展有限公司
【项目位置】上海市·虹口区·梧州路235弄
【项目类别】70年产权住宅
【项目类型】风貌别墅
【可售户数】项目共计49栋(仅48栋可售)
【容积率】约1.3
编辑
编辑
编辑
【越秀·外滩樾】
🌈越秀外滩樾开发商电话: 400-8855-420✿✿(开发商认证)
越秀外滩樾营销中心
🌈越秀外滩樾开发商电话: 400-8855-420✿✿(开发商认证)
预约看房请联系案场销售
【传奇的1.5公里 启航外滩百年世界史】
项目所在地北外滩,是百年前上海的发源地。作为上海开埠后第一座码头的诞生地,北外滩率先“开眼看世界”,海纳万国文化风潮,众多此后影响中国的创举在此诞生,是上海最早的“十里洋场”。
编辑
【世界的1.5公里 再立世界上海新传】
傲立“一江一河”交汇处(直线距离黄浦江约1km),未来将打造成为彰显上海城市核心竞争力的黄金水岸和具有国际影响力的世界级城市会客厅,出入之间,相逢城市高阶未来。
编辑
【上海新封面】黄金三角顶序规划
北外滩,与外滩、陆家嘴并称为上海的“黄金三角”。将以2座陆家嘴的商务体量规划,新天地2.0生活圈打造,成为上海跃升世界舞台的“中心发力”新引擎。
编辑
【经济中心】全球化核心腹地
北外滩总开发面积约840万方,自陆家嘴之后上海最大开发区域,未来将聚焦资产管理、金融科技、绿色航运等上游产业,打造“运作全球的总部城”。
编辑
【地标中心】世界仰止的高度
北外滩将建设480米高的浦西第一高楼——上海北外滩中心,未来将携19栋摩天大楼集群共筑上海崭新天际线。
编辑
【极核中心】顶奢商业新地标
约1.5KM内拥享北外滩商圈、外滩商圈、陆家嘴商圈,华贸奢侈品品牌之家、白玉兰广场等潮奢集萃,未来上海顶奢商业新地标,举步间繁华尽拥。
编辑
【越秀·外滩樾】
🌈越秀外滩樾开发商电话: 400-8855-420✿✿(开发商认证)
越秀外滩樾营销中心
🌈越秀外滩樾开发商电话: 400-8855-420✿✿(开发商认证)
预约看房请联系案场销售
【交通中枢】无界畅行世界
约360米新建路隧道(直线距离),快速直达陆家嘴CBD;
约670米外滩隧道(直线距离),直达外滩金融商业街以及老码头;
约150米北横通道(直线距离)贯通全城,快速通达虹桥机场/虹桥火车站;
约2.4公里大连路隧道(直线距离),直达浦东东方路、世纪大道、八百伴商业圈。
编辑
编辑
编辑
编辑
编辑
编辑
【42载越秀 | 千亿级开发商 与上海共卓越】
国内资产规模最大的地方驻港企业——越秀集团
42载国匠越秀 千亿级开发商——越秀地产
中国第一代商品房缔造者
2024中国房企综合实力TOP7
【越秀·外滩樾】
🌈越秀外滩樾开发商电话: 400-8855-420✿✿(开发商认证)
越秀外滩樾营销中心
🌈越秀外滩樾开发商电话: 400-8855-420✿✿(开发商认证)
预约看房请联系案场销售
编辑
一城中轴 半壁越秀:打造广州地标IFC、城建大厦、维多利广场、越秀金融大厦、财富广场、市长大厦、广州环贸中心(ICC)等诸多重量级作品。
全球地标打造者:广州国际金融中心(IFC)高约440.75米,建成之时为全球10大超高层建筑之一,获得国际建筑界奥斯卡“英国菜伯金奖”。(此外,中国仅北京“鸟巢”和上海世博会英国馆荣获该奖项。)
豪宅基因始终传承:打造“广州第一富人区”二沙岛,屹立广州顶豪之列,整个二沙岛9个项目,有7个项目都是越秀开发,其中越秀宏城花园单价25万-40万/㎡,总价1-6亿,一房难求。
编辑
305户型
编辑
238户型
编辑
编辑
236户型
编辑
编辑
编辑
编辑
风貌之上 世界堂前
建面约238㎡—338㎡海派院墅
三里外滩 立传别墅
从你开启传承
虹口北外滩新封面【越秀外滩樾】
约238㎡-338㎡海派院墅,总价约4500万起,
样板间已经开放
【越秀·外滩樾】
🌈越秀外滩樾开发商电话: 400-8855-420✿✿(开发商认证)
越秀外滩樾营销中心
🌈越秀外滩樾开发商电话: 400-8855-420✿✿(开发商认证)
预约看房请联系案场销售
【越秀·外滩樾】
——诚邀品鉴——
上海楼市的冷暖分化远超想象。
在楼市周期里,新手小白套在追高、老手困于抄底,永远都在和大周期对抗,无时无刻都在踏空或买错中焦虑。
我永远记得,2021年这一年,热到疯抢!我再次见识到市场的癫狂状态,大量购房者因恐慌性购房高位接盘。“新房摇不到,二手房一天一个价,学区房暴涨,中环内老小区无房可买!”那年头,“房奴”可不算贬义,都是镶着金边的赚钱机会。
身边都有不少朋友,准备在搞上海房票买房,甚至一个不怎么联系的亲戚,也竟然发微信给我,问上海房子最近有没有在涨价...
过去十几年,上海的房子上涨的速度太快了,工资上涨的速度根本赶不上房价上涨的速度。闭着眼睛买房的,都是赢在时代的风口。
自2020年的口罩事件,新一轮的周期启动,三价就低后一直跌到现在,一二手倒挂也逐步消失。
上海楼市急速降温,很多人欲哭无泪。4年前“抄底心理”让无数人高位接盘,结果等来却是市场的一记响亮“耳光”:“六个钱包的钱,全砸水里了。”“一场失业就能让资产变负债。”最惨的情况就是:100万首付,硬拉高杠杆买个1000万的房子,过了几年,首付跌没了、降薪了,最后竹篮打水一场空。
今明两年买房的,要格外小心了!很有可能,按照过去的经验买房,失败的概率反而更大。
我不是危言耸听。市场真的跟过去不太一样了。跟过去最大的区别就是:进入一个非连续性周期。而买房本身,就是一个难以复制,且非常个性化操作的事情。
在当下,也很容易一步踩坑,把过去时代的红利,用实力赔掉!
未来,包括上海这样的城市,也不会像过去那样摊大饼的发展。而是片区化精细发展模式。上海人口迁入规模,从过去每年60万,到现在的6万。
分化越来越严重,上海买房也会越来越难了。
所以,今年到底能不能买房?
上周,北京楼市放开了限购,对于五环以外的新建商品房和二手房不再限定套数;
同时进一步放宽了限购条件,在北京只要有2年社保,单身也可买房。
北京进一步放松限购,是一个积极的信号,不过这次的目的可能还是为了去化库存,效果不会十分显著。
对于上海来说,大概率会跟进,但力度不会很大。
对照北京的模式,五环相当于上海外环,而目前上海外环外的楼市,二手和新房市场都比较艰难。
二手价格,在经历新一轮暴击
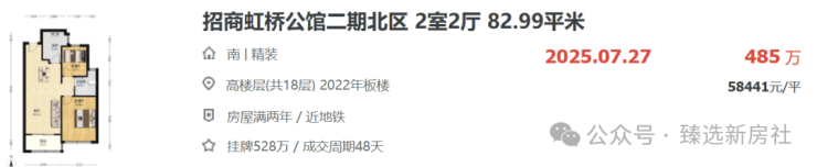
次新房中,外环外的大虹桥,招商虹桥公馆一期、二期北区和南区,7月的二手成交价全部跌到了6万以内。
编辑

编辑

如今的大虹桥,应该只有蟠龙天地的价格还比较坚挺,基本能到7万左右,楼层好的能站上7万+。
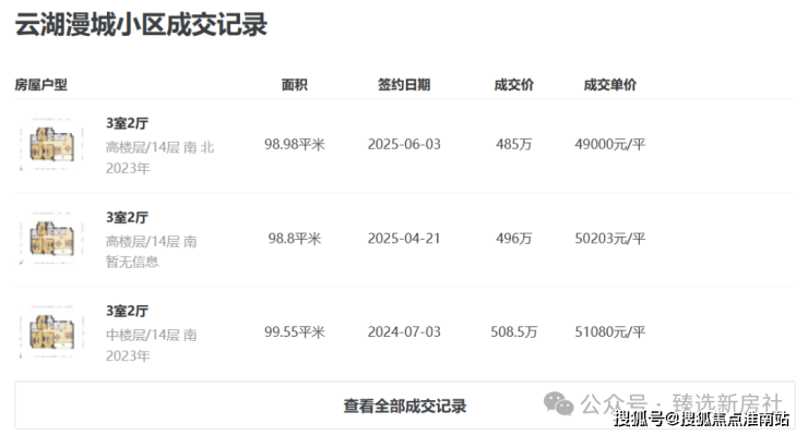
南翔的云湖漫城,2023年交付的次新房,最新成交均价4.9万,跌破了开盘价。
旁边体量超大的时代之城,对二手房市场造成了不小的冲击。
编辑

二手成交价被隐藏
继“房客分离”等战略调整之后,链家在上周隐藏了上海二手房的历史成交价。
首先,好处肯定是有的,有些小区现在跌幅很大,为了稳定市场预期,不让那些暴跌的房源公开显示,也是保护房东利益的一种办法。
弊端就是买卖双方进入了信息不透明化,无法通过公共平台获取真实的信息。
这一举措,也暴露出了链家的“私心”。
以后想要获取房源的确切信息,只能通过咨询链家;
这种情况之下,链家的有效留电就会增多,客源也会增长。
以后的链家,白嫖不了了。
接下来的二手房市场,交易量不一定会增加,网传的政策并未出台,有很多需求还未释放,加上无法查询历史成交情况,很多客群依旧处于观望状态。
截至发稿前,8月的上海新房市场只有4个项目开盘,其中位于浦东的保利世博天悦,以及闵行的古北悦公馆并未摇号。
而普陀的润雲金茂府三期,20套房源8月16日开盘,全部售罄。
编辑

浦东三林的陆家嘴前滩公馆,191套房源有效认购数272组,开盘当日去化约95%左右。
整体来看,新房市场分化比较严重,部分项目单次推盘量依旧不多,以保持高效的去化。
此外,本周末共计7盘认购,上海壹号院、金茂棠前、保利海上印均已触发五年限售。
老城厢的上海壹号院均价最高,总价5000万级。
金茂棠前作为宝山站的首发住宅项目,总价控制在500万左右,刚需上车的不错选择。
编辑
(部分认购数据截止到8月16日,仅供参考)
自从北京五环放松限购之后,上海楼市等了一周的政策利好,不过落空。
国家统计局公布的二手房市场成交价格,已经连续三个月环比下跌,虽然网上房地产每日网签数据没有大幅度滑落,但依旧需要新鲜的购买力入场,进一步稳定价格。
一、上海2025年8月最新限购政策汇总
编辑
外环外购房不限套数:对符合本市住房购买条件的居民家庭(包括本市户籍居民家庭、在本市连续缴纳社会保险或个人所得税满1年及以上的非本市户籍居民家庭),在外环外购买住房(含新建商品住房和二手住房)不限套数。
单身人士购房政策调整:成年单身人士(含沪籍和非沪籍)按照居民家庭标准执行限购政策。具体为:沪籍居民家庭/单身人士:外环外不限购,外环内限购2套;
非沪籍居民家庭/单身人士:社保/个税满1年可在外环外不限购;满3年可在外环内限购1套
崇明区:根据上海8月26日最新楼市政策,在崇明区购房参考外环外购房政策。只需在购房网签合同前1个月满足连续15个月累计12个月的上海的社会保险或者个人所得税即可购买崇明区住房,无需单独在崇明缴纳社保或者个税或者在崇明工作。
二、上海2025年8月最新购房商贷/公积金贷款政策
1、商业贷款政策(首套房/二套):
编辑
注意:根据最新政策,上海购房商业房贷利率不再区分首套住房和二套住房。
现阶段上海商贷利率执行情况如下:
首套:3.5%-45BP=3.05%
二套(主城):3.5%-5BP=3.45%
二套(临港、嘉定、青浦、松江、奉贤、宝山、金山):3.5%-25BP=3.25%
2、公积金贷款政策:
编辑
贷款额度提升:购买二星级及以上绿色建筑住房的,公积金最高贷款额度上浮15%
首套:160万元→184万元(多子女家庭可叠加至216万元)
二套:130万元→149.5万元
提取支付首付:支持提取本人及配偶公积金支付新建预售商品住房首付款
“又提又贷”:提取公积金支付首付不影响贷款额度计算
3、温馨提示tips:
二手房贷款“三价就低”
自2021年8月6日起,上海二手房房贷再出新规,执行“三价就低”:购房者申请贷款时,将从买卖合同价、交易中心核验价、银行评估价中,选择最低的一项,作为贷款申请房价标准。
三、上海2025年8月最新购房税费政策
编辑
非沪籍家庭优惠:首套房暂免征收房产税,第二套及以上住房给予人均60平方米免税面积扣除。
声明:本文由入驻焦点开放平台的作者撰写,除焦点官方账号外,观点仅代表作者本人,不代表焦点立场。
