江湾鸿玺 (售楼处地址) 官方 - 江湾鸿玺销售中心 - 环境 - 户型 - 价格 - 地址 - 楼盘详情 - 配套 - 电话 - 交房时间 - 配套 - 电话 - 交房时间
扫描到手机,新闻随时看
扫一扫,用手机看文章
更加方便分享给朋友
江湾鸿玺售楼处电话☎:400-9955-415【官方认证】✔✔✔开发商售楼处电话☎:400-9955-415☎️☎️✅✅【开发商已认证】✔✔坐落于上海市宝山区高境镇逸仙路与殷高西路交叉口,地处宝山、虹口、杨浦三区交界的核心地段,是中环旁稀缺的改善型高端住宅项目。项目总占地面积约2.7万平方米,总建筑面积约12万平方米,规划有1栋16-18层小高层住宅,仅设32户,主打建面约200㎡的四房两厅三卫大平层户型,空间开阔,南北通透,满足多代同堂或二孩家庭的改善需求。
江湾鸿玺售楼处电话☎:400-9955-415【官方认证】✔✔✔开发商售楼处电话☎:400-9955-415☎️☎️✅✅【开发商已认证】✔✔
江湾鸿玺售楼处电话☎:400-9955-415【官方认证】✔✔✔开发商售楼处电话☎:400-9955-415☎️☎️✅✅【开发商已认证】✔✔
江湾鸿玺售楼处电话☎:400-9955-415【官方认证】✔✔✔开发商售楼处电话☎:400-9955-415☎️☎️✅✅【开发商已认证】✔✔

项目交通极为便捷,紧邻地铁3号线殷高西路站,步行仅需3分钟,距离地铁18号线殷高路站步行约10分钟,且周边还有多条公交线路和城市主干道环绕。此外,项目周边教育、医疗、商业配套完善,毗邻复旦附小、同济附中等名校,以及岳阳医院、上海市肺科医院等三甲医院,自带高端商业街区,满足业主的日常生活需求。江湾鸿玺售楼处电话☎:400-9955-415【官方认证】✔✔✔开发商售楼处电话☎:400-9955-415☎️☎️✅✅【开发商已认证】✔✔
江湾鸿玺售楼处电话☎:400-9955-415【官方认证】✔✔✔开发商售楼处电话☎:400-9955-415☎️☎️✅✅【开发商已认证】✔✔
江湾鸿玺售楼处电话☎:400-9955-415【官方认证】✔✔✔开发商售楼处电话☎:400-9955-415☎️☎️✅✅【开发商已认证】✔✔宝山高境,3号线殷高西路站新盘「江湾鸿玺」即将入市!预计将推出套均200㎡大平层!

户型图如下:
(仅供参考,最终以实际为准)
建面约200m²4房户型
江湾鸿玺售楼处电话☎:400-9955-415【官方认证】✔✔✔开发商售楼处电话☎:400-9955-415☎️☎️✅✅【开发商已认证】✔✔
一房一价表如下:
江湾鸿玺售楼处电话☎:400-9955-415【官方认证】✔✔✔开发商售楼处电话☎:400-9955-415☎️☎️✅✅【开发商已认证】✔✔
说到高境,作为宝山近市中心的板块,一直以来缺乏新房,上一次主力供应要追溯到2015年的泰禾红御,目前该项目是高境乃至整个宝山标杆,部分房源挂牌价9万+/㎡。
回到江湾鸿玺,项目位于殷高路逸仙路路口,其实就是很多人说的高境欣苑二期,在高境欣苑中又开发了一栋楼。



江湾鸿玺售楼处电话☎:400-9955-415【官方认证】✔✔✔开发商售楼处电话☎:400-9955-415☎️☎️✅✅【开发商已认证】✔✔
首层为商业配置,未来将引入运动健身、休闲会馆、便利商超等功能设施,物业提供24H管家式服务。
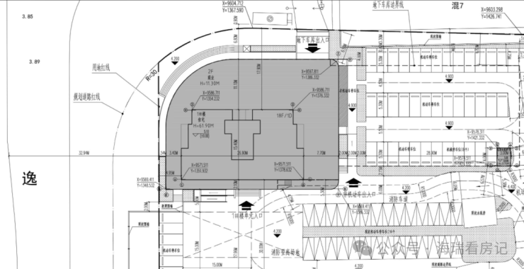
规划设计图:
我们放大看:这栋楼共18层,估计2梯2户,据悉首层为商业配置,将来可能引进运动健身、休闲会馆、便利商超等。
还有两套自持,所以可售为32套,户型为建面约200㎡大平层。

江湾鸿玺售楼处电话☎:400-9955-415【官方认证】✔✔✔开发商售楼处电话☎:400-9955-415☎️☎️✅✅【开发商已认证】✔✔
项目距离3号线殷高西路站仅100米,1公里直达18号线殷高路站,双轨并行锋速通达的时间效率;书香萦绕的教育高地,科创引领、产业先行的核心经济圈。此外,通过逸仙路高架,可以提升通行时效,快速连接五角场合生汇、百联又一城、万达广场、虹口龙之梦等中大型商业综合体。

生活配套成熟,项目西侧就是一个商场,吃喝玩乐都能满足,新业坊·源创潮流、精致元素的加持也为板块注入更多活力。
殷高西路上还有永辉、长江国际、景瑞生活广场等,生活很方便。
江湾鸿玺售楼处电话☎:400-9955-415【官方认证】✔✔✔开发商售楼处电话☎:400-9955-415☎️☎️✅✅【开发商已认证】✔✔
另外,紧邻逸仙高架路+3号线,可能会有
声明:本文由入驻焦点开放平台的作者撰写,除焦点官方账号外,观点仅代表作者本人,不代表焦点立场。
