联仲都悦汇 (售楼处) 官方 - 联仲都悦汇销售中心电话 - 环境 - 户型 - 价格 - 地址 - 楼盘详情 - 配套 - 电话 - 交房时间 - 配套 - 楼盘百科
扫描到手机,新闻随时看
扫一扫,用手机看文章
更加方便分享给朋友
闵行马桥稀缺联排别墅
『联仲·都悦汇』
310㎡商墅精彩面世!
法式干挂,地上三层地下一层
总价1400万起
编辑
编辑
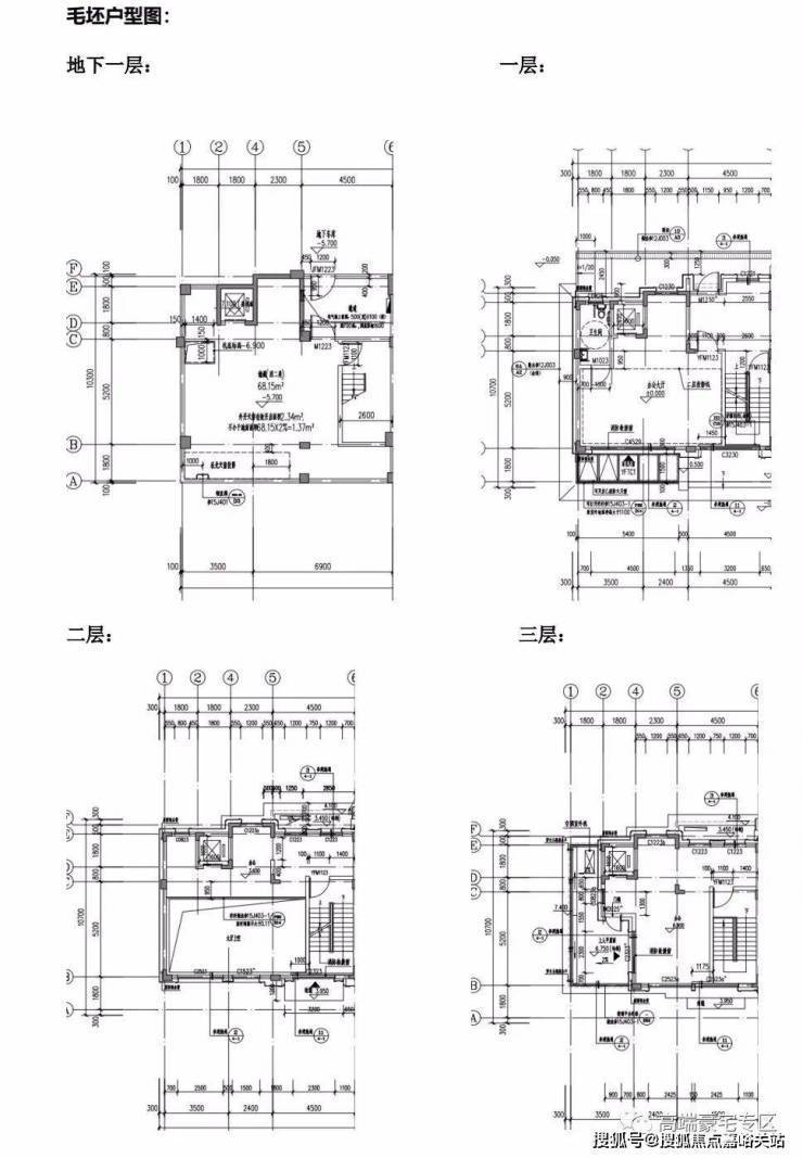
商墅户型图如下👇
编辑
样板间
编辑
编辑
编辑
编辑
编辑
联仲·都悦汇位于闵行马桥旗忠别墅区,旗忠别墅区是上海老牌的富人区,与松江佘山、浦东东郊齐称为沪上三大国际别墅区。上海仅存少量的容积率0.18以下超低密度居住用地中,大多数在马桥旗忠别墅区。
编辑
板块以低容积率、生态自然环境和高端国际品牌配置,2010年被列为上海第二批大型居住社区之一。总建面约33万方城市综合体联仲都悦汇位于旗忠板块正核心,紧临网球中心,超10万方市政绿化所环绕。
编辑
联仲都悦汇同样是低密度别墅区里的一员,背靠绿城玫瑰园,容积率低至1.0。项目贯穿了3条自然水系,分为ABCD四个地块,其中ABC为商住办综合地块,自带商业办公。
编辑
交通方面:项目距离嘉闵高架元江路出口3公里,毗邻G15、S32等快速主动脉,30分钟大虹桥,50分钟抵达浦东机场,快捷畅达全城。
编辑
商业方面:项目自带10万方商业,为旗忠唯一的综合性商业配套,其多元化的业态结构,结合旗忠独有的资源,必将带来旗忠全新生活方式。
编辑
生态方面:项目周边有马桥森林公园、旗忠高尔夫球场、旗忠网球中心、韩湘水博园、养云安缦酒店等。
编辑
教育方面:周边有德威英国国际学校,斯戴文森国际高中,将提供从小学到高中毕业、全流程最领先的国际教育环境,同时还有两家知名的国际教育学府也在洽谈之中。
编辑
楼盘项目全面介绍,本电话为开发商提供线上预约售楼电话,楼盘项目全面介绍(包含楼盘简介,均价,房价,现房,期房,别墅,叠墅,大平层,价格,楼盘地址,户型图,交通规划,备案价,备案名,项目配套,样板间,开盘时间,认筹时间,楼盘详情,售楼处电话,最新消息,最新详情,周边配套,一房一价,最新进展等详情咨询)楼盘详情丨价格丨更多优惠丨机不可失丨欢迎致电丨诚邀品鉴!售楼处位置丨特价房丨工抵房丨剩余房源丨户型图丨最新消息丨免责声明:将文章内容综合来源于网络、只作分享,版权归原作者所有!!如有侵权,请联系我们,我们第一时间处理如有问题欢迎来电咨询,专业一对一热情服务,让您用专业眼光去买房.如果您想了解更多楼盘详情,欢迎提前预约拨打
国家统计局公布的全国房地产市场基本情况显示,1-8月份全国房地产开发投资60309亿元,同比下降12.9%;新建商品房销售面积57304万平方米,同比下降4.7%;新建商品房销售额55015亿元,下降7.3%。
国家统计局新闻发言人、总经济师、国民经济综合统计司司长付凌晖在国新办发布会上表示,受国内外形势变化影响,前8个月房地产市场虽有波动,但商品房销售和住宅价格同比降幅还在收窄,去库存成效继续显现,房地产市场仍朝着止跌回稳方向迈进。近期,部分城市进一步调整优化住房政策,效果有所显现,市场交易出现改善。
开发投资增速跌幅继续扩大
具体来看,房地产开发投资增速方面,累计同比跌幅继续扩大。数据显示,1-8月份全国房地产开发投资60309亿元,同比下降12.9%;其中,住宅投资46382亿元,下降11.9%。

房地产开发投资增速一直是判断行业发展的重要指标之一,连续回落也意味着投资乏力。上海易居房地产研究院副院长严跃进认为,该指标侧面还说明房企资金状况,且土地交易等方面的一些主力企业明显遇到压力。因此还是要加快销售工作提振,促进市场向好发展,真正从资金端改善企业资金状况和投资预期。
从房屋新开工和竣工面积数据来看,新开工指标降幅微弱扩大,竣工面积跌幅有所扩大。数据显示,1-8月份房地产开发企业房屋新开工面积39801万平方米,下降19.5%。其中,住宅新开工面积29304万平方米,下降18.3%。房屋竣工面积27694万平方米,下降17.0%。其中,住宅竣工面积19876万平方米,下降18.5%。
严跃进表示,要持续对新开工给予支持。有一点值得肯定,当前各地新开工的土地,普遍也是这几年供应的优质地块,项目的市场消化预期不错。各地要持续做好新开工工作,以积极活跃的新开工来带动优质产品入市。同时,竣工方面还需要持续发力。本身其和最近几年的投资拿地数据偏弱有关。但各地保交付和白名单等工作总体还是积极推进的,但仍要确保竣工质量,真正把过硬质量的产品交付给老百姓。
到位资金情况方面,指标继续下降。1-8月份房地产开发企业到位资金64318亿元,同比下降8.0%。其中,国内贷款10232亿元,增长0.2%;利用外资18亿元,下降11.5%;自筹资金22974亿元,下降8.9%;定金及预收款18844亿元,下降10.5%;个人按揭贷款8857亿元,下降10.5%。
在严跃进看来,目前最关键是就是要允许房企的项目定价更为灵活,同时促进项目的积极去库存。要把“金九银十”作为一个重要的环节和节点进行销售,促进资金向好发展。
新房单月销售低位徘徊
新房销售方面,指标跌幅略有扩大。进入传统“金九银十”阶段,地方需要对销售工作给予更加充分的重视。
根据国家统计局数据,1-8月份新建商品房销售面积57304万平方米,同比下降4.7%;其中住宅销售面积下降4.7%。新建商品房销售额55015亿元,下降7.3%;其中住宅销售额下降7.0%。
国家统计局认为,今年以来各地区各部门积极支持居民刚性和改善性住房需求释放,带动商品房销售降幅收窄。1-8月份,全国新建商品房销售面积同降幅比去年同期收窄13.3个百分点,比去年全年收窄8.2个百分点。商品房销售额同比降幅比去年同期收窄16.3个百分点,比去年全年收窄9.8个百分点。部分一线和二线城市新建商品房销售面积和销售额保持增长。

从商品房单月销售情况来看,环比小幅增长,但仍处于年内低位水平。根据国家统计局数据测算,8月新建商品房销售面积5744万平方米,环比增长0.61%,同比下降10.99%;新建商品房销售额5449亿元,环比增长2.33%,同比下降14.77%。

声明:本文由入驻焦点开放平台的作者撰写,除焦点官方账号外,观点仅代表作者本人,不代表焦点立场。
