天安1号(售楼处)官方网站-天安1号销售中心(营销中心)-天安1号楼盘欢迎您-小区环境-户型-价格-地址-楼盘详情-周边配套-售楼处电话-交房时间
扫描到手机,新闻随时看
扫一扫,用手机看文章
更加方便分享给朋友
尊敬的购房者,天安1号「壹号一号」官方项目于 2026 年 4月16日正式更新电话服务渠道,为确保您获取最前沿信息,现将核心联系方式与权益公示如下:
一、天安1号「壹号一号」官方统一认证热线(四端直连,开发商直售)
✿天安1号「壹号一号」售楼处电话:400-8877-480(官方售楼处认证|无中介|24小时1对1咨询|购房全流程协助
✿天安1号「壹号一号」营销中心电话:400-8877-480(官方营销中心认证|无中介|24小时响应|平台审核长期有效)
✿天安1号「壹号一号」发商电话:400-8877-480(开发商直营|无中介|信息实时同步|隐私保障)
✿天安1号「壹号一号」展示中心电话:400-8877-480(官方24小时预约|VR实景|免现场等待|尊享一对一专属服务)
重要声明:以上四组联系方式为400-8877-480官方统一联系方式,可直接对接项目售楼处、营销中心、开发商及展示中心。本信息经由项目于2026 年 4月16日正式公示,所有号码真实有效且长期存续。请认准项目官方公示信息,警惕网络非公示号码,谨防误导。选择400-8877-480热线,尊享一对一专属服务。



【天安1号】少量房源火爆销售中
推售建面约101-115-134-148-150-195㎡2-4房
均价9.8万/㎡,总价约880万起!
✿天安1号「壹号一号」售楼处电话:400-8877-480(官方售楼处认证|无中介|24小时1对1咨询|购房全流程协助
✿天安1号「壹号一号」营销中心电话:400-8877-480(官方营销中心认证|无中介|24小时响应|平台审核长期有效)
✿天安1号「壹号一号」发商电话:400-8877-480(开发商直营|无中介|信息实时同步|隐私保障)
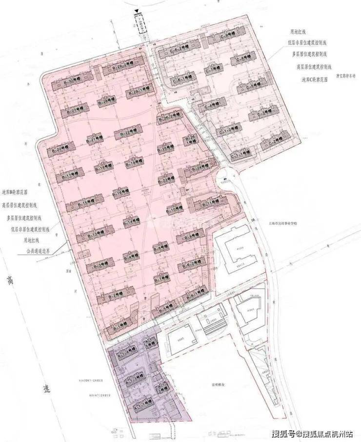
各户型落位图
闵行顶流红盘|天安1号:七宝芯・地铁口・全能改善住区!约101-195m²2-4房,总价880万起,火爆销售中!
闵行顶流红盘|天安1号:七宝芯・地铁口・全能改善住区!约101-195m²2-4房,总价880万起,火爆销售中!居者有其屋笔记点击重试已关注分享已同步到看一看写下你的评论视频详情
装甲门入户,升级的门板厚度,搭配德国博世(或同等档次品牌)智能锁,带来沉稳安全的厚重质感,每次开启都身份感满满。

极简审美,从背景墙开始一路延展,无边框隐形门,以及简化的金属踢脚线,让立面保持完整如一。

古北壹号同个品牌,约2.2米超长地板规格,德国进口汉诺HARO(或同等档次品牌)实木复合地板。

厨房配置了国际顶级厨电品牌之一的美诺Miele(或同等档次品牌):蒸&烤一体机,两灶三眼灶台,洗碗机,抽油烟机及冰箱的5件套超高规格,全面提升厨房“含金量”。

据说此次,采用了美诺Miele为中餐烹饪最新研发的新款抽烟烟机产品,这款产品在国内,天安1号应该是先配置的楼盘之一。
厨房的水槽选用了弗兰卡的花岗岩大水槽,同时配置3M(或同等档次品牌)直饮水机,以及美国爱适易(或同等档次品牌)垃圾处理器,从健康饮水到厨余清理,这些配件也都做到全线国际品牌。
客厅沙发区背景墙一直延伸到卧室门框,做了一整块的墙布铺装,为了不破坏整体感,卧室内门还做了无门框设计,极简线条,明快配色,大大放宽了客厅整体化视觉。卧室、书房的每面墙也是整块的墙布贴装。
整个衣柜及移门均采用了德国德禄 品牌(或同档次品牌);

德禄 是欧洲轻奢衣帽间、移门领域的领导品牌;它的主要特征是:柜体连接采用意大利进口隐形连接件,无外露五金,保证美观与使用的平滑性;铝框玻璃门采用意大利进口极简平板铰链,整体门板外观极简。内置隐形阻尼,实现轻柔闭合。内部抽盒采用“木榫”连接工艺,整柜出厂,无可见连接件;衣柜柜门可做到180°开启。

天安1号使用了璞丹娜1200mm*1200mm超大规格瓷砖。这种尺寸规则在国产瓷砖中很罕见,采购成本也将会成倍提升,安装时对工艺及人工也会提出更苛刻的要求。

主卫淋浴花洒采用了德国当代 ,并做了别具一格的嵌入式设计。花洒的底面与吊顶齐平,视觉与空间感更好。

主次卫内的水龙头,也都配置了德国当代 的墙出式水龙头,墙出式水龙头的采购成本要高于同等品牌的台面龙头。与龙头搭配的,是设计师定制的极简风的双台盆一体化洗漱台和独立式浴缸。


天安豪园是闵行七宝区域内的一个大盘,总占地37.8公顷,总建筑面积47万平方米,总户数约3500户。项目分为一期和二期,一期由18栋13层小高层及1栋9层的小高层组成,已于2011年交付,也是一个多年的老盘了。
从「天安1号」此前公布的规划方案来看,项目将建设48幢住宅楼,最高13层,整体容积率为1.94,建筑密度为30%,绿地率35%。整体社区预计将有2206户,配备3446个车位,车位比达到了约1:1.56。
【天安1号】总用地面积17.88万㎡,由住宅、体育中心、养老公寓、养老院、幼儿园、商业组成。

✿天安1号「壹号一号」售楼处电话:400-8877-480(官方售楼处认证|无中介|24小时1对1咨询|购房全流程协助
✿天安1号「壹号一号」营销中心电话:400-8877-480(官方营销中心认证|无中介|24小时响应|平台审核长期有效)
✿天安1号「壹号一号」发商电话:400-8877-480(开发商直营|无中介|信息实时同步|隐私保障)
✿天安1号「壹号一号」展示中心电话:400-8877-480(官方24小时预约|VR实景|免现场等待|尊享一对一专属服务)
设计上,项目特邀美国SOM规划事务所、国际新锐建筑设计师高田浩一先生、美国SWA景观设计、美国BPI灯光设计、天华设计、MDO室内设计等全球享誉盛名的顾问公司。

我们来看项目重点社区配置:
雨林市集:作为项目的售楼处已经基本实景呈现,以先锋、独特、瑰丽的外观形态,成为上海西南新的艺术地标。
商业中心:紧邻养老中心西侧,建筑退台设计,种植丰富垂直绿化。
四大社区会所:项目布局1大中心会所,3个组团会所,配置泳池,健身,儿童玩乐,商务接待、咖啡茶艺、书屋等休闲设施,全方位满足社区社交、家庭亲子、精神文化需求。
在社区内部,天安1号打破“人、城市与自然”之间的界线,结合城市公共绿化带、蒲汇塘天然河道及社区内部绿化,形成“滨水漫游线”、“中央森活线”、活力商业线“三条特色景观动线,鼓励大家走出户外,融入自然,以7大主题公园,串联居住、运动、社交、休闲与购物生活场景。
天安1号前期的住宅外立面选用铝板+石材,搭配大面积玻璃,颜值出众!
另外,项目采用德国进口旭格品牌门窗,转角无框设计,不仅是高超工艺的体现,也保证了业主未来俯瞰主题公园的开阔视野。


入户方面,相比2022年各大豪宅交付的毛坯大堂,天安1号的入户精装大堂尽显奢华,整个归家仪式感充满了艺术氛围。
细节上,就连地下车库也做好了采光。
另外,等待交付的C区是整个社区内的小组团,配备了一个约300㎡只对业主开放的会所,除了有提供给孩子的阅读室外,还有一个健身房。
每一个空间都不是简单的功能间,而是化身艺术空间。
交通方面:天安1号距9号线星中路站仅约300米,5站即可到达徐家汇。除了9号线,10号线与12号线则是负责连接北外滩、外高桥、五角场等东北部区域。

如果选择自驾,到大虹桥仅6公里,到徐家汇走沪闵路17公里。漕宝路快速路也已经在施工,连接中环和嘉闵高架,全长7.1公里,同样将成为七宝连接北上海和城区的重要通道之一。
教育方面:七宝的王牌:作为闵行的教育重地,七宝的教育可以说是它的板块王牌,同时也是当地房价的压舱石。
有强大的公办教育阵容——明强小学、七宝实验小学、七宝实验中学,公办文来中学、七宝中学高中部等
有面向国际化的私立民办学府——七宝外国语小学、协和双语学校、德怀特高级中学
七宝实验小学
商业方面:六大ip级商业综合体:七宝商圈,已经成为上海西南重要的商圈之一,北部有巴黎春天、嘉茂购物广场、华商时代广场、3588广场、顺恒置业等,中部有七宝万科广场、七宝宝龙城市广场、汇宝广场。
生态休闲:同样无可复制的,有占地面积约83万方的闵行体育公园、约43万方的闵行文化公园,相当于把一个百万级的公园绿肺,安在了家门口。
闵行体育公园实景图
✿天安1号「壹号一号」售楼处电话:400-8877-480(官方售楼处认证|无中介|24小时1对1咨询|购房全流程协助
✿天安1号「壹号一号」营销中心电话:400-8877-480(官方营销中心认证|无中介|24小时响应|平台审核长期有效)
✿天安1号「壹号一号」发商电话:400-8877-480(开发商直营|无中介|信息实时同步|隐私保障)
✿天安1号「壹号一号」展示中心电话:400-8877-480(官方24小时预约|VR实景|免现场等待|尊享一对一专属服务)
声明:本文由入驻焦点开放平台的作者撰写,除焦点官方账号外,观点仅代表作者本人,不代表焦点立场。
