招商时代乐章(营销中心)官方网站-招商时代乐章销售中心(售楼处)-招商时代乐章楼盘欢迎您-地址-价格-户型-小区环境-楼盘详情-交房时间-周边配套-售楼处电话
扫描到手机,新闻随时看
扫一扫,用手机看文章
更加方便分享给朋友
总价338万起!宝山红盘【招商时代乐章】约89-126㎡3房,名校落地+双轨交+25万方商业环伺!
招商时代乐章预约热线☎:400-8080-420✅✅
二期四批次开盘热卖中
少量推售建面约99-126㎡3房
过会均价49631元/㎡,总价387万起
前期在售建面约89-97-103-126㎡3房
最低单价仅36740元/㎡,总价329万起!
招商时代乐章预约热线☎:400-8080-420✅✅
项目示意图
招商时代乐章预约热线☎:400-8080-420✅✅
项目是7号线潘广路地铁上盖的TOD新房,都不用说步行多少米到地铁了,「下楼就是地铁」可能是这里最大的标签。
值得一提,在7号线潘广路站坐2站就能到顾村公园站,换乘15号线能便捷到达长风、长宁、漕河泾,甚至紫竹高新区等多个沪上高能级商务区。同时,在远期规划中,宝嘉线也会在潘广路站设置站点。
招商时代乐章出门两站后就有三轨交,通勤覆盖市区的范围很广。
除了通勤效率翻倍,作为市区的延伸,主城区已经少有地铁口红盘,但只要出现,往往是新中心枢纽的原始股,比如华泾、梅陇、华漕等板块。

招商时代乐章预约热线☎:400-8080-420✅✅
地铁房的优势之外,招商时代乐章的配套TOD商业北城招商花园城X是值得期待的大型商业体——
上一个招商曹路花园城位于浦东曹路,项目秉持“X+商业”差异化策略,打造了曹路市集、室外36米的“天环飞瀑”、屋顶星际跑道等特色场景,并以超200个的全业态品牌数量、超50%的区域首店成功点燃区域消费热情。
开业当日,曹路招商花园城客流破10万人次(工作日),开业前4天总客流超58万人次、销售额超3500万元。

招商时代乐章预约热线☎:400-8080-420✅✅
而这一次潘广路的招商花园城X商业会比曹路更高能级、更大体量,具体信息大家可以到售楼处具体了解:

招商时代乐章预约热线☎:400-8080-420✅✅
我们来看一下目前的招商进展,这样的商业配置可能也是整个北上海的更高标准——
在6楼屋顶花园,花园城将引进常州恐龙园的合作方,以经久不衰的侏罗纪世界级IP为背景,打造科技互动探索基地,通过数字孪生科技+ 沉浸式场景塑造让人身临其境感受亿年前的“真实世界”,面积高达15000平;

招商时代乐章预约热线☎:400-8080-420✅✅
意向图,仅供参考
另外花园城预计还将引入冰雪世界,将冰雪、娱雪植入购物中心,集合一众衍生业态(如雪地户外、雪山攀登等),与地块内酒店形成异业联动,创造最具话题性、距离市区 最近的冰雪玩乐体验圣地。

招商时代乐章预约热线☎:400-8080-420✅✅
意向图,仅供参考
预计引进面积高达4500平的电影院,预计标配高12米的中国巨幕;还有奈尔宝科技体验旗舰店;(信息来源于网络,招商以实际落地为准)

招商时代乐章预约热线☎:400-8080-420✅✅
意向图,仅供参考
放眼全上海,能够在级总价段兼顾「地铁上盖+配套商业」的项目几乎绝版,而可以配备这样高品质商业综合体的项目更是少之又少!「招商时代乐章」可谓是独一份!
招商时代乐章预约热线☎:400-8080-420✅✅
招商时代乐章预约热线☎:400-8080-420✅✅
建面约97平的三房两厅两卫,在89户型基础上多了一个卫生间,450-500万级别功能性更强。
招商时代乐章预约热线☎:400-8080-420✅✅
招商时代乐章预约热线☎:400-8080-420✅✅
建面约103平的三房两厅两卫,做到了南北通透和大横厅设计,并且是横厅还是比较亮眼的。
招商时代乐章预约热线☎:400-8080-420✅✅
招商时代乐章预约热线☎:400-8080-420✅✅
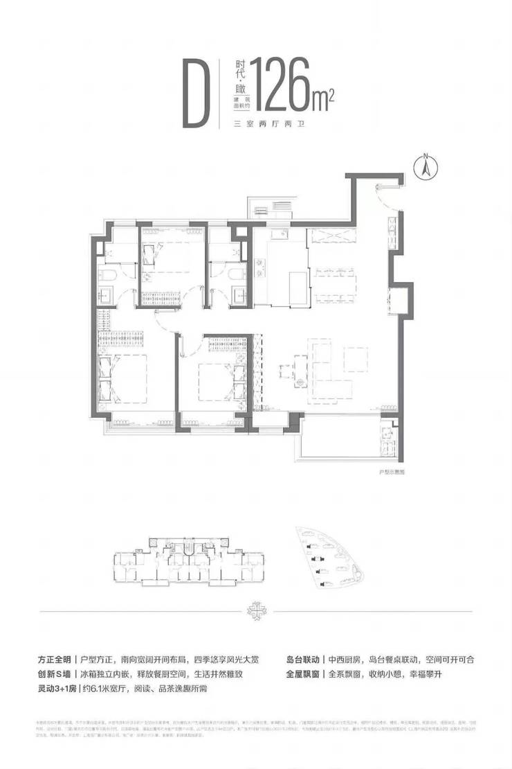
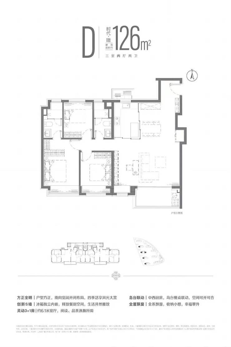
建面约126平的三房两厅两卫,在这个面积上做横厅大三房,整体的空间感和尺度感很不错,适合改善型家庭。
招商时代乐章预约热线☎:400-8080-420✅✅
招商时代乐章预约热线☎:400-8080-420✅✅
约126㎡展示空间实景图
在建面约110㎡ 户型已有的两点之上再度升级,简约面144㎡户型更加匹配三代同堂、二胎之家。

招商时代乐章预约热线☎:400-8080-420✅✅
· 经典四房设计,合理分区,保证多代生活一步到位。
· L 厅大尺度公区,保证收纳,尽显尊崇。
· 主卧酒店式套房+双台盆+270°转角飘窗,尺度与舒适度登峰造极。
·阔尺客厅链接南向大阳台,南北通透,满足阳光与视野的所有想象。

招商时代乐章预约热线☎:400-8080-420✅✅
而最让市场兴奋的莫过于招商时代乐章在精装修配置上的惊喜表现。不止全屋中央空调、新风、地暖三件套,更是升级了西门子冰箱、大容量厨房洗碗机、厨房凉霸、高仪卫浴等高标配置,部分户型更是配备了蒸烤一体箱、美妆冰箱等千万级豪宅的配置标准。而在细节上如智能化控制、鞋柜消毒精灵、主卧人字拼地板、岩板灶台背景墙品质细节同样诚意满满。强大的产品力遥遥领先北上海。
招商时代乐章预约热线☎:400-8080-420✅✅
约126㎡展示空间实景图
招商时代乐章预约热线☎:400-8080-420✅✅
约89㎡展示空间实景图
招商时代乐章预约热线☎:400-8080-420✅✅
约97㎡展示空间实景图
TOD+北上海最大单体商业+遥遥领先的产品力优势,招商时代乐章三套组合拳毫无疑问奠定了首开红盘的价值基础,而450万级即可上车的超级性价比,也让广大购房者直言“真香超值”,也正因如此招商时代乐章得以持续引领北上海的置业热度,从认筹火爆到首开日光一路人气鼎沸,也再次印证了没有绝对差的市场,关键要有绝对好的产品!
招商时代乐章预约热线☎:400-8080-420✅✅
生活配套
交通方面:距离7号线潘广路站直线约150米,2站换乘15号线。无缝直达普陀长风、静安寺、长宁古北、上海南站、徐汇滨江以及紫竹高新等多个市区核芯板块。
招商时代乐章预约热线☎:400-8080-420✅✅
商业方面:自有大体量商办综合体,7号线上盖的龙湖天街、未来还有印象城环伺。
招商时代乐章预约热线☎:400-8080-420✅✅
效果图
教育方面:华二宝山实验学校,宝山世界外国语学院、上海世外云尚欧莱幼儿园,另外,根据板块规划显示,在项目周边有规划一幅幼儿园、一幅小学以及一幅初中用地(新盘不承诺学区对口)

招商时代乐章预约热线☎:400-8080-420✅✅
医疗方面:地铁两站就是三甲医院复旦大学附属华山医院宝山院区。
招商时代乐章预约热线☎:400-8080-420✅✅
生态方面,顾村公园也是本市较大的郊野公园,相当于三个世纪公园大小。更是上海环城生态规划系统上的重要组成部分,是上海绿色生态核心之一。
声明:本文由入驻焦点开放平台的作者撰写,除焦点官方账号外,观点仅代表作者本人,不代表焦点立场。
