弘安里(售楼处)网站 - 弘安里销售中心 - 环境 - 户型 - 价格 - 地址 - 楼盘详情 - 配套 - 电话 - 交房时间 - 配套 - 电话 - 交房时间
扫描到手机,新闻随时看
扫一扫,用手机看文章
更加方便分享给朋友
◆开发商营销中心诚挚邀请,一键预约,尊享内部独家折扣!匠心独运的精品项目,恭候您的品鉴与选择。
历史的宅|121席恒久的历史风貌住宅
上海弘安里,是上海内环内罕见的有天有地有院里弄住宅。由宝兴里、更富里、德年里、和乐里、同昌里和鸿安里组团而成,覆盖4个时期,10多种建筑立面,堪称石库门的基因库, 2017年入选上海市第二批「风貌保护街坊」。
编辑
鸿安里,是弘安里的本命组团, 始建的时间为1910年,贯穿场地南北、排数最多,体量最完整的成片里弄,是一部关于海派居住文明活的传承。
在遵循“拆改留”的城市更新原则上,弘安里实行“保护修缮、保留改造、更新改建”的更新手法,打造当代风貌里弄博物馆。项目容积率约为1.1,推出建筑面积约230㎡-760㎡,121席历史风貌住宅。
编辑
上海的心|镶嵌在上海黄金三角的珍珠
弘安里所在的位置正是上海几何中心C位,地铁2站即可到达人民广场,外滩、陆家嘴、北外滩商圈都在3公里范围之内,犹如镶嵌在“一江一河”与“北外滩”两大世纪级规划,上海内环心核黄金三角之上的珍珠。
编辑

苏河湾是上海静安区重点发展的功能区,其目标是打造成为一个“世界级滨水区” 。
它不仅是静安区“一轴三带”发展战略中的重要一环,也在最新公布的第二批上海自贸试验区联动创新区名单中占有一席之地,致力于建设 “国际消费中心城市示范区”。
编辑

除此之外,项目还处在上海全球中央活力区(CAZ)核心位置,根据规划,未来该片区主要功能为商务服务、交通、住宿服务,副功能为科技研发、综合商业和医疗。
由此可见,未来该片区除了拥有170万方的商业,还将有18家跨国企业总部(包含国泰君安、光大证券、康德乐、花王等)加入,吸引资本超过1000亿元,而跨国企业和高技术人才的涌入,除了带动区域的产业发展,还将整个片区的圈层提高不少。
再加上同时处在黄浦江和苏州河的辐射范围,未来苏州河沿线还将打造以高端商业、金融、文化、旅游等核心功能为主。(数据来自网络)
编辑
而与此同时,这里还受到了840万方超级体量重磅规划的北外滩加持!未来不仅是上海全球中央活力区(CAZ),更处在“外滩-陆家嘴-北外滩”构成的世界会客厅的黄金三角中,这种地段的风貌大宅,未来也很难再有!
编辑
风貌的区|流连在苏河风貌区的怀中
弘安里紧邻着的,正是静安未来着力打造的区域——北站新城!未来周边将打造集历史保护、高端居住、商业办公、文化休闲于一体的综合性区域,与周边静安里、今潮8弄、安康苑、龙盛湾上连接成片,延续老北站的历史文脉,融合现代城市功能,成为上海“都市之心”与“世界滨水中央活动区”的重要组成部分。
编辑
弘安里的北侧的静安里,上海静安里,汲取新天地、张园等城市节点级风貌商业精髓,精心规划沿武进路历史风貌商业街区,展示体验在地文化,打造高端零售、高档餐饮、文化展览等丰富业态的商业格局,再融入弘安里和静安里的成片风貌区,未来这里将成为上海的新里天地!
东侧的18街坊,就是崇邦集团商办综合体。总建筑面积达29万㎡,其中包括约11万㎡的新建商业设施,10万㎡的超高层办公楼,目前已投入使用。
西侧则是安康苑和龙盛湾上打造的超高层住宅和高能级商业。
编辑
环睹弘安里的四周,俨然依偎在苏河风貌区的怀中,出入之间尽显历史与时代的宠爱。
海派的脉|复兴海派文化的策源地
弘安里,不仅是对“鸿”的传承,更是对海派文脉的“弘扬”。作为海派文化的策源地,这里曾经书店林立,成为一代文人的心灵栖息地。
原址设于此的天马书店,不仅是出版机构,更是无数青年作家汇聚的起点,距此不远的多伦路内山书店,扮演着中西文化交汇的驿站,鲁迅、郁达夫、瞿秋白等人曾在此与世界思潮对话。
蔡元培先生更是在此创设“爱国女学”,开女子教育与“独立人格”倡议之先河。
编辑

除了文人的心灵栖息地,这里还书写着金融世家的传奇。
著名的金融家、上海钱业界举足轻重的谢纶辉先生也曾居住于此,他曾执掌中国通商银行业务长达十四年之久,兼任了赓裕钱庄经理,并投资上海怡大、同余、恒祥、聚康、汇康等钱庄,参股轮船招商局,成为了名震上海滩的金融巨子。
另外还有鸿安商轮公司的创始人,上海总商会副会长沈联芳、松柏音乐社粤曲主任胡美伦等多位历史名人都曾居住于此。
编辑
在弘安里的土地之上,镌刻着海派文化与商道的璀璨群星,为下一代的主人厚植文化的根脉,复兴海派海派的精神力量。
繁花的弄|隐于约1.1容积率的内环秘境
在土地肌理的延续再造中,充分保留了地块内原有8个里弄间“行列式”的肌理布局,原始主、支弄的形态和组团特征,根据现代人的生活需求,优化再组为6个新组团,传承海派名园的营造手法,提取洋房的场景,并植入社区景观而打造了雅集六境、风华四艺、画境八园等多维主题,围合一座容积率仅为1.1的繁花巷弄里,内环花园秘境。
编辑
雅集六境:入园俯拾,开启百年天马华章;下沉庭院偶遇交谈,围炉生春;临水而憩,犹如豫园湖心亭听泉茶叙;随心漫步,清赏博古原址老构件;中庭樾下雅集,怀旧洋房的生活趣味;东西主轴的通文艺荟,植入文化故事,围上“人文”腰封。
编辑
风华四艺:从场地上曾经兴盛过的缫丝业、造船业、出版文化中提取元素,融入雕塑景观设计之中,成就历久弥新的艺术价值。其中名为“朝花夕拾”的雕塑,便是鲁迅先生《从百草园到三味书屋》给予弘安里的灵感。
编辑
画境八园:8种主题花卉,8个上海洋房的“移植”的故事。丁香花园的紫藤与丁香,复兴公园的蔷薇,思南公馆的紫薇,荣宅的地锦……置身弘安里,仿佛走入了记忆中的巷弄繁花里。
编辑
艺术的墅|「传颂300」收藏风貌,艺术与生活
此次加推的风貌别墅新组团,位于文化底蕴和历史深厚的弘安里。
编辑
弘安里新组团风貌别墅,采用大面青砖、局部红砖腰线与仿木铝合金门窗的立面做法,延续人字形山墙的形制,屋面承袭传统小青瓦工艺,更新老虎窗。
在1.1的容积率下,优化组团关系与建筑的巷弄与檐口的比例,越弘安里入口的过街门楼,踏入巷门,拾步院门,由园入院,沉浸四季的花园之境。
编辑
传颂300,建筑主体3层,立面为手工砌筑,类独栋院落,“独门独户独院”承载有天有地的内环历史人文生活方式。
匹配高净值精英的偏好,讴歌文化与艺术的生活,拒绝堆砌式奢华,以国际视野观照骨子里的情结,现代东方与西方的艺术交融,当代与复古融合,打造仪式感与松弛度,契合当代海派家族生活旨趣,追寻内心自洽的精神场所。
编辑
从地下室到顶层,打开生活的垂直剧场,1F庭院与客厅互通,彰显家族生活的轩阔厅堂,2F家庭层大露台,儿女的幸福与陪伴皆在左右,3F总裁套房式Penthouse,用具象的尺度描写人生成就的高度,立基家族长青的传世宅邸。
编辑
编辑
编辑
弘安里,入市以来扮演风貌的代名词,成为城市上位者心向往之的新海派生活方式。
121席历史风貌大宅大多数已归藏。近日,「传颂300」样板房开放,限量房源压轴上市,风貌传奇开启新的传承。
编辑
1、本广告仅为要约邀请,仅供参考,所有内容及资料信息来源截至2025年10月,开发商有权定期/不定期对宣传材料进行修改。本广告所有细节最终以政府批文为准,买卖双方的权利义务以双方订立的商品房购房合同及其附件、补充协议约定为准;本广告中所述面积为预测建筑面积,展示的尺寸、图片、文字描述、建筑配套、市政配套等仅供参考,最终以政府批准的文件、图则为准,请留意最新资料。
2、本广告宣传内容不排除因政府相关规划、规定修改及开发商分期建设等原因发生变化,关于周边交通、商业配套、商业合作商家品牌等内容的介绍仅供参考。
3、本广告制作日期为2025年10月,有效期1个月。本广告所涉及的图文资料仅供参考,图片来自网络,如若侵犯肖像权或著作权等知识产权,请联系我方删除。
4、本项目推广名为“弘安里”,政府主管部门备案名为“弘安里”,开发商:上海弘安里企业发展有限公司。
弘 安 里
面积:300-760㎡
总价:6000万起
编辑
弘安里,前身虹口17街坊,名列上海市第二批历史风貌街坊。如今,于原址之上,弘安里在城市更新的进程中涅槃重生,与上海海派文化履迹相承,镌刻石库门的建筑印记,敬献苏河风貌区首个风貌更新里弄案例,传递两个百年的海派文明。
编辑
作为上海内环内罕有的里弄风貌别墅区,以约1.1超低容积率为设计底盘,总体延续原“一街坊、多组团”的风貌特征,三条南北向主弄、多条东西向支弄的总体布局。在保留原始主弄支弄形态的同时,减少支弄数量,加大建筑进深及优化巷弄宽度,符合现代生活方式的需要。
编辑
通过平移、保护修缮、保留改造、更新改建等多种方式,复刻更富里的上宅下铺,重现红砖加石材的同昌里、德年里;沿袭青砖加石材的宝兴里、和乐里、鸿安里,最大限度延续肌理风貌,因屋制宜分级保护,构建一种适宜当代人居的生活叙事。
编辑
回首鸿安里,百年之后仍觉的惊艳。始建于1910年的鸿安里,包含两种里弄类型,早期石库门里弄,以及在1930年代翻建的广式里弄,场地内贯穿南北、排数多达16排,是虹口体量最完整的成片里弄;鸿安里石库门门头造型各异,采用半圆形、长条形砖砌门楣,堪称石库门里弄的基因库与活化石。
编辑
弘安里新组团风貌别墅,缩减整体的排数,拓宽巷弄与庭院的尺度,优化巷弄与檐口的比例,让阳光,风景轻松浸入生活;漫步走过街门楼,踏入巷门,拾步院门,由园入院,沉浸四季的花园之境。
编辑
新组团立面采用大面青砖、局部红砖腰线与仿木铝合金门窗的立面做法,山墙以巴洛克观音兜为原型,顶部用平顶山花装饰,圆形石材窗套气窗装饰;屋面承袭传统小青瓦工艺,更新老虎窗。
编辑
从鸿安里到弘安里,唤醒城市的记忆 ,焕新经典的风貌。
编辑
编辑
编辑
编辑
编辑
编辑
编辑
编辑

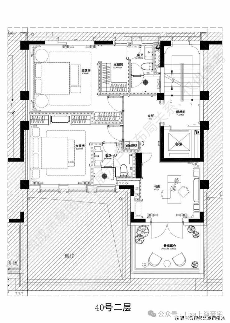
约300㎡· 户型图 参考
编辑
← 左右滑动查看项目实景 →
编辑

弘安里,不仅是一个名字,更是一种新海派生活方式,当代家族心向往之的传承珍藏,「传颂300」,为上位者的归心保留为数不多的席位。
编辑
「传颂300」,匹配高净值精英的偏好,讴歌文化与艺术的生活,拒绝堆砌式奢华,以国际视野观照骨子里的情结,现代东方与西方的艺术交融,当代与复古融合,打造仪式感与松弛度,契合当代海派家族生活旨趣,追寻内心自洽的精神场所。
编辑
◆开发商营销中心诚挚邀请,一键预约,尊享内部独家折扣!匠心独运的精品项目,恭候您的品鉴与选择。
从院落自然到城市峯景,从日常生活到家族传承,弘安里「传颂300」样板房开放,限量房源压轴上市,风貌传奇续写海派落款。
主推房源:
① 40号 (样板房)
地上面积:299㎡
地下面积:130㎡(赠送1层)
花园:约36㎡
售价:7250万 (装修另算)
② 91号
地上面积:约299㎡
地下面积:约102㎡(赠送一层)
花园:36㎡
售价:7300万
③ 39号
地上面积:298㎡
地下面积:102㎡(赠送一层)
花园 :32㎡
售价:7300万
④ 130号
地上面积 :287㎡
地下面积:70㎡(赠送1层)
花园:约82㎡
售价:6000万
⑤ 120号
地上面积 :约385㎡
地下面积:188㎡(赠送2层)
花园:约52㎡
售价:9500万
⑥ 109号 四合院 (最后一席大宅)
地上面积:496.18㎡
地下面积:438.81㎡(赠送2层)
花园:86㎡
售价:1.55亿
声明:本文由入驻焦点开放平台的作者撰写,除焦点官方账号外,观点仅代表作者本人,不代表焦点立场。
