中鹰·黑森林 (售楼处) 首页 - 中鹰·黑森林销售中心 -中鹰·黑森林城价格 - 地址 - 楼盘详情 - 配套 - 电话 - 交房时间 - 配套 - 电话 - 交房时间 -楼盘详情
扫描到手机,新闻随时看
扫一扫,用手机看文章
更加方便分享给朋友
提示:本预约通道为保利外滩序官方唯一认证,百度搜索结果认准 “官方售楼处” 标识,拒绝中介转接,保障购房权益!
有问题可来电咨询,预约销售专员,一对一为您服务!
✅一生只搬一家,上海的世外桃源
✅拥有12万原生态森林
✅始终走在低碳住宅的前沿
✅领先世界卫生组织定义的健康科技住宅
六恒环保健康科技住宅 100%绿化率
一、基本信息:
开发商:上海中鹰置业有限公司
物业公司:上海中鹰黑森林物业有限公司
占地面积:约9.5万㎡
建筑面积:约27万㎡
产权年限:70年
楼栋数:16幢(本次销售房源分布在二、三期高层住宅)
总户数:1264(本次保留房源20套左右)
得房率:本次销售房源得房率为76-80%
总车位配比:1:1.2
绿化率:40%
均价:16w/㎡
梯户比:2T2H
交付标准:高定奢装
交房时间:现房交付
生活配套:
商业:乐购,家乐福,巴黎春天,虎城嘉年,华等商业中心
银行:工商银行,建设银行,光大银行,交通银行
医院:万里中医院,天佑医院,同济大学附属医院。
教育配套:
童的梦双语幼儿园、晋元高级中学附属小学、初中,晋元高级中学。
交通配套:
交通状况:5分钟上内环,3分钟上中环
轨道交通:7号线(新村路站),11号线(上海西站)
二、主推房:
1002 3房 250平 南北通透 4014万
1⃣️客厅面宽8.5米,全落地窗设计沪上少有;
2⃣️中区楼层:中区的视野越过树梢,千米无遮挡,采光和通风效果特别好,客厅直面中央景观绿地,视野开阔 媲美纽约中央公园;
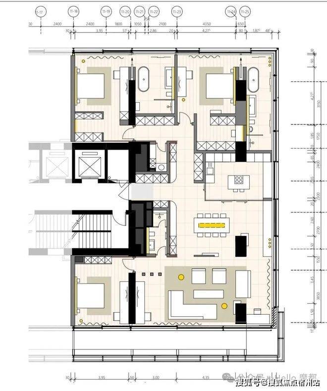
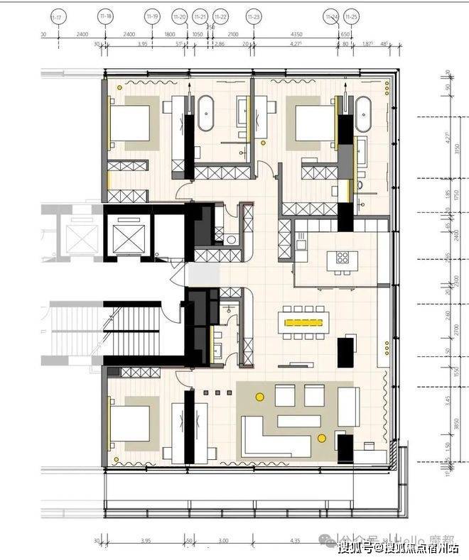
三、户型图和楼栋位置:
250平3房户型图
312平3房户型图:
实拍视野北向:
四、室内视频(18层样板间带露台)
声明:本文由入驻焦点开放平台的作者撰写,除焦点官方账号外,观点仅代表作者本人,不代表焦点立场。
