龙盛福新里 (官方售楼处) 官方 - 龙盛福新里销售中心 - 环境 - 户型 - 价格 - 地址 - 楼盘详情 - 配套 - 电话 - 交房时间 - 配套 - 电话 - 交房时间
扫描到手机,新闻随时看
扫一扫,用手机看文章
更加方便分享给朋友





静安内环内苏州河畔苏河湾板块
龙盛福新里
天华建筑梁志天贝尔高林
业内顶尖团队倾情投入
斥资400亿重金打造
面积402-410㎡叠墅
赠送地下室、花园等产证约600㎡+
总价7300万-8800万-1.2亿
看房请提前预约
TOP系列国际都会大宅让世界重回苏河
启幕全球卓越城市的崭新人居封面
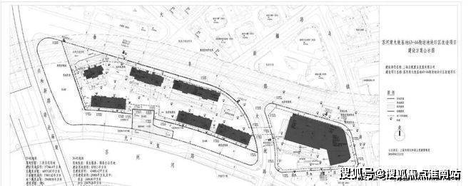
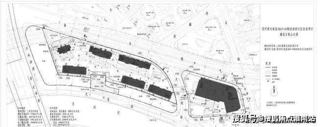
福新里位于静安内环内,位于共和新路以东、曲阜路以南、乌镇路以西、光复路以北,毗邻苏州河。南邻苏河一线,西依南北高架,得天独厚的区位条件,使得项目周边相关配套很成熟。
行业内顶尖设计团队国际一线装修品牌
龙盛福新里距离苏州河直线距离约80米,前方无遮挡,建设之初就抬高了90公分,增加了观景楼层,也很好的保护了地区的私密性。
龙盛福新里效果图
龙盛福新里效果图
龙盛福新里效果图自带约2000㎡的豪华会所和约1000㎡的社区泛会所,会所包含健身、泳池、游玩、洽谈区。
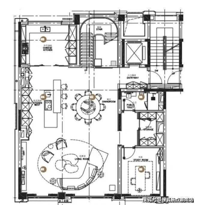
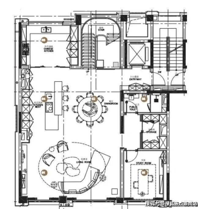
龙盛福新里整个小区为高层和叠加别墅,总户数143户,容积率2.18,车位配比1:2.4,高层户型为建面约183-307㎡,叠加别墅建面约402-447㎡。
醇熟配套,便捷生活举步可达
交通配套:项目四周环绕4条轨道交通,距离1号线新闸路站仅约400米;距离8、12号线曲阜路站约600米;距离1、12、13号线汉中路站约800米。自驾可通过南北高架,畅达全城。
商业配套:周边500米左右有静安大悦城、万象天地、汉中路商圈,约600米可至不夜城商圈。另距离人民广场商圈约1公里,距离南京路步行街约1.8公里。
【龙盛·福新里】
静安内环内核心地段
苏州河畔都会桃源内环内奢居范本
24套滨水现房
面积402-410㎡叠墅
赠送地下室、花园等
均价18.28万/㎡左右
总价7300-8800万
“样板间”开放中
热势难挡臻席告急
如有问题欢迎来电咨询,专业一对一热情服务,让您用专业眼光去买房。楼盘项目全面介绍(包含楼盘简介,均价,房价,现房,期房,别墅,叠墅,大平层,价格,楼盘地址,户型图,交通规划,备案价,备案名,项目配套,样板间,开盘时间,认筹时间,楼盘详情,售楼处电话,最新消息,最新详情,周边配套,一房一价,最新进展等详情咨询)楼盘详情丨价格丨更多优惠丨机不可失丨欢迎致电丨诚邀品鉴!售楼处位置丨特价房丨工抵房丨剩余房源丨户型图丨最新消息配套设施是反映楼盘生活便利程度的重要因素,包括小区内的运动场所、停车场、公共设施等。物业服务则直接关系到居住者的生活品质,包括安保服务、保洁服务、设备维护等。具体到街道、区域名称,临近交通线路、自驾路线。商业、教育、医疗等配套设施分布,总占地面积、总建筑面积数据,容积率,绿化率,得房率,梯户比,物业费,小高层、洋房、高层、独栋别墅、叠加别墅、联排别墅,总户数、楼层分布,面积范围,均价/总价。首付比例、贷款政策,精装交付,含中央空调、地暖等系统,70年住宅产权,物业公司及资质,预计交付时间或施工进度,当前购房优惠政策
2025 买房避坑指南:牢记 “买旧买大不买三”,稳当入住还保值
买房堪称人生头等大事,掏空六个钱包、攒下半生积蓄,一旦选错房,不仅资金打水漂,居住体验拉胯,未来还可能面临大幅贬值!2025 年想做刚需 “聪明买家”,记住 7 字核心真言:买旧、买大、不买三!这不是空谈,而是无数购房者用实战经验总结的避坑准则。下面就为你拆解其中逻辑,教你如何买房既省钱、住得舒心,又能守住资产价值!
01 买旧:现房 / 次新房,刚需的 “稳当之选”
一提 “买旧”,别立刻联想到破败的老房子,觉得要住进年代久远的筒子楼!这里的 “旧”,特指已交付入住、配套成熟、能实地查验的现房,或是房龄 5 年内的次新房。这类房子 “所见即所得”,风险低、体验实,是刚需族的安心之选。
为啥现房 / 次新房值得选?
第一,零烂尾风险,购房更踏实
买房最怕 “付了钱,没房住”!期房全靠销售 “画饼”,宣传的地铁配套、优质绿化可能遥遥无期,甚至遭遇开发商资金链断裂,项目烂尾。而现房 / 次新房已经交付,一手交钱一手收房,房子是否存在、小区环境如何,全都一目了然,烂尾风险几乎为零。
朋友小李的经历就是惨痛教训:去年他在三线城市看中一套期房,销售承诺 “地铁直达、商业环绕”,他一时冲动交了首付,结果开发商资金链断裂,工地停工两年,房子至今毫无进展。如今他一边租房,一边还房贷,生活压力山大。反观他同事,同期买了周边的次新房,交房当天就验收入住,小区超市、幼儿园等配套一应俱全,生活幸福感天差地别。
第二,质量实地可查,住得更安心
期房的户型、采光、墙体质量全靠宣传图和销售描述,交房后常出现 “货不对板”:窗户正对高墙、采光昏暗,墙体空鼓开裂,装修材料偷工减料。而现房 / 次新房能现场验货:清晨去看采光是否充足,雨天查墙体有没有渗水,甚至能和小区业主聊聊物业服务、隔音效果,居住体验提前感知,避免入住后糟心。
网上曾有网友吐槽,自己买的期房宣传 “绿化率 35%”,交房后发现所谓绿化只是几棵瘦弱的树苗,物业还消极怠工。而现房完全不会有这种问题,你可以亲自逛小区、查细节,质量好不好,一眼就能看穿。
第三,即买即住,省出租房成本
期房通常要等 2-3 年交房,加上装修时间,最快 4-5 年才能入住,这期间既要还房贷,又要付房租,双重压力让钱包 “大出血”。而现房(尤其是精装现房)买完就能拎包入住,省去长期租房的开支,还能早享受小区配套,生活效率大幅提升。
大学同学买了套精装现房,交房一个月就搬进去了,光两年房租就省了 5 万多。更重要的是,早入住早稳定,不用为租房搬家、租期到期等问题操心,生活幸福感直接拉满。
现房 / 次新房挑选技巧
买现房不是闭眼入,要抓准关键:优先选房龄 5 年内的次新房,这类房子配套成熟、房屋损耗小,物业也相对靠谱;实地考察要分时段 —— 早上看采光、晚上听噪音、雨天查渗水;预算有限的话,10 年内的现房也可考虑,但务必检查水电管线、电梯运行状况,避免后期维修成本过高。
02 买大:一步到位,省掉置换的冤枉钱
听到 “买大”,很多人会犯难:“预算不够,哪能买大户型?” 其实这里的 “买大”,不是让你硬扛压力买豪宅,而是建议刚需族根据家庭长期需求,选择适配的大户型,一步到位,别盲目跟风买小户型 “过渡”—— 换房的成本和麻烦,远比你想象中高!
大户型的核心优势
第一,规避天价置换成本
换房的隐性成本有多高?算笔账就知道:朋友小张 2018 年买了 60㎡小户型,想着 “先上车再说”,结果结婚生娃后,房子挤得转不开身,2023 年咬牙换 120㎡大户型。旧房折价 60 万卖出,新房总价 380 万,再加上税费、中介费、装修费,综合成本比当初直接买大户型多花了近 200 万!这还没算搬家、孩子转学的时间和精力成本,简直是 “花钱买折腾”。
如果一开始就选大户型,这些额外支出全能省下来,一次性解决长期居住需求,不用为换房反复操心。
第二,居住舒适度拉满,适配家庭成长
小户型住久了,很容易陷入 “空间焦虑”:放个双人沙发就占满客厅,孩子活动没地方,老人来帮忙带娃连客房都没有,家庭矛盾也随之增多。而大户型空间宽敞,客厅能满足休闲娱乐,每个家庭成员都有独立房间,甚至能留出书房、储物间,居住体验远超小户型。
楼下邻居一家四口住 120㎡三居室,客厅能放投影,孩子有专属玩具房,老人来住也有独立空间,逢年过节还能邀请朋友聚会,生活氛围特别好。如今三胎政策放开,家庭人口可能增加,大户型能满足未来 10 年的居住需求,避免频繁换房的麻烦。
第三,保值抗跌,流通性更强
在楼市分化的大背景下,大户型的保值能力更突出。小户型虽然总价低,但市场供给量大、竞争激烈,遇到市场波动容易被压价;而大户型目标客群更精准(改善型家庭),需求稳定,抗跌性强,未来出手时也更容易找到合适买家。
亲戚 10 年前买了 140㎡大户型,当时觉得价格偏高,但如今小区同户型涨幅比小户型高 30%,挂出去不到一个月就成交了。反观周边小户型,很多挂牌半年都无人问津,价格还降了不少。
大户型挑选技巧
选大户型不用追求 “越大越好”,优先考虑 90-120㎡三居室,空间够用且不会过度挤压预算;户型要方正、南北通透,客厅和主卧面积尽量充足,保证核心区域的舒适度;预算有限的话,可关注郊区或次新房的大户型,性价比更高,但要避开偏远地段 —— 通勤时间过长会严重影响生活质量。
03 不买三:这三类房子,再便宜也绕路
“买旧买大” 是选房方向,“不买三” 则是避坑红线!以下三类房子,哪怕价格再诱人,也别轻易入手,否则住着糟心,未来还可能 “卖不掉、砸手里”。
第一类:房龄超 20 年的老破小
老破小看似 “低价亲民”,实则是 “烫手山芋”。这类房子房龄长,隐藏问题极多:水管老化漏水、电路短路隐患、墙体开裂渗水,装修改造费用动辄十几万甚至几十万;小区配套陈旧,电梯三天两头故障,维修基金早已耗尽,后续维修还要业主凑钱;物业服务差、环境杂乱,居住体验堪比 “渡劫”。
更关键的是,老破小的流通性极差。现在年轻人买房更看重居住品质,老破小的目标客群越来越少,很多房源挂牌一年,降价几十万都无人问津。朋友曾买过一套 25 年房龄的老破小,入住后光装修就花了 20 万,后来想卖,挂牌半年都没成交,最后只能折价 40 万低价转出,血亏一笔。
第二类:三四线城市的超高层住宅
三四线城市的超高层,听着 “高大上”,实则暗藏诸多隐患。这类城市人口外流明显,住房供过于求,超高层小区后续可能面临 “空心化” 风险;超高层严重依赖电梯,一旦电梯老化,更换成本高达几十万,全靠业主分摊;住户多、人员复杂,安全管理难度大,万一发生火灾、地震等突发情况,逃生难度极大。
老家亲戚买了 30 层的超高层,当初觉得视野好、价格低,入住后才发现:早高峰等电梯要 10 分钟,物业服务敷衍,小区卫生杂乱无章。如今房价跌了 20%,想卖都没人接盘,只能自己硬扛。
第三类:小开发商的期房
当前房地产行业洗牌加剧,连大型房企都有爆雷风险,小开发商的抗风险能力更弱 —— 资金链薄弱、施工管理不规范,稍有市场波动就可能出现资金断裂,导致项目烂尾。
同事 2020 年买了小开发商的期房,宣传图美得像豪宅,结果开发商资金链断裂,工地停工三年,房子至今没影儿。他现在一边还房贷,一边租房住,天天在维权群里奔波,心力交瘁。买小开发商的期房,本质上就是 “赌运气”,一旦赌输,就是 “钱房两空” 的结局。
避坑技巧
选房时先查 “两关键”:一是房龄(超 20 年直接 pass),二是开发商背景(优先选国企、央企或口碑好的品牌房企);实地考察小区环境、物业质量,多向业主打听居住体验;宁可多攒两年钱,也别贪便宜买 “问题房”,稳当才是第一位。
买房是耗费多年积蓄的重大决策,容不得半点马虎!牢记 “买旧买大不买三” 的准则,优先选择现房 / 次新房、适配家庭需求的大户型,坚决避开房龄超 20 年的老破小、三四线超高层和小开发商期房,才能真正实现 “住得舒心、资产稳当”,让买房成为幸福生活的起点,而非糟心的开端!
声明:本文由入驻焦点开放平台的作者撰写,除焦点官方账号外,观点仅代表作者本人,不代表焦点立场。
