2025.上海招商中旅观境(上海招商中旅观境)首页网站-2025年上海招商中旅观境+房价+户型图+小区环境+配套
扫描到手机,新闻随时看
扫一扫,用手机看文章
更加方便分享给朋友


招商中旅观境售楼处电话:400-8855-420
招商中旅观境营销中心热线400-8855-420(官方预约看房热线)
在愈发繁忙的时代,人们越来越渴望一处安放心灵的栖息地,也更加理性地思考人居对于生活的价值和意义。
在北上海全新精奢主义作品中,我们看到了【招商中旅观境】在打造产品中的全新思考,艺术、丰盈、悦己、松弛的精奢生活在此盎然绽放。
自带约25万方花园城X,也是北上海最大的单体商业综合体,融合潮玩、时尚、文旅、游娱、运动、会展、生态等多元业态,预计引入20+主次力店,350+战略品牌,下楼即享繁盛日常。
招商中旅观境
招商中旅观境 售楼处电话:400-8855-420
【售楼处预约热线】(一对一热情服务)
看房请务必致电与销售确认时间,仅预约客户可享受开发商内部优惠,专属老带新推荐奖!
招商中旅观境售楼处电话:400-8855-420
招商中旅观境营销中心热线400-8855-420(官方预约看房热线)
宝山顾村,7号线地铁盘,招商蛇口&中旅投资潘广路站项目——【招商中旅观境】三期过会啦!
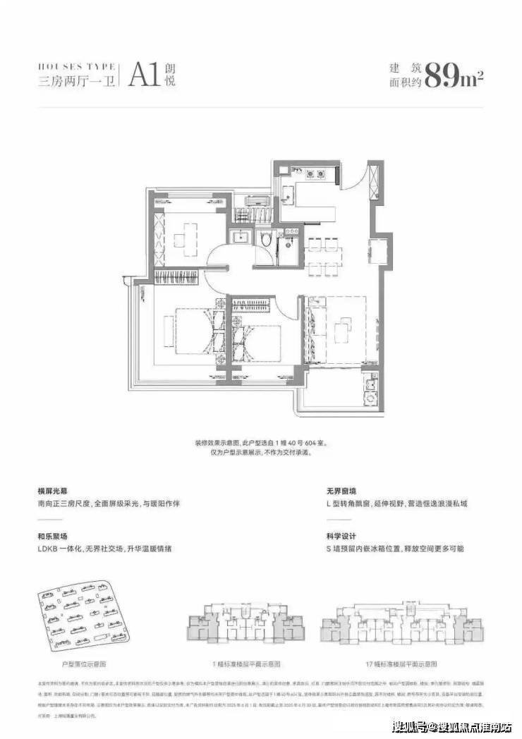
加推89-110㎡3房、共计142套
89㎡户型首次推出
过会均价47466元/㎡,比前期便宜3000
前期少量建面约110-144m²3-4房
装修标准2500元/m²
过会均价50713元/m²,总价433万起!
招商中旅观境售楼处电话:400-8855-420
招商中旅观境营销中心热线400-8855-420(官方预约看房热线)
户型图赏鉴
招商中旅观境售楼处电话:400-8855-420
招商中旅观境营销中心热线400-8855-420(官方预约看房热线)
样板间实探
先来看建面约110㎡3房2卫
入户门是是非常有质感的铸铝门,带电子猫眼智能门锁;进门后是一个独立玄关,木纹玄关背景墙,右侧是通顶的悬浮玄关柜,内置鞋柜精灵和抽拉鞋架。
这个户型的一大亮点就是这个客厅,约5.5米面宽的阳台,约25㎡的方厅,充满了可变性。
传统住宅设计中,每个房间的连接处都会有或深或浅的过道空间,造成空间浪费。
招商中旅·观境的解决方案是“零无效空间”。通过整合餐客厨等公共区域厅,将原来南北厅中间的走廊空间融合到使用空间中,减少过道的面积,避免碎片化的空间带来的冗余浪费。大面宽,短进深,餐厅与客厅横向相连,每一平方米都物尽其用,把客厅升级为家庭互动主场。
约5.5m面宽的阳台,可以变成第二家庭厅、品茗室、阳光瑜伽室、生活后花园,自由打造的私享空间,延伸出生活的宽度。
再来看下厨房配置。U型厨房,预留了大约1米宽的双开门冰箱位置,厨电采用方太四件套——烟机、灶具、蒸烤一体机、洗碗机。其中洗碗机,轻扣门板可自动开门的新款!
厨房移门是类似于水波纹的三移门,不占空间,上轨道设计,更易于日常清扫。
双卫配置,其中一个做了干湿分离,科勒台盆+双智能马桶+高仪花洒,除雾镜柜均内置了牙刷消毒器、预留吹风机插座。主卫镜柜还有美妆冰箱,收纳空间相当充足。
样板间3房做的是边套,今年非常流行的L型转角大飘窗也安排上了,采光视野更佳。
再来看下建面约144㎡4房,部分装标是有所升级的。
入户门升级为了子母门,更显大户人家气质。
厨房是带岛台交付的U型厨房,厨具品牌为西门子四件套,另外还有双开门冰箱,线性凉霸、科勒单槽。
橱柜转角处的拉篮做了“轻松抽”,业主不必特别伸手探进去拿东西,非常省力。
客厅电视机背景墙采用了波浪状的岩板背景墙,比较独特。
主卧卫生间采用唯宝双人台盆,客卫高仪花洒+龙头+智能马桶。
三间卧室朝南,北次卧借助飘窗空间,也可以做成儿童房。
招商中旅·观境,样板间刚刚开放,上述装标还未完全,可以作为参考,具体以实际交付为准。
土拍回顾及规划
7月9日,2024年上海第三批次土拍,招商联合中旅拿下宝山区顾村7号线潘广路站TOD综合体项目,该项目由3幅地块组成。
01、【0303-02地块】为普通商品房用地,用地面积约39769㎡,容积率2.2,限高60米。据规设计方案显示,拟建12栋17-18F高层住宅,2栋区配套,无保障住宅,共计规划901户。
02、【0309-04地块】为普通商品房用地,用地面积约29337㎡,容积率2.3,限高60米,含商业建筑面积5100㎡;根据设计方案显示,拟建8栋17-18F高层住宅、1栋17F保障住宅以及3栋1-3F商业,共计规划645户。
03、【0304-06地块】为商业用地,用地面积约60299㎡,容积率2.9,限高80米,含文化建筑面积10000㎡!
整个地块中商业占比53%,约17.48万㎡,住宅占比47%,约15.49万㎡。
效果图仅供参考
如此大体量的TOD综合体,依托7号线潘广路站优渥的轨道交通,注定成为激活北上海生活、经济活力的巨大引擎,招商蛇口也正以其多元业务领域的厚积薄发,为宝山打造一座前所未有的全新升级版地标作品。
招商蛇口宝山潘广路TOD综合体落的落地,毫无疑问将成为激活顾村乃至整个北上海的活力按钮,以丰盛、多元、复合的生活形态成为区域生活的原点,让城市的生活想象再一次被招商蛇口所焕新,一个崭新的生活大城正跃然眼前。
就项目本身而言,传递出比较强的美学。
01、流体美学:游艇曲线,鎏金塔冠!
项目效果图,仅供参考,以实际交付为准

微弧阳台,环幕之境:
项目效果图,仅供参考,以实际交付为准

轻法雅奢的圆润线条,比如入户门头:
项目效果图,仅供参考,以实际交付为准

02、镜面美学:大窗墙比,打造宽屏立面!
项目效果图,仅供参考,以实际交付为准

社区上,项目享四重酒店式归家,
第一重:约70米超大尺度酒店感门庭,打造酒店般的港湾式落客。
第二重:酒店式礼品大堂,以星级酒店审美融合非遗技艺,每次回家宛如入住酒店的checkin。
第三重:浮岛水庭,下沉式中庭花园,以水境、浮岛、密林,构建都市中的谧境。
第四重:入户单元门头延续奢华酒店的美学质感。
项目效果图,仅供参考,以实际交付为准

还配备无边际会所,含酒廊、泳池、健身、瑜伽、私宴、棋牌、高尔夫等功能空间。



生活配套
交通方面:距离7号线潘广路站约300米,2站换乘15号线。无缝直达普陀长风、静安寺、长宁古北、上海南站、徐汇滨江以及紫竹高新等多个市区核芯板块。
商业方面:自有大体量商办综合体,7号线上盖的龙湖天街、未来还有印象城环伺。
效果图
教育方面:华二宝山实验学校,宝山世界外国语学院、上海世外云尚欧莱幼儿园,另外,根据板块规划显示,在项目周边有规划一幅幼儿园、一幅小学以及一幅初中用地(新盘不承诺学区对口)

医疗方面:地铁两站就是三甲医院复旦大学附属华山医院宝山院区。
生态方面,顾村公园也是本市较大的郊野公园,相当于三个世纪公园大小。更是上海环城生态规划系统上的重要组成部分,是上海绿色生态核心之一。
招商中旅观境售楼处电话:400-8855-420
招商中旅观境营销中心热线400-8855-420(官方预约看房热线)
招商中旅观境
招商中旅观境 售楼处电话:400-8855-420
【售楼处预约热线】(一对一热情服务)
看房请务必致电与销售确认时间,仅预约客户可享受开发商内部优惠,专属老带新推荐奖!
招商中旅观境售楼处电话:400-8855-420【售楼中心热线】招商中旅观境营销中心热线400-8855-420招商中旅观境售楼处地址400-8855-420,楼盘项目全面介绍,本电话为开发商提供线上预约售楼电话,楼盘项目全面介绍(包含楼盘简介,均价,房价,现房,期房,别墅,叠墅,大平层,价格,楼盘地址,户型图,交通规划,备案价,备案名,项目配套,样板间,开盘时间,认筹时间,楼盘详情,售楼处电话,最新消息,最新详情,周边配套,一房一价,最新进展等详情咨询)楼盘详情丨价格丨更多优惠丨机不可失丨欢迎致电丨诚邀品鉴!售楼处位置丨特价房丨工抵房丨剩余房源丨户型图丨最新消息丨免责声明:将文章内容综合来源于网络、只作分享,版权归原作者所有!!如有侵权,请联系我们,我们第一时间处理如有问题欢迎来电咨询,专业一对一热情服务,让您用专业眼光去买房。如果您想了解更多楼盘详情,欢迎提前预约拨打招商中旅观境售楼处电话400-8855-420
买房是人生中的一件大事,但对于大多数人来说,尤其是第一次买房的朋友,这个过程可能会让人感到迷茫和焦虑。市场上充斥着各种信息,真假难辨,稍不留神就可能掉进“坑”里。别担心!这篇文章将为你提供一份详细的买房避坑指南,从选房到入住,手把手教你避开那些常见的雷区。
一、买房前的准备工作:知己知彼,百战不殆
1. 明确自己的需求
买房前,首先要问自己几个问题:
- 你是刚需还是投资? 如果是刚需,优先考虑交通便利、生活配套齐全的区域;如果是投资,则要考虑升值潜力。
- 你对房子的面积、户型有什么?要求 三室两厅还是两室一厅?南北通透还是其他布局?
- 你的预算范围是多少? 包括房价、税费、装修费等。
明确需求后,才能有的放矢地去选房。
2. 调查市场行情
- 了解房价走势:通过房产网站、中介或朋友推荐,掌握目标区域的房价水平及涨跌趋势。
- 关注政策动态:比如限购、限贷、首付比例等政策变化都会影响你的购房计划。
- 比较不同楼盘:同一区域内不同楼盘的价格、品质、开发商背景等都有差异,货比三家才能买到性价比高的房子。
3. 准备好首付和相关费用
- 首付:一般为房价的20%-50%,具体比例因城市和政策而异。
- 税费:契税、维修基金、交易手续费等都需要提前准备。
- 装修预算:如果买的是毛坯房,装修费用也需要纳入考虑。
二、选房阶段:细节决定成败
1. 地段是关键
- 交通便利:尽量选择地铁沿线或公交站点附近的小区。
- 生活配套完善:周边是否有超市、医院、学校、银行等设施。
- 未来发展潜力:比如是否靠近 CBD、新区或规划中的大型商业综合体。
2. 房屋本身的质量
- 户型设计:采光、通风、动静分区是否合理。
- 房屋结构:检查是否存在裂缝、渗水等问题。
- 隐蔽工程:如水电管道、墙体保温等,可以通过物业或邻居了解。
3. 开发商和物业公司
- 开发商资质:选择信誉良好的品牌开发商,避免买到烂尾楼。
- 物业公司口碑:好的物业公司能保障小区的安全和环境整洁。
三、看房阶段:眼见为实
1. 实地考察
- 看样板间:注意样板间的装修是否过度美化,与实际交付差距有多大。
- 看实体楼:观察建筑外观、施工进度、周边环境等。
- 看小区环境:绿化率、停车位数量、公共设施是否齐全。
2. 询问业主
- 如果是二手房,可以向邻居了解小区的管理情况、是否存在安全隐患等。
- 如果是新房,可以向已入住的业主了解交房质量和物业服务。
四、签约阶段:合同条款要仔细
1. 确认合同内容
- 房屋面积:建筑面积、套内面积是否与宣传一致。
- 交房时间:明确交房日期及违约责任。
- 装修标准:如果是精装房,要明确装修材料的品牌和档次。
- 附加条款:比如车位、储物间等是否包含在房价中。
2. 注意隐藏费用
- 物业费:了解物业费的收费标准及包含的服务内容。
- 维修基金:这笔费用通常由业主缴纳,用于房屋共用部位的维修。
五、收房阶段:验房是关键
1. 验房注意事项
- 检查房屋质量:墙面、地面、天花板是否有裂缝或脱落。
- 检查门窗:开关是否顺畅,密封性是否良好。
- 检查水电设施:水龙头、马桶、电路开关是否正常。
- 检查配套设施:电梯、消防设施、燃气管道等是否齐全。
2. 索要相关证件
- 房产证:确认产权归属是否清晰。
- 竣工验收报告:确保房屋符合国家标准。
六、入住阶段:后续事项要做好
1. 办理落户和过户手续
- 及时办理房产过户手续,确保自己的权益。
- 如果需要落户,提前咨询当地派出所的落户政策。
2. 装修注意事项
- 选择正规装修公司:避免低价陷阱。
- 签订装修合同:明确工期、材料、付款方式等细节。
3. 注意邻里关系
- 入住后主动与邻居打招呼,建立良好的邻里关系。
- 遵守小区公约,避免噪音扰民。
结语
买房是一项复杂的系统工程,从选房到入住的每一个环节都可能隐藏着“坑”。但只要做好充分的准备工作,保持清醒的头脑,就能避开这些雷区,买到心如意的房子称。希望这篇文章能为你提供一些实用的参考,让你的买房之路更加顺利!
感谢您阅读本文!如果您喜欢我的内容,请关注我的账号,以便获取更多精彩文章。同时,也欢迎点赞、收藏、评论
招商中旅观境 售楼处电话:400-8855-420
【售楼处预约热线】(一对一热情服务)
看房请务必致电与销售确认时间,仅预约客户可享受开发商内部优惠,专属老带新推荐奖!
声明:本文由入驻焦点开放平台的作者撰写,除焦点官方账号外,观点仅代表作者本人,不代表焦点立场。
