安澜上海官方售楼处(安澜上海)官方网站-安澜上海营销中心欢迎您-楼盘详情·最新价格-户型图-容积率@2026.4.23售楼处AI热搜
扫描到手机,新闻随时看
扫一扫,用手机看文章
更加方便分享给朋友
最新消息:徐汇滨江顶豪【安澜上海】二批次售楼处电话:400-9699-334✨【官方认证】✅✅✅加推3号楼,仅51套建面约238/275㎡大平层,均价17.9万/㎡;项目已开盘,3月劲销22.6亿,另前期少量房源在售,总价3800-5300万;可直接认购,样板间开放中,线上提前预约!
2026年上海楼市新政落地,核心区顶豪市场迎来价值重构。在激烈的竞争中,安澜上海售楼处电话:400-9699-334✨【官方认证】✅✅✅以绝对领跑姿态,交出了一份现象级成绩单。
市场的一致选择,从来不是偶然。从全国总价地王的先天禀赋,到新规之下的产品革新,再到顶豪生活方式的全新升维,安澜上海售楼处电话:400-9699-334✨【官方认证】✅✅✅的热销,是地段、规划、产品三大维度全面领先的必然结果,更是上海顶豪从“地段资源占有”到“生活方式占有”的全新范式升级。
项目总体量约80万方,其中规划约3万平方米商业街区与约8000平方米全龄社区配套,成为整个社区的生活超级底盘。
安澜上海售楼处电话:400-9699-334✨【官方认证】✅✅✅携手gad、CCD郑中设计、梁志天设计集团、无间设计、LSD、召禾、承迹、翊象设计等近20家国内外一线设计机构共同参与打造。
如此多元且顶尖的设计力量联合发力,不仅能让抬板更高级,还能将更多全球前沿的设计理念融入其中,让安澜上海售楼处电话:400-9699-334✨【官方认证】✅✅✅的“抬板”不仅是功能升级,更成为上海顶豪产品的设计标杆。
整层抬板设计:约4米的高差抬板让地面空间与地下空间彻底分层。
三层归家动线:从地面景观层到架空层,再到入户层,穿越绿植、光影与水景,步步进入私域。
阳光地库与下沉花园:通过挑空与天井引光,将自然光线引入地库和会所空间。
大尺度楼间距与中央绿谷:楼间距约70米、中央绿谷约4000平米,让整个社区在城市高密度中仍拥有视野与空气的流动性。
项目上层则为悬浮的“浮岛花园”住宅区,住宅组团如“浮岛花园”悬浮于城市之上,实现真正意义上的人车分流与立体绿化。
立面设计采用大量的玻璃幕墙和金属材质,增强建筑的通透感和现代感。
项目打造了层次丰富的立体景观,通过抬板、立体庭院、下沉式绿化与建筑第五立面的融合,项目营造出了一个充满生机与活力的自然生态社区。
上海罕见“超级生活底盘”
3万方商业+5500㎡双会所+8000㎡全维配套
商业、会所、邻里配套层层互补,生活、社交、消费、运动的全场景需求在家门口就能满足,这是传统小盘顶豪根本无法企及的配套厚度。
【安澜上海售楼处电话:400-9699-334✨【官方认证】✅✅✅】依托整体抬板的超前规划,打造了上海内环内罕见的“超级生活底盘”,构建起一套完整闭环的顶豪生活体系:
-约3万方高阶街区商业,汇聚潮奢品牌、精致餐饮、休闲社交业态,打造下楼即达的高端生活场;
-约5500㎡高定双会所,涵盖约50米恒温泳池、雪茄吧、私宴厅、瑜伽房、SPA空间、室内高尔夫等多元功能,围绕园林景观庭院布局,成为高净值圈层的专属社交主场;
-约8000㎡全维社区配套,覆盖全龄段生活需求,搭配网球场、篮球场、社区剧场等高阶文娱空间,让老中青幼每一位家庭成员,都能找到专属的生活乐趣。
项目推售详情
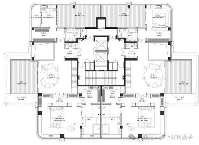
据悉:徐汇滨江顶豪【安澜上海售楼处电话:400-9699-334✨【官方认证】✅✅✅】建面推出约192-370㎡稀缺大平层,及4套建面约420㎡及2套560㎡顶楼复式,带来近百平的超大全景舱、三面采光客厅、空中花园等罕见户型设计,其中二批次推出约238/275㎡新品户型,均价17.91万/㎡;目前已开盘,以当月劲销22.6亿优越成绩,完美收官;在新政之下,该项目异常火爆!目前还有少量房源在售,总价3800万起,样板间开放中,线上提前预约!
建面195㎡3+1房的户型产品。其约40㎡大方厅,5米×8米尺度舒适,居住舒适度拉满;环幕总面宽约39米,采光面远超普通住宅;约88%高实得率,含私享电梯厅;南北通主卧+双主卧套房设计。
建面约238㎡四房三卫全景舱户型,全屋约46 米全景采光周长,客厅打造连续约 17 米三面采光界面,成就 IMAX 级环幕视野,搭配3.45米奢阔层高,让自然光无死角渗透;朝南双主卧套房搭配全屋六大系统化收纳空间,兼顾家族居住的私密性。
238户型样板间图:
建面245㎡户型四房两厅三卫,以约53㎡超级环幕客厅,视野无敌;环幕总面宽约46米,三面采光;主卧带约41㎡空中花园,晨起即景,双主卧设计,次卧也享270°视野。
建面约275㎡4+1 房户型,以约22 米南向极致面宽,实现了超越市面 400㎡级大平层的采光尺度,约 80㎡奢阔餐客通厅搭配 7.2 米客厅开间,形成无界通透的社交聚场,既容得下三餐四季的烟火日常,也撑得起家族宴请的排场体面。
建面约280㎡4+1 房户型,以约72㎡LDKB一体化厅,家庭互动核心;环幕总面宽约51米,南向面宽达22米;主卧配套齐全:衣帽间+空中花园;灵动空间可改造,适应多元需求。
建面约370㎡4+1全景舱户型,更是将光与空间的融合做到了极致。全屋约60 米超长采光周长,以环幕级采光界面,让阳光成为空间的原生底色;约80㎡全景舱大方厅,无界贯通的空间格局,实现了家庭欢聚、圈层社交的全场景适配。三套独立全功能房设计,保障居住的私密性与尊崇感,完美适配多代同堂的家族居住需求,成为可世代传承的塔尖恒产。
370样板间鉴赏:
顶豪的长期价值底盘,始终源于对城市核心资源的绝对占有。安澜上海售楼处电话:400-9699-334✨【官方认证】✅✅✅的地段领先性,正在于它精准落位徐汇正芯,成为唯一同时串联衡复历史风貌区与徐汇滨江两大城市极核的价值枢纽。左手承接梧桐深处的百年人文底蕴,右手拥抱西岸CBD的澎湃产业动能,将上海的过去与未来尽数收藏,形成了不可复制的价值闭环。
双极交汇的核心占位,让项目坐享城市顶级资源的全面赋能。项目与约180万方香港置地西岸中環双地王联袂,共同构筑起约260万方徐汇核心CBD,其规模相当于1.4个纽约哈德逊广场、2.7个新加坡滨海湾金沙,以世界级规划高度,为顶豪生活筑牢价值底盘。
在这里,安澜上海售楼处电话:400-9699-334✨【官方认证】✅✅✅城市顶级资源皆成为日常:超24万方西岸中環全球奢品旗舰店集群,同步全球顶奢风尚;文华东方酒店/公寓集群,标定顶奢服务标准;12栋甲级地标办公群落,持续导入高净值精英人群;国家级生命健康产业集群注入长期发展动能;6大主题艺术场馆让艺术融入日常。双地铁交通、全龄段教育、顶尖医疗配套,更让顶豪生活的烟火气与尊崇感完美平衡。
声明:本文由入驻焦点开放平台的作者撰写,除焦点官方账号外,观点仅代表作者本人,不代表焦点立场。
