象屿天誉兰香(售楼处)首页网站-2025象屿天誉兰香营销中心(售楼处中心)象屿天誉兰香欢迎您-周边环境-户型价格-地址-楼盘详情-户型配套-售楼处电话-交房时间
扫描到手机,新闻随时看
扫一扫,用手机看文章
更加方便分享给朋友
象屿·天誉蘭香售楼处电话:400-9966-940☎☎
象屿·天誉蘭香营销中心热线400-9966-940☎☎(售楼处预约看房热线)
上海主城最大人工湖——兰香湖,在《“大零号湾”科技创新策源功能区规划》的落地加持下,一个容积率低至1.01的全新项目,正在掀起关注热潮。
最新消息
约40万㎡兰香湖不可复制的自然盛境
兰香湖畔全球湖岸赋新之作
象屿·天誉蘭香
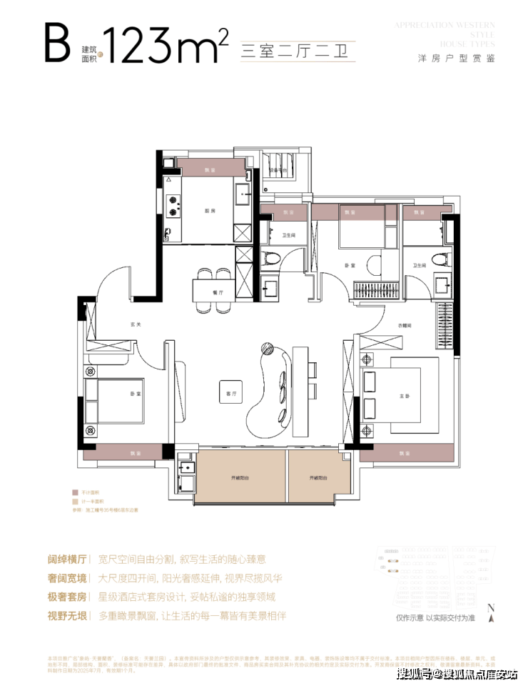
首开建面约123m3房2厅2卫(11F小高层)两种户型,后续还有叠加、联排
项目信息
2025年3月28日,象屿地产一举拿下兰香湖板块MHP0-1005单元组合地块,成交总价66.79亿元,溢价率约18.97%,足见其对该区域的看好。

象屿·天誉蘭香售楼处电话:400-9966-940☎☎
象屿·天誉蘭香营销中心热线400-9966-940☎☎(售楼处预约看房热线)
其中两块住宅用地(02-09、03-04)位于兰香湖东北侧,合计14.75公顷,容积率只有1.01,这样的低密指标,在寸土寸金的上海主城确实罕见。因此,也适合打造低密住宅,可向西南眺望兰香湖湖景。
另一幅16-07地块位于东南角,计划引入国际知名五星级酒店,容积率也仅为1.04。

象屿·天誉蘭香售楼处电话:400-9966-940☎☎
象屿·天誉蘭香营销中心热线400-9966-940☎☎(售楼处预约看房热线)
象屿兰香湖项目案名已官宜“象屿天誉蘭香”,“天系列”为象屿高端产品系,该项目外立面以大面积石材+金属材质为主,英伦切尔西&法式浪漫设计风格

根据项目小高层的效果图来看,有几个发现,小高层1-2层的边套户型无转角飘窗,二是边套户型的阳合处看起来是金属栏杆,而中间套户型则是玻三是10F、11F所有户型的阳合均为金属杆!


项目设计方案公示,涉及02-09、03-04地块,拟建4F叠拼和联排、6-7F多层以及11F小高层。全品类低密产品覆盖,满足不同家庭的改善需求。
其中首开02-09地块,03-04地块作为大二期进行开发,预计交房也会更晚;

根据目前的方案来看,02-09地块内包含5栋11F小高层佳宅,包含建面约123m坚厅以及横厅两种户型,共计约196套;03-04地块内则包含4栋11F小高层住宅,全部为123m横厅户型,共计约176套!
建面约123㎡坚厅户型,3房2厅2卫:
一梯两户无连廊,层高3.15米,独立入户玄关,三开间朝南,南北直通,客厅面宽约4.5米,算是比较经典的飞机式户型,全卧+厨房均附赠飘窗,南向双阳台;
其中边套户型主卧、主卫以及北房间均为270°转角飘窗,中间套户型主卧以及北房间无270转角飘窗,主卫无飘窗,
所以中间套与边套户型同一楼层会有一定的价差,参考同类型项目,预计价差可能在30-40万左右(仅作参考,以一房一价为准)!
建面约123㎡横厅户型,3+1房2厅2卫:

一梯两户无连廊,层高3.15米,独立入户玄关,南北直通,客厅面宽约6.1米,南向双阳台,户型也比较不错,相比较于坚厅户型,横厅户型厨房的面宽更宽,6.1米的横厅多出了个灵动空间,可做开放式的书房、茶室等;
边套户型主卧为270°明窗,但仅南向带飘窗,东西向有窗,但无飘窗,中间套主卧仅南向有飘窗!

34#、36#、37#为竖厅户型

其中34#东边户靠近地下车库出入口,西边户靠近非机动车出入口,36#南向约13米是一个配电房,尤其是西边户是正对着的,37#北侧为绿化+河道,再往北就是东川路,东单元东边户紧挨着垃圾房;
所以综合来看,坚厅户型37#西单元以及中间单元预计带来的不利因素影响较小;
另外34#南向为总高4F的兰香湖雅苑,所以高区有可能是可以看到兰香湖的,后面我们会利用无人机航拍做一个视野的模拟!
33#、35#为横厅户型
33#南侧约13米是一个配电房,然后再往南就是兰香湖雅苑,高区同样存在看到兰香湖的可能性;
35#相对来说位置比较核心,基本没有不利因素的直接影响!
环看兰香湖周边楼盘,可见象屿地产是闵行南区的老熟客了。
象屿招商公园1872、象屿天宸雅颂,再到如今的象屿兰香湖项目,象屿地产针对该区域的开发经验应该是毋庸置疑的。说到象屿招商公园1872,开创过8次开盘,8次日光,8次触发积分的纪录。北区一批次认购率约555%,触发2次以上的“千人摇”。它曾创造2022、2023年外环外新房销售奇迹。

象屿兰香湖项目的另两个近邻,已售罄的兰香湖雅苑,均价6.8万/㎡;另一个“招牌”项目兰香湖壹号,主打230-270㎡大平层,均价约8.02万/㎡。
这次象屿兰香湖项目的入市均价,会超过预计吗?我们拭目以待。其价格走势,或将与兰香湖片区的发展红利深度绑定。
2018年9月兰香湖启动建设,2020年6月正式竣工引水。短短7年,这片水域已从蓝图变为集科创、生态、生活于一体的城市新磁极。
紧接着,“大零号湾”科技创新策源功能区规划快速落地,编制范围总面积约17km²,东至虹梅南路,西至沪闵路,南至黄浦江,北至S32申嘉湖高速。

关键来了,为了联动周边产城生态链的整体发展,规划研究范围将北部的重要工业园区、东部的黄浦江两岸地区纳入规划研究范围,包括兰香湖在内,具体范围东至浦业路-浦星公路,西至沪闵路,南至黄浦江,北至颛兴路-景联路,区域总面积约80平方公里。
意图很明确,集聚地区资源优势,依靠上海交通大学、华东师范大学、紫竹高新区及周边区域,建设“大零号湾”科技创新策源功能区,与张江科学城、杨浦国家创新型城区、青浦华为基地一起,共同支撑上海建设具有全球影响力的科技创新中心。换句话说,大零号湾,已是上海科创“四大支柱”之一,而兰香湖正处于这一战略的核心节点。
这里更大的特色,就是水多。黄浦江、大治河、金汇港的三水交汇,兰香湖所在的大零号湾,就在十字中心,湖面正好画龙点睛。
水域资源与科创势能的叠加,让片区价值愈发稀缺。

上面的科创空间图,又能从另一个角度,说明大零号湾所处于的战略位置。这一横一竖两条科创轴线,几乎把上海最重要的产业区、交通枢纽、城央商圈都连了进去,兰香湖周边俨然形成了一个中央交汇节点。这样的空间格局,纵观上海,好像也很难寻觅到了。
紧接着,就是“三圈联动”新方针,核心功能圈主要囊括高等院校科研+国内外一流科研机构+500强企业。兰香湖板块就在溢出辐射圈内,已被正式定位为“紫竹国际社区”。其实不用看未来,一个现成的“产、城、学、研、居”融合范本已然成型。
据悉,作为大零号湾、紫竹高新区的重要特色空间,兰香湖周边将在近4公里的岸线上,串联起商业北街、星月步道、文化艺术长廊、赛艇俱乐部、商业南街、活力公园、艺术地形公园、青少年活动中心等十多个景观节点,体现居民与自然,园区与社区、校区的有机结合。


围绕兰香湖周边的功能开发已经开始加速,除了2025年象屿拿到的混合地块,2024年初,MHP0-1005单元01-11、06-02两幅商业地块成功出让,总面积达10457.5㎡。根据规划,这里将分别建设社区零售商业体和滨水餐厅。该地块也是兰香湖生态社区规划范围内首批商业用地,未来的生活氛围将持续升温。
还有一个重大消息,瑞金医院闵行院区也要来了,今年5月18日该项目正式启动建设,预计2028年竣工。建成后,将是闵行区最大的三甲医院,一举补齐闵行南部无三甲医院的短板,为片区居民健康保驾护航。
同时结合公园城市理念,嵌入文化、体育、商业、酒店等功能节点,力求打造多元融合的兰香湖生态社区。

正在建设中的23号线,以及15号线南延伸段,让兰香湖周边如虎添翼。

23号线一直是闵行南部至徐汇滨江居民的共同期待。它从徐汇区上海体育场站出发,一路往南至紫竹高新区再向西折弯,终点站至闵行开发区。线路全长约28.5公里,共设22座车站,途中可分别与3、4、5、12、15号线,以及“超级换乘王”在建19号线实现换乘,去哪儿都方便。
15号线南延伸工程总长约10.3公里。线路起于现有15号线紫竹高新区站,终至望园路站,线路途经紫竹高新区、西渡地区、奉贤新城。
终点望园路站离奉贤著名风景区、上海第3大人工湖“上海之鱼”直线距离1公里都不到,此处还能与5号线、在建南枫线实现交汇换乘,是未来的上海南部大型枢纽。
通过15号线,全程联通9大高校(10个校区),3大国家级科创园区,包括城市副中心、各大居住板块、著名景区,还包括上海西站、上海南站这两座大型铁路枢纽。事实将证明,兰香湖板块未来的出行半径会相当广阔。
生态环境是追求居住品质的人群非常看重的要素,兰香湖虽然是年轻的人工湖,恰恰意味着其成长潜力的可观。
本次的住宅地块,可向西南眺望兰香湖湖景,环境优美,酒店地块则临江拥湖,三面绿地环绕,景色宜人。
地块周边区域拟持续引进优质教育资源,加强学校软硬件建设,确保区域内教育水平稳步提升。紫竹半岛东部沿江有兰香湖民办基础教育园区,周边有公办华东师大二附中附属紫竹基础教育园区,覆盖从幼儿园到高中的全龄段教育体系,满足居民子女教育需求。
西侧紫慧路沿线规划兰香湖北街,由钟楼广场1号、2号商业,4栋商墅和8号湖畔餐厅构成,涵盖购物、餐饮、娱乐等多元业态。
环兰香湖规划有赛艇俱乐部、兰香湖酒店等配套设施,满足居民休闲、运动、商务、亲子等需求。
医疗方面有龙华医院吴泾分院、吴泾社区卫生服务中心,紫竹半岛北部的上海交通大学医学院附属瑞金医院闵行院区即将开工,为居民健康保驾护航。
象屿天誉兰香售楼处电话:400-9966-940☎☎【售楼中心热线】象屿天誉兰香营销中心热线400-9966-940☎☎象屿天誉兰香售楼处地址400-9966-940☎☎,楼盘项目全面介绍,本电话为开发商提供线上预约售楼电话,楼盘项目全面介绍(包含楼盘简介,均价,房价,现房,期房,别墅,叠墅,大平层,价格,楼盘地址,户型图,交通规划,备案价,备案名,项目配套,样板间,开盘时间,认筹时间,楼盘详情,售楼处电话,最新消息,最新详情,周边配套,一房一价,最新进展等详情咨询)楼盘详情丨价格丨更多优惠丨机不可失丨欢迎致电丨诚邀品鉴!售楼处位置丨特价房丨工抵房丨剩余房源丨户型图丨最新消息丨免责声明:将文章内容综合来源于网络、只作分享,版权归原作者所有!!如有侵权,请联系我们,我们第一时间处理如有问题欢迎来电咨询,专业一对一热情服务,让您用专业眼光去买房。如果您想了解更多楼盘详情,欢迎提前预约拨打象屿天誉兰香售楼处电话400-9966-940☎☎
声明:本文由入驻焦点开放平台的作者撰写,除焦点官方账号外,观点仅代表作者本人,不代表焦点立场。
