大华梧桐院(售楼处) 首页 - 大华梧桐院销售中心 - 环境 - 户型 - 价格 - 地址 - 楼盘详情 - 配套 - 电话 - 交房时间 - 配套 - 电话 - 交房时间
扫描到手机,新闻随时看
扫一扫,用手机看文章
更加方便分享给朋友
大华梧桐院预约热线☎:400-8080-420✅✅【已认证】
如果您对大华梧桐院有任何疑问,都可以拨打售楼处电话进行咨询。目前案场仅接待预约客户,参观本项目时需提前至少1小时拨打售楼处电话进行线上预约,可享受专属优惠折扣。
预约条件:时间、人数、是否开车【开车需告知车牌预留车位】

大华梧桐院预约热线☎:400-8080-420✅✅
最新消息,上海大华梧桐院预约热线☎:400-8080-420✅✅【已认证】上海北中环、7号线场中路站旁大华纯别墅社区项目容积率仅0.75!建面约139-142㎡叠加别墅、158-165㎡联排别墅!实景现房销售,所见的所得!敬请预约!
大华梧桐院预约热线☎:400-8080-420✅✅
*免责声明:上海大华梧桐院预约热线☎:400-8080-420✅✅【已认证】本宣传资料为宣传介绍,项目为毛坯交付,相关户型宣传资料仅为建筑空间格局、功能创意介绍,不属于合同约定的交付标准,最终项目交付标准以合同约定及政府最终审批为准。本宣传资料不作为出卖人对此提供保证,不作为要约邀请或合同内容。本资料制作时间为2024年11月。
更多楼盘资讯,请持续关注
◼1.项目基本信息
大项目位于宝山大场板块,上海大华梧桐院预约热线☎:400-8080-420✅✅【已认证】大华时光里综合体的配套项目,分为商住办三部分,其中住宅部分占地面积约29566.35㎡,总建筑面积约51080㎡(其中住宅计容面积约22853㎡),容积率:0.75,总套数:141套。
大华梧桐院预约热线☎:400-8080-420✅✅【已认证】
【项目简介】
占地面积:约5.19万㎡
建筑面积:约2.29万㎡
楼栋数:27栋联排+4栋叠拼
总户数:141户
总车位数:337个
车位配比:1:2.3
容积率:约0.75;
绿地率:约35%
装修类型:毛坯;
产权年限:70年
北侧四栋四层叠加共计32套
大华梧桐院预约热线☎:400-8080-420✅✅
主力产品还是南侧109套联排,主要为四联排居多
主要为四联排户型约158-165平左右,上海大华梧桐院预约热线☎:400-8080-420✅✅【已认证】西侧紧挨规划的商业部分
◼2.官宣户型图鉴赏
上海大华梧桐院预约热线☎:400-8080-420✅✅【已认证】
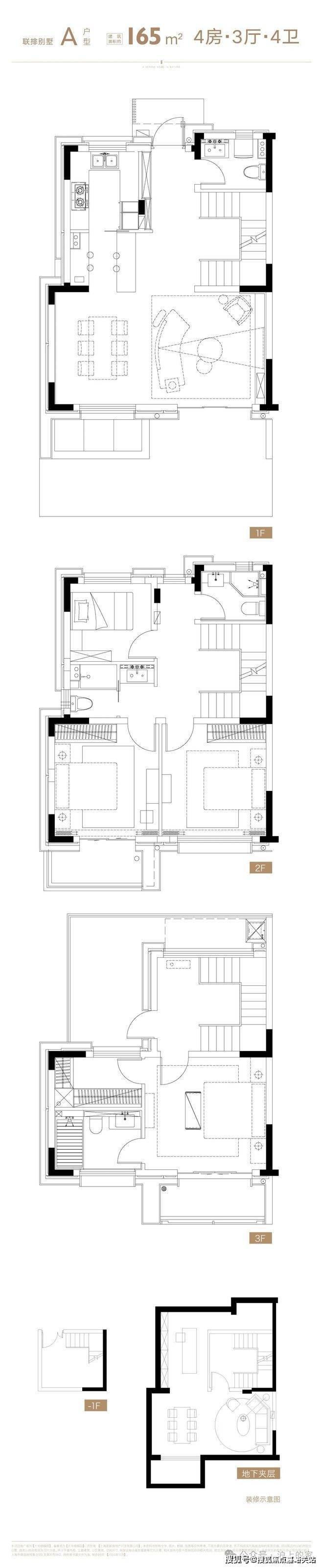
联排A户型165㎡4房-3厅-4卫
大华梧桐院预约热线☎:400-8080-420✅✅
联排B户型158㎡4房-3厅-4卫
大华梧桐院预约热线☎:400-8080-420✅✅
叠加C户型142㎡4房-2厅-3卫
大华梧桐院预约热线☎:400-8080-420✅✅
叠加D户型139㎡4房-2厅-3卫
大华梧桐院预约热线☎:400-8080-420✅✅【已认证】
◼3.小区规划建设
限墅令之后1.0以下的宅地是不批的,1.2容积率俨然成为了新地块容积率的底线。
在这样的背景下,容积率仅约0.75的纯别墅社区——此项目无疑是再难复刻的藏品级住宅,产品价值毋庸置疑!
效果图过程稿
由27栋联排+4栋叠拼组成,上海大华梧桐院预约热线☎:400-8080-420✅✅【已认证】是中环旁仅有的高阶纯粹臻墅,目前已实景呈现,占地面积约5.19万㎡,建筑面积约2.29万㎡,车位配比1:2.3。
社区整体设计借鉴江南园林建筑的设计理念,上海大华梧桐院预约热线☎:400-8080-420✅✅【已认证】确保每一栋建筑都能拥抱充足的阳光与四季更迭的景致。
大华梧桐院预约热线☎:400-8080-420✅✅
效果图过程稿
“碧梧、花影、秋月、玉阶、闲庭”五大院落设计,通过景观轴线串联,演绎优雅别致、移步异景的雅居格调。
大华梧桐院预约热线☎:400-8080-420✅✅
效果图过程稿
第一院:花影—营造穿林荫,夹道开合有序的空间
第二院:秋月—穿过林荫峡谷,忽遇开阔视野空间,叠石气势恢弘,引人深入
大华梧桐院预约热线☎:400-8080-420✅✅
效果图过程稿
第三院:玉阶—枯山水景观让人豁然开朗,点式水景探水而出,倒影天空,人仿若翱翔天镜
第四院:碧梧—叠石、夹道若隐若现,忽现建筑的模样,峰回路转又见另一番天地
第五院:闲庭—无边界的景观体验空间,让人独处,寻觅属于自己的梧桐树
大华梧桐院预约热线☎:400-8080-420✅✅
效果图过程稿
整个社区以经典的错落有致的巷院布置形式,形成多个独立的居住组团和围合的景观空间,辅以景观隔离,营造奢雅兼具的江南人文邸院
风景层层递进,室内外边界明朗有序且交融成趣。当你步入私享绿地,从外界喧嚣过度至佁然静谧,沉浸式享受独属于你的隐奢天地
另外,精装地下车库做的非常精致
大华梧桐院预约热线☎:400-8080-420✅✅
大华梧桐院预约热线☎:400-8080-420✅✅
大华梧桐院预约热线☎:400-8080-420✅✅
大华梧桐院预约热线☎:400-8080-420✅✅
效果图过程稿
实拍如下:
大华梧桐院预约热线☎:400-8080-420✅✅
别墅外围墙为设有金属围栏,并且内部绿化比较多。
大华梧桐院预约热线☎:400-8080-420✅✅
四连排的别墅含有地下室B1,B2直达车库
大华梧桐院预约热线☎:400-8080-420✅✅
大华梧桐院预约热线☎:400-8080-420✅✅
大华梧桐院预约热线☎:400-8080-420✅✅
◼4.周边生活配套
项目位于宝山区大场板块,地处界华路和场中路交界处,位置十分优越,距离7号线场中路地铁站步行最多也就500米左右,然后沿着7号线,两站入中环,三站进市区,六站就进入核心内环了
大华梧桐院预约热线☎:400-8080-420✅✅
交通方面,项目距离7号线场中路站直线距离约700米,在步行可达的范围内。
自驾方面,项目与中环直线距离仅约1.4公里,与南北高架直线距离约2.5公里,出行非常方便。
大华梧桐院预约热线☎:400-8080-420✅✅
商业方面,项目毗邻老镇商圈大华时光里,集商业、办公、公寓、文化艺术等多重功能于一体的城市综合体,开启一站式漫享的家庭休闲时光。南临静安大融城、大宁国际两大商圈,配套设施完善,满足日常生活所需。
大华梧桐院预约热线☎:400-8080-420✅✅
出门即享约2万㎡瑞华美食街(建设中),集休闲、商务、宴会、特色餐饮、精品酒店等于一体的大型高端餐饮综合体。
直线约700米还有宝山日月光中心。
大华梧桐院预约热线☎:400-8080-420✅✅
教育方面,陈伯吹实验幼儿园(市一级)、华师大宝山实验学校(公办九年制)等名校环伺。临近大场中心小学、大场镇小学等多所学校,全龄化教育配套,孩子成长无忧。
大华梧桐院预约热线☎:400-8080-420✅✅
医疗方面,约3.5公里范围内就有宝山区大场医院、上海交通大学医学院附属仁济医院宝山分院,高质医疗资源,为您和家人的健康保驾护航。
大华梧桐院预约热线☎:400-8080-420✅✅
生态方面,约20公里走马塘海派生态水岸,北中环的生活绿轴,通过“走马塘绣带”改造工程营造海派浪漫的生活方式;
周边毗邻大宁公园、桃浦中央绿地等,开启田园般的静谧悠闲与运动的动感乐趣。
大华梧桐院预约热线☎:400-8080-420✅✅【已认证】
如果您对大华梧桐院有任何疑问,都可以拨打售楼处电话进行咨询。目前案场仅接待预约客户,参观本项目时需提前至少1小时拨打售楼处电话进行线上预约,可享受专属优惠折扣。从城市来看,一线城市和强二线城市,有持续的人口流入和产业支撑,住房需求坚实,且当前政策环境友好,如降低贷款利率、放松限购条件等,对于刚需群体,在经济条件允许的情况下,可能是购房窗口期。而三四线城市,普遍面临人口流出、库存高企的问题,房价支撑力较弱,除非有实际居住需求,否则不建议盲目入市。
从个人情况和购房目的来看,如果工作稳定,收入能覆盖月供,首付充足,且是刚需自住,那么可以考虑买房。但如果是投资,就需要更加谨慎,只有部分城市的优质房产才具有一定的投资价值。
声明:本文由入驻焦点开放平台的作者撰写,除焦点官方账号外,观点仅代表作者本人,不代表焦点立场。
