新湖·天潼里198(2025年天潼里198)首页网站-天潼里198楼盘详情-户型环境

搜狐焦点孝感站 2025-09-17 22:17:00
用手机看
扫描到手机,新闻随时看

扫一扫,用手机看文章
更加方便分享给朋友

潼198售楼处预约电话☎:400-8787-740✅✅

☀︎新湖天潼198售楼处电话:400-8787-740☎☎☀︎

★彡提-前-来-电-预-约-登-记—售楼处1v1销售专业讲解〢一对一热情服务〢

★彡温馨提示:网上售楼中心〢欢迎来电咨询〢预约可享内部优惠〢匠心钜制恭迎品鉴〢

编辑

编辑

【天潼里】

天潼198售楼处预约电话☎:400-8787-740✅✅(预约热线)

天潼198售楼处预约电话☎:400-8787-740✅✅(已认证)

预约看房请联系案场销售

百年外滩&北外滩交汇

上海未来的C位核心区

【天潼198】

建面约502㎡~907㎡风貌别墅

总价约1.5亿起

目前“样板间”已开放

— 恭迎品鉴 —

编辑

编辑

新湖天潼198位于北外滩地区,紧邻一江一河,是距离外滩风貌保护区最近的高端居住区。单价约18万平,限量59套,外滩近在咫尺,为了打造恒久的魅力与价值,新湖携手发展商理想特别邀请 tonychi studio创始人、世界级设计大师季裕棠先生作为顾问及美学指导,为天潼198注入国际先进设计思想。天潼198售楼处预约电话☎:400-8787-740✅✅

编辑

坐落于上海虹口区北外滩的这座庭院住宅是天潼198项目的一部分。这片曾经由石库门里弄构成的地块,正在被重新开发成一个文物住宅综合体。天潼198售楼处预约电话☎:400-8787-740✅✅

近年来,上海在城市更新方面既注重保护原有城市肌理,又着重发展历史风貌建筑。这一方式虽然创造了一个多元且尊重历史的城市景观,但这些新开发的风貌住宅项目,也代表着一种有别于中国传统房地产市场的新方向。

编辑

天潼198售楼处预约电话☎:400-8787-740✅✅

里弄生活

LILONG LIVING

编辑

江南绞圈房与西式联排住宅

里弄房屋,也称为石库门,是中国传统四合院与西方联排住宅的独特融合,体现了海派建筑的跨文化特色传统。中国传统四合院强调内向的水平空间,而西方联排住宅则以外向的垂直空间为特色。这种建筑设计的融合,反映了十九世纪至二十世纪初上海开放进取的国际精神。天潼198售楼处预约电话☎:400-8787-740✅✅

本项目旨在挑战当前高端独立住宅的固有模式,同时打造一个能够容纳多代同堂生活并保存家族记忆的居所。

编辑

天潼198售楼处预约电话☎:400-8787-740✅✅

栖息院落

RETURN TO THE COURTYARD

编辑

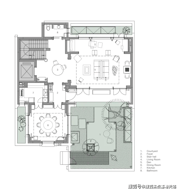
1层设计平面

入户体验始于私家庭院。在高密度的城市环境中,庭院为住宅提供了一处解压之地,一缕新鲜空气。因此,在平面布局上,我们将所有重要空间布置在庭院周边,以充分利用庭院空间。

编辑

从庭院地面层,可以看到客厅和餐厅的内部空间。客厅在立面上向内凹陷,形成了一条有遮盖的走廊,通向房屋定制的深铜色入户大门。天潼198售楼处预约电话☎:400-8787-740✅✅

编辑

入户门

入户空间由一个简约的门厅和楼梯厅组成,门厅配有控制台和嵌入式衣柜。以多功能圆桌为中心的楼梯厅连接着楼梯、电梯、客用卫生间和客厅。空间采用白色洞石搭配特制染色的胡桃木,其浅色调与洞石和谐呼应,同时保留了胡桃木独特的纹理特征。天潼198售楼处预约电话☎:400-8787-740✅✅

编辑

编辑

楼梯厅

在客厅中,两个展示架巧妙地将空间分隔成主客厅区和休闲室,营造出一个与建筑尺度交相辉映的层次空间。

编辑

编辑

正式客厅

这样的布局提供了多样的就座选择——主客厅区保持其开阔大气,与庭院浑然一体;而配备了吧台并可俯瞰北侧小庭院的休闲室,则营造出温馨私密的氛围。天潼198售楼处预约电话☎:400-8787-740✅✅

编辑

编辑

天潼198售楼处预约电话☎:400-8787-740✅✅

餐厅四角以高光烤漆板为基准,营造出庄重感。空间一侧临近中庭,另一侧毗邻西侧小庭院。

编辑

编辑

天潼198售楼处预约电话☎:400-8787-740✅✅

编辑

餐厅

一面贯穿地下室至阁楼七层的整体白色洞石墙体构成建筑主轴。楼梯采用纯净简约的设计,作为连接整个住宅的核心元素,与每层的风格相得益彰。

编辑

天潼198售楼处预约电话☎:400-8787-740✅✅

编辑

深铜色的栏杆和扶手融合传统与现代语汇,演变出一种当代型态,与现代白色洞石相映成趣,营造出优雅纯粹的意境。

编辑

天潼198售楼处预约电话☎:400-8787-740✅✅

编辑

天潼198售楼处预约电话☎:400-8787-740✅✅

1-4层楼梯间

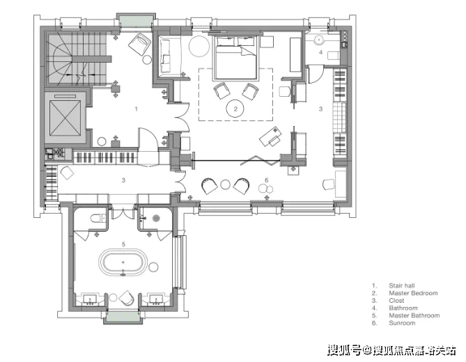
大隐隐于市

MASTER OF THE COURTYARD

整个三层都属于主卧套间。我们非常重视这一层空间的秩序感和流线,并尝试了多种方案。最终我们没有将主卧室空间直接紧贴面向庭院的窗户,而是借鉴上海老洋房的做法,在中间增加了一个过渡空间——‘阳光房’。

这个空间不仅解决了整层的交通动线,更重要的是,考虑到里弄建筑之间的紧密距离,通过将最私密的卧室区域与大窗户分开来确保居住者的隐私。同时为了确保主卧室区域能获得充足的自然光,我们使用折叠百叶门来分隔主空间和阳光房。

编辑

3层设计平面

编辑

主卧入口

编辑

编辑

编辑

主卧室空间

编辑

床边的阅读角落

编辑

增加的“阳光房”

深色烟熏橡木搭配Eric Morris定制的黄铜五金件,将上海老洋房的韵味和气质在精致的细节中得到完美诠释。

编辑

编辑

编辑

天潼198售楼处预约电话☎:400-8787-740✅✅

主卫

庭院生活

COURTYARD LIVING

编辑

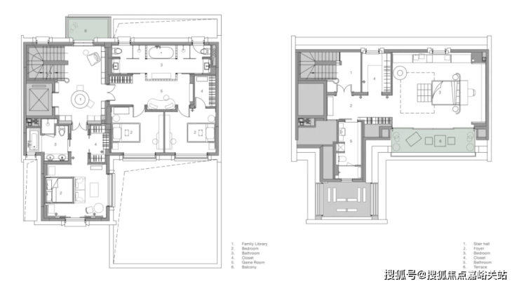
2&4层设计平面

二层设有儿童区和父母房间。所有房间都围绕庭院布置,以充分利用景观视野。我们还将楼梯厅空间改造成家庭图书馆——在这个原本私密的楼层创造了一个公共空间。这为家庭成员增加了除客厅和地下室之外的又一互动空间,强化了我们对现代上海家庭更多交通和爱的理念。

编辑

家庭书房

编辑

编辑

天潼198售楼处预约电话☎:400-8787-740✅✅

父母房间

四层阁楼是大女儿的卧室。这里的斜顶启发我们在空间内打造了一个木质小屋;配备私人浴室和衣帽间,还有一个露天阳台,仿佛这充满阳光的一层就是个独立公寓。

编辑

编辑

室内的“室内”

ENDLESS INTERIOR

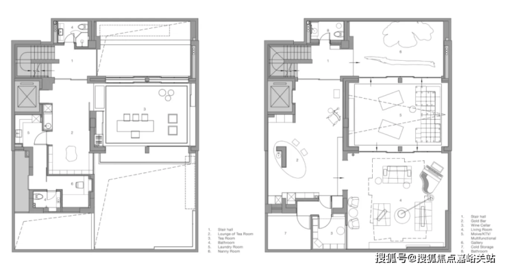
地下室层是娱乐和家庭聚会的主要空间,因此,我们将空间设计得更现代和随意。也正是在这里,我们突破了室内空间中跨文化对话的界限。

编辑

地下设计平面

尽管有明确的结构分区和限制,我们还是将地下室视为一个整体空间。我们的方法是在空间中植入一个'町屋'(日本传统商住建筑)。

编辑

“町屋”概念图

编辑

编辑

编辑

编辑

地下客厅

这个木质建筑统一了地下室空间,同时分隔出不同的功能区域。在木质建筑内部,夹层设有榻榻米茶室,下层则是影音娱乐室。大型推拉门让空间在举办派对和接待客人时能够自由流动。

编辑

茶室

编辑

在'町屋'后方,是一个墙面和天花板都覆盖金箔的'金吧'。在这里,我们重新引入了一些当代西方设计语言——大理石地面图案、蛋形吧台和墙面护板细节。这些元素与醒目的红色高光烤漆柜相互平衡。天潼198售楼处预约电话☎:400-8787-740✅✅

编辑

编辑

水吧

设计应该更贴近日常生活。对环境保持敏感和尊重是至关重要的——我们需要不断重新思考个人生活方式,以及其与周围环境的关系。

虽然这个项目与市场上常见的大型豪宅明显不同,但我们相信它既尊重了城市的传统,又探索了上海未来城市居住的新可能性。

编辑

百年外滩&北外滩交汇

上海未来的C位核心区

【天潼198】

建面约502㎡~907㎡风貌别墅

总价1.6亿起

目前“样板间”已开放

— 恭迎品鉴 —

天潼198售楼处预约电话☎:400-8787-740✅✅

声明:本文由入驻焦点开放平台的作者撰写,除焦点官方账号外,观点仅代表作者本人,不代表焦点立场。