2026年.大华星屿(售楼处) 首页 - 大华星屿销售中心 - 环境 - 户型价格 - 地址 - 楼盘详情 - 配套 - 电话 - 交房时间 - 配套 - 电话 - 交房时间
扫描到手机,新闻随时看
扫一扫,用手机看文章
更加方便分享给朋友



🏡☎️大华星屿售楼处电话:400-8855-420【营销中心】
🏡☎️大华星屿售楼处位置:400-8855-420【楼盘电话】
🏡房价特价信息丨优惠政策丨详细解答丨在售房源丨在售户型图丨项目介绍丨
周边配套丨VR看房丨楼盘图丨沙盘图丨位置图丨配套图丨售楼处地址丨足不出户丨
大华星屿位于嘉定南翔的云翔中央生活区,是陈翔公路轴线上最后一块宅地,西侧紧贴着时代之城,东侧是自然水系景观。

这几年南翔西社区发展速度很快,大华星屿被山姆会员店、南翔印象城MEGA、复旦系学校包围,目前居住氛围已经非常成熟,更关键的是,住宅新规后的产品迭代,让后发制人的大华星屿,有了超越时代之城的十足底气。


产品方面,大华星屿容积率2.0,规划了8栋6层叠墅,4栋17层高层,一共432套房源,高层层高达到3.05米至3.1米。
外立面采用铝板和玻璃幕墙为主,没有做会所规划,不过说实话去隔壁时代之城也行,毕竟郊区会所的最终宿命都是社区健身房。
这次大华发力的重点是样板间,你可以说大华做豪宅是痴人说梦,但他们搞郊区产品还是有一套的,抓住了空间感的核心需求。
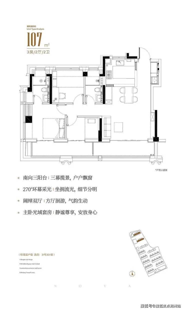
107平3房2卫,开发商号称实得率接近100%,做出了这个面积段罕见的5米面宽、9米纵深的客餐厅。
U型动线厨房可以完全打开,两个南向次卧都把阳台包进了室内,全部可以放下标准双人床。



主卧还是一个罕见的落地窗设计,直接把飘窗给干没了,这让隔壁时代之城陷入尴尬。

123平4房2卫,采用类一梯一户设计,非常少见的4开间朝南+4房南北通透户型。
🏡☎️大华星屿售楼处电话:400-8855-420【营销中心】
🏡☎️大华星屿售楼处位置:400-8855-420【楼盘电话】
🏡房价特价信息丨优惠政策丨详细解答丨在售房源丨在售户型图丨项目介绍丨
周边配套丨VR看房丨楼盘图丨沙盘图丨位置图丨配套图丨售楼处地址丨足不出户丨
声明:本文由入驻焦点开放平台的作者撰写,除焦点官方账号外,观点仅代表作者本人,不代表焦点立场。
