🔷🔸联仲都悦汇售楼部电话:400-8877-480
🔷🔸如需参观样板间或了解房源信息,请务必提前致电预约!
🔷🔸专业销售一对一咨询 耐心等待官方VIP客户经理回电

🔷🔸联仲都悦汇售楼部电话:400-8877-480
联仲都悦汇-C地块联排别墅
💠💠项目卖点:2035规划四大主城区之一➕旗忠板块正核心➕纯别墅社区➕约10.7米大面宽➕超大地下室➕送内部电梯➕马桥人工智能试验区➕“龙脊之地”马桥文化➕约1800亩森林体育城➕国际教育

🔷🔸联仲都悦汇售楼部电话:400-8877-480

🔷🔸联仲都悦汇售楼部电话:400-8877-480
💖💖项目基本信息
【开发商】:联仲置业
【所属板块】:闵行区旗忠板块
【产品建面】:约262㎡、约305㎡
【套 数】:60套
【容 积 率】:1.0
【绿 化 率】:35%
【物业公司】:联仲物业
【物 业 费】:8元/㎡
【产品类型】:住宅纯联排别墅
【交房时间】:2025年6月
【产权年限】:70年
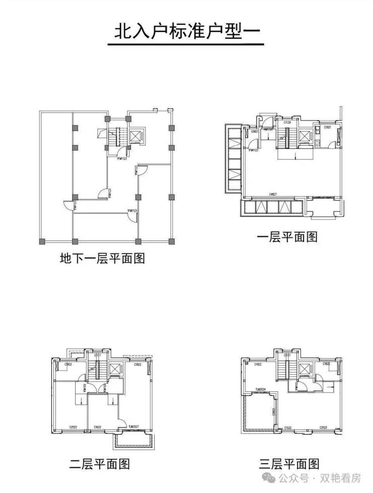
🏆🏆户型介绍☘️约262㎡北入户边套户型图:

🔷🔸联仲都悦汇售楼部电话:400-8877-480
☘️约262㎡南入户边套户型

🔷🔸联仲都悦汇售楼部电话:400-8877-480
☘️约305㎡大户型边套户型

🔷🔸联仲都悦汇售楼部电话:400-8877-480
「未来发展」✴️四大主城区之一

🔷🔸联仲都悦汇售楼部电话:400-8877-480
✴️人工智能创新试验区

🔷🔸联仲都悦汇售楼部电话:400-8877-480

🔷🔸联仲都悦汇售楼部电话:400-8877-480
🚇🚇【交通】
🌟地铁:5号线华宁路站,剑川路站
🌟公交:马莘专线:联工路站,闵行19路:银春路华宁路站
🌟高速:嘉闵高架、沪金高速、虹梅南路高架 沪昆高速、申嘉湖高速、沪闵高架
🌟高铁:距离上海虹桥枢纽站(高铁、机场)约20km
🌟 未来规划:嘉闵线延伸段
(以上数据来源于高德地图)

🔷🔸联仲都悦汇售楼部电话:400-8877-480
💎💎【商业】
🍡万达广场(距离约2.4km)
🍡联仲商业广场(自有在建)

🔷🔸联仲都悦汇售楼部电话:400-8877-480
🏢🏢【学校】
🔮强恕学校,德威英国国际学校、斯代文森国际高中
🔮幼儿园:元祥幼儿园、富杰幼儿园启英幼儿园
🔮大学:上海交通大学、华东师范大学

🔷🔸联仲都悦汇售楼部电话:400-8877-480
马桥文来外国语小学

🔷🔸联仲都悦汇售楼部电话:400-8877-480
上海交通大学

🔷🔸联仲都悦汇售楼部电话:400-8877-480
华东师范大学
🏨🏨【医疗】
闵中心医院、第五人民医院、上海中医药大学附属岳阳中西医结合医院闵行分院。
⛳️⛳️『生态休闲』
上海旗忠网球中心

🔷🔸联仲都悦汇售楼部电话:400-8877-480
旗忠高尔夫球场

🔷🔸联仲都悦汇售楼部电话:400-8877-480
养云安缦酒店

🔷🔸联仲都悦汇售楼部电话:400-8877-480
森林体育城
