露香园天誉(露香园天誉售楼处)首页网站-2025露香园天誉房价_楼盘评测丨地址丨详情丨售楼处电话丨百度百科
扫描到手机,新闻随时看
扫一扫,用手机看文章
更加方便分享给朋友
单价15万起入住黄浦老城厢【⛅☀︎露香园天誉售楼处电话:400-8787-740☎☎☀︎】面积约286-377-496㎡大平层,直接定!!正看陆家嘴东方明珠


露香园1期馥公馆优点:
位于上海市的中心地段,黄浦的核心区,与豫园、日涉园合称为“明代上海三大名园”,周边的人民广场,淮海路,新天地,南京东路都是上海顶级商圈,露香园小区二期的均价17万/平,开盘售馨。10.5万 /平的价格真的非常的便宜。
露香园1期馥公馆缺点:⛅☀︎露香园天誉售楼处电话:400-8787-740☎☎☀︎
馥公馆是2017年交付的,房龄差不多10年,户型是3梯5户设计,总体感觉不是太正气,相当现在的1梯两户或2梯2户的板式户有差异,装修也是原来的现状交付,但保养的不错,基本不错翻新。
繁华的起因是历史。⛅☀︎露香园天誉售楼处电话:400-8787-740☎☎☀︎
露香园1期馥公馆所在的金陵东路旁,可以说是上海文化与精神的源点。
1860年,金陵东路初建。原名“法大马路”,规划建造初期规划对标”南京路,早在二十世纪初期,就是上海土地估值最高的地块之一。
示意图,仅供参考
1912年起,金陵东路兴建骑楼,直至1930年左右形成了绵延1公里多,较为成熟的骑楼街市格局,壮观异常,这里也是上海唯一的骑楼风貌保护道路。
⛅☀︎露香园天誉售楼处电话:400-8787-740☎☎☀︎示意图,仅供参考
1940年代,街市繁荣兴旺,各类商号聚集于此,百货店、鞋帽店、绸布庄、绒线店、饭馆、银行等随处可见。当时,金陵路上商号已有256户;而到了1947年商号达到358户,成为仅次于南京路的商业街。
也是在这段时间,金陵东路逐步形成“外市内里”的独有格局,沿街是繁荣的骑楼风貌街市,两旁向内延伸出集聚居住空间、工坊铺面,多元业态复合共存。

⛅☀︎露香园天誉售楼处电话:400-8787-740☎☎☀︎示意图,仅供参考
改革开放后,金陵东路又迎来新辉煌——这里是黄浦区商业的重点街区,老字号林立,上海市民购买笔墨纸砚、文体用品、绒线鞋帽等多数都会来金陵东路,大名鼎鼎的“上海四大商业街”金陵东路就占一席。
⛅☀︎露香园天誉售楼处电话:400-8787-740☎☎☀︎图源上海黄浦
千禧年,上海掀起“钢琴热”,这里又蜕变为盛极一时的“乐器一条街”,承载了一代上海人的时光记忆。
上海城市近两百年来的发展与变迁,在金陵东路这片小小的土地上高度浓缩。
历史的源头是地理。⛅☀︎露香园天誉售楼处电话:400-8787-740☎☎☀︎
绝对权威的地理站位成就了金陵东路和我们今天的主角金陵华庭,深厚的价值底牌。
作为上海绝对市心,露香园1期馥公馆2公里生活圈囊括人民广场、外滩、新天地、豫园、陆家嘴等上海市地标性区域。

⛅☀︎露香园天誉售楼处电话:400-8787-740☎☎☀︎
人民广场的悠闲小资,外滩的海派天际线,新天地的精致摩登,豫园的古色古香、陆家嘴的时尚潮流……不过是露香园馥公馆的日常。
从上海之巅,到城市之心,一场点亮城市心处天际线的光影盛事,共世界至赏天誉!
露香园二期天际大宅少量保留房源惜售,在城市向新的光影巡礼中,对望新天地、豫园、外滩的天际;在上海中心的巅峰之上聚焦世界的目光,以时代之高光,耀亮城市心处的天际盛誉。⛅☀︎露香园天誉售楼处电话:400-8787-740☎☎☀︎

⛅☀︎露香园天誉售楼处电话:400-8787-740☎☎☀︎

⛅☀︎露香园天誉售楼处电话:400-8787-740☎☎☀︎
作为上海城市更新的风貌保护与传承的经典之作,露香园俨然已是备受赞誉的市中心海派人文恒藏符号。
二期A地块天际大宅,更是以极致的奢阔视野,屹立城市之源人文价值底盘上的永恒天际图腾。

⛅☀︎露香园天誉售楼处电话:400-8787-740☎☎☀︎
目之所及,是黄浦老城厢的海派人文屋脊线,更是至贵的城市心处的天际线盛景。
东北向对望古城公园里市中心臻贵的自然底色;南向可眺望项目自身开明里的隽永海派风貌。
中高区的东向视野能够欣赏到豫园、外滩、黄浦江和陆家嘴“三件套”等上海最为壮阔的天际。
业主在的屋顶花园,也可悠然欣赏三件套的景观。
⛅☀︎露香园天誉售楼处电话:400-8787-740☎☎☀︎

【⛅☀︎露香园天誉售楼处电话:400-8787-740☎☎☀︎】二期不止拥有至奢至贵的天际视野,更坐拥黄浦CAZ城市中心之心生活主场。
从城市之源,到全球城市CAZ心核,关于上海的绮丽繁华,于眼前舒展。
2公里内括淮海路、新天地、人民广场、外滩、陆家嘴等城市级CBD。

⛅☀︎露香园天誉售楼处电话:400-8787-740☎☎☀︎
天际线上的皇冠之藏,出入之间拥有城市中心之心的无限美好。
城市高阶相拥的中心处,以上海核心区少见的超大型人文瑰宝住区,为上海打造城市名片。

⛅☀︎露香园天誉售楼处电话:400-8787-740☎☎☀︎

⛅☀︎露香园天誉售楼处电话:400-8787-740☎☎☀︎
无论时光流转,总在上海心间。
在传统与当代的交织中,再序城市人文的时光沉浸。
在项目二期中源承明代露香园景观精粹,复刻“露香池”八景。
结合中央景观、屋顶花园等臻罕景观,形成海派风貌作品更难能可贵的多重景观,堪称是上海罕有的16世纪私人园林美学复兴作品。⛅☀︎露香园天誉售楼处电话:400-8787-740☎☎☀︎

⛅☀︎露香园天誉售楼处电话:400-8787-740☎☎☀︎

⛅☀︎露香园天誉售楼处电话:400-8787-740☎☎☀︎
更兼有HWCD(会所设计)、无间设计(售楼中心设计)、SLD梁志天设计(样板设计)大师天团,共名园盛境的当代焕新,缔造瑰隐东方的生活场域美学。
精神与意趣的沉浸探索,品位与眼界的灵感相逢,以不凡格调与品位,共襄上海名园的传奇。
⛅☀︎露香园天誉售楼处电话:400-8787-740☎☎☀︎
最新一房一价表:
⛅☀︎露香园天誉售楼处电话:400-8787-740☎☎☀︎
项目名称:露香园路18号
开发商:上海露香园置业有限公司
区域:黄浦区
总套数:79套
主力户型:110-180(三梯六户)
特殊户型:253、315、470(三套)顶楼
总高:名义楼层20楼、实际楼层17楼(4、13、14没有)
01室:110的一房无阳台
02室:152的两房有阳台
03室:184的两房有阳台
04室:185的两房有阳台
05室:172的两房有阳台
06室:110的一房有阳台
装修标准:精装交付,所见即所得
产权:70年住宅(需有上海购资)
车位:1500租,60万买
物业费:8.5元/平
露香园一期于2014年竣工,2015年交付!现小区在售户型基本在17万+左右,虽然露香园馥公馆是3梯5户的设计,同样的房龄,但同小区相当7万左右一平,非常罕见。兴趣真的值得一看:小区真实在售房源
⛅☀︎露香园天誉售楼处电话:400-8787-740☎☎☀︎
同样一路之隔的金陵华庭预计约360-445㎡大户型,上海市中心核心钻石地段,外滩板块超级顶豪王者,「金陵华庭」首开入市,158套均价18.9万元/㎡的大平层全部售罄!上海有钱人的购买力依然非常强大!
⛅☀︎露香园天誉售楼处电话:400-8787-740☎☎☀︎
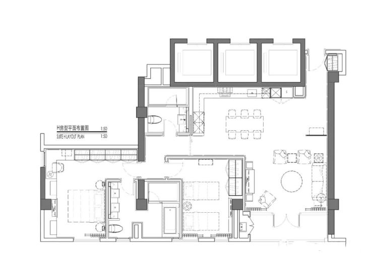
在售房源户型图▼
⛅☀︎露香园天誉售楼处电话:400-8787-740☎☎☀︎
⛅☀︎露香园天誉售楼处电话:400-8787-740☎☎☀︎
⛅☀︎露香园天誉售楼处电话:400-8787-740☎☎☀︎
⛅☀︎露香园天誉售楼处电话:400-8787-740☎☎☀︎
⛅☀︎露香园天誉售楼处电话:400-8787-740☎☎☀︎
⛅☀︎露香园天誉售楼处电话:400-8787-740☎☎☀︎
⛅☀︎露香园天誉售楼处电话:400-8787-740☎☎☀︎
⛅☀︎露香园天誉售楼处电话:400-8787-740☎☎☀︎
⛅☀︎露香园天誉售楼处电话:400-8787-740☎☎☀︎
⛅☀︎露香园天誉售楼处电话:400-8787-740☎☎☀︎
⛅☀︎露香园天誉售楼处电话:400-8787-740☎☎☀︎
⛅☀︎露香园天誉售楼处电话:400-8787-740☎☎☀︎
⛅☀︎露香园天誉售楼处电话:400-8787-740☎☎☀︎
⛅☀︎露香园天誉售楼处电话:400-8787-740☎☎☀︎
⛅☀︎露香园天誉售楼处电话:400-8787-740☎☎☀︎

⛅☀︎露香园天誉售楼处电话:400-8787-740☎☎☀︎
⛅☀︎露香园天誉售楼处电话:400-8787-740☎☎☀︎
⛅☀︎露香园天誉售楼处电话:400-8787-740☎☎☀︎
⛅☀︎露香园天誉售楼处电话:400-8787-740☎☎☀︎
⛅☀︎露香园天誉售楼处电话:400-8787-740☎☎☀︎
⛅☀︎露香园天誉售楼处电话:400-8787-740☎☎☀︎
私家花园⛅☀︎露香园天誉售楼处电话:400-8787-740☎☎☀︎,与豫园、日涉园合称为“明代上海三大名园”。明嘉靖年间卸任道州太守顾名儒,购城北黑山桥地筑万竹山房,其弟顾名世在万竹山房东西开辟旷地,凿池得石,上有“露香池”三字,据说还是赵孟頫的手迹,便称此园“露香园”。
⛅☀︎露香园天誉售楼处电话:400-8787-740☎☎☀︎
项目位于上海市中心黄浦区老西门板块,距离外滩、新天地、人民广场、淮海路等地标区域的距离均在1.5公里以内,地段可以说是真正的老牌市中心了。
⛅☀︎露香园天誉售楼处电话:400-8787-740☎☎☀︎
土地稀缺是不争的事实,无论楼市如何震荡,真正的传统市中心项目永远是稀缺资源与保值保障,露香园这等占据城市中心的优质项目,是可遇不可求的。
『⛅☀︎露香园天誉售楼处电话:400-8787-740☎☎☀︎』约38.6万方的超大体量豪宅社区。『露香园』由北向西沿人民路、南到方浜中路,东至河南路,总占地面积约15.8万㎡,以露香园路的东西侧为界,分两期进行开发建设。
露香园(一期)有以高层为主的精装修住宅;城市稀缺别墅;同时配套两种不同业态的酒店;双重休闲体验模式的会所;另有部分临街商业和商业内街。⛅☀︎露香园天誉售楼处电话:400-8787-740☎☎☀︎
『⛅☀︎露香园天誉售楼处电话:400-8787-740☎☎☀︎』借鉴了欧美、中国香港等地区名宅项目的会所配套理念,在沪上独家引进了“泛会所”概念的新型会所休闲平台。聘请LansonPlace负责营运,规划了5层近9000平方米的独立会所,分别将凝香轩、御景轩、碧漪轩、鸥亭轩四幢及积翠轩、澄泓轩、阜春轩、青莲轩四幢的二层屋顶花园部分以廊相通,形成各3000平方米的整体,打造成为泛会所平台。
【⛅☀︎露香园天誉售楼处电话:400-8787-740☎☎☀︎】项目位于上海市中心黄浦区老西门板块,距离外滩、新天地、人民广场、淮海路等地标区域的距离均在 1.5 公里以内,地段可以说是真正的老牌市中心了。
⛅☀︎露香园天誉售楼处电话:400-8787-740☎☎☀︎
一、二期合计地上建筑面积 40 万平方米,内含高层公寓、海派别墅、精品酒店、高端商业、会所、服务式公寓等业态。
⛅☀︎露香园天誉售楼处电话:400-8787-740☎☎☀︎
高层公寓部分以 200 平方米以上大平层户型为主,海派别墅单套地上主力面积为350-450 平方米,附赠两层地下空间。
【⛅☀︎露香园天誉售楼处电话:400-8787-740☎☎☀︎】项目总占地面积约15.8万㎡,分两期开发。在售房源为位于上海老城厢路露香园路18号,与人民路横向交叉。虽地处繁华之隅,却拥有难得的恬淡与静谧。

⛅☀︎露香园天誉售楼处电话:400-8787-740☎☎☀︎z
上海逸兰露香园一期,前身为服务式公寓坐落于上海黄浦区,为您在繁华魔都缔造一处宁谧舒适的休憩之所。开发商保留房租转售,一期优越的地理位置,让您轻松漫步外滩、豫园、新天地等上海著名景区,尽情探索都市无限魅力。
⛅☀︎露香园天誉售楼处电话:400-8787-740☎☎☀︎
⛅☀︎露香园天誉售楼处电话:400-8787-740☎☎☀︎
露香园位于市中心繁华路段,位置极为优越,邻近豫园、城隍庙、新天地、外滩和浦。
上海城投负责⛅☀︎露香园天誉售楼处电话:400-8787-740☎☎☀︎街区的整体更新,对城市的历史文脉采用了尊重的态度,由露香园路转到万竹街,街面小路以小块石板铺设,靠近大方弄一侧即是城投筹备已久的全新作品。上海市区唯一保留的老上海县城城墙,距离新天地仅600米。
项目实景图
项目实景图⛅☀︎露香园天誉售楼处电话:400-8787-740☎☎☀︎
项目实景图⛅☀︎露香园天誉售楼处电话:400-8787-740☎☎☀︎
轨道交通方面:豫园(地铁10号线)、大世界(地铁8号线)、老西门(地铁10号线:地铁8号线)
商业配套方面:汇都国际广场,亚龙国际广场,范仕达生活广场,新尚数码广场,淮海商业大厦,乐购express(金陵东路店),福佑门商厦,恒源祥(金陵东路店),知音琴行(金陵东路店),联华超市(大境路)
⛅☀︎露香园天誉售楼处电话:400-8787-740☎☎☀︎
教育资源方面:上海市格致中学,上海市光明中学,上海市实验小学(人民路),上海交通大学医学院,科学会堂,上海市黄浦区卫生学校,上海市金陵中学,上海城建职业学院(静安校区),明珠中学,上海市格致初级中学。
⛅☀︎露香园天誉售楼处电话:400-8787-740☎☎☀︎
医疗资源方面:⛅☀︎露香园天誉售楼处电话:400-8787-740☎☎☀︎上海市徐汇区中心医院,上海交通大学医学院附属瑞金医院,益丰大药房(人民路店),上海交通大学医学院附属第九人民医院(南部),红房子妇产科医院黄浦院区-门诊楼,第一医药(金陵东路店),上海市口腔病防治院,爱康国宾体检中心(西藏南路店),上海中医药大学附属曙光医院西院-肝科十八病区,瑞金医院-门诊部
声明:本文由入驻焦点开放平台的作者撰写,除焦点官方账号外,观点仅代表作者本人,不代表焦点立场。
