越秀外滩樾(售楼处) 首页 - 越秀外滩樾销售中心 - 环境 -越秀外滩樾户型 - 价格 - 地址 - 楼盘详情 - 配套 - 电话 - 交房时间 - 配套 - 电话 - 交房时间
扫描到手机,新闻随时看
扫一扫,用手机看文章
更加方便分享给朋友



越秀·外滩樾位于上海内环核心区域,地处由外滩、陆家嘴与北外滩构成的“黄金三角”腹地。项目匠心打造了一处覆盖238㎡-338㎡面积段、容积率仅为1.3的低密度风貌里弄住宅。
楼栋图

户型图
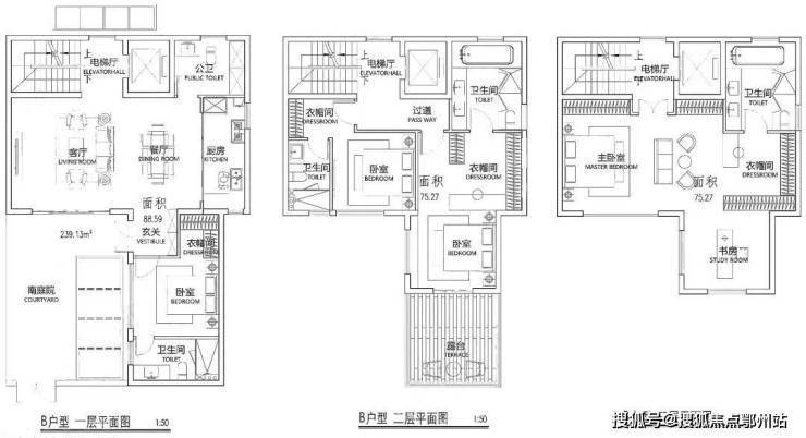
236.25㎡
239.13㎡
250.89㎡
C户型
291.42㎡
项目承袭了百年前的传统工艺元素,将清砖立柱、古典门头、岩石山墙等经典海派建筑风貌转译和突破,更适配现代人居审美,于历史和未来之间收藏百年上海底蕴!
保留历史肌理的老砖为基底,项目们以现代陶艺重译传统,研发陶砖。
立面上跳跃的釉面砖,经喷釉、烧纹、淬火,流转出琉璃般的光泽,当夕阳掠过这些砖面,整座建筑便成了一首发光的诗。

越秀·外滩樾
越秀·外滩樾售楼处电话:400-8855-420✨✨【售楼中心】
咨询高峰期请耐心等待,预约来电尊享内部优惠,专业一对一热情服务,让您用专业眼光去买房。
公区:首开先河的山水庭院,私密尊贵的会所
突破风貌别墅公区狭小的限制,越秀外滩樾做了一个地上地下合计建面约2500㎡会所及泛会所空间,提供了会客、私宴、泳池、健身等多维休闲社交功能。

越秀·外滩樾
越秀·外滩樾售楼处电话:400-8855-420✨✨【售楼中心】
咨询高峰期请耐心等待,预约来电尊享内部优惠,专业一对一热情服务,让您用专业眼光去买房。

越秀·外滩樾
越秀·外滩樾售楼处电话:400-8855-420✨✨【售楼中心】
咨询高峰期请耐心等待,预约来电尊享内部优惠,专业一对一热情服务,让您用专业眼光去买房。
地下一层泛会所与特别设置的艺术展廊连通,让艺术与生活完美融合;地下二层可以直达地下车库,与地下归家大堂相连通;地下三层会所主体,通过下沉庭院进行采光,错落有致的布局环绕其间,保证采光的通透和视野的幽静。恒温泳池、多功能健身区、休闲SPA区的悠然氛围,营造既独立又相互呼应的空间体验的同时提升价值感。



该地块为Rr1类别的别墅用地,容积率1.3,限高15米,建筑面积14027平米,地块内需要保留的历史建筑规模约4400平方米,均为里弄建筑。

虹口区嘉兴路街道hk270B-04地块历史风貌保护项目概况如下:
1、四至范围:东至梧州路、南至周家嘴路、西至hk270B-02地块、北至柘皋路
2、土地面积:10790平方米
3、出让年限:70年
4、规划用地性质:一类住宅组团用地
5、容积率:1.3
6、建筑面积:14027平方米
7、起始总价:17.3亿
8、楼板价:123333元/㎡
复刻百年前的高端工艺元素,让海派造诣世纪传承。清砖立柱、古典门头、封闭门窗、岩石山墙等经典海派建筑风貌转译,于历史和未来之间收藏百年上海。
(*本图片仅为方案过程讨论稿,并非交付标准。)
41载越秀 | 万亿级开发商 与上海共卓越】国内资产规模最大的地方驻港企业之一越秀地产,中国第一代商品房缔造者。41年越秀,30城300+项目,服务超100万业主;2023年销售额行业排名12,2023年TOP20销售业绩增长率最高房企。2024中国房企综合实力TOP9。入席北外滩世界会客厅,与上海共生长。(数据来源:克而瑞地产研究发布榜单《2023年1-12月.中国房地产企业销售榜top200》)
【一座码头 启航外滩百年世界史】项目所在地北外滩,是百年前上海的“下海”地。作为上海开埠后第一座码头的诞生地,北外滩率先“开眼看世界”,海纳万国文化风潮,众多此后影响中国的创举在此诞生,是上海最早的“十里洋场”
(*示意图,图片来源于网络)
【一江一河 再立世界上海新传】傲立“一江一河”交汇处(直线距离约1.1KM),未来将打造成为彰显上海城市核心竞争力的黄金水岸和具有国际影响力的世界级城市会客厅,出入之间,相逢城市高阶未来
(*示意图,图片来源于网络)
【北外滩 面向世界的上海新封面】北外滩,与外滩、陆家嘴并称为上海的“黄金三角”。将以2座陆家嘴的商务体量规划,新天地2.0生活圈打造,成为上海跃升世界舞台的“中心发力”新引擎
(*示意图,图片来源于网络)
【中央商务区 未来上海腾飞引擎】区域能级:总开发面积约840万方,40栋甲级写字楼城市地标:480米浦西第一高楼,19栋摩天大楼集群金融产业:2100+家金融企业赋能,资产管理规模超8万亿元,位居全市第一航运格局:4500+家航运企业集聚(上港集团、中远海运等),打造国际航运中心全球贸易:2500+家贸易企业入驻(摩亚方舟、银联商务等)新兴产业:129家新增高新技术企业,113家市区科技小巨人企业(数据来源:上海市规划局《北外滩地区控制性详细规划》)
(*示意图,图片来源于网络)
地块位于虹口区嘉兴路街道,区域居住氛围浓厚,配套成熟。地块西侧的1933老场坊,早前是上海工部局宰牲场;而如今,成为了众多文艺青年打卡拍照的必游胜地。此次也要求保留工部局旧址建面约1800㎡。
交通配套:地块距离地铁4、10、19号线换乘站海伦路站直线距离约600米,交通十分便捷。

【核心商圈 | 高阶商业配套 国际摩登领潮】商业配套方面项目约2公里内多元繁华构筑封面商业圈,北外滩商圈直线距离约500米;外滩商圈直线距离约1000米;陆家嘴商圈直线距离约1500米;瑞虹商圈直线距离约900米;
教育配套:华东师大一附中实验小学、虹口区第二中心小学、华东师大一附初中等优质配套;
商业配套:1km左右就有集购物、餐饮、娱乐休闲、办公及服务式公寓为一体的综合商业体——瑞虹天地,商业面积55万方,包括太阳宫、月亮湾、星星堂、瑞虹坊四个部分。

医疗配套:地块紧邻上海第一人民医院(三甲)

越秀·外滩樾
越秀·外滩樾售楼处电话:400-8855-420✨✨【售楼中心】
咨询高峰期请耐心等待,预约来电尊享内部优惠,专业一对一热情服务,让您用专业眼光去买房。
郑重承诺:此房源信息真实有效,开发商直属全程营销策划,中介勿扰如有问题欢迎来电咨询,来电即可享受买房优惠!
1、本资料为要约邀请,不作为要约或承诺;买卖双方的权利义务以双方签订的《商品房买卖合同》及其补充协议、附件等书面文件为准;相关宣传内容不排除因政府相关规划、规定及出卖人分期规划、未能控制等原因发生变化;出卖人将!不定期对宣传材料进行修改,敬请留意最新资料。
2、图片来源于网络,仅作为推广示意使用;如涉及版权使用,请与我司联系。
声明:本文由入驻焦点开放平台的作者撰写,除焦点官方账号外,观点仅代表作者本人,不代表焦点立场。
