大华梧桐樾彻彻底底火了,究竟怎么回事?来看以下图文,就懂了
扫描到手机,新闻随时看
扫一扫,用手机看文章
更加方便分享给朋友
在上海买新房,如果想要做到真正的常住久安,还是要回归居住本真,不能本末倒置去做选择,同时,还要考虑各类资源的匹配。
大华梧桐樾售楼处电话👉:400-1010-064☎☎
而这就要说到两个词:地段+产品,它们可以说是判定一个房子好坏与否的恒定标准。
什么样的可以称作好地段?交通枢纽,产业预期,成熟配套...缺一不可。
什么样的产品是好产品?从购房者角度出发,兼顾舒适度与实用性。
放眼整个上海,符合好地段+好产品的新房其实寥寥无几,要不就是地段差点,周围还是荒地一片,只会画大饼;要不就是仗着自己地段好,产品就随便应付了事,根本不用心。
而大华梧桐樾售楼处电话👉:400-1010-064☎☎无疑是地段和产品平衡得最好的,可以说是许多购房者心目中的白月光!
首先,大华梧桐樾售楼处电话👉:400-1010-064☎☎距离虹桥主城直线距离仅约5KM,直接享受大虹桥生活圈的价值辐射。环比大虹桥新房市场,同样的入手的价格,大华梧桐樾售楼处电话👉:400-1010-064☎☎一定是更近主城的那一个。

再者,大华梧桐樾售楼处电话👉:400-1010-064☎☎所在的安亭板块,在上海2035的发展蓝图中担当着上海西枢纽的重要角色,不仅连接着嘉定与上海市区,更联通着长三角和江浙沪。
而且,安亭作为“中国汽车第一镇”,拥有千亿级的汽车产值,未来更是嘉定百万人口的中心承载区。
所有瞄准大虹桥的置业者赶紧做好准备,争取在这一波能上车!

大虹桥生活圈+国际汽车城规划,
总价275万级,性价比非常高!
一方面,大华·梧桐樾售楼处电话👉:400-1010-064☎☎距离大虹桥,真的是太近了,直接享受到大虹桥的辐射利好!
项目与大虹桥核心商务区直线距离仅约15km!
从项目出发,沿着京沪高速,一路即可直达外环、中环,直驱市中心;转嘉闵高架,更可以快速抵达大虹桥。
这就意味着,关注大虹桥的客户,不妨把目光往北移一点,同样是享受到大虹桥发展红利,但在这里,却可以把居住的舒适度和生活的质感直接拉满!
区位示意图,仅供参考
更何况,大华·梧桐樾售楼处电话👉:400-1010-064☎☎近11号线上海汽车城站,可以直达真如、徐家汇、徐汇滨江、前滩等市区商圈。
据了解,安亭未来还规划有14号线、嘉虹3号线,或将让周边交通提升一个台阶。

区位示意图,仅供参考
另一方面,项目所在的国际汽车城产城区,本身就有重磅产业加持!
上海国际汽车城作为全球领先的汽车研发地,在嘉定2035规划中,将基本建成产城全面融合的世界级汽车产业中心。
这里以产赋能,带动整个板块的能级提升、经济提升及人口结构优化,所聚集的能量,丝毫不输于张江、漕河泾等产业高地。
这里聚集了约15000名高级汽车工程师,所带来的海量居住需求,对区域价值有着巨大的推动作用!
区域汽车产业示意图
值得一提的是,安亭的枢纽建设也在如火如荼地进行中!
根据嘉定新城十四五规划,安亭被纳入嘉定新城扩区范围,成为“枢纽飞地”!
“十四五”期间,嘉定将全力推进市域铁宝嘉线、嘉青松金线的规划建设,安亭将形成集国铁、市域铁、轨道交通、中运量客运、长途客运和常规公交“六位一体”的上海新城综合交通枢纽。

安亭北站
有了产业和枢纽的助力,安亭正在朝着产城融合的范本大踏步前进。
上海国际汽车城核心片区开发已趋于成熟,商业、产业、轨交、公园等优质配套有序落地。
大华梧桐樾售楼处电话👉:400-1010-064☎☎就位于安亭正核心,紧挨着颖奕安亭高尔夫俱乐部!

汽车城核心区JDC3-1101单元控制性详细规划
周边次新房已有挂牌,高层挂牌价高达约5.2万/㎡,别墅挂牌价高达约7.06万/㎡,夯实了安亭板块的价格,也证明区域内的价值高度充满想象空间。
大华·梧桐樾售楼处电话👉:400-1010-064☎☎高层+叠加均价仅约4.07万/㎡,此刻入手正当时!
链家挂牌数据截图


商业、学校、生态、医院等统统配齐,
繁华配套和烟火气息扑面而来!
上海总价300万级新盘中,鲜少能找到城市资源非常丰富的板块。
大华梧桐樾售楼处电话👉:400-1010-064☎☎所在的安亭,就是总价300万级板块中的少数派!
区位示意图,仅供参考
汽车城核心片区就有约40万㎡缤纷商业配套,这在郊区是非常少见的!
包括嘉亭荟、财富广场、三德广场等商业中心,满足吃喝玩乐购一站式生活需求。
约33万方的嘉亭荟二期目前也已经投入了运营。嘉亭荟一二期,集合了商务办公、购物餐饮、剧场影院、休闲娱乐等多重业态模式。
嘉亭荟商圈鸟瞰
项目6公里范围内有三级甲等第二军医大东方肝胆医院,其中大量的主任医师和教授都来自于长征医院、长海医院。
配套和产业的快速发展,如今的安亭新镇,经过多年的沉淀,早已经成为第一居所终极置业的理想栖息地!

约百万方生态资源加持,
价格亲民的高尔夫墅区产品!
大华·梧桐樾售楼处电话👉:400-1010-064☎☎位于三江交汇处,拥有约百万方的生态资源加持。
项目2公里内就有1800亩的颖奕高尔夫球场和1150亩开放式汽车博览公园,总共近3000亩天然氧吧环绕。
大华梧桐樾售楼处电话👉:400-1010-064☎☎紧邻颖奕高尔夫球场,周边的生态环境非常优越。这意味着,项目未来的居住环境和氛围更加安静、清幽。
项目高层产品的低区可欣赏社区繁复的园林景观,高区可远眺颖奕高尔夫球场,视野非常开阔。
大华·梧桐樾售楼处电话👉:400-1010-064☎☎
如此优越的生态环境在上海已经不多见了,尤其是还拥有超大面积的高尔夫球场,同纬度的板块上车门槛已经相当高了。
环顾上海五大高尔夫墅区,近些年仅有少量项目入市,但清一色价格不低,大华·梧桐樾售楼处电话👉:400-1010-064☎☎是少有价格亲民的高尔夫墅区产品。
区位示意图,数据来源网上房地产
颖奕高尔夫球场是上海第二大球场,是18洞标准PGA锦标赛球场;

高尔夫球场实景图
1150亩的汽车博览公园,相当于2个长风公园或4个中山公园的大小,这样的生态资源,实属少见。
汽车博览公园实景图

大华“梧桐系”第五代传奇大盘,
约30万方静谧墅区,区域品质新高度!
大华集团在与时俱进,产品不断升级迭代。
此次,大华集团择址上海国际汽车城,于百万方生态资源之上,带来大华梧桐系第五代传奇大盘:大华·梧桐樾售楼处电话👉:400-1010-064☎☎!
大华·梧桐樾售楼处电话👉:400-1010-064☎☎将打造成约30万方静谧墅区,建筑采用现代美学立面,窗棱格构,为业主们提供更高阶的审美。
项目遵循大华城市别墅九制设计章法、营造门、街、坊、巷、院五重空间序列,匠筑春、夏、秋、冬四季主题园林,打造新时代的宋式生活。
大华·梧桐樾售楼处电话👉:400-1010-064☎☎
以“礼、艺、雅、乐、书、御”君子新六艺营造全龄景观墅区。
礼仪归家场景:书香门第,礼仪门厅,给予归家业主们无与伦比的尊贵感和仪式感;
大华·梧桐樾售楼处电话👉:400-1010-064☎☎
艺术生活场景:云林花园、光影花园、绿岛花园等,打造沉浸式“园林式栖居”;
亲友雅集场景:滨河休闲活动区,活力聚场;
天伦之乐场景:鲲鹏儿童乐园、小精灵乐园等,打造全龄休闲活动区;
读书冥想场景:专属定制“鲲鹏书院”;
运动健身场景:约760m“汽车文化”主题跑道,森林漫步道、慢跑加油站等,匹配不同锻炼强度业主的运动场景。
大华·梧桐樾售楼处电话👉:400-1010-064☎☎
大华·梧桐樾售楼处电话👉:400-1010-064☎☎主推建面约82-101㎡2-3房,建面约91-150㎡叠墅,精工品质,国际品牌,均价约40700元/㎡。
建面约91㎡3房2厅1卫户型,做到了三开间朝南+双朝南卧室带飘窗+动静分离+卫生间干湿分离,采光面拉到极致的小3房户型。
这是一个相对主流户型,受众面大,三口、四口之家居住都非常适合,未来流入二手房市场,也能收获下家更多青睐。
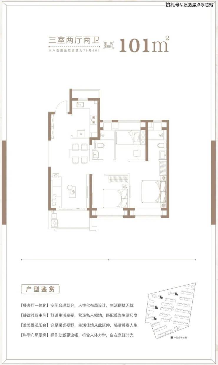
建面约101㎡3房2厅1卫,约101㎡B户型是做到了三开间朝南+主卧套房设计+动静分离+全卧室带飘窗,采光极佳的大3房。
三开间朝南,客厅+双卧室朝南,室内采光面非常大,通透明亮,私密性也更强。
主卧套房设计,带飘窗+独立卫生间,宽奢空间可以轻松打造出衣帽间,专属于主人的私密空间。
有更大尺度的改善需求可以选择项目的叠墅。
以下为叠墅主力户型图:


叠墅产品分为4F、6F层叠加, 主力产品建面约约91-133㎡上叠,114-132㎡大平层,110-150㎡下叠。
大尺度厅堂、星空露台、地下空间,满足业主们对“有天有地有星空”别墅居家体验的幻想!
声明:本文由入驻焦点开放平台的作者撰写,除焦点官方账号外,观点仅代表作者本人,不代表焦点立场。
